
孙岙小学遗址孙岙小学坐落在浙江绍兴王坛镇的大山中,占地10亩有余。场地整体坐南朝北,东南靠山,西北面向村落与稻田。学校早已荒废多年,大部分残破不堪无法使用,但主教学楼、场地基础、植物绿化等都保留尚好。


去留自然面对复杂多样的现场, 我们先形成一副场所框架:由建筑编号起头,拟定各建筑的现状概况、功能调整、以及实施条件等。




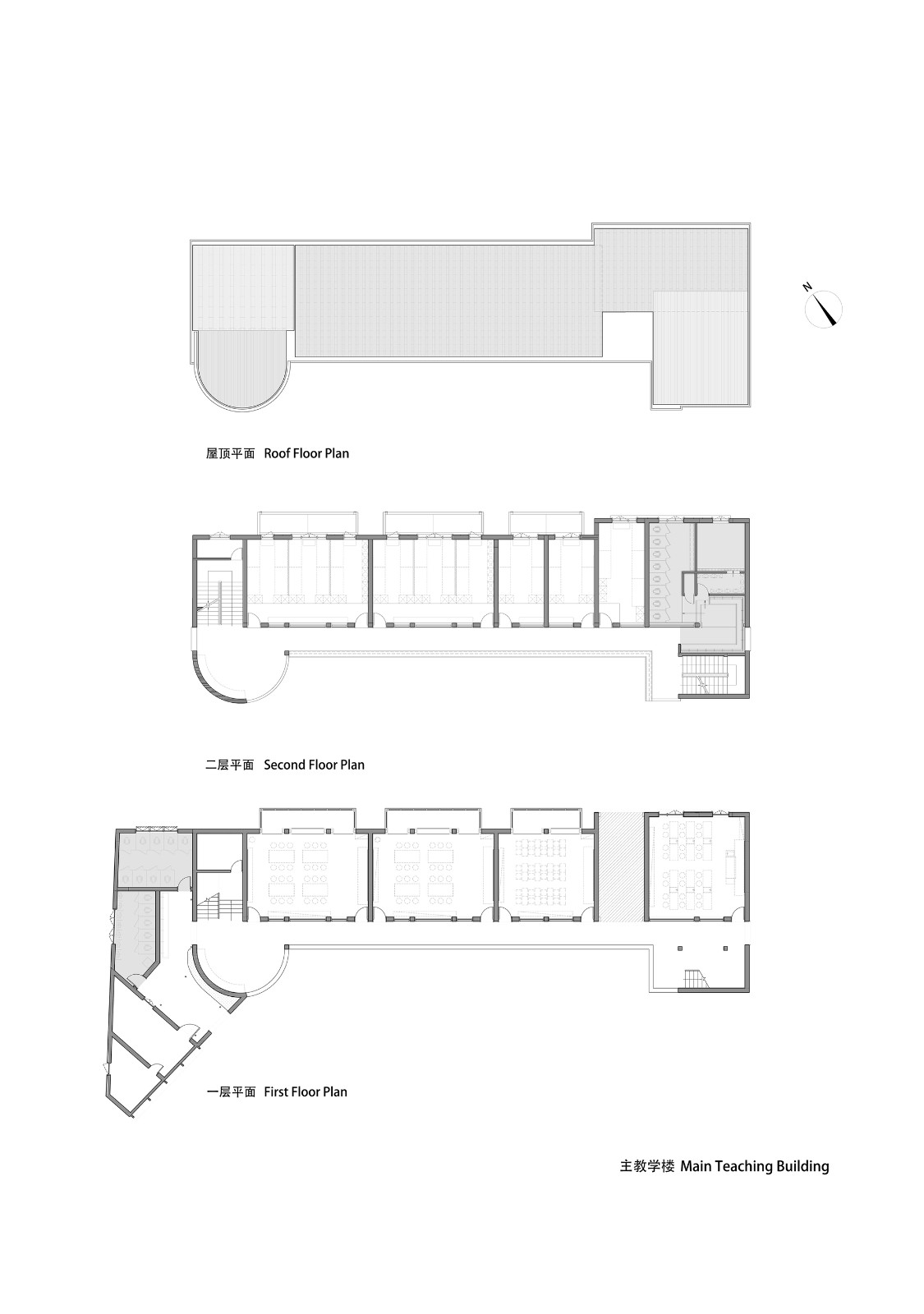
再根据这个列表,推进每一栋建筑的改造方案。比如1号主体教学楼,从功能与安全角度考虑,我们仅对屋顶、卫生间、局部门窗等进行了修改,并将其中一个教室改为主入口,通过一个楔形走廊,联通场地内外。但原立面马赛克砖、地面铺地、校训标语、所有室内黑板,以及走廊门窗等,都维持了原状。



顺势而为孙岙小学原址由3个台地场所组成,主教学楼及其操场位于最低处、一组中小型平房及其室外活动区位于最高处,中间由一个微小单体建筑院子过渡。



我们顺势保留了这三个台地的基本关系。再根据流线需要,于主教学楼北侧增加了第4台地,即入口广场。并在中心位置通过平台改造,树立了一处微型阁楼,作为全场核心构筑物。


最终整个建筑群形成具有明显疏密对比的空间关系:每一组建筑都紧凑黏连,并且都附带一个较大的开放场所,其间由趣味多样的台阶与坡道过渡。




乡村与棚子孙岙小学改造后将作为一个课外研学营地再次开放,届时会有上百名学生同时吃住数天。



在青山与乡村的环抱下,孩子们一定是主要在户外玩耍的,但原址中又缺乏可以遮阳避雨的半室外场地。因此“一顶乡村大棚”的概念被我们继续借用,以解决问题。和以往的实践不同,这次是一座胶合木构与PC阳光板的透明卷棚。一是想它尽可能的轻盈活跃、赏心悦目,从具有沧桑沉淀感的原主体建筑群中脱离出来, 形成自己的话语。二是充当建筑与操场之间的空间传递者,让老师与孩子得以在棚下开展多种教学互动模式。三是这个类型来自于乡村最常见的农用大棚,其最主要的特点就是充满阳光,却不至于过分曝露,毕竟那棚子上的阳光雨露,及其透射出的青山绿水,是乡村能给于城市孩童最重要的礼物。


尾声作为深山中难得的整体工程项目,工地上请的师傅大都是本村人,闲聊中得知孙岙小学也是他们儿时的母校。这里的模样:那些校风校训,马赛克、铁艺栏杆、大台阶,在改造之后还能保留当年的样子,众人都有些感慨。希望我们的更新,能给新人带来生气,也能给故人带去回忆。

项目图纸

△模型图

△模型图

△手绘图

△生成图

△功能分区图

△总平面图

△主教学楼平面图

△主教学楼立面图

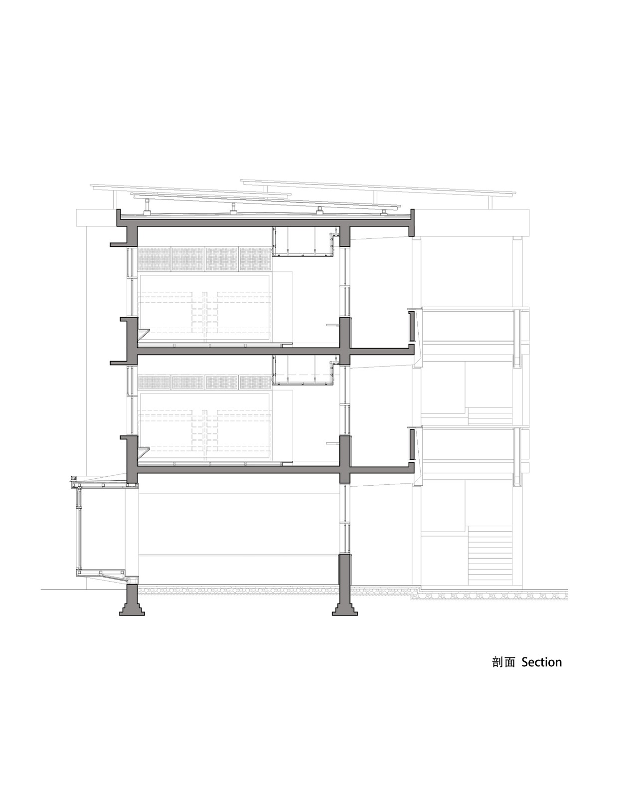
△主教学楼剖面图

△住宿楼平面图

△住宿楼立面图

△卷棚平立剖

△卷棚剖透视

△整体剖面图
项目信息
建筑师: 造作建筑工作室
面积: 3000 m²
项目年份: 2023
摄影师:吴清山
厂家: Nantong Jiazhu Architecture Technology Co., Suzhou Donghong Metal Material Technology Co., Ltd
主创建筑师: 沈悦、戴文竹
设计团队: 雷金剑、盛仁、熊乐霜、陈丝丝、赵紫薇、章莹、孟文涛
结构设计: 周建成
委托方代表: 缪华勇、李茂杰
运营方: 保研品匠
委托方: 宝业集团
地点: 绍兴

BIM建筑网





评论前必须登录!
注册