
华南地区顶级国际学校——广州美国人外籍人员子女学校(American International School of Guangzhou,以下简称为“AISG”)完成了建校以来规模最大的项目之一 —— 科学城校区升级改造。基于对未来跨学科、个性化、实践性学习方式的展望,我们在“已知”的空间中拓展出“未知”的可能性,通过创新性方案解决了场地限制带来的巨大挑战,在学生和教职工无感知的情况下完成“闪转腾挪”和“无中生‘有’”的彻底改造。
“这是一个面向未来的校园规划,改扩建项目连结了科学城校区和二沙岛校区,将之转变为世界级的学习空间。”——Kevin Baker,校长,AISG
根据AISG前瞻性的规划,我们需要在以原有建筑和场地2.9公顷为限制的空间内新增一条室内跑道、三个运动场、一个网球场、一个25米泳池、屋顶运动场及地下停车场等,同时完成教学、媒体中心、餐厅等校园空间的品质提升。通过对空间功能进行全面梳理,新校园被清晰地规划为教学、艺文、体育休闲三个综合体。空中连廊将三者紧密串联,从而达成组团内的高效集成以及组团间的便捷联通。


公共空间多重效能原教学楼空间的组织和功能都相对封闭单调——建筑围合出一个室外庭院形成“回”字形布局,各空间之间的交通联系也并不顺畅。教学楼改造的核心在于将室外庭院改变为室内中庭,并由此挖掘出中庭的三重潜力。首先,我们赋予其全新的图书馆多媒体中心功能,将录音室、绿屏室、小组讨论室、数字媒体制作室等媒体相关功能纳入图书馆中,使其从仅包含“阅读”的单功能、单向度的知识吸收空间进化为文化创造场所。



其次,开放通透的共享公共中庭带来空间的交互与学科的融合,促进学生成为面向未来的协作创新学习者。此外,改造后中庭的交通功能增强,水平和垂直维度上将教学、食堂、运动等校园功能串联起来。一个各方向上可达的图书馆将成为一个名副其实的“学习枢纽”。同时成为学生、教师、家长交流等活动的空间载体。



教学空间灵活变形为适应更加多样化的教学需求和实现空间的集约高效,教室内墙设置为可开启式折叠隔墙,通过可移动家具的引入,有限的教学空间能呈现多样化的使用场景。教室同时具备向外延展的特性,走廊也被纳入学习空间,完成交通空间向学习空间的转化。教室同时具备向外延展的特性,走廊也被纳入学习空间,完成交通空间向学习空间的转化。


“教室内”与“教室外”的灵活变换,满足了多情景化的学习需要,圆桌讨论、小组学习、自主学习、校园路演都拥有了发生的场所。在灵活空间设计的框架下,师生的创造力为空间赋予了更多“未知”的可能性。



教学与改造并行AISG坐落在高密度的城市网格中,场地狭窄,教学繁忙。我们做了详细的研究,将AISG的改造规划为三期进行,在时间和空间上将施工和教学活动错开,提高场地利用率,并最小化对教学的影响,校园的面貌在师生的不知不觉中焕然一新。




人文关怀我们通过柔和的橘色在建筑外立面营造亲和温暖的感觉,热情地迎接学生的到来。室内空间以白色为主基调并点缀以多样的色彩,激发学生的感知力和空间想象力,同时增加了空间的识别性。校园场地被自然荔枝林和山体环绕,通过减少建筑内走道以及优化各空间内窗户的数量和尺度,全新的建筑内外流线确保了充足的自然采光和通风,让学生拥有触目可及的绿色视野。




项目图纸

△模型图

△模型图

△模型图

△模型图

△模型图

△模型图

△模型图

△总平面图

△一层平面图

△二层平面图

△三层平面图

△四层平面图

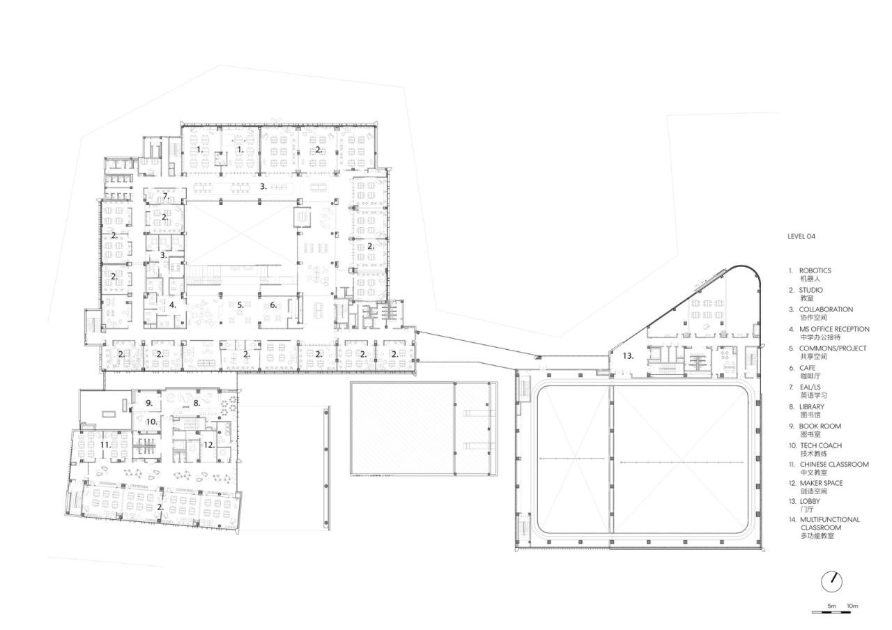
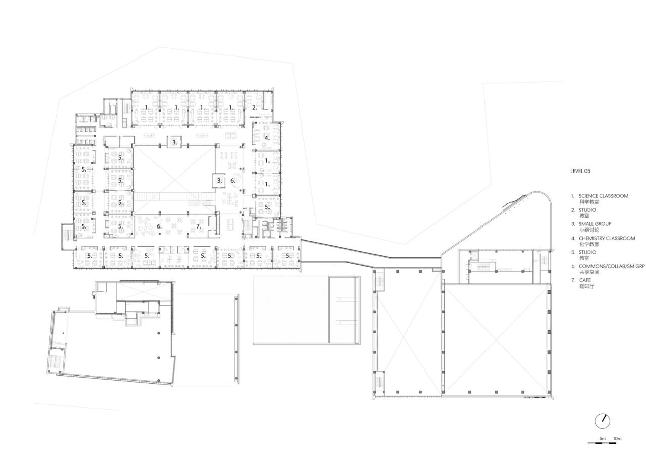
△五层平面图

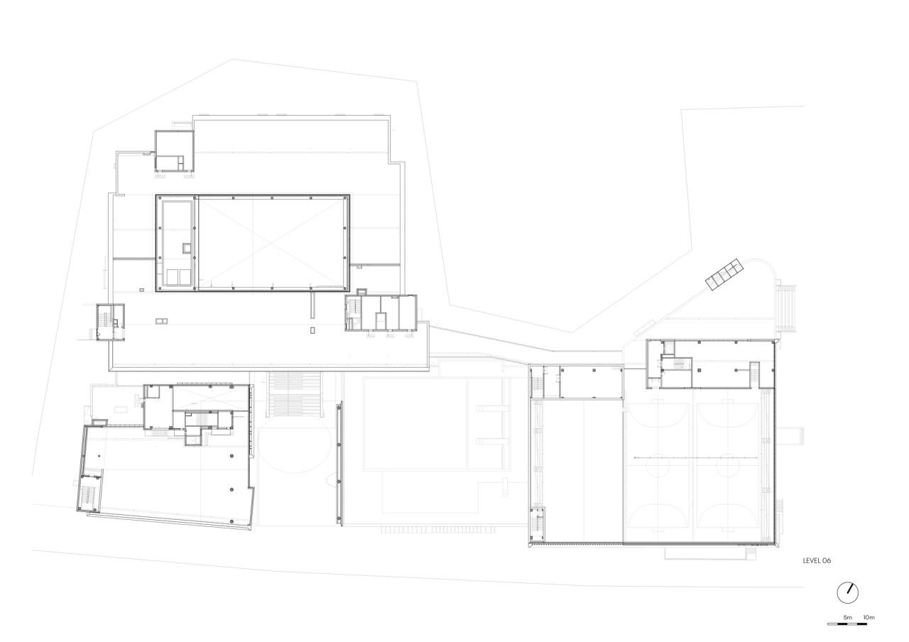
△六层平面图

△七层平面图

△剖面图
项目信息
建筑师:Perkins&Will
面积:38823m²
项目年份:2023
摄影师:方方的田,RAWVISION Studio
厂家: Fórmica,Novalis,PARALLEL
设计团队:James Lu, Aimee Eckmann, Paul Rice, Qi Chen, Zhou Fang, Nick Perry, Daniel Rollet, Chenjian Zheng, Bingchi Sung, Yanfang Sun, Zhechen Yu, Jianmin Fan, Corey Nissenberg, Kate Dailey, Chao Wang, Kun Xiao, Xiaoyu Wu, Mengyue Zhou
施工图设计:广州市设计院集团有限公司
委托方:广州美国人外籍人员子女学校
功能:教育建筑,更新,扩建
结构顾问:宽德工程设计咨询(上海)有限公司
立面顾问:旭密林能源科技(上海)有限公司
厨房顾问:腾卡室内设计(上海)有限公司
地点:广州

BIM建筑网





评论前必须登录!
注册