
▲项目鸟瞰 © 苏圣亮
项目所在地位于浙江省桐乡市红旗漾村,场地原来为当地居民的民居。北侧是大片稻田,南侧有一片生长在水塘中的水杉林。从基地往外看,拥有绝好的风景视野。每逢秋天季节,水杉树叶变成红色吸引了很多人前来观赏。建筑师第一次来场地勘察时,树叶已经落光,但也能感受到它的另一种美感。建筑师在场地的第一感受是想要充分利用好这里的原生态环境,因此,如何将建筑与环境之间的关系进行融合成为设计的重点考量与思考。

▲场地印象 © y.ad studio

▲概念草图 © y.ad studio
项目主要作为餐厅使用,融合了一个公共驿站及观光塔的功能。在确定主入口及后勤动线后,建筑师将功能分散后植入四个独立体块,围合出内向庭院。体块之间用连廊及垂直楼梯进行平行与立体的串联。就餐空间放置在紧邻池塘及水杉的区域,局部标高进行了抬升,层叠的方式使得就餐空间拥有了更好的景观视野与亲水空间。建筑以外的场地范围则重新进行了围合,置入了门廊、曲幽小径、游览栈道及活动草坪等。通过设定道路与游览动线,让场地、建筑、人与水塘和水杉林形成更紧密的互动关系。从建筑中望出的视野、刻意营造的光影氛围,设定的行走感受,都是人在建筑和自然中发生关系的途径,将人和外界联系在一起。

▲建筑鸟瞰 © 苏圣亮

▲隐匿在水杉林中的餐厅 © 苏圣亮

▲晨雾中的餐厅全貌 © 苏圣亮

▲拾级而下的入口门廊 © 苏圣亮

▲跟环境交织为一体的餐厅入口 © 苏圣亮

▲层叠的户外亲水平台与观景平台 © 苏圣亮

▲亲水平台与水塘及水杉林穿插 © 苏圣亮

▲建筑与环境融为一体 © 苏圣亮

▲餐厅望出的视野,让人在建筑中和自然中发生关系 © 苏圣亮
为了适应江南建筑风貌与多雨的气候环境,在屋顶的设置上建筑师仍然采用了坡屋顶的形式。景观塔造型如树状般一同融入高耸的杉树林树冠之中,并与屋面弧线形成呼应关系。建筑屋顶通过扭曲,弧面双曲的方式来突破常规且单调的单坡形式。同时建筑师利用弧面交接的屋脊进行开口引入自然光线,让光影沿弧面倾泻而下,营造空间氛围的同时可以让室内空间随天气、日光变化而呈现不同的情绪。

▲餐厅东立面,屋面与观景塔的形式呼应 © 苏圣亮

▲屋面与廊道局部 © 苏圣亮

▲屋脊光影的导入 © 苏圣亮

▲屋脊光影的导入,让光影沿弧面倾泻而下 © 苏圣亮

▲观景塔全貌 © 苏圣亮

▲观景塔近景 © 苏圣亮

▲观景塔内部仰望 © 苏圣亮

▲观景塔内部视角 © 苏圣亮
作为主要立面材质的竹钢木,其较为暗沉的颜色能与周边环境、植物相互映衬,协调且不突兀的消隐在环境中,营造出极致的宁静感和与自然的关联感。当人身处其中会感受到自己被树林环绕。景观塔也被处理成黑色,当人置身塔上时,在这个高度俯瞰田野与树林,仿佛置身树冠之上,让人可以与大自然产生更紧密的连接。

▲二楼景观露台,让人与杉树林发生关系 © 苏圣亮

▲一楼廊道灰空间 © 苏圣亮

▲二楼廊道灰空间,与自然的框景视角 © 苏圣亮

▲二楼廊道灰空间,与自然的框景视角 © 苏圣亮

▲二楼廊道灰空间,与自然的框景视角 © 苏圣亮
项目图纸

▲总平面图 © y.ad studio

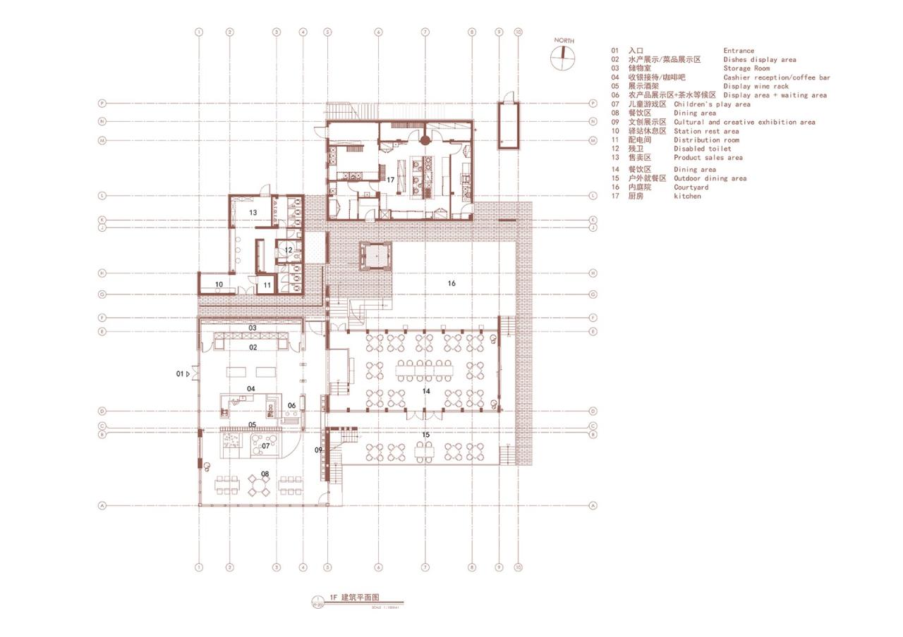
▲1F建筑平面图 © y.ad studio

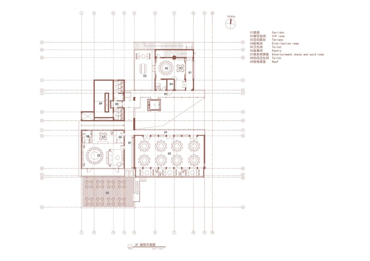
▲2F建筑平面图 © y.ad studio

▲8.3m建筑平面图 © y.ad studio

▲11.3m建筑平面图 © y.ad studio

▲13.9m建筑平面图 © y.ad studio
项目信息
项目名称:桐乡濮院红旗漾杉林部落共享餐厅
项目地址:浙江省嘉兴市桐乡市濮院镇红旗漾村
建设单位:桐乡市濮院镇新农村建设开发有限公司
EPC总承包:乡伴集团
设计单位:y.ad studio|上海严旸建筑设计工作室
设计院:上海时代建筑设计院
主持建筑师:严旸
设计团队:吴可嘉、赵思缘、严昱、霍达(结构)
设控团队:仇银豪、甄小龙、赵娟、王孟然、谭德焚、范莹、陈义东、张瑾昱
建筑面积:1318.38平方米
施工单位:上海景域园林建设发展有限公司
施工管理:晏忠华
主要材质:竹钢木、木饰面板、艺术肌理漆、锰镁铝金属瓦、铝板、青砖
设计时间:2021/12-2022/07
建造时间:2022/07-2023/08
摄影版权:苏圣亮

BIM建筑网





评论前必须登录!
注册