
商业-文化建筑
无锡锡宝行为宝马品牌的汽车销售服务4S店,为一集中式的单体建筑。设计尊重并旨在延续江南传统的建筑文化。建筑中部设有一处转译自传统江南民居中的内庭院,四周有楼梯环绕可达屋顶,顾客在选购汽车产品的同时亦可观赏庭院景观。建筑外立面和内庭院立面使用代表传统材料意向的白色陶砖。白色也是宝马品牌的企业标志色。


平面功能
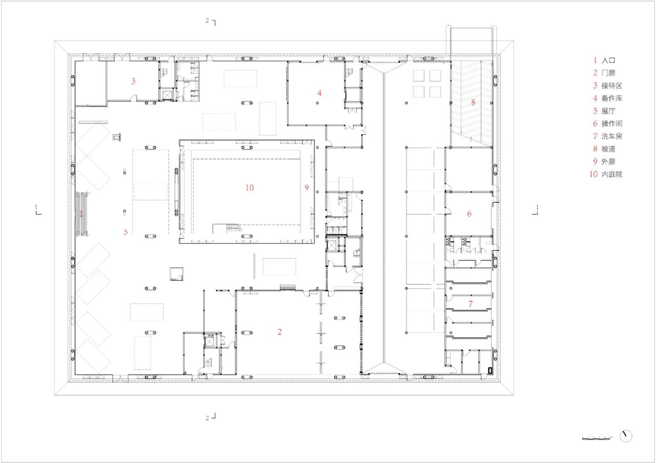
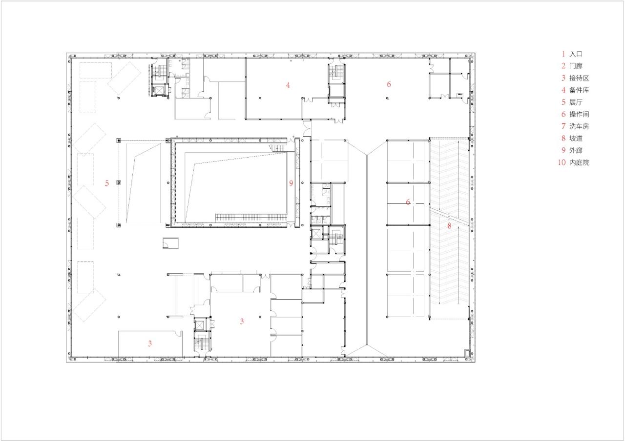
建筑平面方正规整,根据功能主要分为东、西区:一层西区为新车销售展厅、销售中心和售后接待,东区为维修车间;二层西区为二手车销售展厅、售后办公,东区为维修车间;三层西区为经销商办公,东区为车库。汽车坡道位于东侧靠外墙。



结构体系
水平构件采用“清水混凝土藻井”双向密肋梁板,设计缘起中国古典建筑中的藻井,梁格模数为 1.35米×1.35米,与钢柱网模数以及幕墙分格模数统一协调。首层展厅采用V 型钢柱,柱网尺寸为8.1米,支撑覆盖范围大,空间开敞且个性独特,利于汽车展示;二三层转换为钢柱,适应车间、车库、办公的使用需求,空间可以灵活地进行布置。在结构构件中,檐口、梁板均为清水混凝土,不作修饰,力图展现建筑本身真实的自然肌理和结构美学,同时展现材料耐久性的优势。




立面表皮
锡宝行的外部形象结合现代材料与(传统)建造工艺,选择粉白空斗砖墙的砌筑肌理。围护体系采用双层表皮,外侧白陶砖镂空墙参考江南空斗墙的技艺,采用宜兴现代工艺制成的灰白色陶砖,采用干挂体系叠挂。一、二、三层采用三种不同密度的镂空比例,以满足由下至上各层空间由于不同功能的带来的开敞性要求。立面肌理变化丰富,为室内营造多层次的光影变化。内侧通透的玻璃幕墙不仅作为气候界面,又具展示功能。双层表皮及材料相辅相成,使室内的热舒适度和新鲜空气达到动态平衡。


景观设计
锡宝行的景观设计灵感源自中国合院,又通过立体式院落的组织赋予空间更多层次。自内庭院的“水院”——竹林倒影下的金鱼池,经盘旋而上的楼梯至二层平台,最后到达屋顶景观平台。


节能设计
锡宝行采用多种建筑节能技术,致力于全方位的延续和表达宝马的节能绿色环保价值观:
1,节能节水节材料项目包括,土建装修一体化、地源热泵空调、洗车水循环处理设备、光伏发电、LED照明等。
2,绿色环保项目包括雨水回用系统、玻璃幕墙光污染控制等。



项目图纸

△一层平面图

△二层平面图

△立面图

△立面图

△剖面图

△剖面图

△墙面细部
项目信息
客户:无锡锡宝行
地点:江苏省无锡市惠山区天明路2号
主持建筑师:张永和
项目团队:梁小宁、柳超、张博文、程艺石、姜一
施工图设计:无锡轻大建筑设计院
建筑结构:钢结构,钢筋混凝土结构
基地面积:14819㎡
建筑面积:23929㎡
建筑高度:22.2 m
设计周期:2019-2020
建造周期:2021-2023
竣工时间:2023

BIM建筑网





评论前必须登录!
注册