
八卦中的每一卦都是一种可能性,一种事件的可能,一种存在的可能,风水轮流转所赋予的想像,是一种如浮云般的建築。 建筑模型

概况
云艺术中心,坐落于嘉兴百步开发区核心区域,云馆艺术中心未来将开放给公众使用形成集合产业文化、设计交流和艺术策展的创意中心。在中国设计产业艺术中心,如何有效利用工业土地,延续当地文眿,建立起,建筑与环境共生的关系,是一个重要的课题。
聚落

设计理念延续整体园区规划理念,将传统江南水乡特色的小桥流水,转换为南北贯穿的动线系统,与周围自然环境相连接,在园区北面生产基地,释放出地面层的机能使用,在二层建构出一种开放且连续的游园动线。打破常规方正的工业厂区建筑表面,在园区南侧末端的路径端点,构成了艺术核心,一座南北贯穿、回转上升的天桥化身成的“八面体”,连结七家国际建筑事務所协力完成新的设计聚落,未来汇聚公众力量形成了一股能量场域。

设计聚落由林琮然(中国台灣)协同七家国际知名的建筑设计事务所包括:里伯斯金(美国),娜德塔·塔格利亚布(西班牙),藤本壮介(日本),亚历杭德罗.札拉波罗(西班牙),承孝相(韩国),武重义(越南)郭锡恩和胡如珊(中国上海)等9位国际著名的建筑师共同打造。
八卦

“太极生两仪,两仪生四象,四象演八卦”,“ 万有,万事,万物”皆莫能跳脱出纲纪群伦,故而,八卦有通彻天地之能,可谓之—大道之源。大道释然,莫言始终,周而复始,万象包罗八卦的精神也符合企业发展的精神。

云馆艺术中心深受中国传统八卦哲学的影响,八卦象征阴阳平衡、生命循环以及万物变化无穷的规律。建筑本身的原型设计参照了八卦亭的概念,既保留了公共使用的传统属性,又展现出开放式的标志性,旨在连接全球设计能量,促进多元创新的发生。
转山


云馆建筑将人行动线相连交会于此,形成逐级退让的曲折坡道,建築的表面由人的行動構成,以打破現代建築单调与僵硬的方形,讓逐步往上的路径构成了建筑的面貌,藉由不断转动而上,形成峰回路轉,也是移步景異,。三层平台在不同面向,各自保有打开的区域,供人門自由进入展廳内,漫步走上偌大的屋顶花园,在此处可一览整个园区,最通过顶端的开口进入内部。人们顺着如同漩涡的造型柱体逐层往下,分别到达不同的樓層,内部佈局逻辑,中央为垂直交通,四面八方的环形流线可抵达不同的功能,包含报告厅、党建展厅、企业博物馆、多功能艺术中心、设计师工作室..等,人们可以沉浸到不同空间中,自由漫游、逛 展,体验场景中的自在与独特性。

工料

建筑整体外观为转动的金属表皮,是由企业自主研发生产的铝板,预制切割弯折并自主施工,体现中国制造精工细做的文化。每一片折面上有着连续不断凹折线,形成的光影变化体现出灵动的艺术感受。户外花钢岩地面构成往上盘旋的通道,地面与外墙两者间形成缝隙,可以由外部引入漫射的光线,与建筑内部相连,创造展厅舒适参观体验。


中央主中庭,由中空的玻璃结构体由外而内贯穿, 表面上可供开合的玻璃窗兼具着通风与采光的功能。黑色旋转钢板楼梯以中央结构体支撑,连接一至三层楼面,每个楼面延续八卦的形态,切分成一层层的切面迎向天空。天光顺阶洒下充满整个中庭,时刻透露出的光影变化, 映射着下方的黑白拼花的水磨石、白墙与木阶梯,共同打造极具仪式感的天地剧场,外部刚硬的形象与内部温暖的光线,演绎着刚柔并济的东方建筑,建筑内部与外部环境融为一体。

这座不断旋转的云馆仿佛是在江南土地上的一个八卦漩涡,强而有力的改变了整个开发区,机械且单调的气氛。充满人性尺度的户外天桥引领人们通往建筑,讓人们与周围的环境,建立更友善的关系。

项目图纸

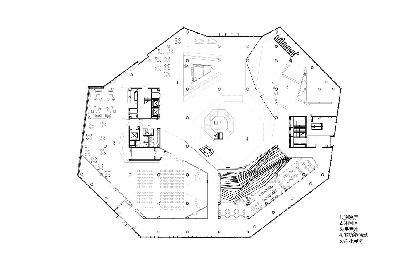
△一层平面图

△夹层平面图

△二层平面图

△三层平面图

△屋顶平面图

△北立面图

△东立面图

△南立面图

△西立面图

△剖面图

△剖面图

△友邦立面图

△友邦展览馆立面展开

△友邦标准节点

△展馆幕墙节点图

△幕墙剖面图
项目信息
项目名称:友邦云艺术中心
项目所在地:浙江省嘉兴百步开发区
建筑室内设计单位:阔合CROX
设计团队:林琮然、陈冠宇 、Saunaam Yip、Darcy、周天野、朱珈仪、杨维玲、林森、Yusi、
李本涛、杨维玲、万若珈、顾博闻、段美晨、莫抒琳 、周晨媛 、朱飔晗、黄培耿、陈灿
业主单位:友邦集成吊顶有限公司
设计周期:2014-2019/ 8月
完成时间:2024/2月
建筑面积:10300㎡
施工图设计合作单位:温州设计院
幕墙设计单位:旭密林幕墙技术公司
桥梁设计单位:浙江恒欣建筑设计股份有限公司
照明设计:Dark Light lighting Design
建筑材料:铝板, 玻璃,水磨石子,木板地面
摄影:胡艺怀
影像:孫中川

BIM建筑网





评论前必须登录!
注册