山水人文整合
于在建的青龙山旅游度假区入口区设置游客中心,是整合这里山水人文的一个动作。设一大水面倒映山川建筑;立一笔架山形室外展廊作照壁;建龙形建筑连两岸山势;布萌虎乐园、舞台等于其间丰富人气空间。共生建筑团队以传统风水格局出发,诗意排布文房四宝意象,让文旅设施与山水画意共生。









传统转译
蜿蜒起伏的整体线性瓦面屋顶;弯折自然形成的南北院落;由“廊”、“架”、“间”、“榀”传统木构发展出来的空间组合及构筑方式;瓦顶、石木墙及台阶三段式的建筑立面形式,皆与当地民居建筑神似,却也进行了当代化的转译。游客大厅背面布置为旅游展厅,屋顶转化为观景平台,此处汇集三面坡顶下来的雨水,设计师将水汇合进从山上引来的自然河水中,一起流入大水池,设计了立面瓦墙、龙头吐水和块石散置等元素。这里也成为向“四水归堂”等传统空间致敬、建筑与自然共生的“天水庭院”。(图10)(图11)(图12)(图13)(图14)(图15)(图16)(图17)(图18)(图19)










居游聚落
屋顶的高低起伏,让其下的空间可操作为一种丰富的状态,成为一个开合有度的聚落。建筑榀架的“廊”为交通空间,由楼梯和廊子形成,上下左右游动,串起各处功能房间和平台,设计师称之为空间之间的“双龙戏珠”。有屋檐、廊、及体块之间的虚空间,包括龙尾部分开放的观演台阶空间,组成一个变化丰富的开放系统。整个建筑以一种易识别、开放、谦和、景观丰富多变的姿态迎接到访的游客们。










表意建筑
作为一个面向普罗大众的游客中心建筑,建筑师直面“表意建筑”,让建筑以民众易亲近识别的形态出现。在青龙山旅游区的上位规划中,“龙”文化以“蛟龙在水”、“见龙在田”、“游龙在山”等分段表述。因此在“蛟龙在水”位置,建筑师直接以空间形态答题。建设过程和建成后,收到了领导及普通大众的盛赞,雅俗共赏之。






项目图纸

△基地位置示意图

△总平面图

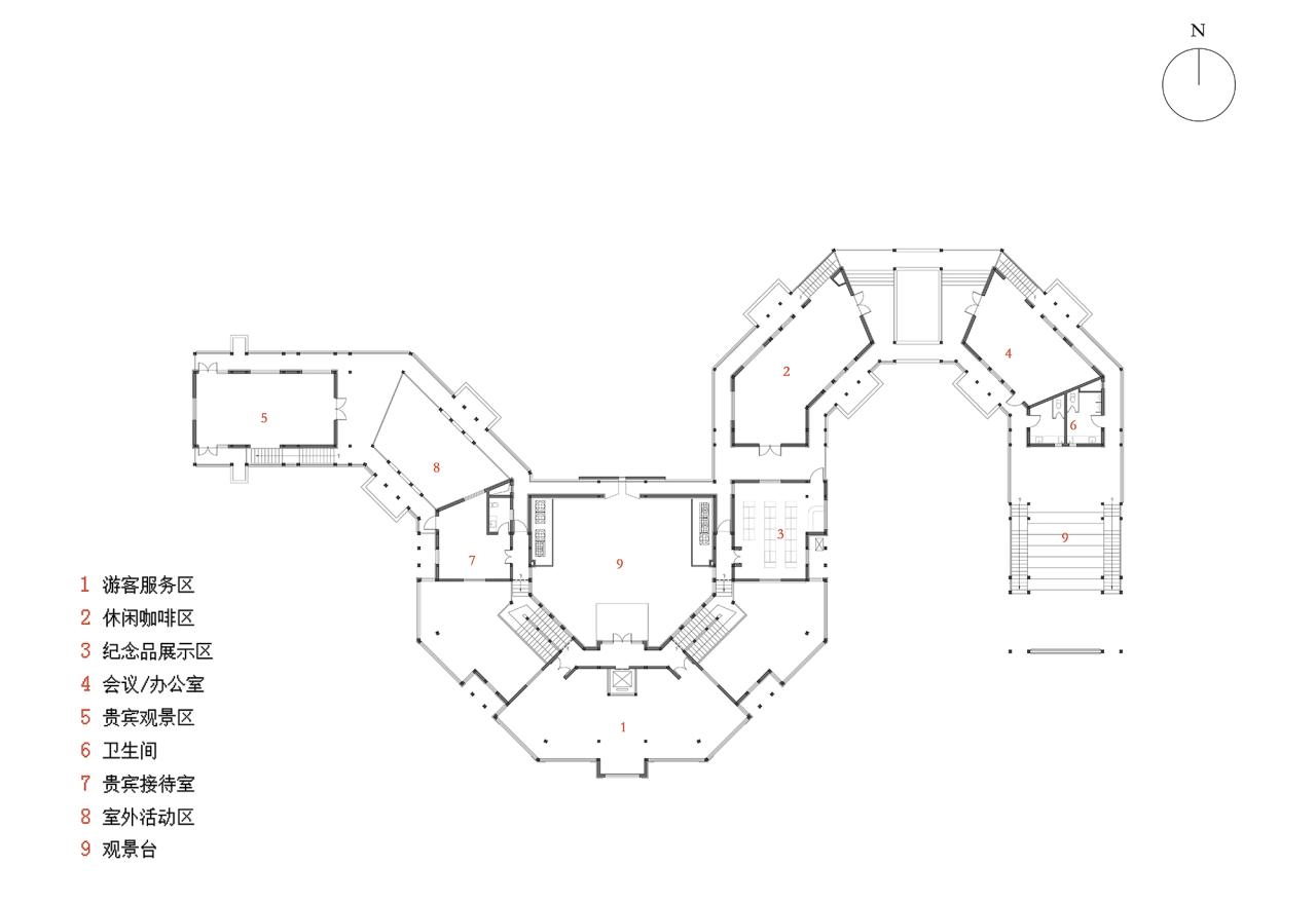
△一层平面图

△二层平面图










项目信息
项目名称:康县全域旅游游客集散中心
项目类型:建筑
项目地点:甘肃省陇南市康县长坝镇吴坝村
设计单位:Farmerson Architects共生建筑设计(北京)有限公司
设计内容:建筑、室内及标识系统
主持建筑师:房木生
设计项目组:苏亚玲、黄寒国、王坤鹏、修琳、马家乐、严景业、赵云飞、白雪峰、刘芳、刘玉敏、刘欢
景观设计单位:房木生景观设计(北京)有限公司
施工图合作:北京华巨建筑规划设计院有限公司
施工单位:银广厦集团有限公司
业主单位:康县文体广电和旅游局
设计时间:2022.1-2023.3
建设时间:2022.5-2023.10
建成状态:建成
建筑面积:2045平方米
建筑材料:钢材,仿木铝板、灰黑色青瓦、玻璃、砂岩、花岗岩、无机磨石、外墙涂料等
图片摄影:共生风景

BIM建筑网





评论前必须登录!
注册