项目背景:

△改造之前的坛丘缫丝厂 @平介设计

△历史背景 @平介设计
苏州盛泽的丝绸生产与贸易源远流长,植桑、养蚕、缫丝、织绸的历史可追朔到公元前。从盛唐贡品到明清“盛绸”,盛泽生产的丝绸早已蜚声华夏。解放后,盛泽丝绸从传统手工生产逐步发展到工业化生产,创建于1969年的坛丘缫丝厂就是盛泽早期蚕丝工业化的标志之一。随着技术进步和社会发展,坛丘缫丝厂逐步退出历史舞台。近年来,在长三角一体化发展的推动下,盛泽正在经历经济飞速发展与丝绸产业升级。在当地城市更新政策的推动下,坛丘缫丝厂也面临转型升级。
丝路盛泽·数字文化产业园区是由江苏远见文旅控股集团与盛泽镇政府携手合作,项目以缫丝厂旧址为核心,打造了“丝路盛泽·数字文化产业园区”。园区的设计理念围绕美学生活、产业办公和产业服务展开,形成了一个可消费、可体验、可产业化的创新型数字文化产业合作示范区。远见文旅充分利用工业遗存,遵循“城市微更修旧如旧”的原则,通过展示馆系统还原60年代末盛泽丝绸纺织工业的盛景,同时对厂房空间进行改造,打造成当代盛泽丝绸美学创新转化中心、文化演艺空间和文化旅游基地。数字文化资产(IP)的引入,结合“文+产+旅”的新方向,塑造了丝绸文旅的新地标。




△各空间原状 @平介设计
坛丘缫丝厂坐落在苏州市大运河畔的盛泽古镇,保留了相对完整的生产建筑和一系列生产机械。该厂区呈现出新中国转入现代化建设时期的典型江南纺织工业建筑风貌,是代表当地经济与工业发展的典型地标和重要工业遗产。它不仅是盛泽的“城市名片”和“集体记忆”,更是传承中国丝绸文化的重要载体。
设计任务:

△建筑日景 @徐英达

△北立面外景 @徐英达
本次改造的组团将作为示范区为该厂区改造后的产业园区的整体开发提供改造思路。该组团包括了位于厂区核心的选剥茧室、蒸茧车间、煮茧车间、复摇车间、缫丝车间等建筑。产权方希望保留工业遗产建筑未来作为其他用途的可能性并且满足当下文化展览以及产业办公的基本需求。
设计策略:

△入口夜景 @徐英达

△建筑夜景 @徐英达
原建筑组团是大尺度的联排生产车间。其丰富的屋面变化与独特的结构形式呈现出工业建筑的朴素美学与时代印记;独特的高侧窗构造塑造了明亮的内部空间;大型生产机械与残存的红色标语仿佛在诉说着它们独有的历史。面对这些不可再生的工业遗产,我们希望以“弱干预”的方式进行本次改造,尽可能减少对原建筑的拆改,保留其工业建筑特征。该建筑组团西侧的连廊作为危房已被拆除,只剩下联排生产车间。为满足内部通行及管理需求,我们在其西侧新建了公共连廊将彼此孤立的生产车间重新连接。

△改造后缫丝车间大厅 @徐英达

△会议大厅模式 @徐英达

△大厅台阶夹层 @徐英达

△缫丝车间天井画廊 @徐英达

△大厅展廊 @徐英达

△大厅活动台阶 @徐英达
原缫丝车间被定义为展览结合自持办公的复合空间。我们将现存的大型生产机械作为“艺术装置”保留在场所当中,希望唤醒人们的时代记忆。整个空间的布局也围绕巨大的机械展开,在一层形成了三个环形动线。一层是融合了U·Talk讲堂、秀场、咖啡及辅助功能的展览空间,二层是合作伙伴中心的办公与会议空间。一二层通过巨大的模块化阶梯联系,阶梯主要作为U·Talk讲堂及秀场的观众区使用。

△大厅入口视角 @徐英达

△大厅水吧台和书吧 @徐英达

△完整保留的缫丝机床 @徐英达

△缫丝车间展廊 @徐英达

△缫丝车间夹层空间会议室 @徐英达
阶梯下方保留了一台煮茧机和一台复摇机,它们可以在南侧的通高展廊被观看和触摸;阶梯对面保留了一台18m长的立缫机作为U·Talk讲堂和秀场的背景,同时它也限定出走秀的环形动线。在巨大混凝土横梁的高度限制下,两个横向连廊成为整个二层空间得以环通的必要条件。位于二层的合作伙伴中心仅通过一排低矮落地窗便形成一个具有私密性的体量与开放的展览空间形成对比。


△改造后的复摇车间 @徐英达


△改造后的复摇车间 @徐英达
原复摇车间、煮茧车间、蒸茧车间、选茧车间被定义为对外出租的文创办公空间。其中复摇车间有大小两个开间,屋面均依靠拱梁支撑并带有高侧窗,在阳光照射下格外明亮。得益于地面下挖对原始结构钢索下净高的缓解,我们可以在其中植入夹层以满足新增的办公面积需求。大开间通过局部夹层处理形成纵向的视觉引导,同时保留部分原始生产车间的尺度,形成新与旧的对话;小开间通过整体夹层处理将高处的拱梁序列拉近到眼前,重塑空间体验。

△改造后的煮茧车间 @徐英达


△保留蒸馏设备的会议室 @徐英达
原煮茧车间在加固完成后所有的结构柱都凸出于室内墙面,显现出清晰的结构体系。除去入口植入的两个功能模块,我们仅在墙面与顶面做了材质处理以强化原始结构的关系。原蒸茧车间相对封闭,我们通过天窗将自然光引入室内,同时保留了原始的蒸茧机械。原选茧车间是一栋相对独立的两层双坡建筑,屋面由三角桁架支撑,一二层仅靠单薄的直立钢梯联系。我们通过在原建筑楼板缺口处加建旋转楼梯解决了纵向交通的问题。此外,我们也将巨大的选茧机械保留下来,希望它能够作为办公家具的一部分。

△增加的旋转楼梯 @徐英达
坛丘缫丝厂经历过多次翻新,我们希望剥离其在过去修补过程中增加的装饰成分,还原它的时代特征。面对过往翻新及加固带来的混乱界面关系,我们选择保留“骨骼”,重塑“块面”。将梁柱结构的面层进行剥离以突出混凝土结构的粗犷特质;将部分墙面抹灰铲除以还原其红砖建筑的本质;将水泥砂浆补丁覆盖下的加固钢板重新外露表现其经历加固的事实。
技术思考:




△旧机器细部1 @徐英达
结构:原建筑结构属于特殊历史时期的复杂结构并且已经过加固处理。内部新建时我们采用了独立的钢结构体系同时避开了原结构柱及外墙的基础,以避免对原结构产生二次伤害。这样的处理也保留了该项目在未来作为其他用途再改造的可能性。
材料:在处理剥离面层后的墙体及梁柱时,我们使用了水性漆来保持其粗糙质地;在面对屋面开裂剥落问题时,我们使用了水泥漆以延续其工业空间氛围;在新建西侧连廊时我们使用了厂区内危房拆除留下来的红砖作为一种新与旧的连接;此外,我们也通过金属网、钢栏杆等材料来呼应其工业建筑属性。
设备:为保持原建筑梁柱体系及屋面的纯粹美感,所有的设备都采用贴墙或贴梁底走管的方式排布并且结合墙面及顶面的材料变化做了相应颜色的喷涂。
改造启示:

△丝博园看向建筑 @徐英达
工业遗产建筑改造本质上是在与历史对话。如何在植入新功能的同时保留历史印记,甚至保留未来再改造的可能性是无法回避的问题。植入何种功能往往受政府决策或商业策划的影响,但如何保留历史印记则更多地取决于设计策略。保留历史印记并不是简单的重建或修复老建筑,建筑会随着时间的流动而变化。本次改造采用“弱干预”的方式与历史对话,希望将一个时代特征与经济民生的缩影重新转型为创新型文创园区从而促进当地发展。
项目图纸

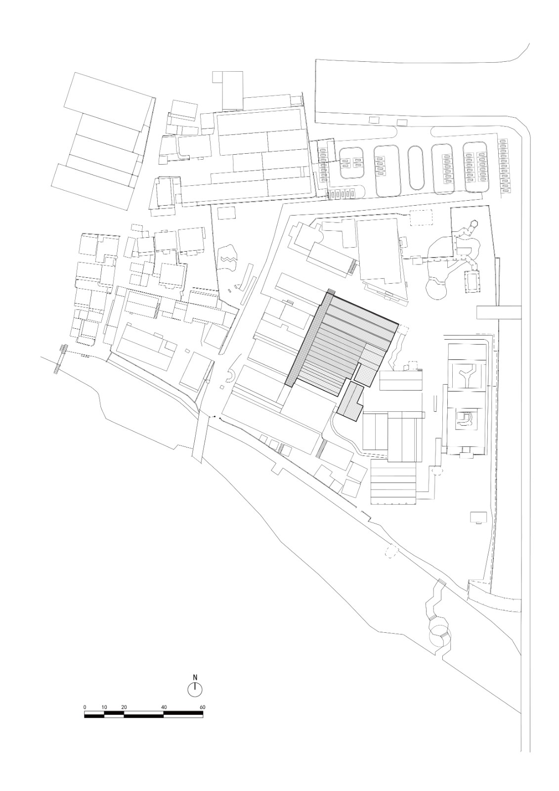
△总平面图

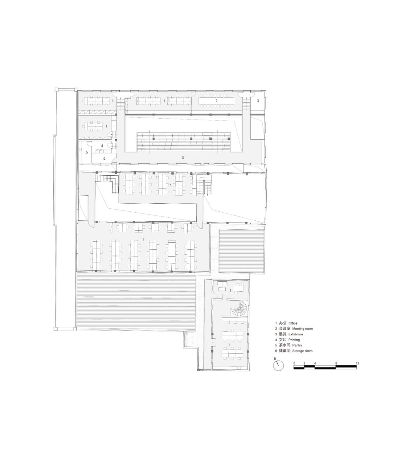
△一层平面图

△二层平面图

△剖面图

△轴侧分解图

△模块化阶梯示意图
项目信息
项目名称:丝路盛泽·数字文化产业园区示范区:盛泽坛丘缫丝厂改造
策略指导:程宏 (远见文旅)
业态规划:江苏远见文旅控股集团
设计单位:平介设计,远见文旅
建筑面积:2300㎡
项目设计&完成年份:2022;2023
设计团队:王海东,李文靖,杨楠,顾王禧,孔祥鹏
结构/水电设计:上海衡泰建筑设计咨询有限公司
摄影版权:徐英达
业主:江苏远见文旅控股集团
项目地点:中国江苏省苏州市吴江区盛泽镇坛丘丝厂路12号

BIM建筑网





评论前必须登录!
注册