
幼儿园是孩子人格塑造和养成、完善对世界认知的第一站,设计以“林上云屋”为理念,塑造学前教育新图景,为孩子构建充满幻想的乐园,并促发新的教学理念在空间中的运用。



一处回归本真、怡然烂漫、充满探索的“无限”之园上海市蓝湾幼儿园坐落于奉贤区近郊,总建筑面积8735.58㎡。包含15个班级单元、6个专用活动教室、220㎡多功能厅、办公与生活配套用房等功能。


采用层次丰富、秩序而变化的错动式布局,综合解决高密度城市中的日照和功能难题。将阳光、绿意和微风纳入其间,让孩子感受泥土的芬芳和自然的气息。空间层层穿梭,交织渗透,激发孩子探索兴趣。
首层基座式的木质屋舍,具有根植土地的肌理质感。上部由穿孔波纹铝板包裹的漂浮云屋,犹如梦幻的云中城堡,并以连廊和平台串联这些班级单元。高低变化的大小窗组合保证了充足的光照和通风,带着朦胧的透光效果,充满童趣。分类统一的窗户尺寸也降低了施工复杂度。屋顶以两种坡度形成连绵起伏的第五立面,生动活泼,也成为肌理单一的住区中的视觉亮点。



建筑与环境的共融自然与建筑彼此嵌合相生,廊院相接带来通达游走和视野的多向通透,也形成多个凹凸的空间界面变化,引领孩子们探寻尺度与体验的关联与异同。首层可开可合的活动室也带来模糊边界的内外渗透,与院落共同形成连通而变化的不受限空间,亲近自然,无拘无束。



各具特色的庭院世界地面景观围绕六个主题庭院展开,各具特色。不同的庭院犹如一个个微缩的多变世界,每个孩子都可以找到自己喜爱的一方天地。阳光、土地、草、树木……自然的气息具有无穷的魅力与力量,自然里的草木荣枯、虫鸣蝶舞、风吹雨落都有助于建构孩子们对世界的认知。




温馨诗意的宜人内景简洁明亮的班级设计为未来大量家具布置与灵活使用方式提供良好的空间,也有效控制装修成本。天窗、落地窗、高窗、彩窗、小视窗的相互组合,让孩子从不同的视野高度探看外部景象。光线从天窗落入室内,带来光影的变化。









项目图纸

△轴测图

△总平面图

△一层平面图

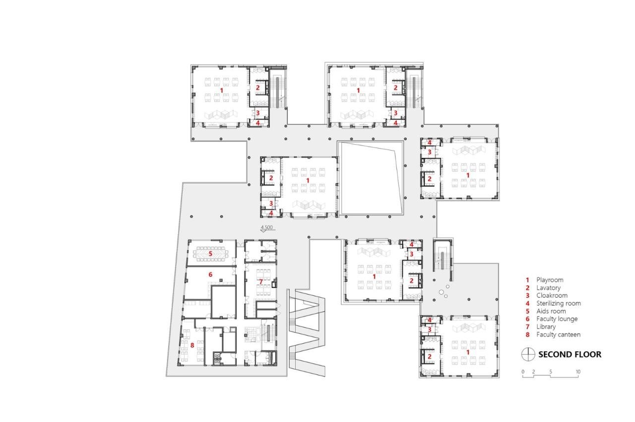
△二层平面图

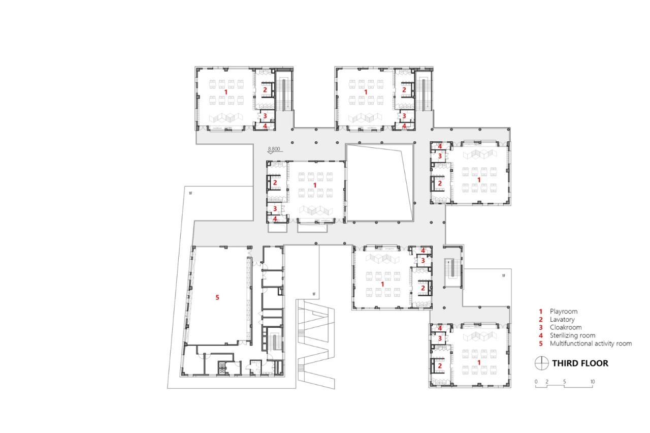
△三层平面图

△立面图

△立面图

△剖面图

△剖面图

△细部结构大样图
项目信息
建筑师:华东建筑设计研究院 丁顺团队
面积:8735m²
项目年份:2022
摄影师:CreatAR Images
主创设计师:丁顺
设计团队:赵筱丹、吴冰鹏、王立靖、单国斌,周岚,刘浏、张琬舒
结构设计:华东建筑设计研究院有限公司项目十七部
给排水、暖通设计:王庆华
电气设计:王溥
景观设计:华东建筑设计研究院有限公司丁顺团队
施工方:上海市浦东新区建设(集团)有限公司
业主:上海临港经济发展(集团)有限公司
地点:上海

BIM建筑网





评论前必须登录!
注册