
△山脚下的心灵驿站 ©潮声Anson
重塑场所气质
高山书屋位于惠州市南昆山国家森林公园的一个海拔800m的山谷之中。项目基地紧贴着山脚,侧对着一片池塘,被群山所环抱。场地踏勘时,正处夏秋交替之际,满山的青翠倾泻而来,山谷里吹来的风,掠过池面丝丝冰凉。
场地原有建筑为双层坡屋顶砖木结构,屋檐最低点高度仅2.2米,其在环境中谦卑和近人的尺度,以及材料自身质感的彰显,都适得其所,这是我们初次到现场的深切感受。这些特征也成为我们一直想去保留的核心,贯穿在整个设计过程中。

△场地原有建筑与周边环境的关系©城外建筑
由于原有建筑体量已不能满足新的功能需求,经过谨慎评估,很遗憾地将整体建筑进行拆除重建。带着这份惋惜,我们设想延续原有建筑的气质,以人字屋面为原型,用高低不一的两个单元形成新的连续屋面形式,与墙体乃至地面连成一体。重复叠落的屋面使建筑体量得以极大地削减和弱化,让建筑嵌入山体之中,回溯建筑与环境的关系。

△新建筑延续原有建筑与环境的对话关系©潮声Anson

△书屋生成过程©城外建筑

△从森林中探出的书屋©潮声Anson
如果说外部的整体化壳体是对原有建筑的抽象转译,那么书屋中央的木盒子则是对书架最原始形式的具像呈现。其以正方网格的形式,强化传统书架的意向,外部的山型壳体作为灰空间,包裹着中间的书架,两者之间的空隙用玻璃幕墙填充,通过透明的幕墙能够望到后山的树林,使书屋处于室内和室外之间。

△被“山”型外壳包裹的木盒子©潮声Anson
书屋的不同朝向对应着不同的界面属性,正向的悬挑外廊漂浮于水池之上,是对场地原有建筑露台形式的延续,驻足于外廊之上,与路上过往的人隔水相望。朝道路侧为了隔绝噪音,采取全封闭的形式,仅开了三个大小不一的窗口,顶部的天窗为室内带来均匀的漫反射,而在人视角的高度位置,结合座椅和窗台开了一个矩形窗,让室内外的人通过这个长窗互为框景。书屋面向池塘一侧被高耸的树林所包裹,一个全玻璃盒子破屋面而出,以最轻盈的姿态漂浮于树梢之上。

△悬浮于水池之上的外廊飘台©潮声Anson

△面向道路的窗口 ©潮声Anson

△破屋而出的玻璃飘台©潮声Anson
书屋主入口处延续场地原建筑低矮檐口的方式,净高仅为2米,以刻意压低的方式取得观赏自然的平和视角,也是进入内部空间前的欲扬先抑。同时延伸正向的外廊转至主入口平台,形成连续高度变化的转角灰空间,模糊室内外的空间界限。


△连续变化的转角灰空间 ©潮声Anson

△刻意压低的入口以达到亲人尺度©潮声Anson

△大屋顶覆盖下的灰空间 ©潮声Anson
外部空间转化为内部空间
由书屋连续叠落的屋顶和中央插入的木盒子,自然地分割形成内部空间,木盒子内部是下沉式的活动区,由较低侧屋顶和木盒子围合而成的是开放阅读空间,而较高侧的屋顶和木盒子之间冗余的高度,自然的成为阁楼冥想空间。

△书屋功能空间分析©城外建筑
用整体书架作为空间的分隔,嵌入到连续的屋面之下,首层为开放阅读区和下沉式活动区,围绕着中央楼梯形成环游路径,漫步其间,透过不同的界面和窗口,与周边的风景形成对话。

△开向森林、天空和道路的窗口©潮声Anson

△朦胧光影中的书架空间 ©潮声Anson
沿着书架中央的楼梯踏步而上,后山树景正对路的尽头,犹如行走在书山之中,所谓书山有路之意,再转角来到阁楼空间,正对着开阔的森林景观,高山书屋再现了林中登山的空间体验。

△书架中央的楼梯 ©潮声Anson

△楼梯尽头为开阔的森林景观 ©潮声Anson
书屋的二层是被连续坡屋顶包裹的阁楼空间,尺度上相比首层与身体更为相近。大小不一的天窗,全通透的落地景观窗,开向首层的长条洞口,行走或盘坐其中,天空、森林和活动的人,同时流动在空间里。

△阁楼冥想空间 ©潮声Anson

△连续屋顶和天窗 ©潮声Anson
“登山”路径的最后一站为破屋面而出的玻璃盒子,漂浮于树梢之上,置身其中完全被树林包围,以最小尺度的距离感受自然,达到空间体验序列的最高潮。

△嵌入树林中的飘台 ©潮声Anson

△漂浮于树梢上的玻璃盒子 ©潮声Anson
材料与结构
在材料上的选择,首要考虑的是如何在环境中,弱化屋顶和墙体一体化形成的体量压迫感,最终采用220*220mm的深灰色钛锌板金属瓦,能够在尺度和色感上与原有瓦片的相近,减小建筑体量,同时也是对传统瓦片的现代化转译。
在建筑方案前期,结构专业就介入同步推进方案的深化,首要解决的问题是如何让山型外壳轻巧的包裹着中央的木盒子,多轮讨论后决定采用钢结构,把空间中所有的柱子都藏在木盒子的书架中,同时把相关的设备管线也藏在书架之中,二层阁楼里的柱子则成组做成内凹龛墙,巧妙的消隐结构,达到最后的完整纯粹的空间效果。

△施工过程 ©城外建筑

△剖透视 ©城外建筑

△钛锌板金属瓦屋面 ©潮声Anson
运营与大众反馈
南昆秘境民宿于2020开业运营至今,高山书屋始终是南昆山国家森林公园的网红打卡空间,在各大网络平台上都可见大众分享的照片,对于当下的流量现象,作为设计方更加关注的是,完全没看过设计理念和分析的大众,是如何使用这个空间,以及他们的感受和评价,而这些反馈正是设计的依据之一。

△网络上大众的打卡图 ©城外建筑

△夜幕下的书屋 ©潮声Anson
项目图纸

△一层平面图 ©城外建筑

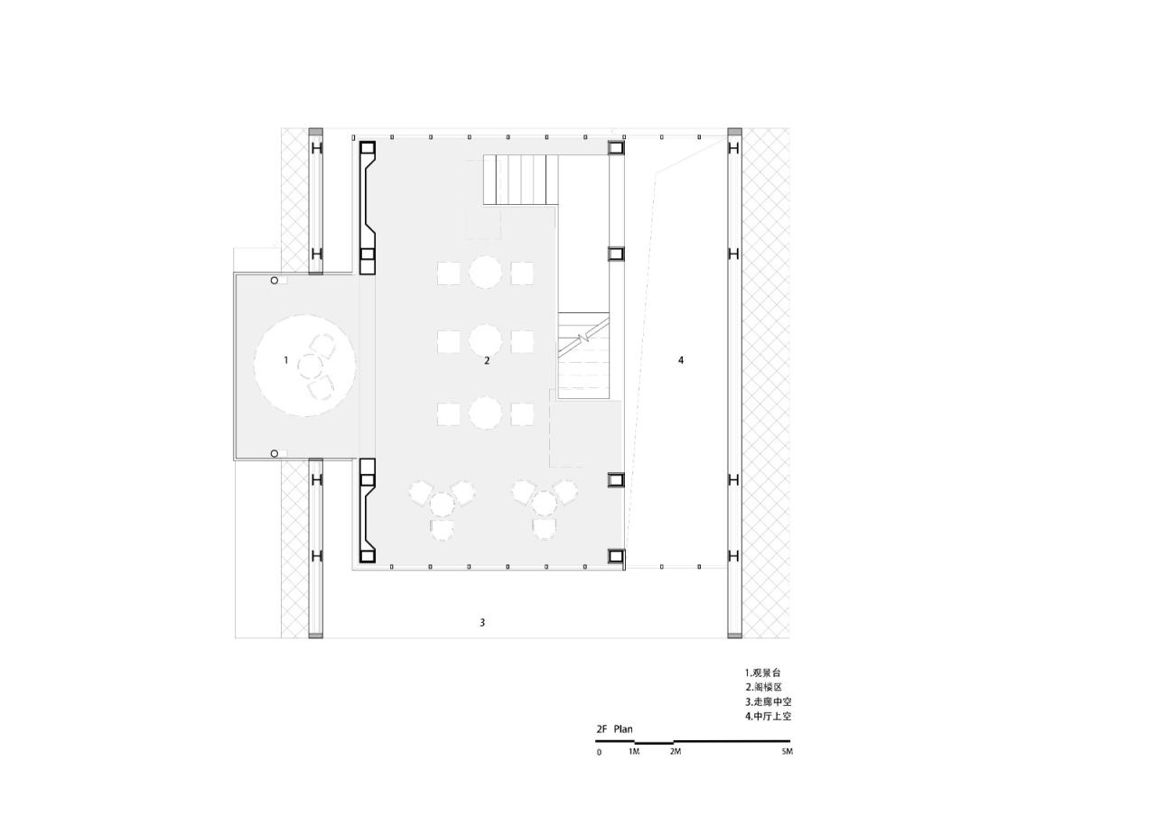
△二层平面图 ©城外建筑

△剖面图 ©城外建筑

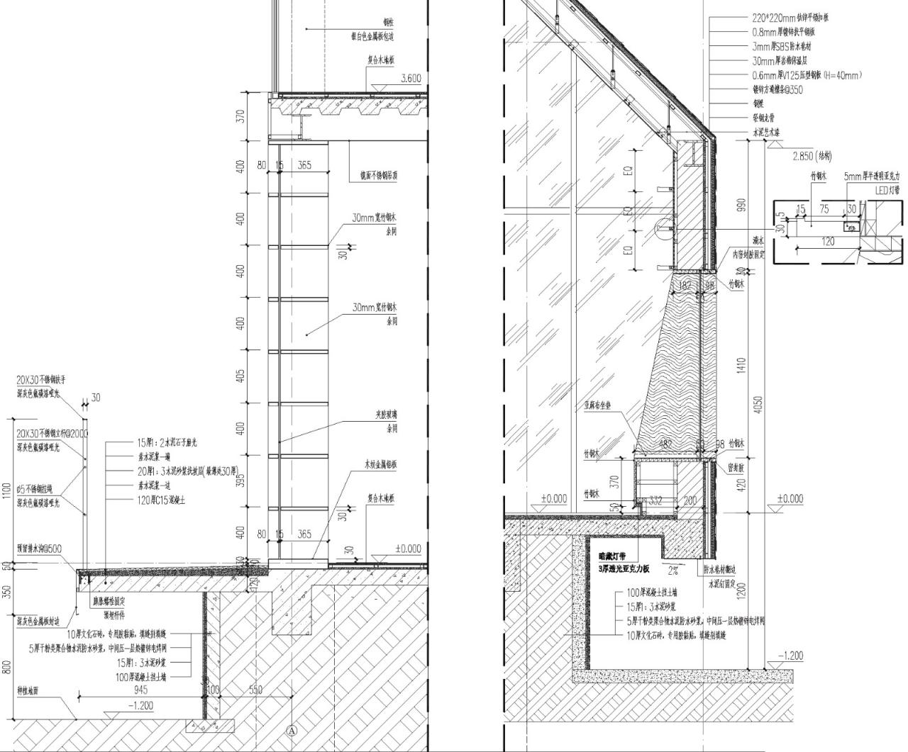
△墙身大样 @城外建筑
项目信息
项目名称:南昆秘境高山书屋
业 主:惠州市爱树文旅投资发展有限公司
设 计 方:广州城外建筑设计有限公司
设计团队:陈洁琦,林旺铭,沈莹颖,黄毅源,陈振辉
灯光设计:广州市恒光设计有限公司
施工团队:广东德信众诚建设工程有限公司
摄影版权:潮声@Anson
项目设计&完成时间:2019.10-2020.10
项目地址:广东省惠州市南昆山国家森林景区
项目规模:200㎡

BIM建筑网





评论前必须登录!
注册