“工业上楼不仅是一种有效的土地利用方式,也符合产业结构升级和城市更新的现代化需求。在特有国情和时代背景下,我们希望通过厂房类型化、园区产品化,实现工业上楼的空间模式迭代,为中国产业园区的可持续发展提供可行样本。”——孟凡浩

基于line+在工业产业园区、总部办公园区等领域中的一系列实践案例,中国节能集团再度邀请line+联合创始人、主持建筑师孟凡浩为其打造位于杭州富春湾新城核心区域的环保产业园项目。作为国内节能环保领域的龙头企业,中国节能集团已在国内开发建设了五十余座绿色园区,富阳产业园将作为其第三代标准化园区的标杆产品,因此业主期望能够对既有的平层式“工业上楼”厂房建筑进行升级,打造集生产、研发、孵化及多种配套为一体的国内一流绿色低碳产业园区。

△ 区位图

何为“工业上楼”?不同于传统平层式的厂房,工业上楼是以多层及高层厂房为载体,垂直发展分布企业的生产、办公和其他功能,以回应城市土地紧缺和新型产业结构的需求。2021年,国家发改委明确提出推广“工业上楼”的相关政策,旨在为制造业和实体经济高质量发展创造空间。


在富阳产业园的设计中,line+通过类型学研究,从规划和产品两个维度对“工业上楼”产业园进行创新迭代。一方面得益于业主极成熟的市场经验,我们与其共创研发了更适应市场的产品类型,在限定的面积中提供多样化的空间选择,以此提升土地利用率、产业承载力和工业建筑产品力;另一方面则是对工业园区的空间组织方式创新,在保障生产流线的高效、与城市互通互联的同时,创造绿色可持续、具有社区感的园区环境,形成富有生机和活力的新型工业产业园区。

01 土地利用率和产品丰富度vs市场快速去化和货值最大化
——高容积率限定条件下的产品研发
“单层平面面积不小于800方,一个销售单元不小于2000方,容积率2.0-2.5”,这是规划给予项目的前置条件,而业主给予的市场反馈则是3000方左右的独栋厂房需求度最旺、去化最快、溢价最高。这是一对相互矛盾的命题,如何在高容积率下突破常规的平层式工业上楼的价值溢出?是我们设计之初面临的一大挑战。

在前期的产品类型研究阶段,我们将人居领域的叠墅产品思路运用到工业厂房项目上,提出“类独栋”概念,并确定多层独栋厂房+“工业上楼”平层厂房+“类独栋”厂房的组合模式。四种不同的产品类型精准定位当地市场不同的目标客群,解决各类企业不同的需求痛点,在满足高容积率的前提条件下尽可能多的为业主增加项目货值,加快项目去化速度。


△ 四种产品类型分析图
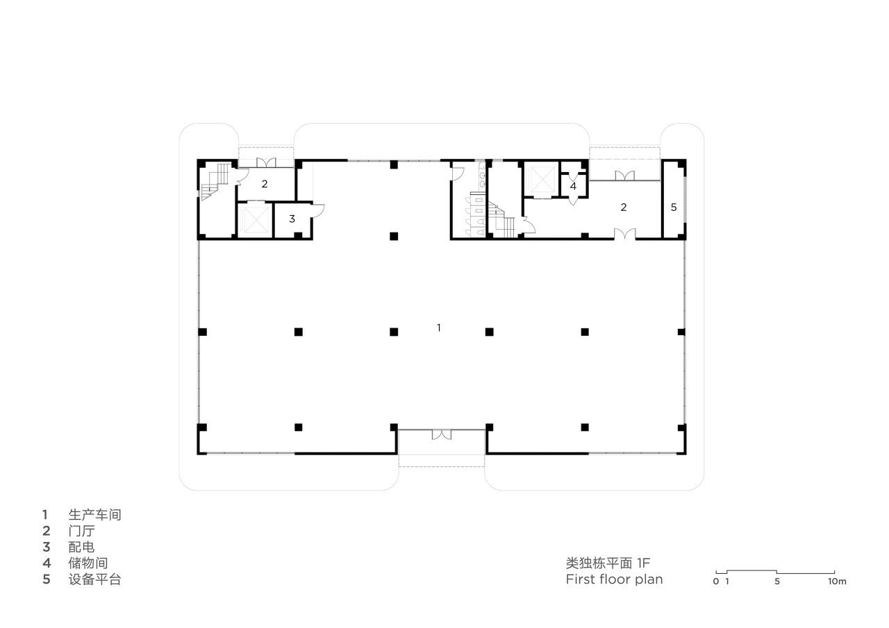
多层独栋厂房,按幢销售,建筑主体四层,局部最高五层最低三层,总面积3000方左右,实行客货分流,对重型机械上楼的生产需求更加友好。内部辅助空间呈线性贴边布置,集约且高效,生产空间完整开敞。同时我们根据市场不同的需求设计了三组双拼户型,两户之间可分可合,极具弹性。

△ 独栋厂房体块分析



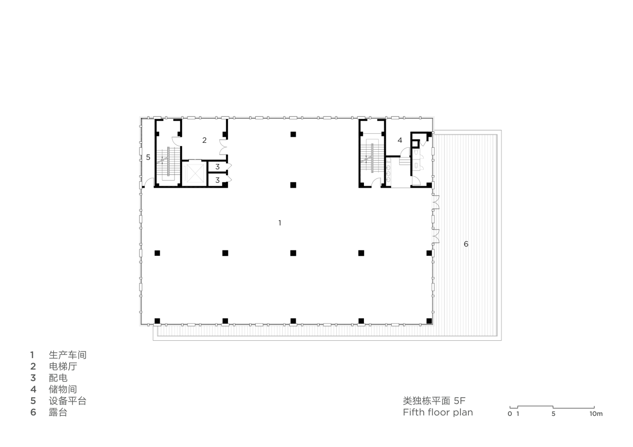
高层“类独栋”厂房,通过建筑体量的错分,上三层和下四层各为独栋,各自配备独立的竖向交通系统、入户门厅和院落,突破了常规平层式工业上楼的价值局限,是市场需求与规划限制条件下的创新产品。下叠四层厂房,每层面积1000方左右,以4000方为一个销售单元;上叠三层厂房,每层面积850方左右,以2500方为一个销售单元。

△ 类独栋厂房体块分析


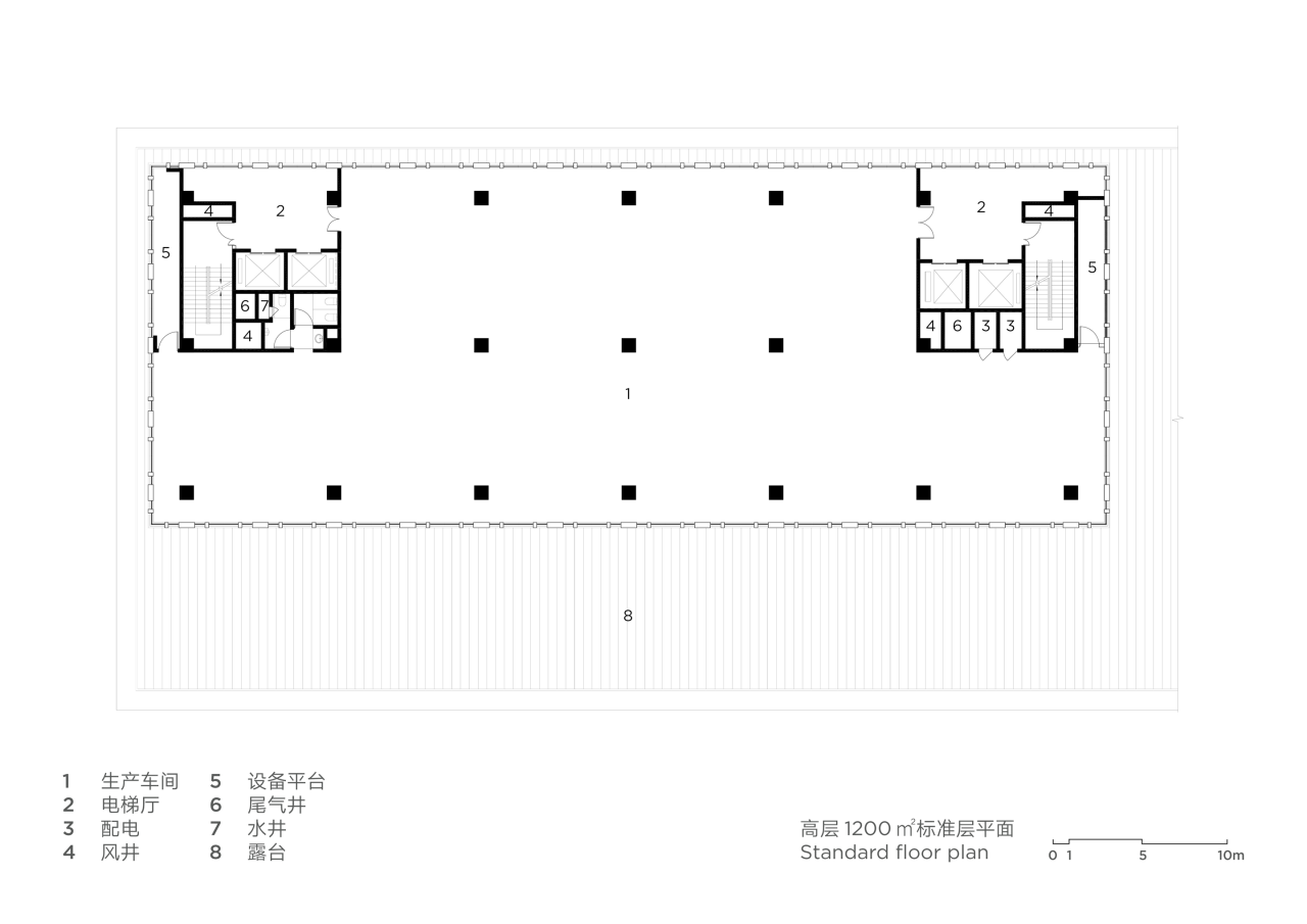
高层厂房按层分割产权,适用于规模不大且生产线水平向展开的企业入驻。各企业共享门厅和垂直交通,下部为单层面积2000方的平层式厂房,一层一个销售单元;上部为单层面积1200方,为两层一个销售单元的叠层式厂房。

△ 高层厂房体块分析


平面设计上优先考虑工业生产的基本需求,将交通和辅助功能布置在角落,保证主体空间的完整性;柱跨规整均匀,方便企业生产线的布置;在平面比例上又综合考虑了未来作为研发办公和其他功能的通用性,避免较大进深。


至此,三种厂房建筑类型逐渐清晰,以灵活多样的产权分割方式、规整合理的平面组织,回应各类企业产业不同的需求痛点,在高容积率的限定下产生更多元的价值。

△从概念模型到建成实景



02 高效率的生产流线vs漫步式的园区环境
——以流线为先导的生产型工业产业园区的结构重塑

现有场地被城市支路分为东西两部分,其中东地块已确认为政府回购,拟建高层研发电子厂房,西地块则以集群式销售型工业厂房为主,空间要求兼顾内部工业生产及科研办公的通用性。



在总图设计中,我们以生产流线的高效率和合理性为主导,保证高效便捷的交通组织,从而形成了简洁规整的路网关系。另一方面,在密度基本用足的情况下,通过建筑单体的腾挪组织了中心花园,结合首层的庭院景观设计和客货分流的流线设计,整体形成高品质的园区环境。

△ 生成图

△ 模型照
为兼顾城市形象,我们将最高的两座60米塔楼置于西地块的最北侧,面向城市主干道,同时符合南低北高日照关系。场地南侧是正对高铁的城市展示面,我们将场地西南面的建筑抬高,做特殊化形体处理,整体形成高低建筑互相咬合、建筑语言层次清晰的形象。

△从概念模型到建成实景


为满足2.0容积率,沿西侧次干道依次布置四座31米七层类独栋厂房建筑,对外形成连续界面限定,对内形成高品质园区环境,并布置有十座多层独栋厂房。

△从概念模型到建成实景


03 标准建造vs个性展示
——常规成本下极致的品质控制

生产型产业园区正随着从业者年轻化和功能复合多元化的趋势快速发展,差异化和个性化的建筑环境正逐步成为集群式园区的核心竞争力。


在成本制约的前提下,我们选用了软瓷、涂料、铝板、玻璃等,希望通过常规材料的创新应用,在成本造价和空间品质上寻找平衡;通过立面色彩质感的精细化和差异化设计,赋予工业建筑个性化的展示机会。

△ 立面材料选样

△ 施工现场材料把控


位于场地外围的高层和多层建筑选用了均质窗格的立面语言,形成统一且鲜明的整体形象。同时均质窗格使得室内采光更加均匀,符合工业生产对空间最基本的功能需求。


为了防止生产过程中搬运设备、材料等对玻璃的磕碰,我们摈弃了中节能环保产业园上代产品落地玻璃的做法,而是在窗下设置900高窗台,既节约成本又符合实际的生产需求。同时作为立面的设计元素,窗台内退,选用橙色真石漆增加立面的层次感。

△ 高层厂房典型墙身模型

△ 高层厂房典型墙身


△ 建造过程

△ 高层厂房墙身大样
多层独栋厂房大多用于小型企业总部、研发办公和生产作业等三位复合空间。通过形体错位形成露台,并相对应地在内部适配设备平台、储物间、茶水间等辅助功能,实现功能空间的高效叠加。

△ 独栋厂房形体生成图

在立面设计上,下部体量选用深灰色竹节砖,横向错缝排布;上部体量选用以改性泥土(MCM)为主材的软瓷,是一种具有较好柔韧性和肌理质感的新型节能低碳建筑材料,裁切成200*1200mm条状尺寸,三种颜色拼接混搭,形成具有差异化的建筑表情。



墙身构造结合造型、材料进行了细致的推敲。首先跟随建筑形体上下的错动、不同材料的分界,我们通过土建做法实现了200*200mm的凹槽,深灰色竹陶砖与彩色软瓷两种材料避免直接交接,通过凹槽进行过渡。凹槽的上下口做金属板分别为两种材料的收口,既强化了建筑上下两个形体的错动,又使不同材料在构造层面进行合理的交接。

△ 独栋墙身模型

△ 独栋墙身立面


“类独栋”厂房,作为介于多层独栋厂房与高层平层式厂房之间的新产品,造型设计上我们从产权分割入手,针对上下两个不同的产权归属,用两个体量上下叠拼的手法来实现形式与权属划分的逻辑统一。

△ 类独栋厂房形体生成图


为保证园区沿街立面的统一性,上叠沿用均质竖向错格窗的构造做法,下叠体量则以水平带形条窗作为呼应,并利用预制混凝土砌块砌筑花格做错层跳跃处理,既对立又统一。层间通过土建形成200*200mm的凹槽,化解下部体量的敦厚感,凹槽内做墨绿色涂料,给沉闷的混凝土肌理增添一点活跃的元素。

△ 类独栋墙身立面



04 结语
近日,由中国城市科学研究会主办的2022年度第15批“绿色建筑标识”项目评审结果揭晓,中节能(富阳)环保产业园项目获得工业建筑类唯一的一星级绿色建筑标识证书。
产业升级决定了空间模式也必须迭代,在全面推行“工业上楼”的时代背景下,line+充分发挥产品研发优势,针对节能环保、智能制造、电子信息技术等战略新兴产业,我们跳出单一的传统厂房空间模式,研发定制了一系列高层、独栋和类独栋的空间类型,多样化组合营造高品质产业园,提升土地效能和开发强度,为工业产业园迭代赋能。

项目图纸







项目信息
项目名称:中节能(富阳)环保产业园
设计单位:line+建筑事务所、gad
主持建筑师/项目主创:孟凡浩
项目建筑师:李昕光
设计团队:袁栋、郝军、涂单、张涛、邢舒
业主:中节能(杭州)环保产业有限公司
施工图合作单位:杭州市城建设计研究院有限公司
项目位置:浙江,杭州
建筑面积:163168.18平方米
容积率:2.1
设计周期:2020/07-2021/03
建设周期:2021/04-2023/07
结构:框架结构
材料:真石漆、仿混凝土涂料、软瓷、铝板、玻璃
摄影:陈曦工作室、line+

BIM建筑网





评论前必须登录!
注册