
海南能源交易大厦傲然屹立于海口市的新兴中央商务地段—江东新区,北临琼州海峡,南侧近江东大道。兖矿能源集团从事采矿生产和销售、煤炭精细加工和现代物流系统,其早期进驻江东新区,可发挥集聚与示范效应,带动世界顶尖企业积极参与海南自由贸易区的开发建设。建筑设计如同漂浮于公园之上的方盒子,尺度宏大、充满绿意的采光中庭让人惊叹,错落有致的空中花园柔化了建筑的刚硬线条,刚与柔在建筑中和谐共存,如同江东新区在既有基地条件限制下发展出尖端技术。



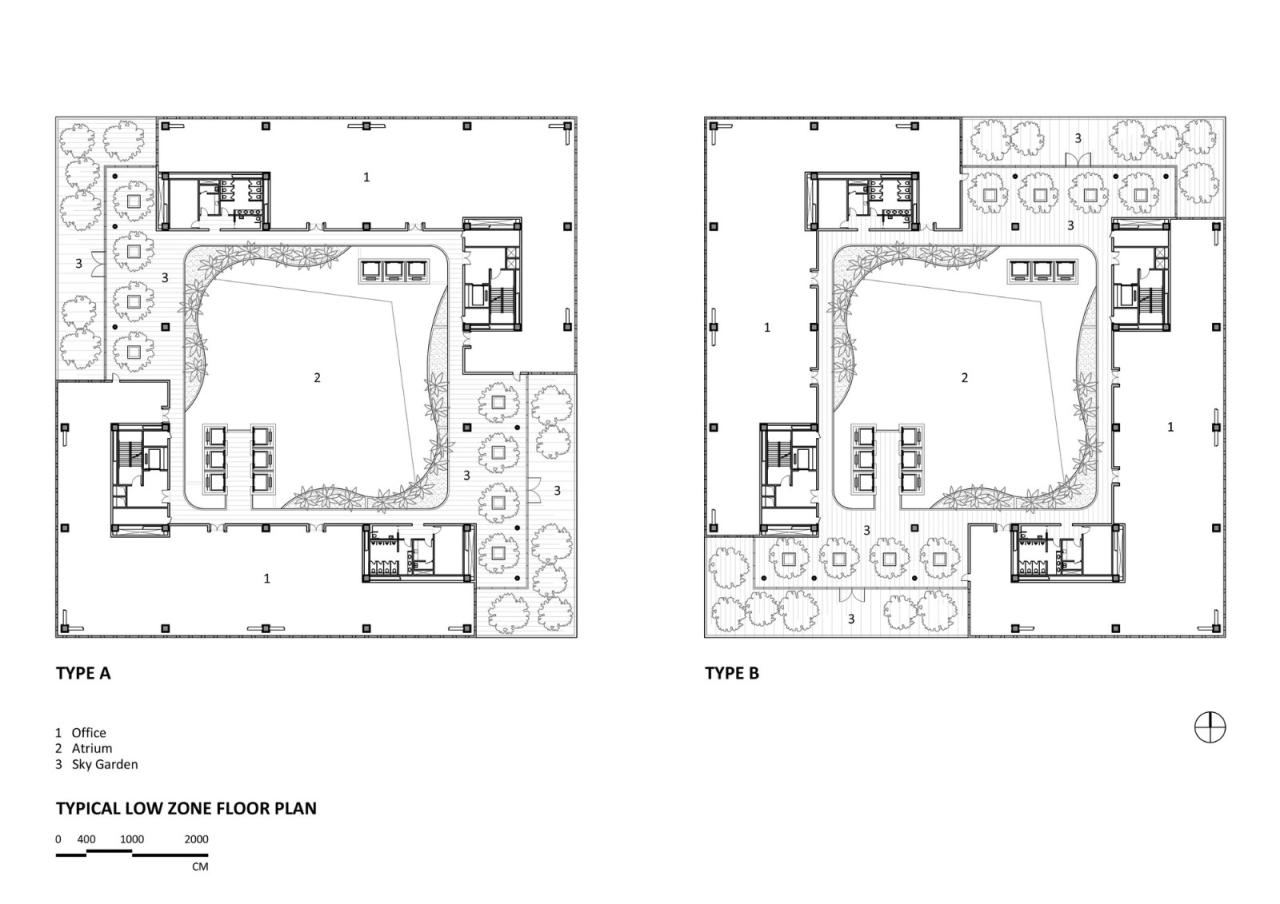
呼应兖矿集团打造绿色能源的精神,建筑设计将绿化面积最大化。每四层楼对角线交错配置挑高的空中花园,连接服务核的弧形阳台环绕着中庭。室内阳台和空中花园中孕育多样的植物,狂放的绿意在层层迭迭的阳台与穿透中庭的天光之间流动,营造充满自然气息与平和宁静的工作氛围。


75 米高的中庭连结空中花园与地面层开放空间,形成空气循环的通道,由于每层楼空气的压力、温度和密度不同,引入的新鲜空气将陈旧的空气向上推,经由屋顶开口排出,形成自然通风的循环流动,配合外遮阳系统,创造舒适宜人的微气候。


通透的玻璃帷幕外墙提供绝佳视野,可一览海岸线与城市地景,同时展示了内部利落、纤细、但坚固的结构系统。设计利用巨大的斜撑传递承重,不仅保留空中花园的完整性,不被结构柱干扰,也支撑着花园上方量体约 14 米的悬臂,此做法将结构的侧向挠度降到最低,同时也加强其抗震性。


双层的玻璃帷幕外墙满足了自然采光及节能的需求,降低人工照明及空调的使用。内层采用 Low-E 玻璃以有效隔热,并藉由双层玻璃间的腔体将辐射热能导出。内外层玻璃之间的电动百叶,可由屋顶追日系统的传感器自动调整,配合智能照明控制系统的设置,大幅增加室内环境的舒适感。此外,斜屋顶和每四层交错的内退提供空中花园和办公室充足的阳光,同时因应海南湿热的气候,避免大部分的走廊和中庭受阳光直射。斜屋顶取自江南的传统建筑元素,下雨时,雨水由屋顶斜面落下,聚集在四方的天井之中,以示「水聚天心、泗水归堂」,有积聚财富的意涵。海南能源交易大厦以设计传达永续建筑的生活概念,打造舒适节能的现代化办公大楼,成为江东新区的绿色地标,引领区域的建筑发展。


项目图纸

△一层平面图

△平面图

△细部结构大样图
项目信息
建筑师:姚仁喜 | 大元建筑工场
面积:65726m²
摄影师:MLee Studio
建筑师:姚仁喜
项目负责人:朱文弘、林宜伶
设计团队:包晓雯、许榉译、王芳、李小露、李国隆、翁恺威、许家斌、叶蕾、苏靖英
合作设计院:广东省建筑设计研究院
结构顾问:创纬工程顾问有限公司
景观顾问:北京土人城市规划设计股份有限公司
外墙顾问:迈进工程设计咨询(上海)有限公司
灯光顾问:碧谱照明设计(北京)有限公司
施工厂商:中国建筑第八工程局有限公司
业主方:海南智慧中心建设发展有限公司
地点:海口

BIM建筑网





评论前必须登录!
注册