
设计语境未央区近年来发展迅速,随之带来的问题是教育需求的激增与土地紧缺之间的矛盾被激化。未央路小学综合楼建设项目就是在此背景下诞生的设计任务。项目用极度地狭小且不规则,场地内存在既有教学楼,周边高层住宅环绕,条件十分复杂。



直面诉求学校现有的校舍容量已经无法承受激增的学位需求。因此,业主对项目的诉求非常简单、直白,需要为学校增加至少24间教室和一些配套办公。从设计、施工到整体交付都需要在半年内完成,设计极具挑战。



设计策略空中学堂——功能与环境的平衡在如此紧张的场地中,置入任何建筑物都会显得十分强势,同样也会挤压有限的地面空间。因此,设计团队决定将建筑的半边悬浮,把更多的场地还给孩子们。我们将新建教学楼的西侧部分出挑约8m,挑空两层,上方3-5层承载教学活动功能,下方则是穿越而过的操场跑道。建筑的“悬空”使完整的操场得以保留,让每一个孩子享有“运动权”。





立体乐园——塑造立体化校园活动空间考虑到学校未来的发展,仅靠地面难以承载2000余名师生的活动需求。我们试图对综合楼各层空间水平错动,形成不同尺度的灰空间,并将被新建教学楼占据的篮球场放置在屋顶。通过室外楼梯,使学生活动动线由平面变为立体,营造从地面到屋顶的连续立体的外部空间,在用地有限的校园内创造了丰富多维的活动场地。



总结未央路小学综合楼改扩建设计是在极端环境和时间双重制约下的一次设计挑战,也是城市更新语境下的设计尝试与探索。改造后的校园为孩子们提供了多元、立体的室外活动场地,激发了校园公共空间的活力。我们希望这所“秀珍校园”能够“焕发独特魅力”,给予孩子们美好的回忆和成长经历。









项目图纸

△模型图

△模型图

△模型图

△轴测图

△总平面图

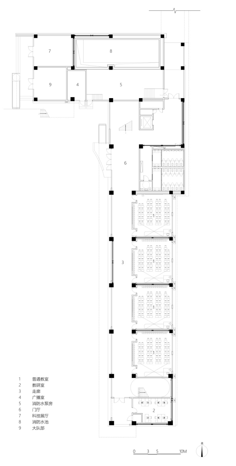
△一层平面图

△二层平面图

△三层平面图

△四层平面图

△五层平面图

△立面图

△立面图

△剖透视

△结构分析图

△结构分析图
项目信息
建筑师:中国建筑西北设计研究院 屈培青工作室
面积:7100m²
项目年份:2023
摄影师:张晓明摄像团队
厂家: 星牌优时吉,福尔波,铝幕
主创设计师:高伟、汤海涛
建筑设计:高伟、白雪、汤海涛
结构设计:潘映兵、姚聪琳、刘伟、刘超、王骏、桂鹤阳
给排水设计:陈一、辛金尚
电气设计:封晓华、申宏卓
暖通设计:郑铭杰、李俊锋
智能化设计:查波、聂诚飞
室内设计:郭玮、安於欣
景观设计:刘婧、季琤
建设单位:西安市未央区未央路小学
代建单位:西安未央城市建设集团有限公司
使用单位:西安市未央区未央路小学
地点:西安

BIM建筑网





评论前必须登录!
注册