
改革性学习是面向人们、社区和社会的建筑教育。Arsomsilp 社区与环境建筑师专业建筑工作室的成立,是为了支持阿索米尔普艺术学院建筑学院的“基于工作的学习”。在 7 年多的办学过程中,学校始终认为,要使学术和专业工作室紧密联系起来,最好的办法就是在“同一屋檐下”的概念下,丰富建筑专业学生、教师和专业建筑师的学习生态系统,使他们作为一个社区在同一空间中共同生活和工作。


Rabindhorn 大楼曾是 Roong Aroon 学校的体育馆,该学校与 Arsomsilp 学院同属一个基金会。在学校的体育馆搬迁到一个更大的体育馆后,Rabindhorn 大楼被移交给 Arsomsilp 重新利用,使其重新焕发生机和教育环境,成为一个新的建筑工作室。Arsomsilp 的共同目标是通过整体学习方法培养建筑师,通过团队合作解决现实世界中的问题,培养 21 世纪的学习心态。为了强调“一个屋顶”的学习空间理念,我们保留了老旧的木桁架,作为对老体育馆的纪念。



建筑的主体结构保留了以前体育馆的结构;因此,附加材料大多是可再生材料。屋顶瓦片使用木瓦,内部使用的木制部件则从旧房屋和建筑中回收,以减少碳排放。木工和建筑采用了当地的技术和细节;一些细节被保留下来,供员工从中获得启发,并鼓励他们在制作作品时保持同样的精确度。




照明和制冷系统均采用被动式设计,利用自然能源减少运行能耗。照明设计利用阳光直射屋顶屋脊,与昼夜节律同步,优化视觉舒适度和热量获得。冷却设计一方面是主动冷却(AC),用于分隔的办公空间(玻璃箱),另一方面是被动冷却,用于开放空间。具体来说,被动式设计通过水平和垂直通风以及屋顶的屋脊通风来冷却开放空间,使其在 5 小时左右达到 80% 的热舒适度。通过对现有池塘和公园周围的空气进行通风,营造出的小气候增强了被动通风效果,从而自然冷却了相连建筑的开放空间。在水资源再利用方面,采用压缩机排水和滴灌技术种植植物,为公司员工提供午餐。




Rabindhorn 大楼是一座生活建筑,其功能因使用者的创造力而灵活多变。每个建筑团队和工作室的工作空间都被划分成玻璃盒子,作为他们的基地,所有这些空间都围绕着主开敞井和楼梯,以提供社区之间纵向和横向的互连互动。玻璃箱之间的空间则留作小组学习和讨论的公共空间。东北翼的木桁架被抬起,为工作室和一个 100 人的会议室创造了更多空间,营造出各种引人入胜的学习空间。由于我们的员工每天大部分时间都在这里度过,因此 Rabindhorn 大楼就像一个社区之家,提供了生活、休闲和锻炼的空间。一楼的旧音乐室被拆除,为多功能食堂、图书馆和工作室创造了灵活的空间。-拉宾敦新楼的设计与周围的其他阿索米尔普学院建筑相连。西南翼旁边增加了草坪台阶和咖啡厅,提供了一个通向现有水池的天然草坪。建筑的主入口与通往主楼梯的竹艺廊和有机市场相连,为社区营造出一种温馨的感觉。














项目图纸

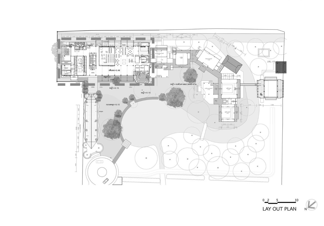
△总平面图

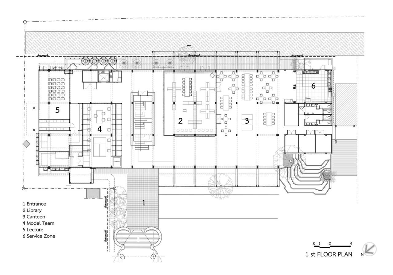
△一层平面图

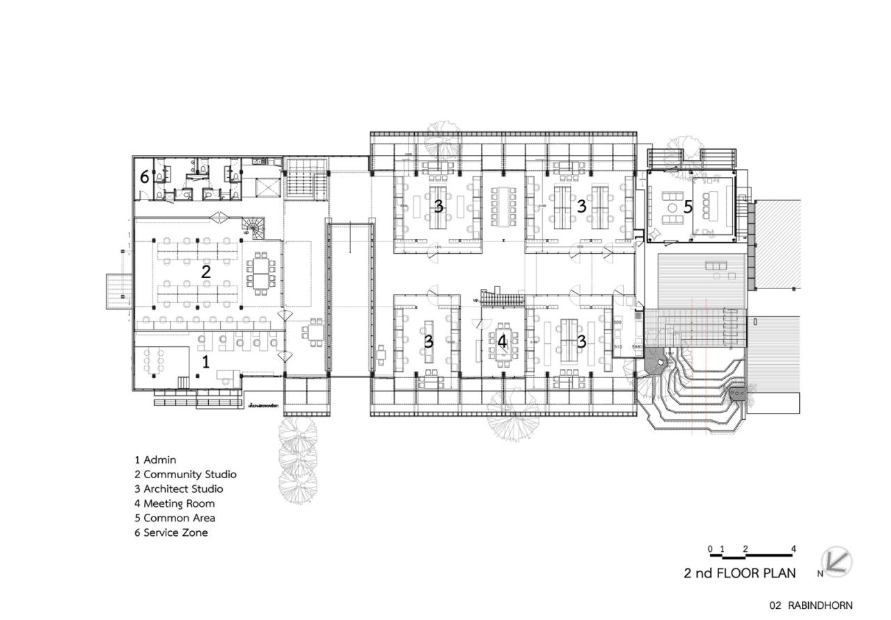
△二层平面图

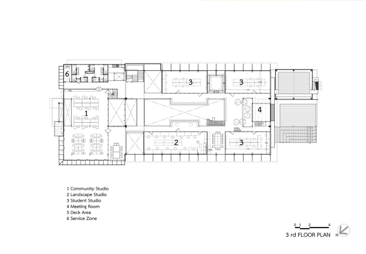
△三层平面图

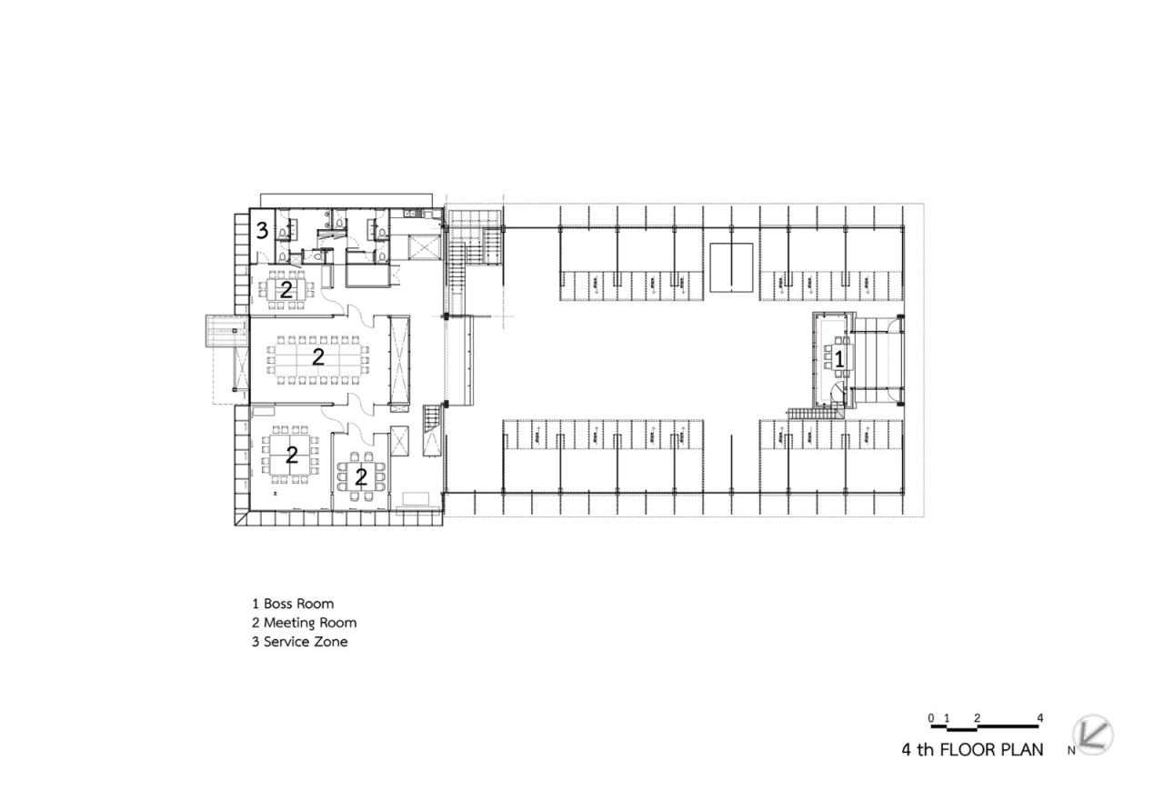
△四层平面图

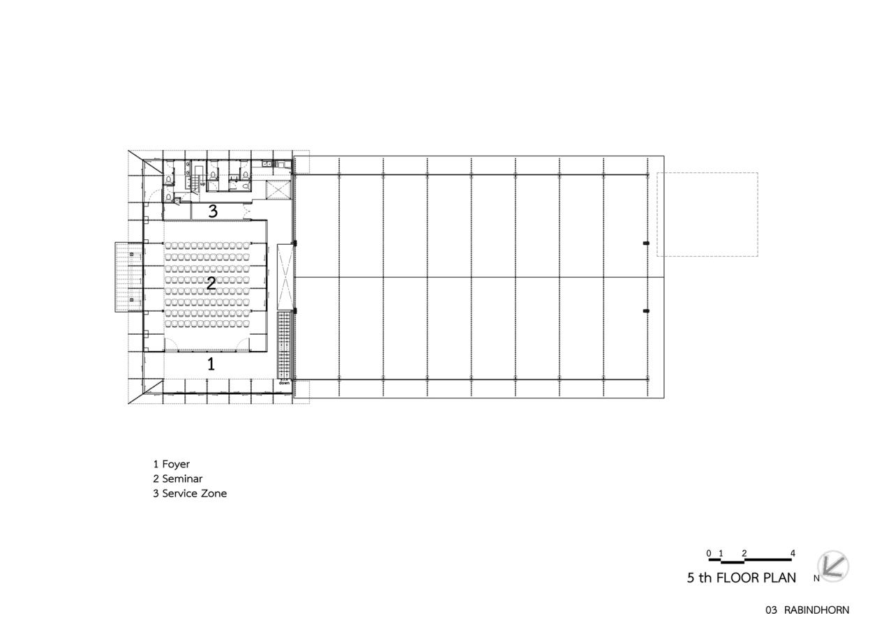
△五层平面图

△立面图

△立面图

△立面图

△立面图

△剖面图

△剖面图
项目信息
建筑师:Arsomsilp Community and Environmental Architect
面积:3780m²
项目年份:2019
摄影师:Pat Phuchamni
主创建筑师:Arsomsilp Community and Environmental Architect Co., Ltd.
地点:泰国,Bang Khun Thian

BIM建筑网





评论前必须登录!
注册