
△“珠江之心”- 海心沙
2019年底,在广州海心沙岛升维计划项目竞赛中,XAA建筑事务所“云与水之歌”方案中标。其中,海心沙东区规划的核心——英迪格酒店(HOTEL INDIGO)历时4年,经过与洲际酒店管理团队、广州城投集团、各专业设计施工团队的紧密协作,已于近期建成开业,成为面向世界展示广州中轴线海心沙岛新貌的地标。

△广州海心沙英迪格酒店
#01
海心沙:寻找与重塑
云水之歌,城市记忆,生态绿肺
城市记忆
海心沙位于城市新中轴线和珠江的交汇处,地理位置重要,曾为第16届广州亚运会开闭幕的主场馆。海心沙岛占地17万平方米,现有保留建筑面积约11.9万平方米,其中西区场馆(含地下空间)建筑面积约9.8万平方米。与广州塔、花城广场、珠江夜游等形成了旅游热点地区,是广州重要旅游集散地和目的地。

△区位分析图
生态驿站
作为广州新中轴与珠江交汇的中心生态岛,海心沙的生态林引来众多鸟类迁徙落脚,成为钢铁森林里的候鸟驿站。

△海心沙改造前-生态林实景
海心沙设计团队以“微介入”的思路,强调“新旧碰撞”,并提出海心沙“升维计划”,拟通过一系列的可持续性升级与发展步骤,让海心沙分阶段迭代进化。

△“云与水之歌”概念方案效果图©XAA建筑事务所
“海心沙是亚运文化遗产、城市的印记,设计需要体现出对海心沙岛的尊重,尽可能将其完整保留,而不应该大拆大建。整个岛的改造要‘去建筑化’,新与旧的叠加应逻辑清晰,体现新旧共生。”——XAA主持建筑师冼剑雄
“海心沙岛改造的本质是以艺术为载体,实现当下与未来的对话,应把整个岛视为一个大舞台,不同区域视为不同场景,运用不同策略,实现岛与城市的持续升维。”——XAA设计合伙人詹涛
#02
实施与升维
岛东区:海心沙英迪格酒店
以岛为家,以树为邻


△英迪格酒店
海心沙东区原有建筑群的前身是广州军区被服仓库,现被改造成为岛内唯一一座江心酒店。

△改造前环境分析
改造后的酒店坐落于繁茂树林间的一处静土,人们能沉浸在清脆鸟鸣之中,感受广州城市文化。

△改造后-鸟瞰实景
在地性的演绎 · 秩序的仪式感
设计团队从城市与岛、环境与人的角度,以文化为线索思考了建筑的改造。
在既有建筑与古榕的庭院内,以现代设计手法将传统“拱窗”元素重构形成的拱圈连廊,保留了现场的大榕树,围合形成主入口前场空间。建筑、古榕、静水,形成极具张力的秩序空间。


△酒店主楼及庭院
简洁白色外墙与古铜色金属板材形成材质碰撞,入口空间则用酒红色提亮,成为庭院的焦点。


△拱形连廊及主入口空间
动态共生
新旧共生

△主楼立面新建
新旧抉择之间,建筑师选择了共生,呈现出建筑的年轮:原有旧的窗花、阳台与结构系统被保留下来,并根据酒店的功能需求,叠加出新的肌理。

△主楼立面改造
生态共生

△生长在林间的露台
以旁观的姿态驻留在林边,建筑延展出多层次露台,与环境对话,零距离观察候鸟栖息的最佳景点,屋顶则提供了露天集会的开放空间。在城市里,营造一个与生态环境共生互动的场所。


△酒店与生态林共融
人文共生

△建筑空间糅合广粤文化
建筑承载着广粤在地文化,骑楼、风雨连廊、架空花园等空间穿插其间,联系整个酒店、商业组团。强亲和力的公共空间介入,活跃了首二层开放的商业空间,引导人流,激活海心沙。满洲窗、花砖、粤剧戏台和东山洋楼等元素融汇到特定的场景之中,展现广州珠水涌动、粤韵风华的历史文化名城底蕴。



△酒店室内空间设计©广州海心沙英迪格酒店
升维计划
海心沙之于广州乃至湾区,是一个不断升维的城市节点。
建筑师旨在采用“升维叠加”的理念,以动态时空视角审视这片轴心区域,用可持续的理念来解读海心沙,在不同的时代背景下呈现出与时俱进的空间形态。海心沙英迪格酒店塑造了现代设计与广府传统文化的完美融合,让人们身临其境体验广州国际大都市的繁华、活力和气魄。


△英迪格酒店与海心沙岛-夜景鸟瞰©广州海心沙英迪格酒店
三面环水、绿野环绕,可饱览珠江碧波潋滟及其两岸日与夜的五光十色;登岛,跨珠江水与城市短暂离别,漫步穿梭林间感受江心之岛的静谧清新;缓步到达榕树之下,体验广粤格调韵味。

△酒店生态步道
酒店设有约500平方米户外草坪、无边际泳池、潮酒吧及娱乐健身空间,为入住增添舒适和便利。位于主楼一层的邻里餐厅洀汇聚地方美味及中西融合美馔,顶层的光点屋顶酒吧定期举办爵士、布鲁斯风格乐队表演,打造都市休闲惬意的时尚空间。


△无边际泳池及顶层露台酒吧©广州海心沙英迪格酒店
英迪格酒店凝练传统与现代相结合的设计语言,保留城市文化记忆,并为海心沙注入新的活力。未来,在持续迭代的实施更新进程中,海心沙岛的城市更新将会进一步实现。

△©广州海心沙英迪格酒店
//我们正处于广州城市升维的特定节点,并有幸参与其中//
项目图纸

△总平面图

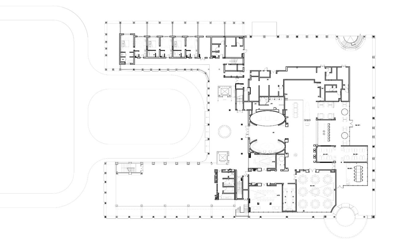
△一层平面图

△立面图

△立面图
项目信息
项目名称:广州海心沙岛升维计划、广州海心沙英迪格酒店
工程地点:广州市天河区海心沙
设计时间:2019年
用地面积:170000㎡
建筑面积:西区6654㎡、中区39864㎡、东区21000㎡
建筑设计:XAA冼剑雄联合建筑设计事务所
XAA主创建筑师:冼剑雄、詹涛
XAA建筑方案团队:田望、王梦宇、李恺婷、林烁、冯威、唐安渊,王琰,洪怀杰,周业霞,丁翼,杨涛,黄子沣、程路、李栀、邬超、贾中祺、林蔚、李佳颖、曹煜星、王丽莹、赵鑫、卢芷筠、孙鹏茁、李欣瑜、方贵民、郑卓威,周迎港,孔棉生,罗菁菁,黄安琪,林希腾,林佛森,陆思德,吴结东,丁培生
XAA建筑施工图团队:梁敏全、黄蓝、梁杰龙、许朝财、吴木清、杨伟军,邓丽婵
XAA景观团队:李学思、黄娟梅、郭子进、龚仁浩
/广州海心沙英迪格酒店项目/
室内设计(排名不分先后):Studio Glam 城市组设计集团有限公司
景观设计(排名不分先后):普利斯设计咨询(上海)有限公司 广州域道园林景观设计有限公司
品牌顾问:上海肯锐企业形象策划有限公司
厨房后勤顾问:锐贤酒店设施设计咨询(上海)有限公司
机电顾问:卓展工程顾问(广州)有限公司
视听声学顾问:北京创艺建声咨询有限公司
灯光标识顾问:上海知钛建筑设计有限公司
摄影:九里建筑战长恒、广州海心沙英迪格酒店
/广州海心沙岛升维计划概念方案/
结构及机电专业设计:广州瀚华建筑设计有限公司
室内设计顾问:城市组设计集团有限公司
艺术顾问:周钦珊
展陈顾问:广东省集美设计工程有限公司
视频及效果图制作:XAA冼剑雄联合建筑设计事务所CG工作室

BIM建筑网





评论前必须登录!
注册