
奇妙大厦是位于巴黎巴尼奥莱入口处的一个变革性项目,是新第三世界的标志。这座创新型建筑重新诠释了办公建筑的传统规范,为一片陈旧的工业用地注入了活力,通过强有力的建筑姿态为人们提供了卓越的工作生活品质。



作为两个地区之间的纽带,该项目标志着一个当代活跃地区的复兴。其充满活力的建筑风格重新诠释了办公楼的传统,采用了线条、镂空、日光楼梯和对角线等引人注目的元素,创造出引人注目的构图,并对外立面和内部进行了界定。大面积的玻璃立面不仅是巴尼奥莱门的城市信号,还能使住户免受林荫大道的干扰。此外,沿立面战略性地设置的出口楼梯不仅释放了宝贵的室内空间,还为俯瞰巴黎市提供了一个独特的制高点。


奇妙大厦整合了露台,在外围林荫大道一侧形成双层结构,并引入一个中央花园,为城市环境注入新鲜活力。U 型结构的特点是,中央空间向城市开放,将办公室转变为社区的日常空间。



一走进绿树成荫的庭院,就能看到自然光照耀下的和谐室内环境。室内设计由 Briand & Berthereau 工作室负责,采用了高贵的材料,消除了楼层之间的界限,创造出非凡的连续空间。办公室的标准高度为 2.90 米,木质结构可容纳创意空间、隔断办公室、开放空间、安静区域和共享空间,巧妙地满足了使用者的不同需求和活动。


该项目通过在外围设置楼梯来鼓励体育活动和社交互动,同时还能欣赏到室外景色。室外露台可将巴黎美景尽收眼底,营造出一个非凡的工作环境。


环境可持续性是项目设计的核心,外墙和木结构采用了标准化和预制工艺。这种方法可确保施工现场更清洁、更快速,将每层 3300 平方米的组装时间缩短至 14 天。与全混凝土建筑相比,4450 立方米的木结构节约了自然资源,并节省了 2500 吨二氧化碳,在整个生命周期内减少了 60% 的建筑碳足迹。




Wonder Building 符合英国建筑性能评估体系(BREEAM)、Haute Qualité Environnementale (HQE)、Bâtiment Bas Carbone (BBCA)、Effienergie+ 和 WIRE 认证标准,并获得了 WELL 认证的金级认证。该建筑与城市供热网络相连,50% 以上的能源来自可再生能源,拥有 1340 平方米的露台、绿树成荫的庭院和 20% 的开放空间。该项目通过屋顶光伏板生产了 500 平方米的可再生能源,超过了现行法规对能源性能的要求。


奇妙建筑是一个有生命的物体。它被设计成一个人人都能找到自己位置的地方。为了适应新的工作组织方式,我们特别注意确保所有空间都有利于社交活动。除了其标志性的外形之外,“奇妙大楼”还旨在成为一个新的第三世界的参照物,在这个世界里,生活质量高于一切。











项目图纸

△手绘透视图

△总平面图

△地下一层平面图

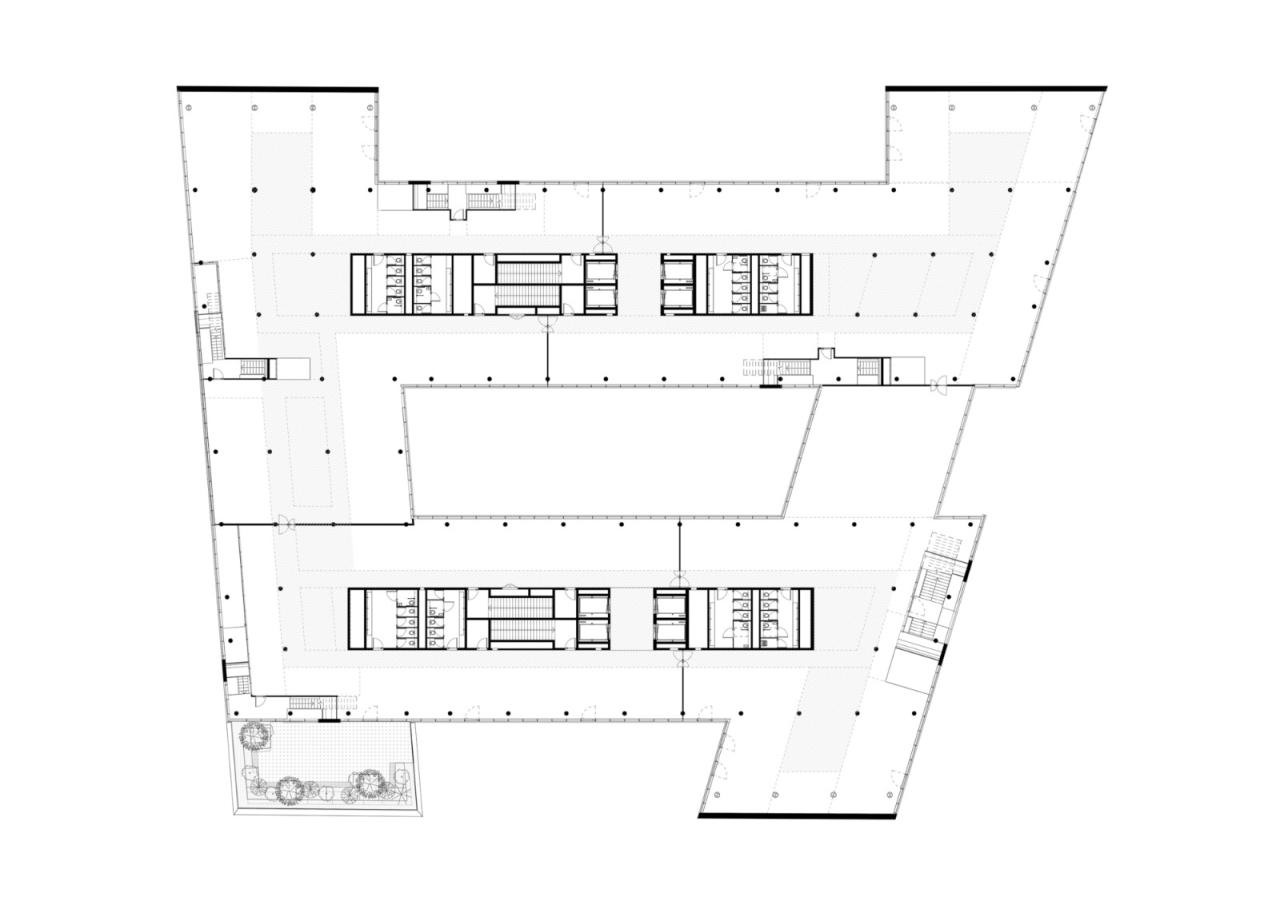
△一层平面图

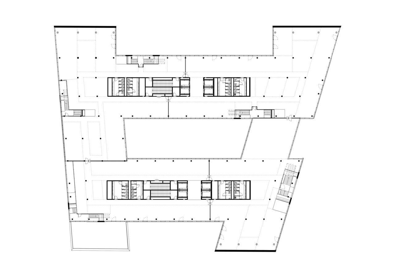
△二层平面图

△二层平面图

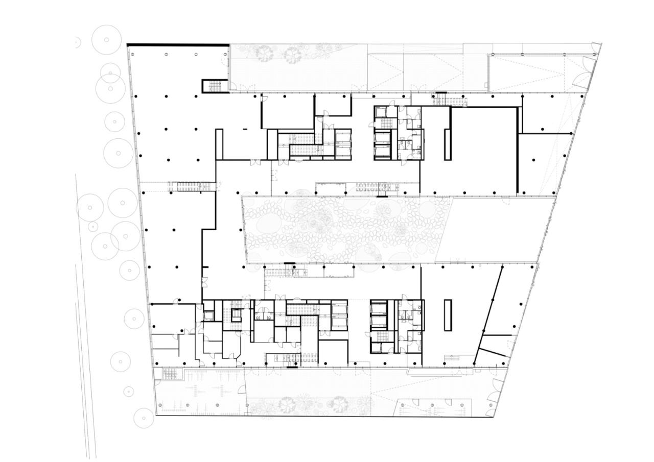
△三层平面图

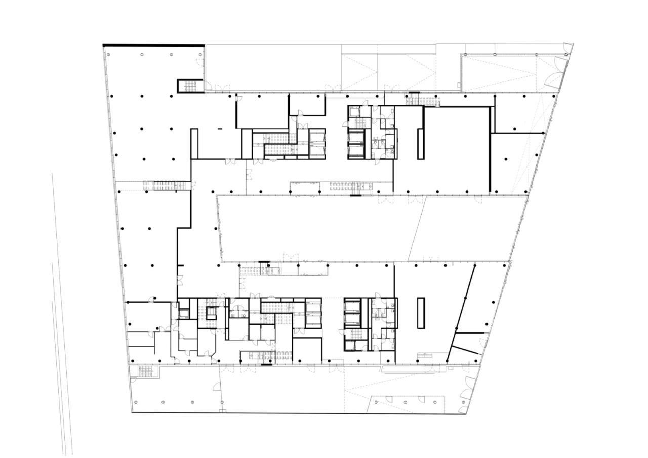
△四层平面图

△剖面图

△剖面图

△立面图

△立面图
项目信息
建筑师:Coldefy
面积:27000m²
项目年份:2023
摄影师: ©Stéphane Aboudaram I WE ARE CONTENTS
建筑团队:"Thomas Coldefy, Isabel Van Haute, Marc Franco, Zoltan Neville, Mélanie Quetscher, François Chantier, Lucas Dujardin, Alice Huet, Elisabeth Lara, Blandine Roulet, Augustin Roy-Verger, Long Thang
业主方:Briand & Berthereau
AMO:Builders and Partners
室内设计师:Novaxia
木结构:Projex
MEP:Sylva Conseil
可持续性:ARP
景观设计:Base
造价:DAL
声学设计:Lamoureux
厨房设计:SPOOMS
总承包商:Bouygues Construction
地点:法国,Bagnolet

BIM建筑网





评论前必须登录!
注册