
嘉定档案馆——一幅展示嘉定历史文化的绘卷,是建筑师讲述嘉定传承文化故事的载体。建筑师以现代建筑语言为刀笔,档案册般的建筑形体为图底,将“嘉定竹刻”“教化嘉定”的文化意境刻绘于其上。


不同的建筑界面通过差异化的手法,构筑了如档案书册般的整体形态。面向城市道路与公园展现出截然不同的面貌与气质。南、北立面采用大面积白色GRC幕墙塑造了文化建筑的厚重。同时也通过弧形截面的单元构件,在立面上拼贴出了竹刻的肌理,让建筑主立面成为一幅展示嘉定竹刻文化的长卷。



在面向城市公园的一侧,我们塑造了更为开放的建筑界面。建筑犹如一本缓缓打开的书册,让公园的公共与开放性延续到档案馆中。掀起的幕墙之下是档案馆的主入口,GRC幕墙下隐隐透出的古铜色金属是档案馆以现代材质表达传统意蕴的最好诠释。



通高的入口大厅将建筑分为了东、西两个区域。东侧主要为封闭的档案库房及技术用房,西侧主要为开放的展厅、多功能厅及办公。



通高的大厅中,白色竖向格栅营造出了藏书阁的意境。空中穿插的连廊将档案库区域和公共区域联系在一起,建构出了历史与现在,传统与现代,封闭与开放交织的对话关系。



四层开放的花园露台是西侧的公园景观的延续,阳光透过“纸张”在庭院里洒下的婆娑树影,形成奇妙的休憩场所。










项目图纸

△一层平面图

△二层平面图

△三层平面图

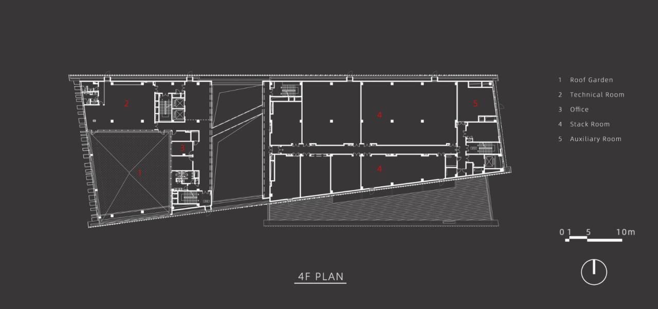
△四层平面图

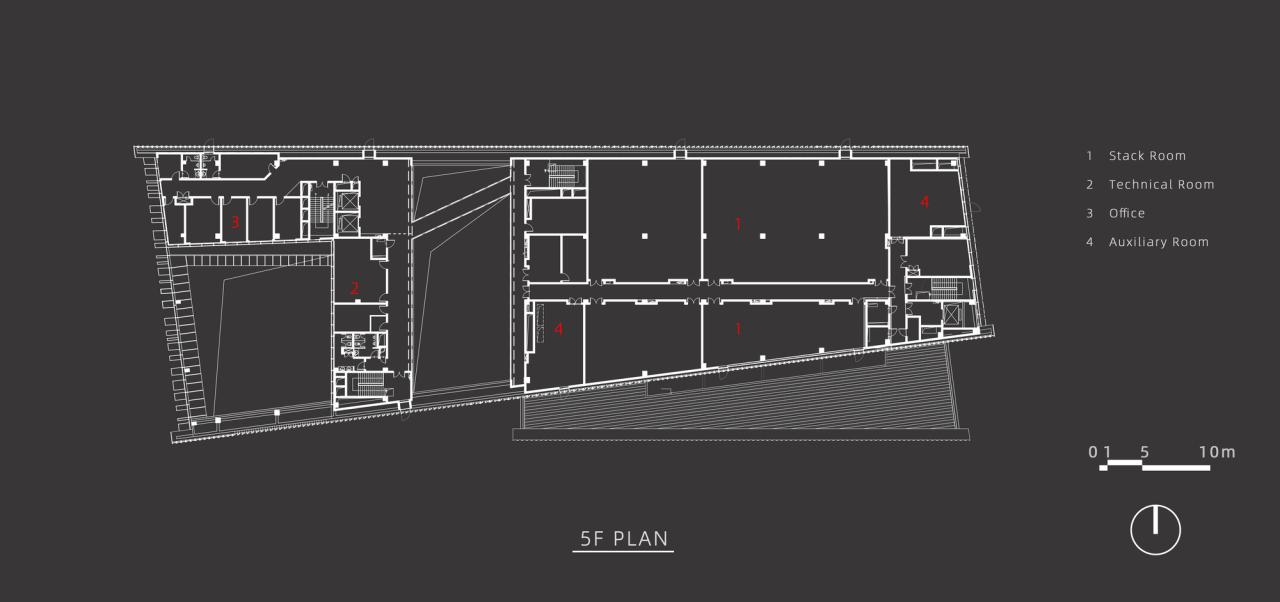
△五层平面图

△剖面图

△剖透视

△立面图

△立面图

△立面图

△细部大样结构图

△细部大样结构图

△细部大样结构图
项目信息
建筑师:华建集团上海建筑设计研究院
面积:24319m²
项目年份:2023
摄影师:三千影像
主创设计师:苏昶、谭春晖、马志良
建筑设计:林佳栋、陈全
结构设计:贾水钟、刘宏欣、许建立、张仪放、孙求知、蔡艳清
室内设计:李捍原、王宇、张建峰、宋文君、叶军
景观设计:沈磊、欧彧、尹静、朱立成、郑颂怡、张晓辉、刘昌训、于晨、孟如意
BIM设计:孙彬、丁佳倩、姜莹莹、薛元
照明设计:张屹、张振、宋赛春、岳佳慧、曾沛铭、李浩洋
机电设计:倪轶炯、黄飞、杨宏磊(给排水);赵霖、李晓菲、宋凯华、赵春润(暖通);刘兰、包振华(电气);陈缙、闻锋(智能化)
绿色建筑及海绵城市设计:燕艳,孙斌,沈蔚伟,耿雪晴,俞家欢,侯梦甜,徐悦
幕墙设计:朱太喜、高禄、马瑞锋、李海明
合作设计方(基坑围护):上海江南建筑设计院(集团)有限公司
委托方:上海市嘉定区档案馆
代建方:上海嘉定城市发展集团有限公司
施工方:上海建工一建集团有限公司
地点:上海

BIM建筑网





评论前必须登录!
注册