
“秦风书阁”是团队配合“三星(中国)半导体社会公益项目”完成的陕西希望工程第2个“乡村校园图书馆”(2021年建成的“终南书阁”是第一个),能够持续为陕西乡村教育的文化赋能提供物质载体让我们倍感荣幸。“秦风书阁”坐落于西安鄠邑区的“秦风初级中学”,该校始建于1996年,2020年才由秦风、牛东、秦渡三所农村初中整合而成,并更名为“西安高新区第十八初级中学”。学校被农田及散落的村落所环抱,并与南面的秦岭山脉遥相呼应。在如此优美的乡村环境中,图书馆二期的设计既延续了与场所环境“融合互为”的立场,又从具体环境及使用需求出发展现出与一期的诸多差异,并实验性地探索了以下两方面的价值:


首先是开放共享的价值。建设场地位于校园的最东南角,毗邻东侧和南侧两条主要的乡村道路。外向性选址的目的是让建筑作为纽带来同时服务于校园内外,惠及更多周边村民。南侧开放的半室外檐下空间及可进入的内部一层大空间成为校园文化生活与周边村民积极互动的“共享空间”,可在未来举办丰富活动以激发乡村多元文化生活的发生。为此,设计明确了“小空间多用途”的复合型目标,并通过空间大小、高差及内外的变化形成丰富的构成关系,如此既满足了阅读的基础功能,又兼容起研讨、展览、交流、学习、表演等使用可能。图书馆北侧和西侧的半室外檐下空间则与北面学生宿舍楼及西面景观相呼应,服务于校内师生,弥补了校园公共交往空间不足的问题;



其次是生态可持续的价值。在西安建筑科技大学零能零碳建筑科研团队的技术支持下,探索了因地制宜的建筑低碳化路径,使之成为实质意义上的全直流供电建筑。早在选址和概念设计阶段,科研团队就与设计师协同合作,充分考虑了设计与当地自然环境相结合的低碳化策略及路径,使建筑朝向、形态、坡度、开口和屋顶天窗都有利于空间在冬季获取更多的太阳辐射,在过渡季和夏季获得较好的自然通风及降温效果(尤其是夏季午后由南至北的下山风)。同时,单坡建筑形态对北侧宿舍楼的日照不产生任何影响,而屋顶的天窗设计又补充了图书馆全年室内空间的自然采光及夏季通风。



建筑室内的照明、多媒体设备、插座以及智能开窗所需的电能均由光伏提供(采用铁锂电池组储能,直流48V总线供电)。光伏板的安装采用结构一体化预埋件+钢龙骨连接技术,兼顾美观性、安全性和成本集约性。研究团队为图书馆配备了太阳辐照量、光伏发电效率、室内热湿环境、运行能耗等全套监测设备,并实时传输数据到云端,为建筑低碳技术的迭代推广蓄积起第一手实际运行数据,将是重要的乡建低碳化实验基地。这样的探索是对团队承担的“十四五”国家重点研发计划项目“太阳能富集区零碳建筑关键技术研究与示范”相关成果的佐证,也是对国家和陕西省关于零碳建筑、建筑光伏一体化等系列政策的积极响应。



“秦风书阁”这个低造价的小型校园图书馆是建立在一期基础之上的“2.0版本”,拓展出了有关“开放共享”和“生态可持续”的双重价值。虽然在建设过程中依然需要面对乡村条件下的诸多困难和不可控因素,但此项目的持续推进必将为陕西乡建及公益事业的发展提供可借鉴和推广的样本。


















项目图纸

△模型图

△模型图

△场地示意图

△总平面图

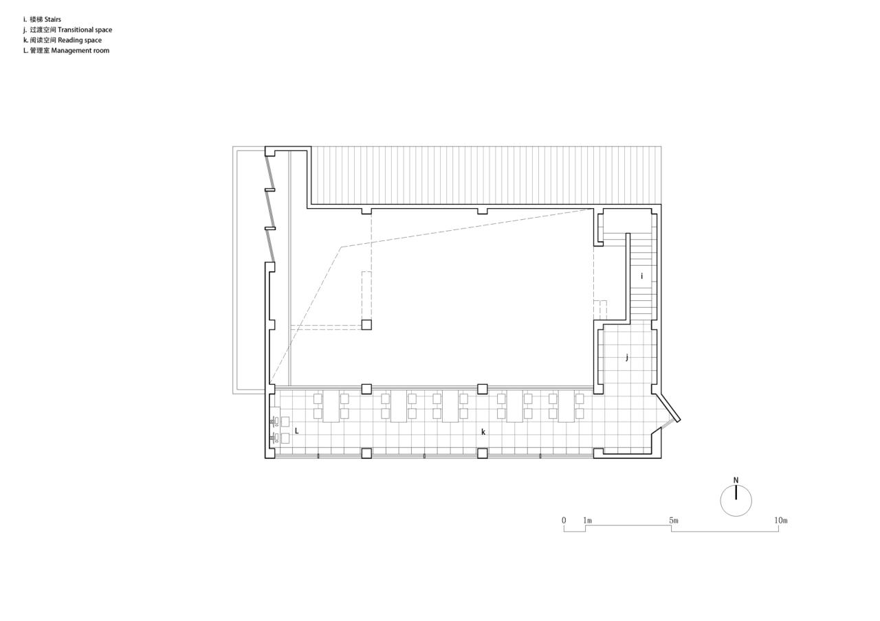
△一层平面图

△二层平面图

△立面图

△剖面图

△剖面图

△剖面图

△剖面图

△分析图

△剖透视

△分析图

△分析图

△手绘图
项目信息
建筑师:垣建筑
面积:350m²
项目年份:2023
摄影师:孔锦权
主创建筑师:吴瑞,王毛真
设计团队:刘泽宪,沙炜如,孙弈沣 ,古浩然
结构设计:边真
项目顾问:冀楠,郭珍
技术顾问:李兴辉
建筑零碳化技术:绿色建筑全国重点实验室绿建基础研究中心(刘衍、乔宇豪、冯珩力)
建筑全直流技术:西安白尔信息科技有限公司(武艳文)
委托方:西安高新第十八初级中学,三星(中国)半导体有限公司
施工方:西安舟正实业有限公司
地点:西安

BIM建筑网





评论前必须登录!
注册