神木中学
神木中学是陕西省重点中学,陕西省普通高中示范学校。项目位于神木市滨河新区核心地段,用地面积196647㎡,总建筑面积113205.11㎡,其中地上建筑面积104467㎡,可容纳60个教学班,3000名寄宿学生,322名教职工。

△学校西向鸟瞰
校园总体布局吸纳了传统书院“礼乐”布局模式,借助山环水抱的独特环境优势,以合院布局方式组织教学、文体、生活三大功能区,沿南北中轴形成序列丰富的多层级研学空间。从精神和形态层面充分展现了神木中学书院气质,层次丰富,古意深远。

△书院式布局

△学校西南向鸟瞰
模块组合、脉络延续
校园内的建筑与空间布局在秩序和自由的变换中实现,在中心轴线和城市道路轴线的控制下,教学、文体、生活三大功能区有序铺陈展开,标准单元模块通过比例与节奏的控制进行组合、抽离、嵌套,形成延续轴线脉络的合院式组团空间。教学组团通过共享院落的渗透,以综合教学楼为核心,以两侧高大的木色百叶屏风为界面,形成体现校园文化的礼仪广场。文体组团餐厅、体育馆、开放的运动场地和飘逸的看台与城市道路形成一条延续既有城市轴线的视觉连接。

△轴线控制·模块生成

△学校主入口人视图

△礼仪广场

△学校东北向鸟瞰
山水之间、林中书院
教学区的各组团形成六个文化院落,将传统的“六艺”与现代教学内容相结合,每个院落都独具自身的文化魅力;综合楼现代材料筑成的屋顶,近看有传统建筑的印象,远观则构成迭起的山峦,营造出具有山水意向的校园建筑。

△教学组团院落实景

△教学组团院落实景

△教学组团院落实景

△东向教学楼
乐学与乐游的复合空间
在传统教学功能空间的基础上,融入了学生阅览、艺术学习、专业实验、校园活动等功能空间,注重培养学生的全面发展。教学组团之间通过共享平台、院落、游廊、架空灰空间等多维度开放空间进行联系和组合,不仅成为了学生学习转换和课间活动的场所,也触发了学生们的非正式学习交流行为,丰富学生课堂内外活动,构建了新型教育模式下乐学与乐游的复合空间模式,激发学生的灵感和活力。

△教学组团共享平台

△教学组团室外剧场

△教学组团入口架空灰空间


△综合教学楼室外连廊和院落实景
教学组团内部在室内空间“收与放”的节奏中,形成了多样的共享交流空间,实现了人文社交的可能性,为学生提供多样的互动沟通、协作分享空间。

△教学组团学吧空间

△教学组团学吧空间
口袋空间、港湾泊车
校园前区设计是对外部环境与校园延伸功能的极致回应。城市排洪渠从校园主入口南侧穿过,充分利用排洪渠在其南北两侧分别设置了便捷的港湾式停车区以及结合水体空间、绿化空间、硬质空间延伸出供家长休闲等候的口袋公园区,同时主入口两侧的校园文化展廊兼具风雨廊的功能,为等候的家长提供遮风避雨的场所。

△学校南向鸟瞰
多维廊道、环巷交往
文体组团白色的参数化隔板构成体育馆和食堂的柔性连接空间,与周边廊道空间结合,形成了校园特色的里弄交流空间,为师生提供了独特尺度的环巷交往体验。多维廊道在太阳光下营造出斑驳的光影氛围感,呈现出现了建筑细部空间之美。

△文体组团实景


△多维廊道
林木悦动、国风校园
“十年树木,百年树人”,综合楼作为校园视觉中心,将茂密树林的自然形态赋予其立面形象设计之中。综合楼顶部设置的多功能研学厅,通过下部 4 根伞状型钢束柱支撑,不但很好的解决了上部空间的结构问题,同时成为建筑溯源“杏坛讲学”的林木特质,并与立面形象表达的林木悦动契合可读。

△立面意向

△综合楼夜景


△综合楼立面细部
以古时竹简与陕北花格窗为意,教学组团界面以高大的木色百叶屏风为界,神木中学校训“静竞敬进”巧妙嵌入其中,形成古意盎然、静谧雅致的新型国风校园。并选用绿色环保、轻质高强的竹钢材料作为百叶材质,不仅可实现中轴旋转,又可达到防风、隔断、遮荫、休憩等多功能用途,为教学空间贡献了灵动多变的光影体验。

△教学组团格栅立面
绿色低碳、健康照明
教学空间采用健康照明技术措施,实现国内第一个国家健康照明标准指导下的应用示范案例。
采用被动式技术手段降低建筑能耗,综合楼顶部的多功能研学厅,结合结构斜交网格肌理设置采光屋顶和高侧窗,提高了研学厅的自然采光和通风效果。

△综合楼多功能研学厅

△ 教学组团—合班教室

△教学组团—普通教室
项目图纸

△总平面图

△教学楼一层平面图

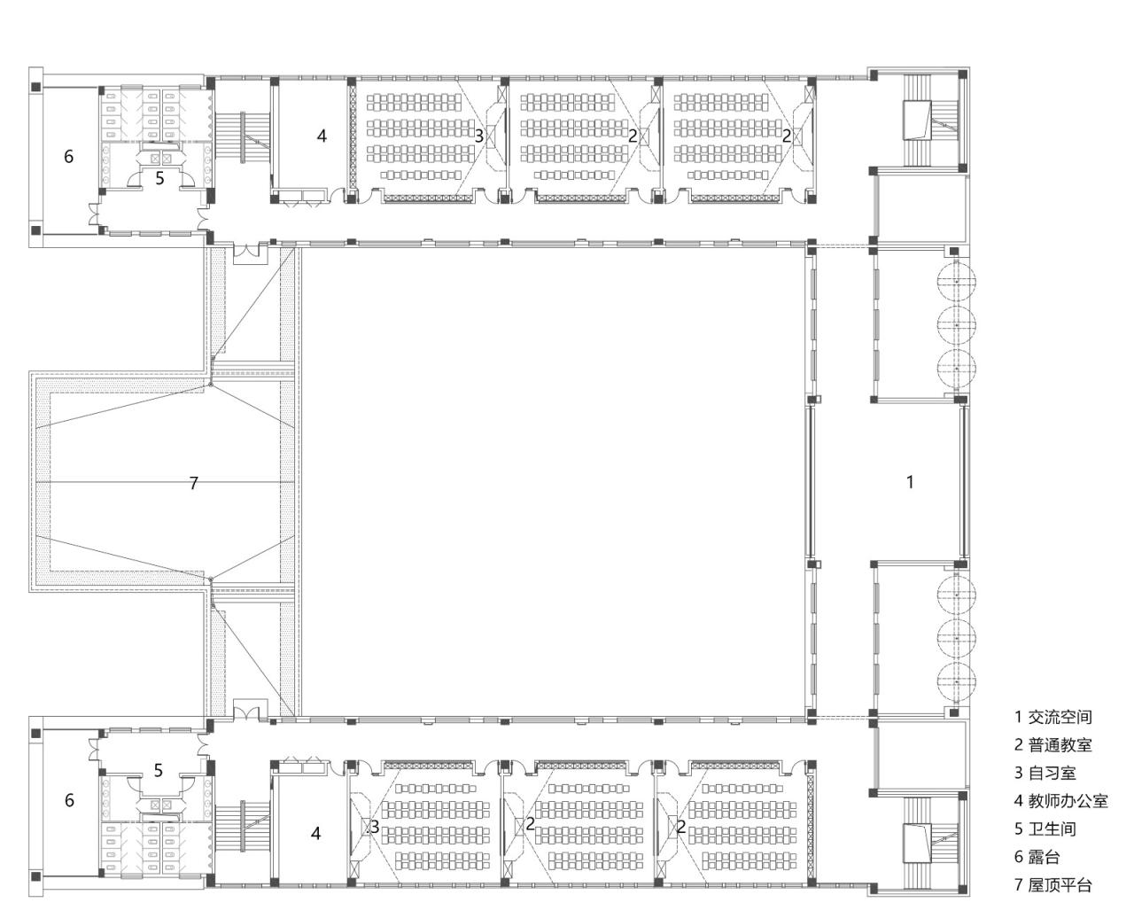
△教学楼二层平面图

△综合楼一层平面图

△综合楼五层平面图
项目信息
项目名称:神木中学
项目类型:教育建筑
项目地点:陕西·神木
设计单位:中科院建筑设计研究院有限公司
设计团队完整名单
主持建筑师:李昕滨
建筑:李昕滨、潘华、邹锦铭、马世文、范恩闯、王子瑜、陈继昶、赵丽、刘永挺、王妮
结构:廖云友、顾小睿
暖通:刘雨阳、张进
电气:付圆
给排水:王卫敏
景观:钟薇
业主:陕西省神木中学
建成状态:建成
设计时间:2015年
建成时间:2020年
用地面积:196647㎡
建筑面积:113205.11㎡
摄影师:©章鱼见筑

BIM建筑网





评论前必须登录!
注册