
园•院——海南生态智慧新城数字市政厅项目,基于展览和文创办公的综合开放性功能,从热带地区气候策略出发,引入自然景观台地,以及一系列高低贯通的院落、室外中庭和冷巷体系,与不同建筑功能空间体块相互嵌合设计,借鉴东方园林庭院系统的抽象原形,塑造步移景异、曲径通幽的立体园林院落式公共共享空间。

本项目位于海南省澄迈县的海南生态智慧新城,腾讯生态村园区内的西南角组团,紧邻园区主入口,采用院落平台式布局,每层均设室外平台,并与西南侧景观平台联通。


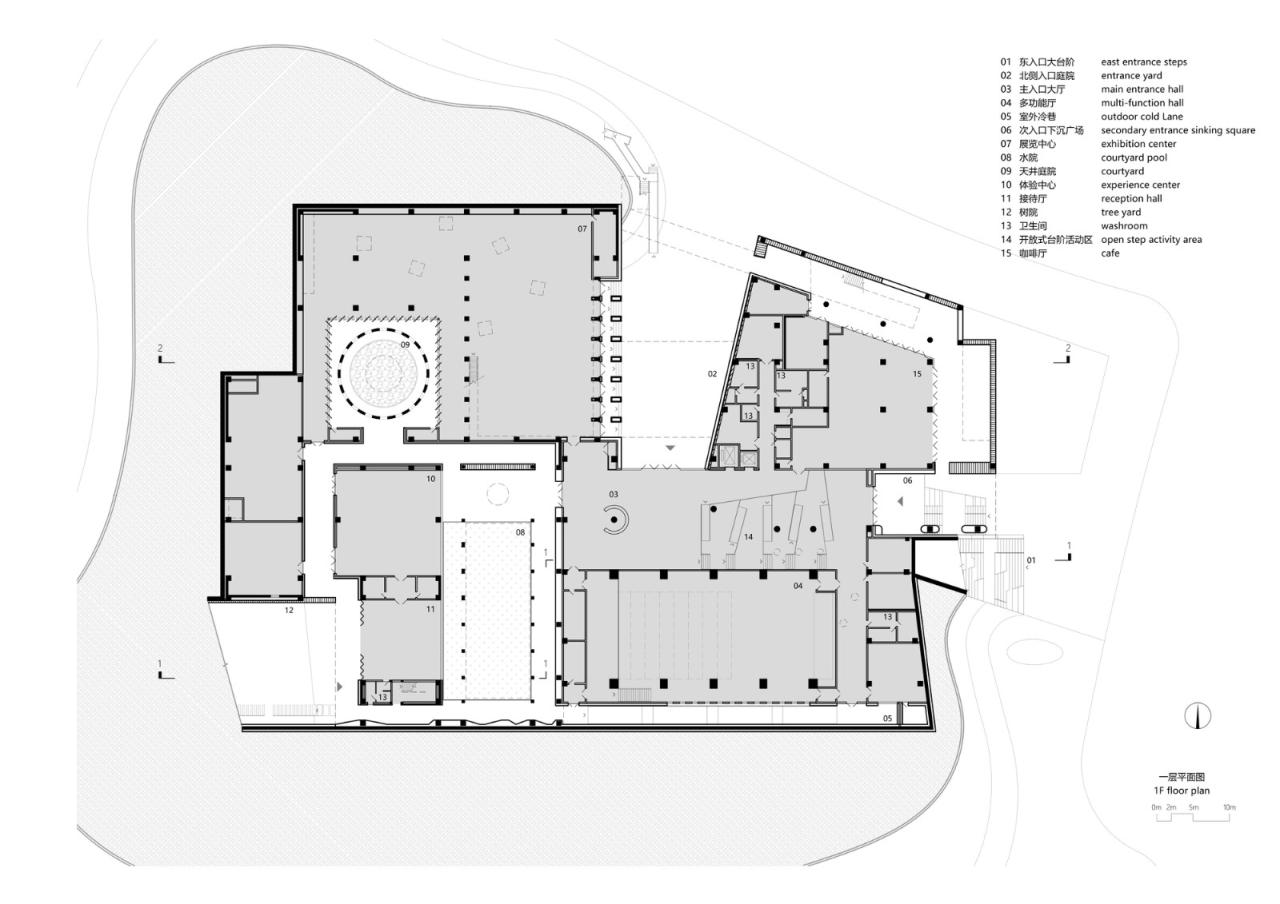
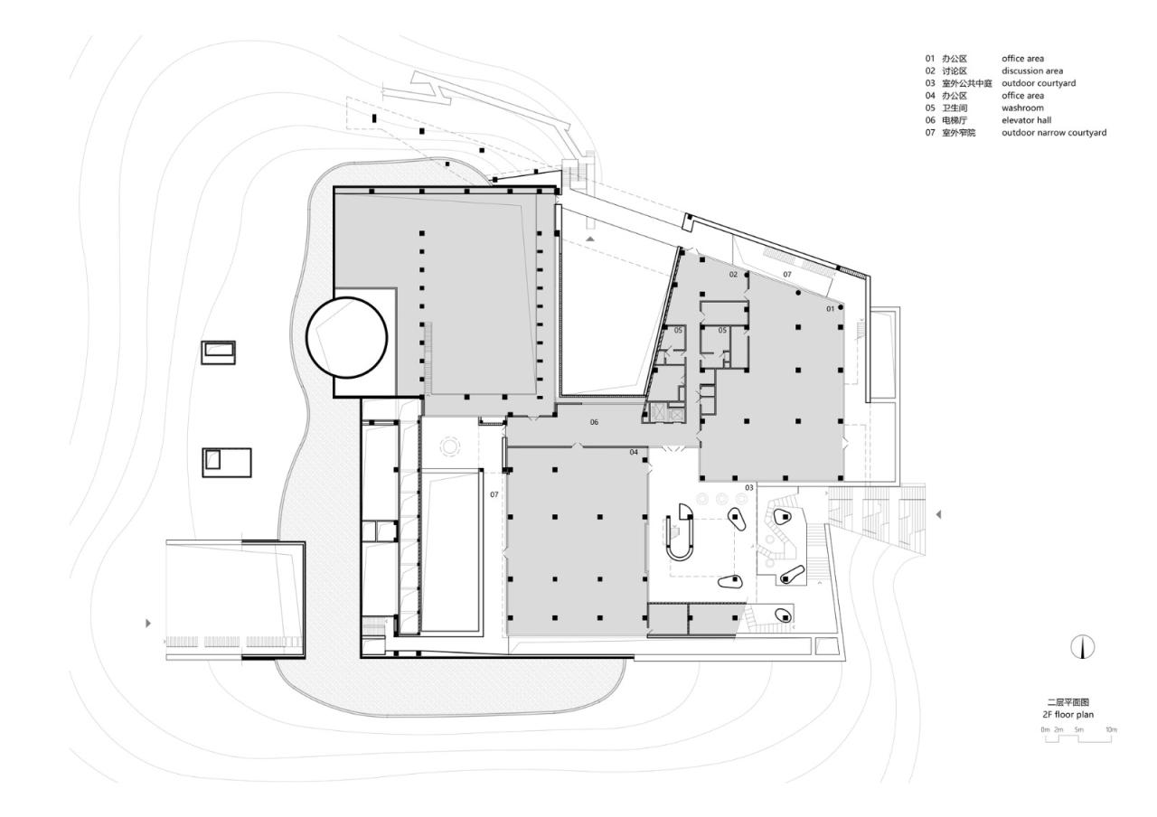
结合主门厅及各层小厅走廊设计核心筒,电梯、卫生间及部分设备机房集中布置于此。通过核心筒可进入各层的主要功能空间。且每个功能空间均设有直通室外平台的出入口。



建筑首层主要为展示中心、多功能厅及休闲咖啡茶座,北侧设为参观接待主入口,通过入口庭院进入主门厅,结合西南侧景观台地设计,建筑的首层和二层部分设计为覆土,在保证通风采光的同时降低建筑能耗。


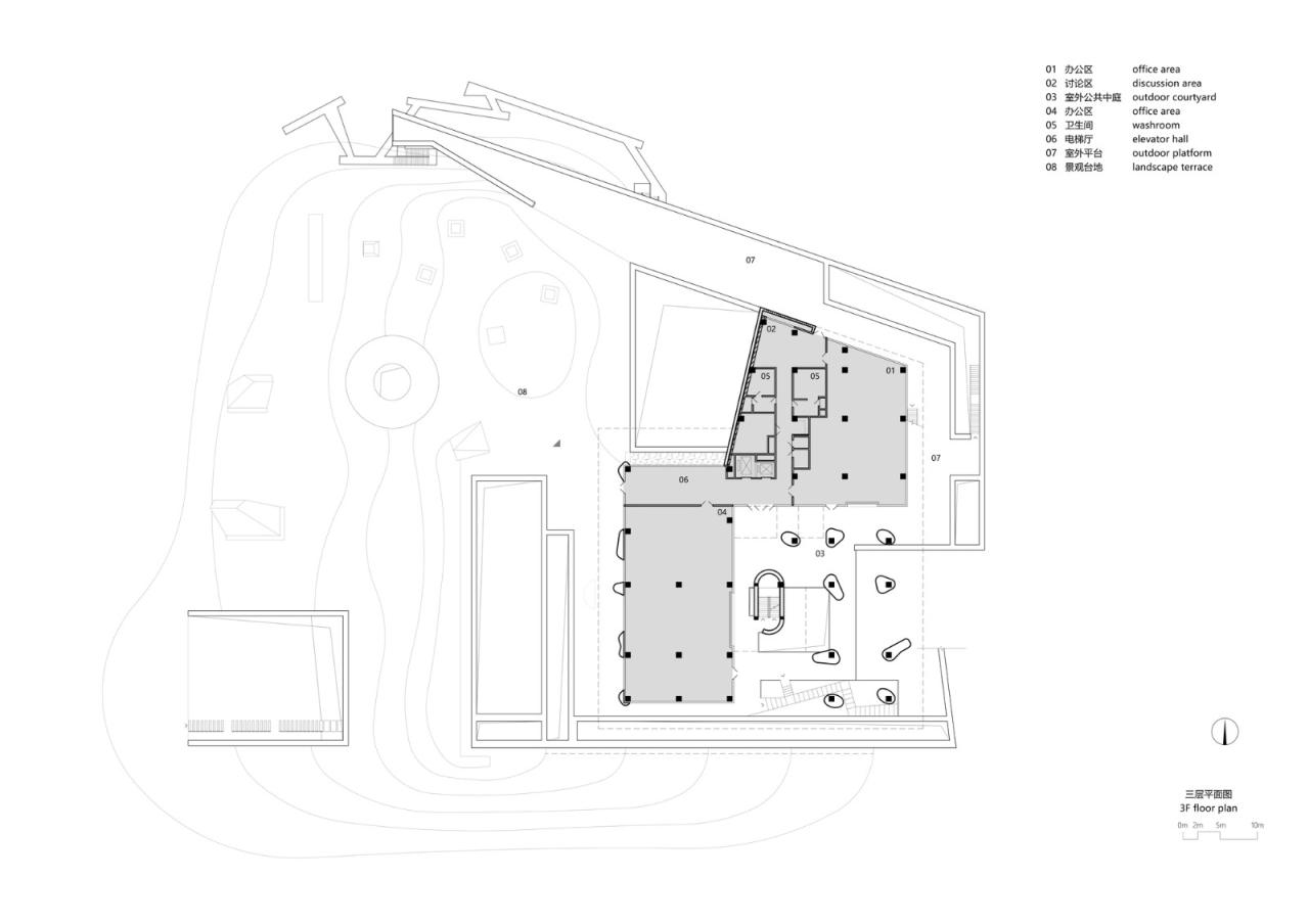
二~四层主要为办公空间,可通过门厅电梯进入。也可通过东侧主入口大台阶直接上至二层半室外的共享平台,从共享平台进入各办公空间 。



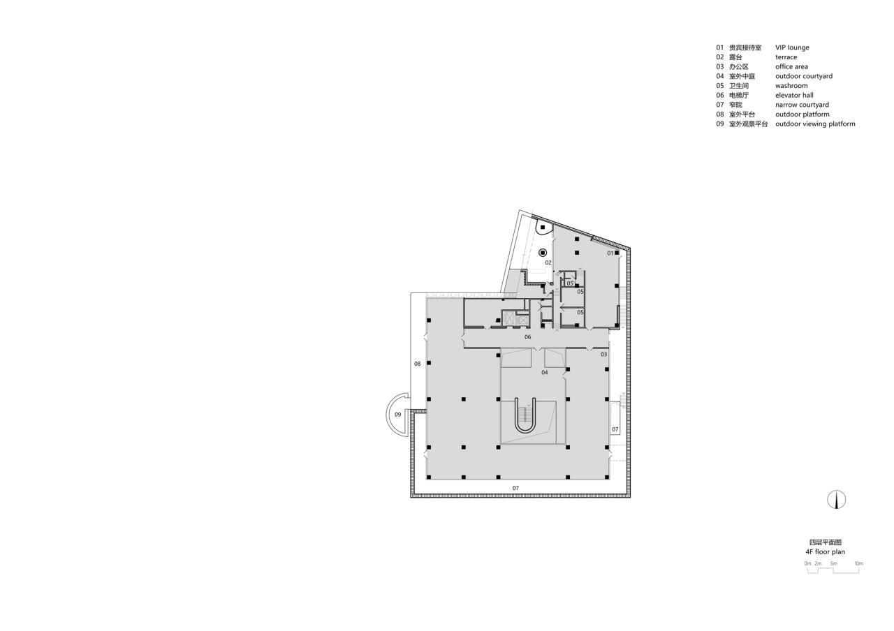
各层均设屋顶平台,上下层平台通过室外楼梯连接,并通往室外景观台地。位于东侧的室外共享大厅设垂直楼梯间,便于快速疏散。



















项目图纸

△总平面图

△一层平面图

△二层平面图

△三层平面图

△四层平面图

△剖面图

△细部结构大样图

△细部结构大样图

△温度分析图

△分析图
项目信息
建筑师:清华大学建筑设计研究院 素朴建筑工作室
面积:10980m²
项目年份:2021
摄影师:陈溯,褚英男
设计团队:宋晔皓、陈晓娟、解丹、褚英男、孙菁芬、于昊惟、夏雨妍、黄致昊、李真如
总体设计团队:李守旭、陈恺、任晓勇、于振江、栾虎子、胡峤、谢雨东、应宇鹏
工程设计:金龙林、温雅宸、王林健
结构设计:龚政、孙晓彦、舒涛
电气设计:杨莉、尹大鹏、李高楼
给排水设计:林玉权、田英、解英、赵洋
暖通设计:张玥、孙玉武、王司空
委托方:海南生态软件园集团有限公司
施工方:海南南海云规划设计研究院有限公司
合作设计方:北京清华同衡规划设计研究院有限公司
景观设计:广州普邦园林股份有限公司
照明设计:清华大学建筑设计研究院同原照明工作室
地点:海南省澄迈

BIM建筑网





评论前必须登录!
注册