
伟大的企业不是诞生在office,而是脱颖于生态圈。上海的张江科学城是世界上最有影响力的科技产业聚集地,上海政府计划在张江创建一个科学技术中心。然而,随着多年的发展至今,我们项目所在的这个中心已经变成了一个不断复制和孤立的钢筋混凝土森林,因为其高密度、高聚集、低绿化和低互动性。


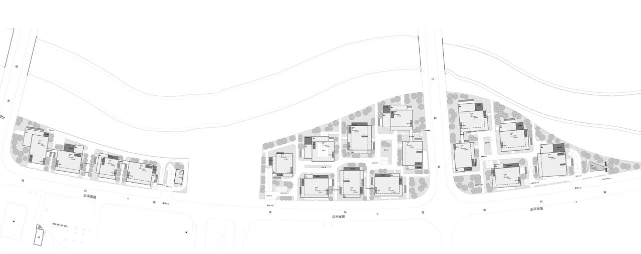
为了解决这个问题,我们根据城市空间布局中的聚落模式设计了AI未来街区,将总建筑量分为17个独立带有庭院的办公单体,其特点是分散、松弛而有秩序,从而将北侧的滨水景观资源引入场地中央,这也大大保证了在视觉、空间和步行系统方面与南部高密度建筑社区分享这一资源。这样独特的规划布局使得AI未来街区项目成为浦东街坊型建筑集群的标杆,为张江科学城园林化低密度的街区提出了一种开创性的设想。



同时,我们引入了“穿街引园”这一概念,希望将中国传统园林的景观模式引入所有街区之间的横向空间和单个街区的垂直空间。



最大的户外庭院有一个巨大的下沉广场,为文化创意活动提供路演空间,而每个建筑的入口空间都设有一个私人庭院。



对于建筑设计,建筑体量的上下部分存在水平位移。一方面,在智慧河北部景观一侧形成了屋顶露台,同时,在海科路南侧形成了悬挑的半公共空间。空间与建筑相邻的下沉庭院相结合,形成了立体庭院的形式。结合体量关系,首层立面实墙与景观硬化,均采用同一黑色石材,这样墙面和地面融为一体,成为园区厚重稳定的“基座”,强化了整个街区,从外到内,从街道到广场公共空间的蔓延与连续。二层以上则是完型体量的玻璃幕墙,根据街道关系错动漂浮,轻盈且自由。



其中镂空墙本身的门洞与窗洞,形成了视线的互望与对穿,产生出妙趣横生的空间层次。为了让镂空石材幕墙更加轻薄通透,所有石材均嵌套在15厚的网格状钢板中,从视觉上隐藏其真实的结构关系,产生如同轻盈幕帘的效果。















项目图纸

△总平面图

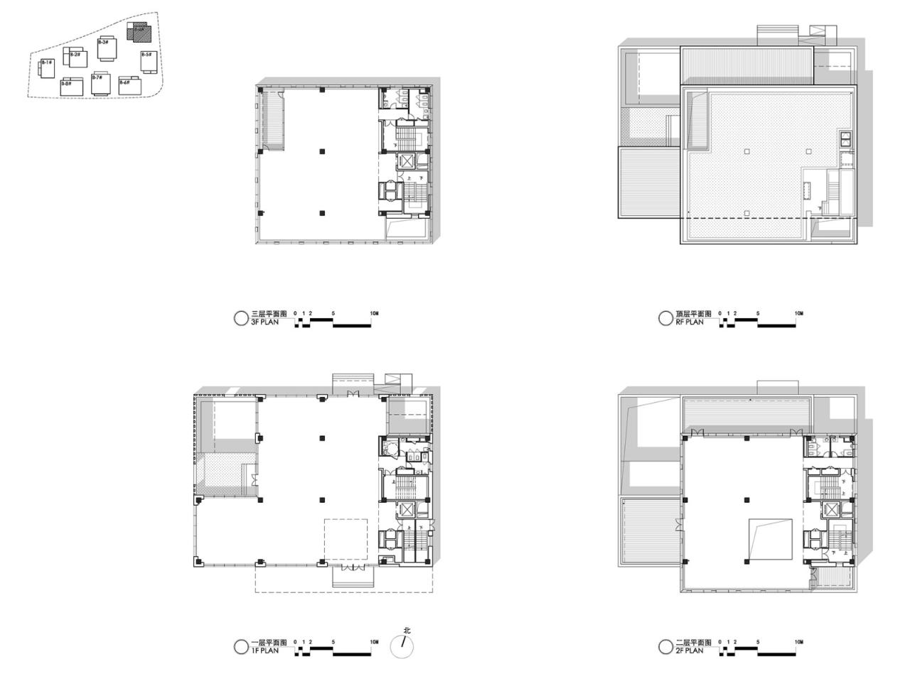
△平面图

△户型图

△立面图

△剖面图

△细部结构大样图

△细部结构大样图

△细部结构大样图

△细部结构大样图

△细部结构大样图

△细部结构大样图

△细部结构大样图

△细部结构大样图
项目信息
建筑师:大正建筑
面积:40000m²
项目年份:2021
摄影师:苏圣亮,CreateAR Images
主持建筑师:李硕,周雪峰,余江帆
设计团队:樊明明,李乐,叶磊,涂单
功能:公共办公建筑
业主方:星月投资
景观设计:奥雅纳
幕墙顾问:凯腾幕墙
建设单位:中国建筑第八局
地点:上海

BIM建筑网





评论前必须登录!
注册