
炮台和港口位于韩国丽水市突山岛 Baekcho 路海拔 100 米的山中。在西北方向,围绕钟鼓山形成丽水市,在狭窄的沿海平原上有 Marae 山和 Jasan 公园。场地西南侧的 Seguji 村与南海形成鲜明对比,城市天际线十分迷人。2012 年,丽水作为南海海洋旅游胜地受到关注。尽管如此,沿梧桐岛形成的美丽丽水夜海,以及其他海上岛屿、大桥和多山海峡成为了地理背景。


分区建筑群的布局由塔楼式 A 区和单一住宿式 B 区组成,塔楼式 A 区可欣赏城市天际线,住宿式 B 区可在大自然中休闲娱乐。A 区首层分为接待室,供咖啡馆使用者和客人使用,以及住宿设施,可欣赏白天和夜晚的城市景观。每个单元都有一个露台,与餐厅一起用于户外用餐和聚会。面向露台的水疗中心外部体量确保了代际间的私密性,并展现出一个特殊的立面。单个单元的集体构成就像在一个大框架中突出的度假区,就像自然与建筑之间的合作,随着季节和时间的变化而变化。


休闲咖啡厅 + 无边泳池 – 休闲咖啡厅和泳池向客人和咖啡厅使用者开放。景观层的设计是围绕休闲咖啡厅划分上下两个功能区。屋顶层像船的甲板一样与天空相接,使周围的景色尽收眼底。咖啡厅的下层是无边际泳池,在这里可以欣赏到城市天际线的壮观景色,与天空融为一体。通往泳池和露台的坪台可作为日光浴和休闲的座位。在这个空间里,您可以欣赏到红色丽水城市和大海上的夕阳。


中转观景台中转观景台是 A 区和 B 区之间的中间空间。它是一个传递不同空间特征的平台,也是一个单独的接待区域。从 A 区穿过所有楼层的电梯和垂直序列通过安装在地下二层的空中走廊通往中转观景台。中转观景台与公共桥梁融为一体,是帮助客人出行的场景设计,并且在此可以欣赏濑久寺村的美丽景色。

B 区–专用住宿区 B 区采用倾斜地形。每栋建筑之间的空间是与每个单元相邻的社区空间。该空间的主要目的是通过为每个单元顺利提供采光和通风,创造与地面条件相似的内部环境。每栋建筑之间的室外空间是欢迎客人的建筑装置。宽阔的露台是一个外部休闲空间,在这里你可以感受到风的静动、森林的静谧和远海的辽阔。


该单元安装了前窗和露台,通过利用不受周围目光或噪音干扰的周边环境,加强水疗和烧烤等户外活动。在室内,设计了一个跳过的横截面,以便根据房间的功能将露台和内部程序联系起来。在厨房和餐厅,户外用餐的同时还能眺望森林、城市和水疗中心,这与客厅相连,带来了全新的空间体验。在室内卧室,我们采用了韩国传统的“toenmaru”空间,以保持通风、日照和景观方面的有利环境。

项目图纸

△总平面图

△A区 B2平面图

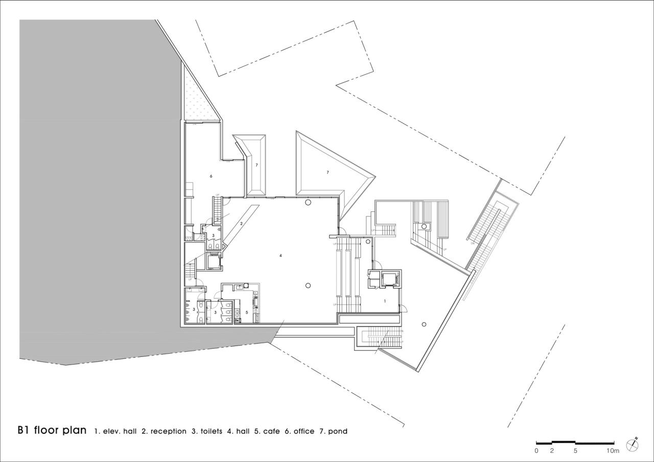
△ A区 B1平面图

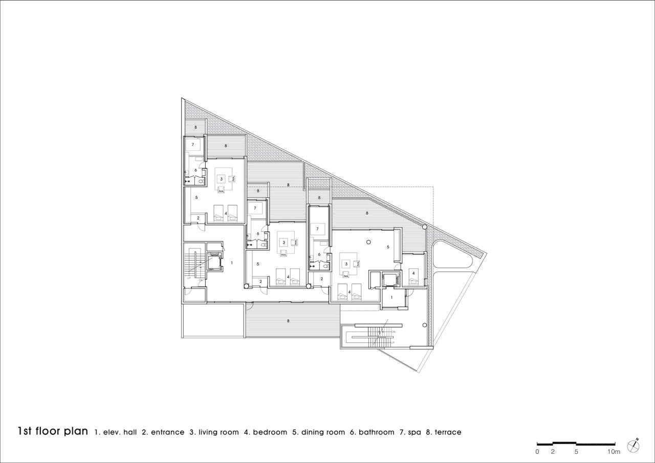
△ A区 一层平面图

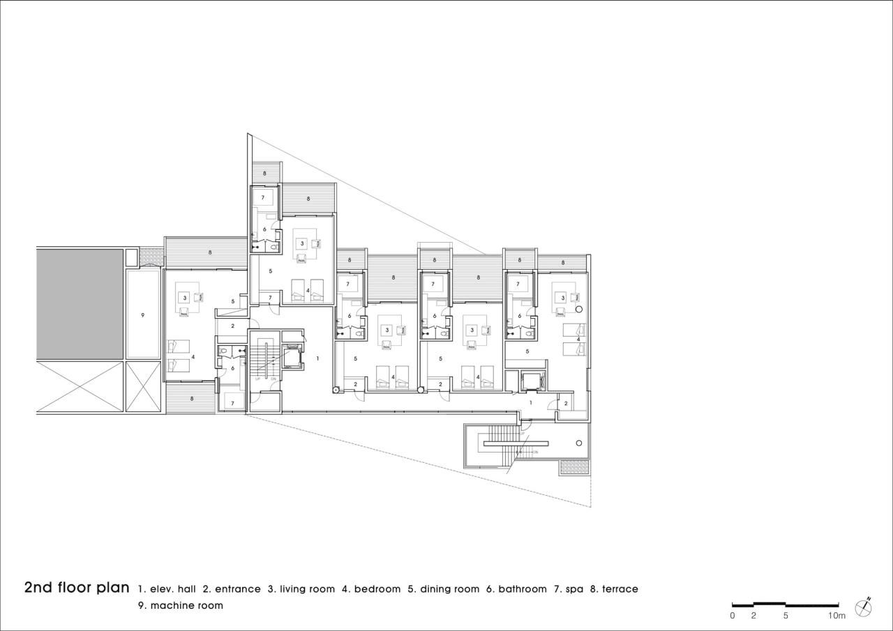
△A区 2层平面图

△ A区 3层平面图

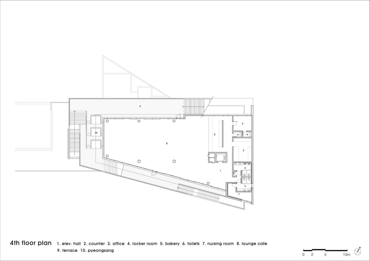
△ A区 四层平面图

△ A区 屋顶平面图

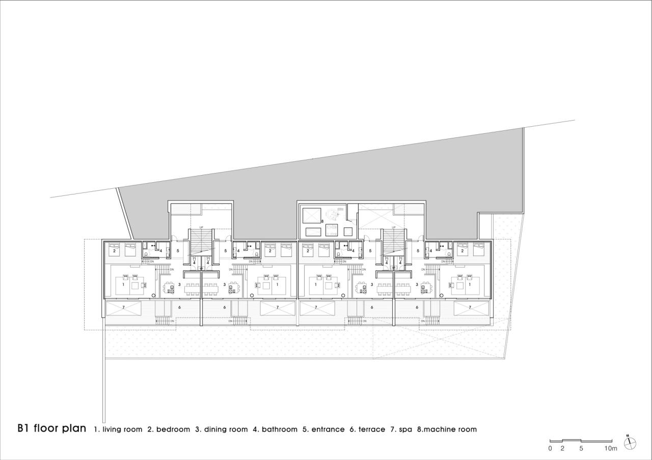
△ B区 B1平面图

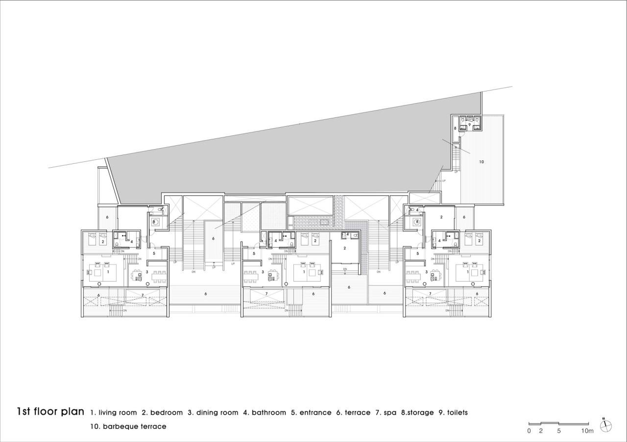
△ B区 一层平面图

△ B区 二层平面图

△ B区 屋顶平面图

△剖面图

△剖面图

△剖面图

△剖面图

△剖面图

△剖面图

△剖面图
项目信息
建筑师:IDMM Architects
面积:4978m²
项目年份:2022
摄影师:Jaeyoun, Kim
建筑设计:Heesoo Kwak, IDMM Architects
功能:酒店住宿
地点:韩国,Yeosu

BIM建筑网





评论前必须登录!
注册