
这是一个艰苦的项目,但也是严酷的条件下创造了宁静和愉悦的项目。场地项目位于四川西部藏区大山之间的海拔4000m的小块冲积地上,两侧的山体巍峨壮观,但也对场地带来了强烈的压迫感。唯一通往外界的途径是一条沿着山谷的4米宽乡道。



秩序严酷的外部条件迫使建筑用自身力量去抵抗不利因素,创造出一个具有强烈精神力量的场所。结构、空间和秩序的高度统一让建筑表现出一种宗教般的氛围。
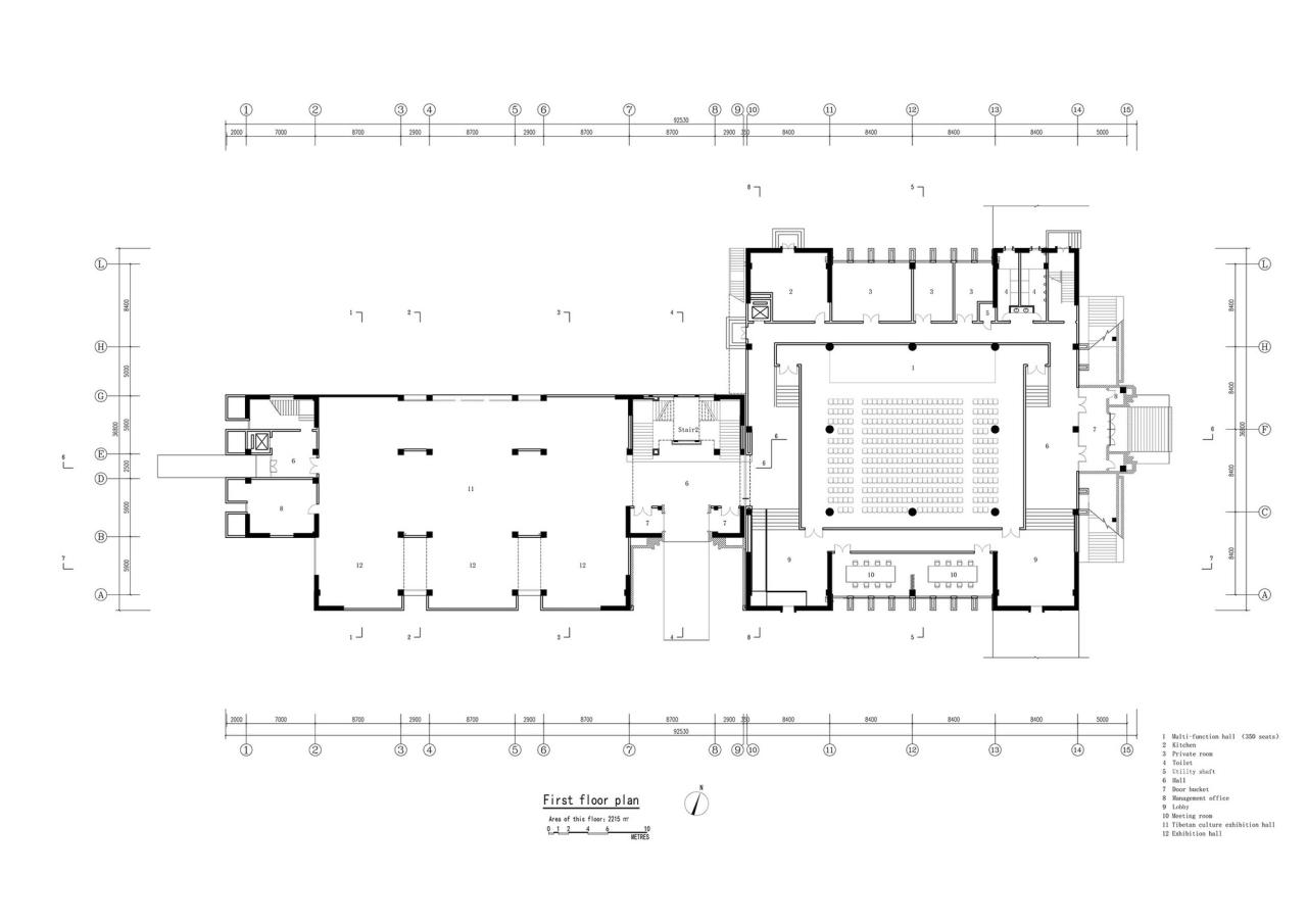
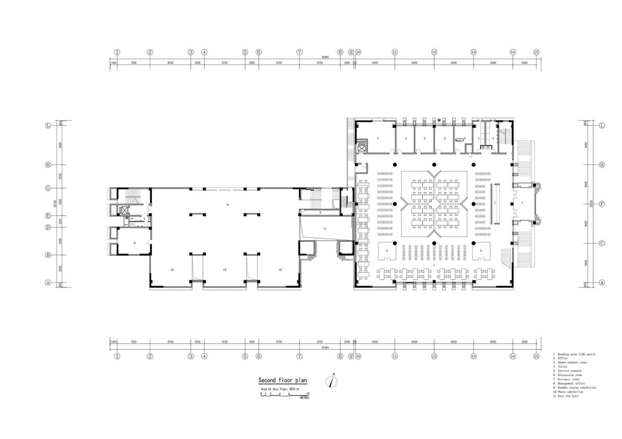
系统该建筑主要包括图书馆和藏服饰文化博物馆两部分。博物馆采用了典型的AB空间模式布局,而图书馆则采用了非常明显的向心系统,两者通过一个共用门厅连接在一起,形成一个整体。



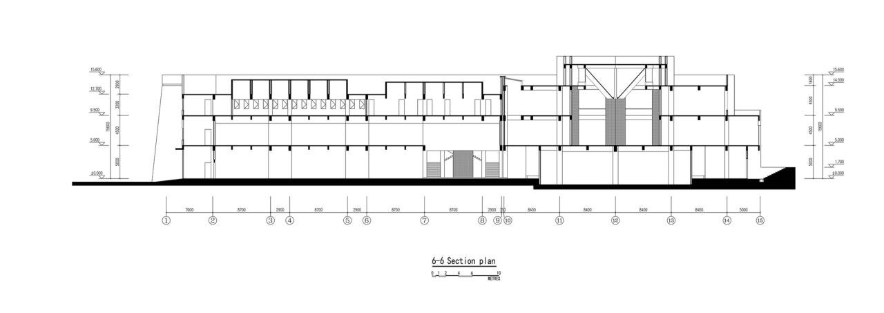
中心图书馆采用了中空的四角对称设计,上部中厅的天窗以45度角度扭转,突出了中心的存在。高出屋顶的天窗为内部带来丰富的自然光线,赋予图书馆内部多样的视觉效果。扭转的天窗与中庭内的砖柱形成系统性的扭转关系。图书馆下部的会堂空间与上部的用途正好相反:上部的中庭公共空间变为下部的会堂空间,而上部的使用空间则变为下部会堂的服务空间。




阳光在藏区,阳光只要有机会就会毫不犹豫的穿透空间,和建筑共同演绎静溢和光明的对话。空间呈现出了一种祥和的氛围,令人感受到宁静和温暖。



地域由于生产力水平和建筑建造技术相对滞后,再加上藏地气候恶劣,粗糙是藏地建筑的一种基本特质,但这种粗糙背后也蕴含着强大的力量。收分的外墙是很明显的藏区建筑特点。而外部喷浆外墙材料的使用赋予建筑强烈的手工感,自然挂下的浆体呈现出类似布达拉宫泼甜墙工艺的效果。
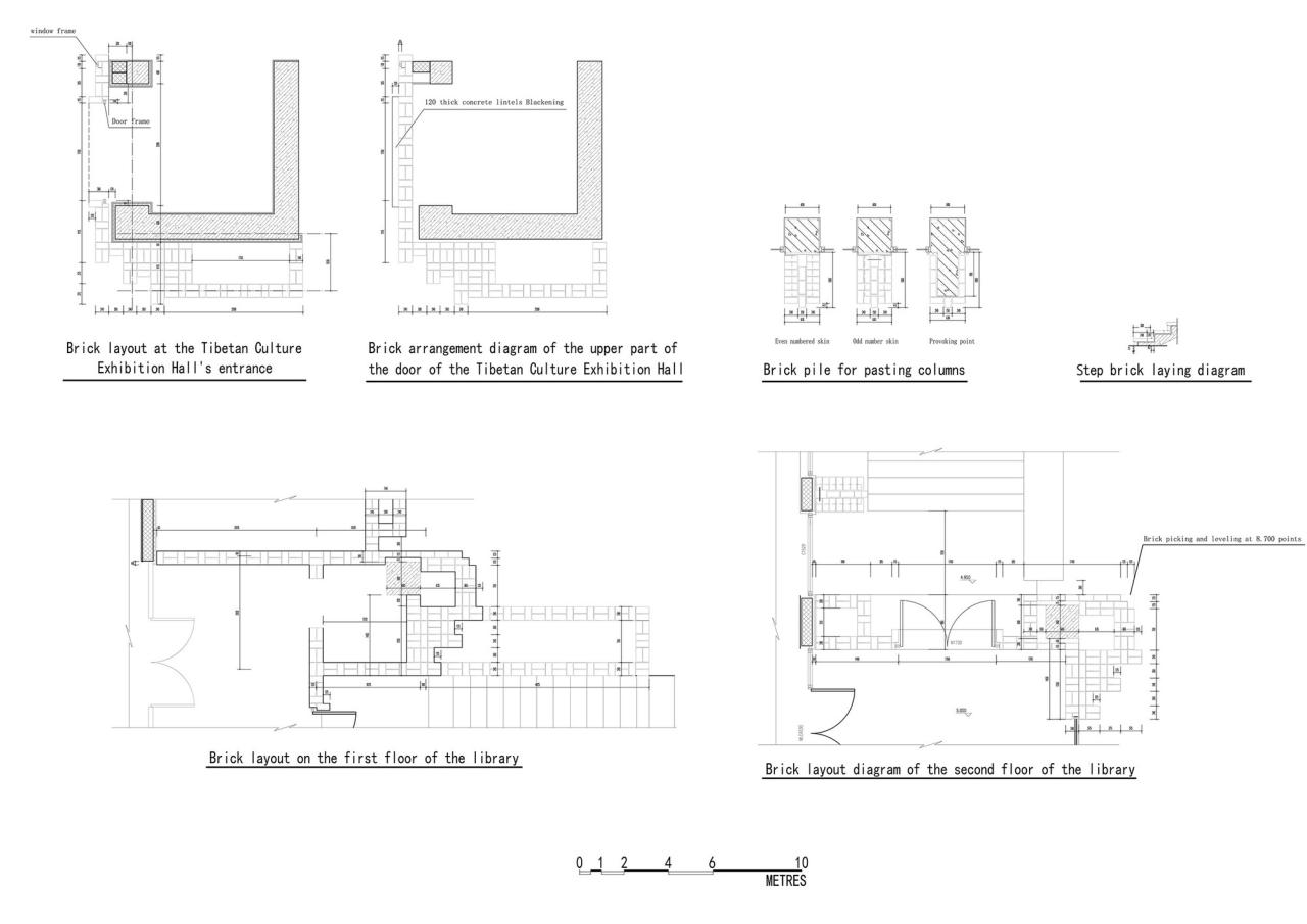
砖拱与整体的粗糙形成反差,局部的精细工艺具有一种敬畏之情。砖材的容错性和获取便捷性,以及砖拱施工工艺的成熟,使砖成为参与项目的人表达敬畏之情的理想选择。两个入口处的砖拱都是经过真实的发卷完成的,尽管开始时工人们有所抵触,但当木模拆除后,砖拱呈现出来时,每个人都为自己表现出的敬畏之情感到骄傲和欣喜。



细节大面积的材质对比赋予建筑以力量和真实感,没有多余的装饰。位于东南角高处的窗户是建筑上为数不多的装饰构件,具有抽象的藏式窗户风格。在洞口的处理上,设计充分考虑施工的顺序,特别是对窗框、门框和墙交接缝的遮挡。同时,在窗洞口内的100毫米范围内采用精细抹灰处理,使建筑显得更加精致。
装修考虑到高原地区的施工条件,内部装修采用了直白的建构呈现方式,其中最重要的工作是设备的整合。空间分隔完全采用了土建方法后,书架和家具成为装修的主要组成部分。这些组件在成都预制完成,然后在现场进行安装。




神明尽管藏区条件艰苦,但不缺乏真诚和信仰。项目的资金来自慈善基金会的筹集,面对这份善意,所有产于者都是小心翼翼并且竭尽所能。业主本人甚至在工地居住了长达3年多的时间,以行动践行信仰。所有人的努力使项目完成度超出了预期。再次征明了一点:困难不是问题,态度决定一切!
摄影师在项目拍摄中捕捉到了一幕:阳光穿越云层洒在图书馆上,周围一片漆黑。这一幕的呈现不得不让人思考物质背后的精神力量,这大概是人存在的终极意义。
















项目图纸

△项目模型图

△一层平面图

△二层平面图

△三层平面图

△剖面图

△细节大样图

△结构示意图

△分析图

△细部大样图
项目图纸
建筑师:荣朝晖工作室
面积:6000m²
项目年份:2022
摄影师:存在建筑-建筑摄影,夏至
主创设计师:荣朝晖
设计团队:荣朝晖 顾爱天 王雪丰 刘永平
景观设计:杭州心象建筑设计咨询公司(章洪寅、邵勤、杨杰)
室内设计:杭州心象建筑设计咨询公司(宋鹏、姚十、张帅、章慧 )
灯光设计:上海云璞空间设计有限公司(张鹤清)
结构设计:江苏中锐华东建筑设计研究院有限公司
施工方:四川华鑫建筑工程有限公司
委托方:炉霍县德巴图书阅读爱好者协会
地点:四川

BIM建筑网





评论前必须登录!
注册