
“交月亭”位于浙西丘陵地区的一座村落之中。村子在半山腰,四面景观具佳。村里大多数民宅已经被改造为民宿,因此需要为其配套一座餐厅以及前台接待。交月亭是进入村子的第一座建筑,从一个民宅复建而来。一层临路,作为村子的接待以及厨房后勤区域,二层视野开阔,作为餐厅。交月亭的背后紧靠竹林,面前是开阔的山水景观。那么建筑该以何种姿态进入自然山水中?是设计要回答的问题。



择木:从“小料大作”到“大料小作”木是一种温暖的令人亲近的材料,由自然生长而来,是凝固的生机,是驯化的自然。其易得性和可加工性,使得木材是最原始最质朴的构件材料。人对于木材的亲近感源自于人跟木材长久的相伴相生。仅需要简单的工具,人就能将自然中获得的木料制成器物。但是自然之中的木料尺寸有限,要达到更大的结构跨越,需要用小料进行叠加。中国传统木构中就有“小料大作”的技艺和传承。“小料”的叠加手法,不仅是对工匠技艺的考验,也是传统社会中等级化的象征(比如斗拱的铺作、藻井的层数、……)。可以说木作是中国传统建筑中,集合了社会、文化、哲学的三位一体的系统。



但随着现代胶合木技术的出现,木材的长度已经突破了自然生长的限制,“大料”在工业中极易获得。因此在“效率优先”的现代结构设计之中,现代木结构工艺想尽办法让木材的力学性能接近钢结构和钢筋混凝土结构,而并非是去挖掘木材本身的秉性。现代木结构沦为工业建造下的 “绿色包装”。在此思维下的北美的木结构建造系统,其巨型的构件尺度和肥硕的金属节点,都显得无比粗鄙。而脱胎于北美系统的日本木结构建造系统,又是对其物性本身的极尽表现,显得肤浅和简陋。


中国传统木构本身文化完备,技术并不追求效率。复兴传统木构的精神,才是当代中国现代木结构要要开辟的方向。因此,为了让结构效率让位于文化,“交月亭”的结构跨度并没有用一根大料完成,而是将大料断作多跟小料,多层的叠加,成为某种冗余。这是一种对于效率优先的反叛。如果说从“小料大作”到“大料大作”是师夷长技后的文化放弃,那么从“大料大作”到“大料小作”就是矫枉的文化回归。



反拱:从“编木拱”到“编木索”交月亭的结构原型来自于中国传统的“编木拱”桥,是“小料大作”的典范。北宋张择端的《清明上河图》中,“虹桥”是整个画卷的核心,是编木拱桥的艺术化形象。在实际的建筑遗产中,浙江南部的廊桥,便是这一结构原型的实际建造。编木拱桥是多榀由短木杆连成的纵向拱,通过横向的穿插,形成整体的刚度,完成大跨度的结构。如此大的跨度,紧靠铰接的榫卯节点,便完成小料的互承,且屹立百年,可以说是高超的技艺和绝妙的设计。


交月亭的结构,将这种编木拱进行了上下反向放置,将“拱”变成了“索”。杆件受力的相互关系不变,只是受力的方向发生了翻转:原本拱的轴向压力变成了轴向拉力,原本拱支座的侧推力变成了侧拉力。这样便可通过柱子的横向加宽来抵消,而不需要拱结构中庞大的刚性基础。从“编木拱”到“编木索”,形的反相,也是力的反向。是对传统木构的巧借,也使得空间产生向外扬起的趋势。


造月:从“叠月”到“水波”交月亭的杆件并没有直接沿用原型中的木圆杆,而是用弧形的片状杆件。两头交接处收小,中间重叠处弧出。是弯矩的应力形状,也似月的形状。多片如月状的杆件层层叠叠,仿佛是《水图》中“秋水回波”。从“叠月”到“水波”,是东方的诗意,这种诗意也一直延续到墙面和楼梯。梁与柱,转接处都进行了一种曲波化的处理,一种似水波的曲线无处不在。



借山交月亭“与骨为形”,除了承重结构的木构外,四面通透似亭。这也恰把远处的山景借入。这时,木结构不再是主角,退于其后,作为张望自然的庇护。虽退,但却也因其形,产生某种空间气韵。






项目图纸

△手绘图

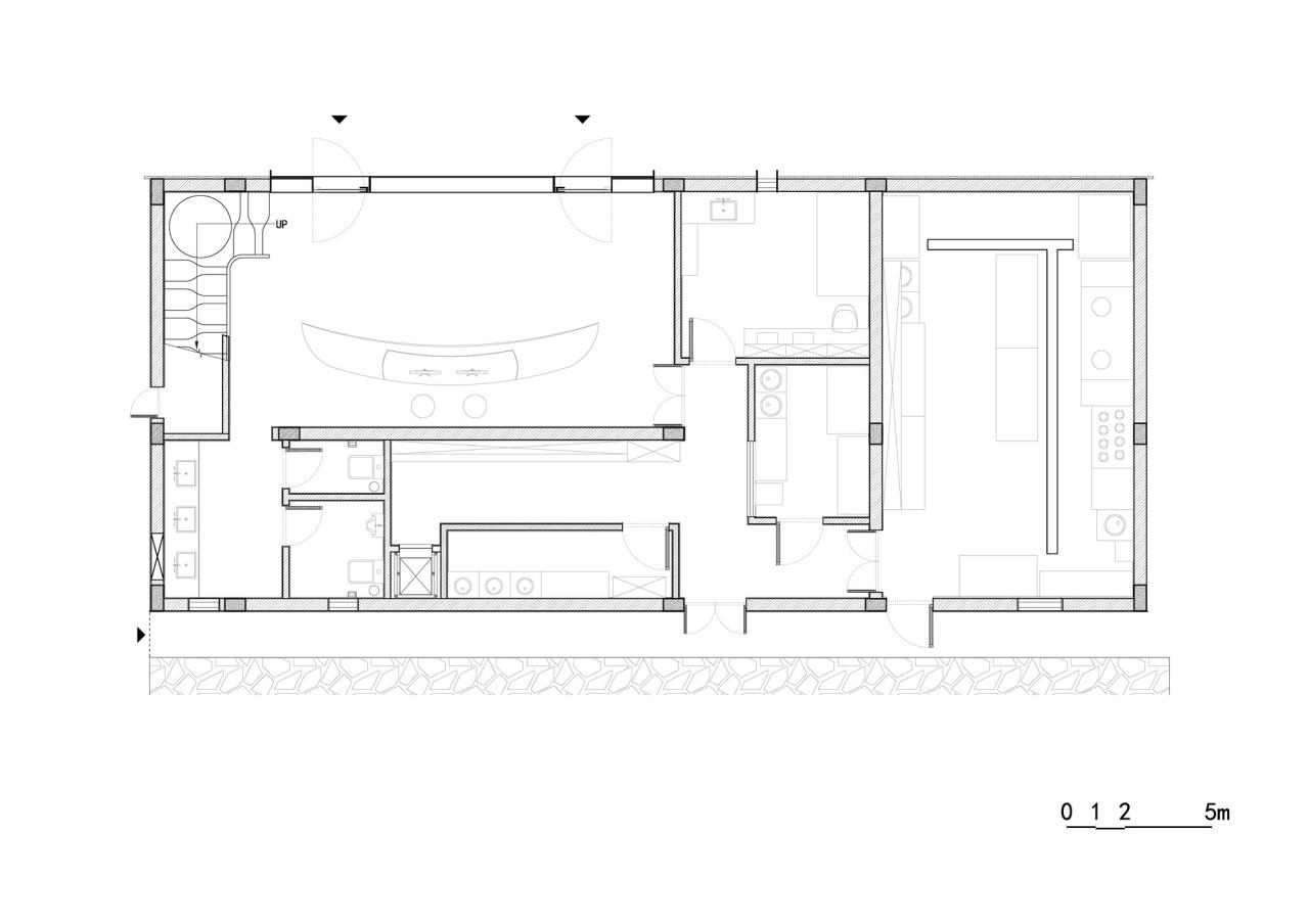
△一层平面图

△二层平面图

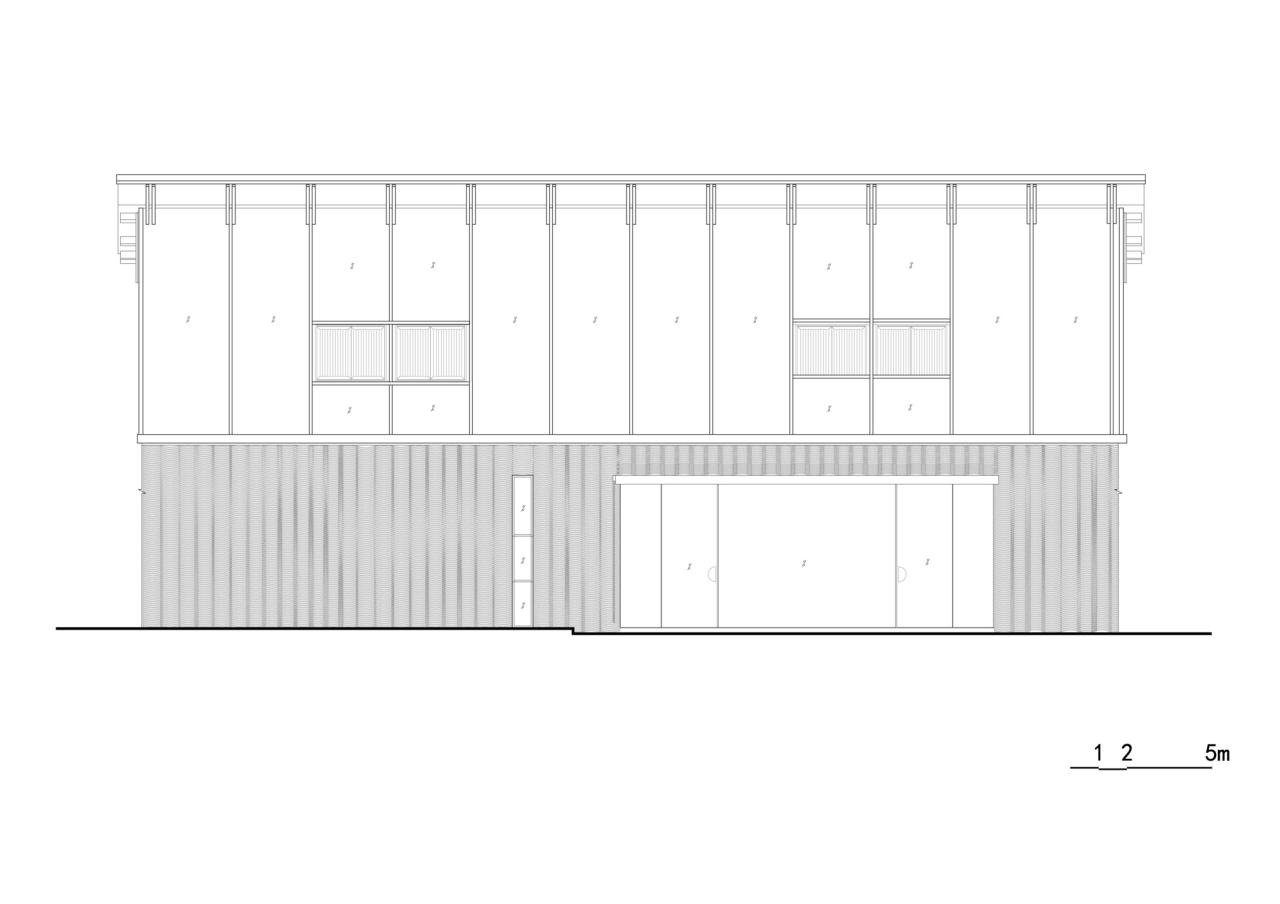
△立面图

△剖透视

△结构示意图

△透视图
项目信息
建筑师:来建筑设计工作室
面积:342m²
项目年份:2021
摄影师:唐徐国,赵奕龙
主持建筑师:马岛
设计团队:严安、唐铭、李甫颖
结构顾问:张准
木结构施工:上海木乐康木结构工程有限公司
室内施工:杭州戚龙建设有限公司
照明顾问:上海山色照明有限公司
项目类型:餐厅
业主:桐庐·未迟·千山精品民宿
结构:钢筋混凝土框架结构&木结构
场地面积:200m²
地点:杭州

BIM建筑网





评论前必须登录!
注册