
JJM研发总部是长沙梅溪湖片区新的地标建筑之一。UNIT从2014年接受委托开始设计,项目一期于2016年投入使用,二期于2023年竣工,历时10年,整个项目已经全部投入使用。


JJM是中国首家成功研制国产GPU芯片并实现大规模工程应用的企业,也是全球领先的高科技企业。“我们希望建筑能体现并提升JJM的企业文化价值观,与周边优美的自然环境完美链接,创造一个即属于JJM又属于梅溪湖片区的地标建筑。”UNIT首席建筑师杨沫阳如此阐述设计愿景。



项目位于梅溪湖新区入口位置,背靠岳麓山脉,临湖第一排,景观和生态资源优越。项目由三栋建筑组成,1号楼2号楼为研发办公,3号楼为VIP接待中心。三栋建筑在基地中部围合成一个多方向多角度的开放式不规则庭院空间,与紧临的山脉走势建立一种自然的对话与融合。这个不规则庭院空间在湖岸景观和山体之间也建立了完美的链接,弱化了巨大的建筑体量对优美自然景观带来的消极影响。



为了进一步弱化巨大的建筑体量对自然景观的阻隔,我们将一至二层的实验室,员工餐厅等空间整合成山体形状的深灰色体量。将上部三至六层主要使用空间整合成两个白色体量进行视觉上的抬升,使其漂浮于深色的山形体量之上,给人一种轻盈的视觉体验。上部白色体量的窗户被设计成15个等高不等宽的模数化系列并按照有序渐变的组合排列,形成优雅灵动的立面效果,建筑体量灵动俊逸,让人印象深刻。以使用功能弹性高效、生态人文可持续为核心,不断赋能未来研发办公新模式。建筑形态动感飘逸,立面灵动渐变,建筑完美融合于湖光山色之中,使其在梅溪湖片区办公楼宇中脱颖而出,极具辨识度。














项目图纸

△总平面图

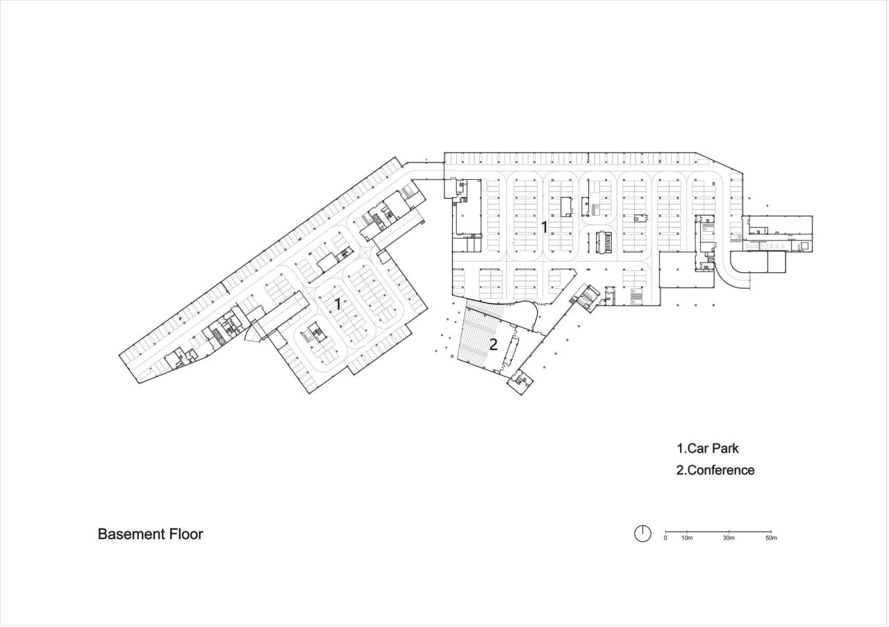
△地下一层平面图

△一层平面图

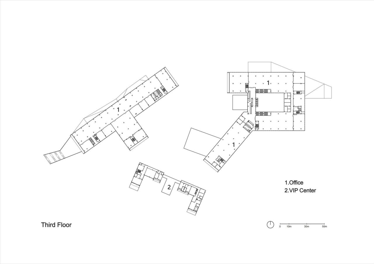
△三层平面图

△立面、剖面图
项目信息
建筑师:单元建筑
面积:60000m²
项目年份:2023
摄影师:张虔希
厂家: 中国南玻集团股份有限公司
深圳单元建筑设计顾问有限公司设计团队:杨沫阳,张根,Luca D’Amore, Stephanie Leboeuf, 余顺,杨宁波,严子龙,胡晓雨
施工图设计单位:中航长沙设计研究院有限公司
室内建筑师:GOLDMANTIS
幕墙设计施工单位:北京江河幕墙股份有限公司
施工方:湖南建工集团有限公司
景观设计:湖南跳马园林有限公司
主创设计师:杨沫阳
施工图设计团队:魏世耀,王耀华,陈峦,于春露,孙星,廖鹏,徐航新,李江,陈志林,吴军,陈勇,李燕平,彭彤勇,龚哲,肖翔,廖平安
委托方:长沙景嘉微电子股份有限公司
地点:长沙

BIM建筑网





评论前必须登录!
注册