
项目背景
建筑坐落在浙江省台州市黄岩区的一个工业园区,这个工业园区聚集着全国知名的汽车塑模、电动摩托车的模具生产厂家。全国的头部汽塑企业,都汇聚在台州黄岩这个地区发展壮大。厂区用地北侧是一个村庄,整个工业区跟和村庄相隔一条河,这条河作为一个高密度工业化和原始聚落的自然边界划分。为了打造工业旅游小镇的概念,政府愿景把这条河进行治理再结合河北侧的村庄,以及再往远处的山峦,形成乡村旅游观光产业的策略,将乡村观光旅游和工业旅游小镇这两个组团并置在一起协同发展。



家庭式作坊原型与发展启动机车总部建筑建筑设计前的考察发现,工厂的空间系统是原始粗放式机械化模式,在常规化钢框架厂房放置不同的流水线的设备。即便聚丰集团在当地是头部品牌企业,它的不同的工种,从这种研发、设计、加工、生产、包装、仓储、物流的全流程环节融合到一个厂房空间。在走访其他厂房时也都存在非常相类似的空间环境。整个场景呈现出杂乱的状态,这呈现出整个区域范围的制造业空间范式。



这来源于以“宗族”成员为基础产生的非正式契约的家族企业管理经营模式,深深影响了中国近代扎根于农耕文明的工业化进程。区别于西方国家的工业化发展历程,近代的中国制造企业多呈现出与土地以及血缘、宗族的紧密关联。民办企业往往萌芽于自家宅基地小作坊,发展成前店后厂,通过不断扩大形成一个甚至数个大厂房空间。尽管在空间尺度上在不断的变大,但制造车间的空间结构没有根本的变化和创新。



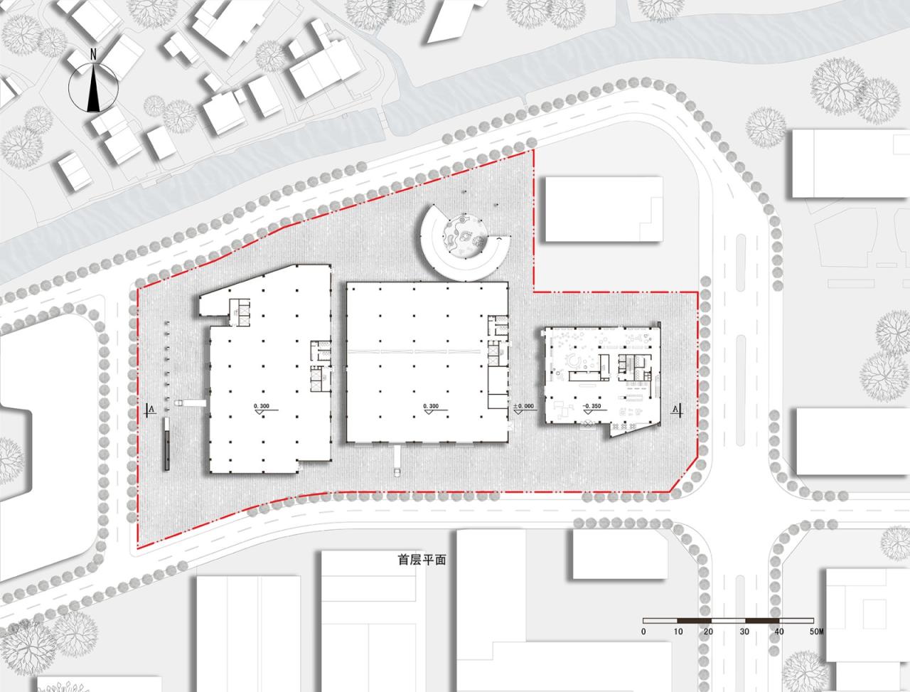
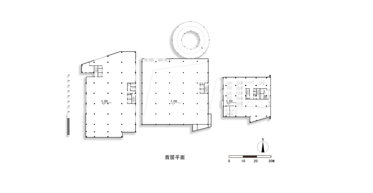
工业观光叙事性空间由于新建筑要打造区域内的行业标杆和灯塔,树立示范性的效应,观光者的参观流线是区别于传统的企业展厅。叙事分为了两个层面,第一层面是生产者, 作为叙事的逻辑的首要条件,生产者的空间是参观流线和企业空间的起点。整个车车间的生产过程,工人生产的过程、研发的过程,都变成了实物展示的一部分。


第二个层面是参观者。在整个的建筑体当中植入了一条观光户外流线使得外部参观者加入到叙事流程当中,它从主楼沿着大厅的东侧作为起点,到主楼的北侧至观光楼梯到二层空间。接着沿着生产车间的北立面一直往西侧走,走到整个建筑的最西侧,再进入到整个厂区的平面形成一条完整观光流线——既可以看到建筑内部的产业流水线,也能够看到建筑北侧的自然风景,河道以及北侧的村庄与远山。整个步道就变成了生产和观光产生关联的一条纽带。



这两条线在某些空间节点上是进行交错的,比如说在它的主楼大厅的地方,在主楼展厅的地方,这两条故事线是交叠在一起的。绝大部分时候两条线是隔而不透的,有视觉但并没有实际可达性保证生产的完整性,包括一些保密环节,呈现一定的透明性,时而交叠时而完全分离。


三个形体:形式,大屋顶,村庄的建筑研发、生产、物流这三大功能体块通过折叠的大的屋面将其覆盖,形成一个完整的建筑空间形象。被包裹住的三个形体挑出了阳台,打破传统的厂房的封闭流水线,是内部办公研发和生产车间的工人的户外空间。屋顶空间被利用成一个停车场、太阳能板的放置、以及供员工使用的餐厅食堂和户外活动空间,为生产、生活以及交流提供了更多可能性。是对隔岸的传统村庄建筑形式的某种回应。




在工业结构的变革随之迎来空间的变革前提下,家族企业得到蓬勃发展的契机。当企业演变成一个面向全球化市场的现代企业,同时保留最原始的家族血缘基因,新建筑不只是一个生产和观光功能,还是承担部分家族生活的空间载体。





项目图纸








△剖面图

△轴测图
项目信息
建筑师: 殊至建筑
面积: 43000 m²
项目年份: 2023
摄影师:金伟琦
厂家: KOB, 立邦
主创设计师: 史洋
设计团队: 黎少君、郭立明、殷漫宇、王子铭、姜超、董欧、陈韦光、吕阳
合作设计方: 浙江公和建筑工程设计有限公司
委托方: 聚丰机车集团
地点: 台州

BIM建筑网





评论前必须登录!
注册