y.ad studio|上海严旸建筑设计工作室受甲方邀请参与位于北京平谷区大兴庄镇白各庄村平谷新城西侧的集体土地租赁住房的12#楼的社区图书馆竞赛,共同参与的还有其余五家国内知名设计单位,最终工作室赢得了本次项目的设计竞赛及设计权。

▲图书馆鸟瞰 © 是然建筑摄影
图书馆位于项目的东南角位置,紧邻集体土地租赁住房社区生活服务区入口,南侧为50m宽景观绿地。由于所处位置距离为北京郊远区,且步行范围以居住功能为主,生活配套低端且数量少。项目侧重塑造内部商业与公共配套空间为社区提供生活服务与便利。而图书馆则是集体土地租赁住房项目规划中的重要配套设施之一。


▲项目区位 © y.ad studio
01 我们还需要“图书馆”吗?
在如今信息时代,电子阅读相对于传统的图书馆阅读有着诸多的优势。如经济实惠,传播速度快,收藏方便,找书、购书方便,且功能多样、携带阅读都方便,阅读环境还人性化,字号、版式等可任意调整。设计之初我们也自我询问,这个时代还需要这种传统的专门的图书馆阅读空间吗?

▲2F阅读自习区 © 是然建筑摄影
02 我们的社区需要什么样的图书馆?
在疑问的驱动下我们对项目做了一些调研、分析及思考。
首先是区域的物业结构及人群分析。发现周边居住区以品牌房产社区及乡村自持房产社区为主,且面向的人群:青年年龄层为社区内主流人群,夫妻或带孩子的家庭,年龄25-35之间,有一定文化水平和消费能力,多从事中高端服务业,有一定生活品质追求。

▲分析图 © y.ad studio
其次对国内外众多已建成的社区及城市图书馆进行考察及分析,发现其实现如今好的图书馆已经不仅仅是局限于传统的阅读的功能,它已经包含了更多元的使用机能与社会意义。
如通过社区图书馆来营造文化与教育的氛围,通过社区图书馆来吸引外部消费者,通过社区图书馆来提供社区服务等……
不同于面对冰冷的电子屏幕,图书馆不仅是一个让人从阅读中感受到精神满足的地方,而且还是一个为人们提供更多社交、活动、休闲、放松的多功场能复合空间。亲人、朋友、同事进行相约小聚交流的场所,一个全新的社交能量场。一个有着安静思考氛围与独自相处的场所。

▲傍晚的建筑外立面 © 是然建筑摄影
03 社区属性
所以我们希望图书馆在建造完成后也可以实现三种愿景。
一是给社区业主提供更好的配套生活服务,激发业主的参与建设意识,让其变成社区的文化符号。
二是辐射周边的人群。使其成为周边社区人们向往及喜欢聚集的场所,甚至是希望它可以在一定程度影响人们的文化素养。
三是面对我们所处的城市位置。希望它成为生活或路过平谷区的人想要来转一下,看一看的地方。让有着相同价值观的人聚集走到一起,重塑他们的社交和生活方式。
让它回归社区、回归初心,成为人们喜欢的场所。

▲1F“社区客厅”交流、活动、阅读、休闲区 © 是然建筑摄影
04 功能重组
图书馆为地上三层建筑,总建筑面积1286.25㎡,其中一层524.01㎡,二层400.85㎡,三层361.39㎡。我们从空间功能及情感设计上将场所进行了功能归纳与设置。

▲功能分析图 © y.ad studio
设立了公共休闲区(如社区客厅、轻食咖啡、临时展览、电影放映等)、阅读区(如自习室、创客讨论区、公共阅览区,电子阅览区等),以及儿童教育区(如儿童阅览、家庭图书馆、儿童放映厅等)。
同时留出场地为日后植入情感设计预留出空间,让业主可以参与到社区文化展示及活动互动中去。

▲1F“社区客厅”咖啡水吧区 © 是然建筑摄影
1F我们将其定位成一个“社区客厅”。希望在这里可以实现公共社交,不仅仅是阅读,还可以是一个集展览、咖啡、活动、交流为一体的综合性场所。

▲1F“社区客厅”咖啡水吧区 © 是然建筑摄影

▲1F“社区客厅”交流、活动、阅读、休闲区 © 是然建筑摄影
2F则将更多阅读自习、办公的功能放在这里,希望这里可以为青年人提供阅读、自习、交流、讨论的场所。

▲2F阅读自习区 © 是然建筑摄影
3F我们将更多家庭与亲子的活动放置其中,提供一个儿童阅读、游戏与亲子的空间。

▲3F儿童手工及阅读区 © 是然建筑摄影

▲3F家庭阅读区 © 是然建筑摄影

▲3F廊道空间 © 是然建筑摄影
05 空间主题
如果说建筑有了光影的陪伴,便有了灵魂。那么夜深归家的人有了光的守候,便有了心灵的寄托。
经过对建筑空间的分析,首先我们利用面对广场入口、内外通透,三层通高14.9m的垂直面玻璃幕墙入口前厅,制造视觉点,吸引人们的视线。

▲模糊的室内外界限 © 是然建筑摄影
其次南面玻璃幕墙,因为面朝50m景观带与广场,我们希望模糊室内外的界限,将室外景观延伸至室内,设置向外的座椅休闲交流空间。而中庭顶部的长条采光天窗,三层通高,明亮通透。我们通过设计手法,引导光影的进入营造空间氛围。

▲将室外景观延伸至室内 © 是然建筑摄影
结合以上空间特性我们在场所中植入了两个空间主题“光之容器”、“光墙书阶”。

▲分析图 © y.ad studio
光墙书阶
利用前厅与通透的玻璃幕墙,我们通过制造层叠的书墙引导主要视觉点,营造一种宛如灯塔的视觉形象,使之成为社区的精神堡垒。

▲图书馆主入口 © 是然建筑摄影

▲分析图 © y.ad studio
温暖的主调让人充满温馨与希望,层叠转折的楼梯让空间充满游走的趣味及新奇感。

▲1F前厅书墙 © 是然建筑摄影

▲光墙书阶仰视角度 © 是然建筑摄影

▲书阶 © 是然建筑摄影

▲书阶内部 © 是然建筑摄影

▲2F书阶视角 © 是然建筑摄影

▲3F看向光墙书阶视角 © 是然建筑摄影

▲光墙书阶观景平台 © 是然建筑摄影
光之容器
利用挑高的中庭采光空间,通过引导光线的进入,让空间可以产生不同的表情变换制造空间情绪。
试图营造一种仪式感,一种氛围,让人们在这里可以沉静下来,制造沉思的氛围。让空间具有情感、意境及趣味性。也希望人们通过空间光影的变化可以感知时间与时空。

▲分析图 © y.ad studio

▲1F内中庭空间 © 是然建筑摄影

▲内中庭仰视 © 是然建筑摄影


▲2F内中庭空间 © 是然建筑摄影


▲3F内中庭空间 © 是然建筑摄影


▲3F内中庭及过道空间 © 是然建筑摄影
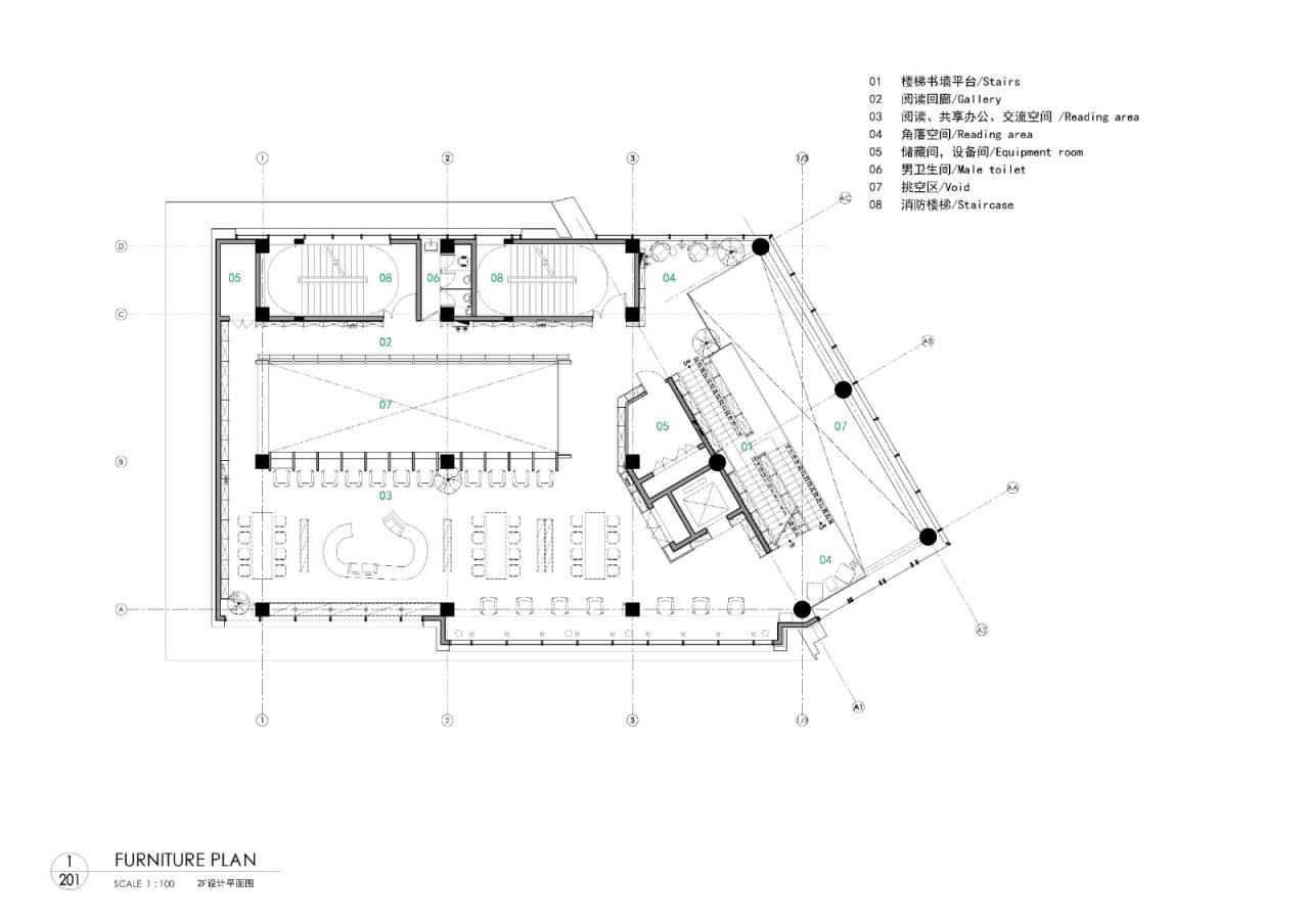
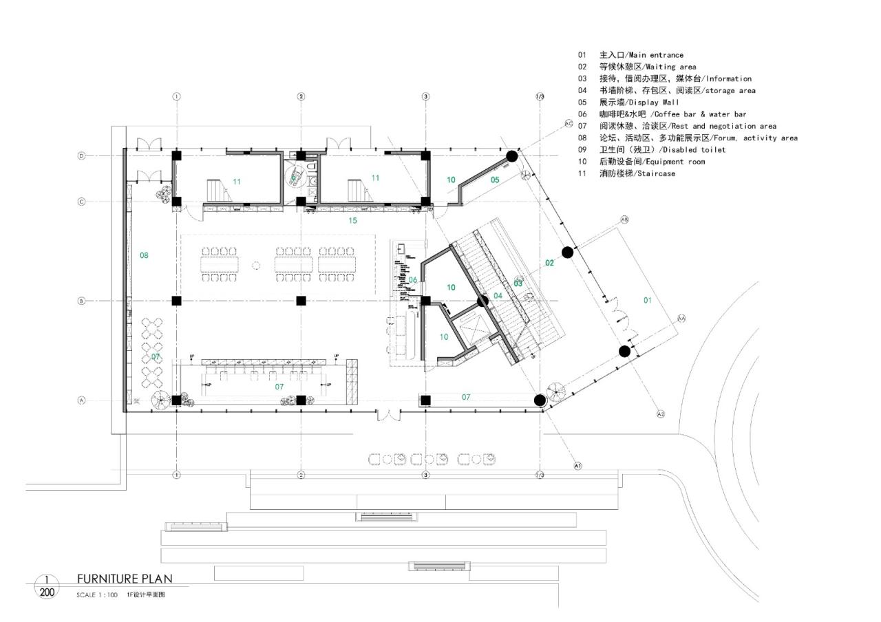
项目图纸

▲一层平面图 © y.ad studio

▲二层平面图 © y.ad studio

▲三层平面图 © y.ad studio




▲家具详图 © y.ad studio
项目信息
项目名称:首创和园·平谷新城租赁住房社区图书馆
项目地点:北京
建筑面积:1286.25平方米
设计单位:y.ad studio|上海严旸建筑设计工作室
项目建筑师:严旸、吴可嘉
结构设计师:霍振忠
合作设计院:杭州中亚建筑设计有限公司
施工单位:苏州金螳螂建筑装饰股份有限公司
建设单位:北京蓝海创盈城镇建设开发有限责任公司
甲方项目设计管理:钟婷婷、张翰飞
主要材质:水磨石板、木饰面、铝板、涂料
设计时间:2020/12-2021/06
建造时间:2021/09-2023/06
摄影版权:是然建筑摄影

BIM建筑网





评论前必须登录!
注册