
在墨西哥湾海岸的尤卡坦北部,有一个位于海边与普罗格雷索市紧邻的小镇,名为ChicxulubPuerto。


Chicxulub 市场广场位于该镇的一个重要位置,被当地一些最重要的走廊所环绕。该地点的城市条件使其能够与该镇的一些最重要的设施、半岛的自然环境以及邻近地区相连接。


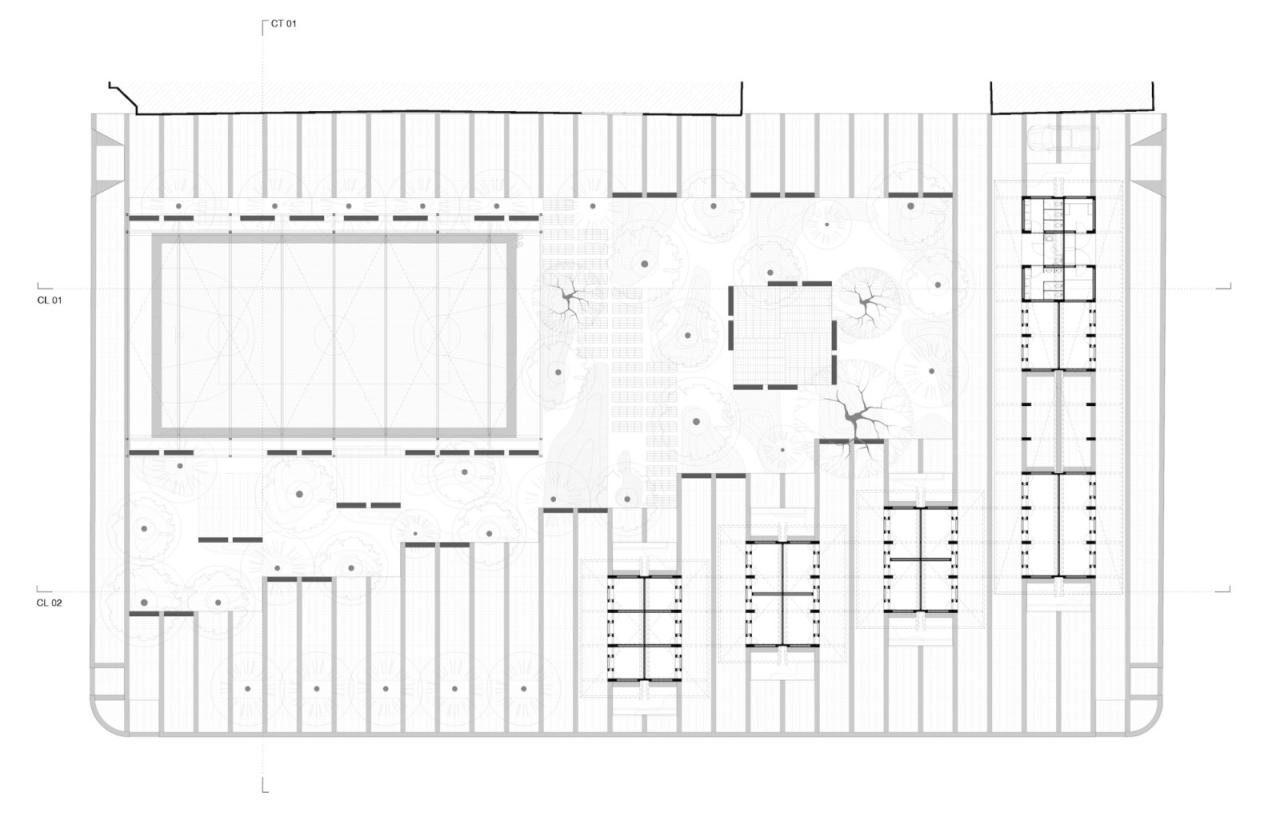
广场改造项目和市场建设项目被视为一个整体项目,根据方案及其与开放空间的关系进行排序。广场的用途是双重的,因此空间被划分为两个区域:北侧的广场是球场和植被及遮荫区,南侧市场区域的摊位结构产生了遮荫,使得人们可以在其中穿行和休息。在任何时候,不同的组成部分都能通过互补和过渡的开放空间相互衔接,并与周围环境相呼应。


Chicxulub市场位于广场南面,由四个销售区和一个服务区组成,由一系列倒置的屋檐组成。屋顶通过天窗相互连接,保护着摊位的内部空间、主体之间的走廊区域和休息区。市场的每个区都有六个销售摊位(分为两边,每边三个)。服务区包括行政办公室、仓库、配电室、洗衣区、废物处理区和卫生间,也供广场使用。


这些体量的移位在场地的一个角落形成了一个通道广场,与邻近的商业门面相关联。同时,建筑体量的东西走向以及体量之间的分隔,使得建筑在道路、内部空间以及广场和庭院的景观空间之间具有渗透性。


广场围绕着一个中央花园展开,这里集中了最丰富的植被,并在开放空间中形成了遮荫空间、停留和休息场所,供人们参加集体活动。除了植被提供的遮荫空间外,还有一个有顶棚的球场,除了作为运动场地外,它还被纳入广场中,成为可以开展公民和社区活动的停留场所。

项目图纸

△平面图

△屋顶平面图

△剖面图

△剖面图

△剖面图
项目信息
建筑师:Estudio MMX
项目年份:2020
摄影师:Dane Alonso
合作方:Lorena Núñez, Gerson Guízar, Amanda González, Ana Nuño, Francisco Martínez
地点:墨西哥,Chicxulub

BIM建筑网





评论前必须登录!
注册