
历史的印记运河汇1958项目坐落于古运河边的无锡钢铁厂旧址。古运河城区历史悠久,承载了无锡先民傍河而居、因河设市、以河为生的生活,孕育了运河边上独具特色的龟背城、清明桥水弄堂等江南运河水乡文化。钢铁厂前身为无锡地方国营钢铁联合公司,始建于1958年,一直是无锡举足轻重的产业地标企业。这里承载了无锡这座城市发展的重要记忆,也记录着一代人的奋斗与梦想,当旧时繁忙的景象褪去,如今的钢铁厂只是沉默伫立在城市的角落。场地内,几座残存的厂房构架成为一种遗迹式的存在,宏大的巨构和古运河边鳞次栉比的老房子形成鲜明的反差。在城市道路的另一面,则已经形成了新的城市高层社区。在这样一种多重界面、多种尺度、多重文化并存的基地上,如何将一处工业遗存活化再生为以文化商业和游客中心为主体的城市活力片区,是一个非常有挑战的命题。经过评估,红线范围内遗留的两座厂房建筑较为完整并具有保护价值。其中,一号厂房外立面红色的砖墙和局部的镂空拼砖方式很有特色,而三号厂房则具有200多米几乎横跨跨基地一大半的震撼尺度,在场地内成为主导性的存在。在连续的柱列和屋架形成的强烈秩序之外,横向的清水混凝土的预制遮阳板充满着力度与韵律感,又极具工业美学特质,反映着当年的设计和建造水平。



关系的重构在设计开始的阶段,我们就发现,已然破败仅存结构的一号厂房和三号厂房以相互垂直的姿态,形成项目最基本的空间骨架。设计在对其原位保留的基础上,在其中植入丰富的功能与空间,完成新与旧的共生。向运河一侧,设计了形态错落、尺度怡人的滨水文化街区。沿城市道路一侧,则是相对完整的集中体量形成的地标群组。从而,在一个清晰的空间十字轴的规划策略之下,多重业态和多种形态构成了极为丰富的空间体验。从场地出发,经过两座厂房构成的十字轴划分的三个区域是清晰而又各具特色的,根据不一样的用地属性,设计针对每个区域采用了不同的策略。



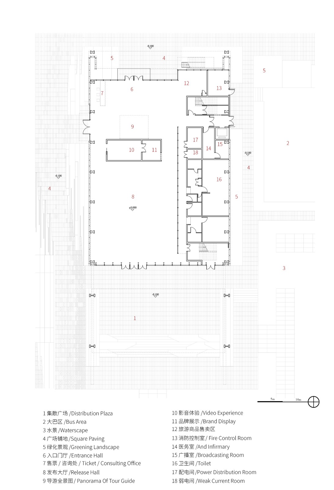
一号厂房:空间十字,光影盒子在对原有两个厂房的改造里,我们采用了差异化的方式。一号厂房改造后会作为游客集散中心使用,设计初衷是对原有建筑语言的传承与发展,为了在植入新功能后还能尽可能地体现其原有空间特征,我们对原有主要的结构和构件进行了详细的勘察和评估。对于能够满足现行规范的部分尽可能保留和加固,破损和无法利用的部分则进行拆除重建,而新建的部分则尽可能遵循原有的基本关系和尺度。建筑内部嵌入一个十字轴空间体系,一方面清晰划分了公共空间和功能空间,另一方面则成为了项目整体十字形空间主轴在建筑内部的延续。其中公共部分为3层通高的发布大厅,大厅内部裸露的混凝土排架柱、耐候钢板以及上部的屋顶桁架充分体现了结构和材料美感。




在建筑外表皮部分,采取的策略是延续并强化原厂房的红砖肌理,将老厂房局部的镂空花砖提炼后形成外立面的整体语汇特征,并加入玻璃砖与红砖进行虚实组合,形成一种“新旧互映”,既是溯源,也是再生。主入口面向城市道路,在沿运河的另一侧,则设计了顶棚覆盖的户外码头,形成游客中心主要场所的室外拓展空间,也可兼作运河对岸秀场的看台。



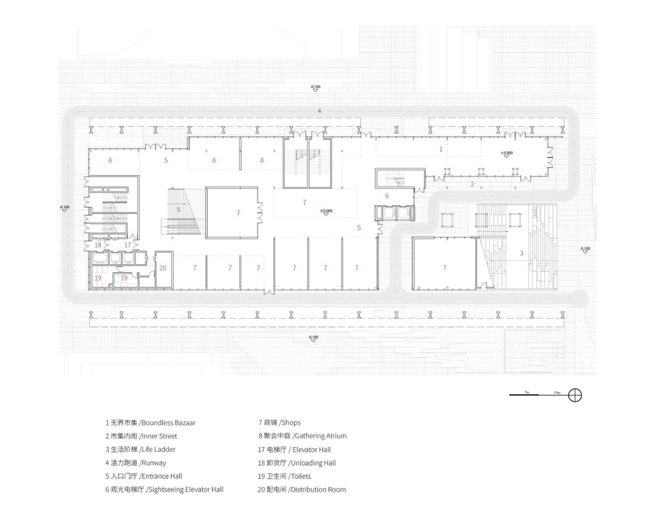
三号厂房:巨构下的微缩城市三号厂房作为整个项目中尺度最大的建筑,我们的设计策略是“巨构里的微缩城市”。横跨两百米长的巨构空间和立面横向遮阳板,即便在工业建筑里也比较罕见,在对其充分保留的基础之上,我们植入了室内、半室内和室外的各种尺度、材质和功能的空间,最终实现厂房到商业,大尺度到小尺度,严肃到活泼的三重转换。为满足新的功能与空间需求,在结构改造的过程中,我们于内部新增了钢结构体系,与原有混凝土璧柱共同起支撑作用,这样既保证了厂房原有基本形态,又实现了空间的再利用。新建结构采用全钢结构-吊挂系统,向上延伸支撑顶部天际艺术馆, 新旧结构完全脱开。



在沿城市道路主入口退让出挑空灰空间,入口前的台阶形成了广场空间的延伸,适于容纳各种公共活动。围绕钢结构束柱悬挂且层层叠加的“树屋”,也为改造后的建筑增添了独特的昭示性。在厂房的顶部我们设计了一个横向展开的“天际艺术馆”,漂浮的水平玻璃体量与原始厂房厚重的混凝土飘板立面亦形成了戏剧性的对比与融合。设计在建筑内部空间植入功能及大小各异的庭院,并在各庭院屋顶处开设采光天窗。半室外大台阶将人流引向二层平台后,内部动线围绕阳光庭院展开,以庭院为核心,展开不同的空间叙事,使进入其内部的人们对其空间特征有更为直接而清晰的感受。



盒子街区——体块堆叠的地标群组盒子街区位于两条城市道路交汇的位置,是塑造城市界面和表情的部分,也是项目对城市进行展示的重要节点,但过大的尺度会对沿街的界面形成一种压迫。在设计时选择用一种更加现代简洁的设计手法,将过于集聚的体块做加减法处理,其中大体量的MALL置于街角,剩余部分切分成更小的盒子,并从街角到一、三号厂房方向的交汇区域逐级跌落,形成尺度从大到小,从高到低,既有变化又避免了对于三号厂房整体形象的遮挡。



滨水文化街区——来自江南的诗意在滨水文化街区,我们选取了一段南长街的典型肌理, 提取单元体的排列组合,设计了形态错落、尺度怡人的滨水活力文化街区,再现南长街的街道记忆。在两轴交汇的三角区域,设计了一座拥有特殊表皮的文化商业盒子-C14,与一三号厂房成犄角之势,完成从运河边到城市界面大小尺度的转换。外立面提取无锡窑群图形元素形成立面标准单元,采用GRC模块构成具有无锡窑群特征的表皮肌理,营造出一种强烈的呼吸感。


创造新生活设计全方位融合建筑设计、空间策略、业态运营、活动策划并充分考虑人在其中的行为,形成以新旧结合为蓝本的独特城市肌理,为生活方式的呈现提供了基础,人群、业态、活动等有序的聚集, 成为美好公共生活的开端。一号厂房作为运河汇1958的开端,它的启用仿佛按下了一个启动的按钮,唤醒了这片场地沉睡已久的灵魂。自从游客集散中心开业以来,举办过大大小小近百场活动,包括读书会、发布会、创意赛事、TED演讲、LIVEHOUSE、艺术展、脱口秀、音乐会及戏剧节……作为城市客厅的三号厂房,灰空间为入口广场提供更多空间层次,依其建设的广场成为人们文艺表演与聚会的绝佳场地,广场上演着现代生活的故事,为园区增添无限活力。沿着大台阶上到二层平台,悬挂树屋映入眼帘。内部空间流线围绕两个中庭展开,在新与旧、大与小、高与低之间来回切换,体验极其丰富。顶部的天际艺术馆结构可下落至首层,结合树屋,拓展为立体式艺术体验路径。外扩的屋顶露台有着广阔视野,拓展顶层休闲交际空间。阳光透过横向飘板照在排柱上,新生的玻璃幕墙上映射着排柱和行人的影子,穿行于“檐下空间”可以感受到时光的流动。从三号厂房“檐下空间”穿行到文化山谷,眼前豁然开朗,被保留下来的排柱内填充了各式各样的盒子,街道空间宽窄变化。穿越其中,犹如穿梭于历史与未来之间。在这里,我们创造的是既能安放生活的野心与梦想,也能探索本地温度与质感的生活方式空间。与之相邻的盒子街区,建筑体量高低错落、立面表情丰富,与矗立于文化山谷的保留排柱形成鲜明的对比,它升华了新工业时期的欢腾热烈,活泼与宁静在这碰撞出新的火花,照耀着这片重生的大地。慢行到滨水文化街区,依水而生,依水而盛,感受一抹来自江南水乡的诗意。街道空间曲径通幽,时而开阔,时而狭窄。漫步在热力四射的河畔,伴随着不定期的上演水上艺术、民谣、咖啡节,无疑成为整个滨水文化街区的活力制造能量场。滨水文化街区所描绘的不仅仅是看到的一幅幅完整的建筑画卷,而更多表达的是未来的河畔城市生活图景。






项目图纸

△总平面图

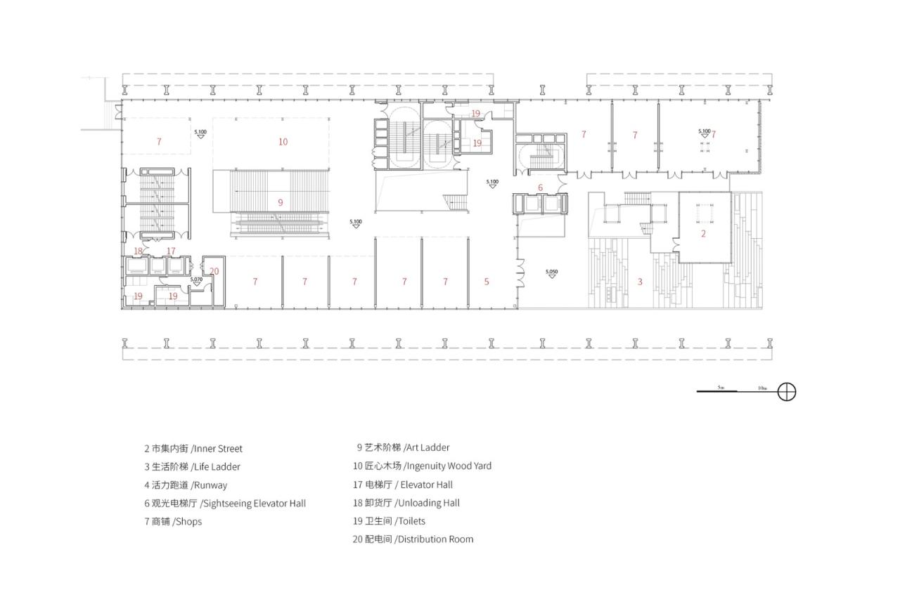
△一层平面图

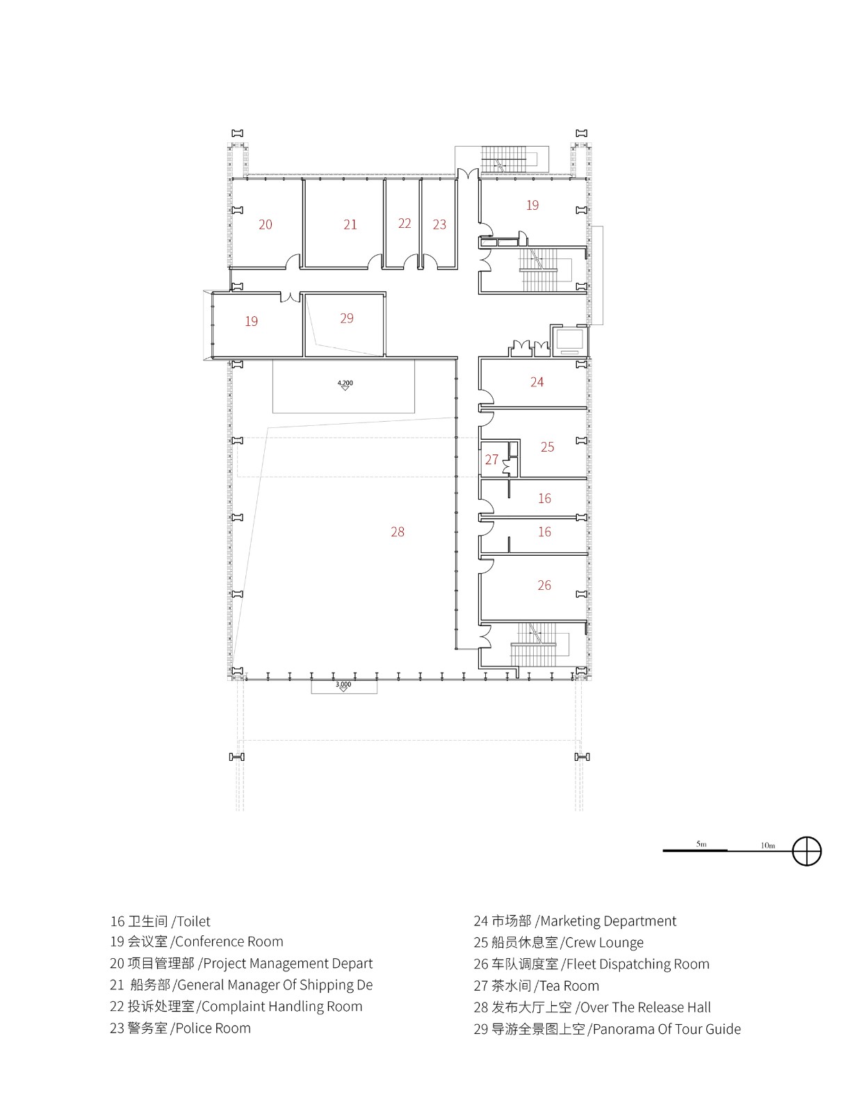
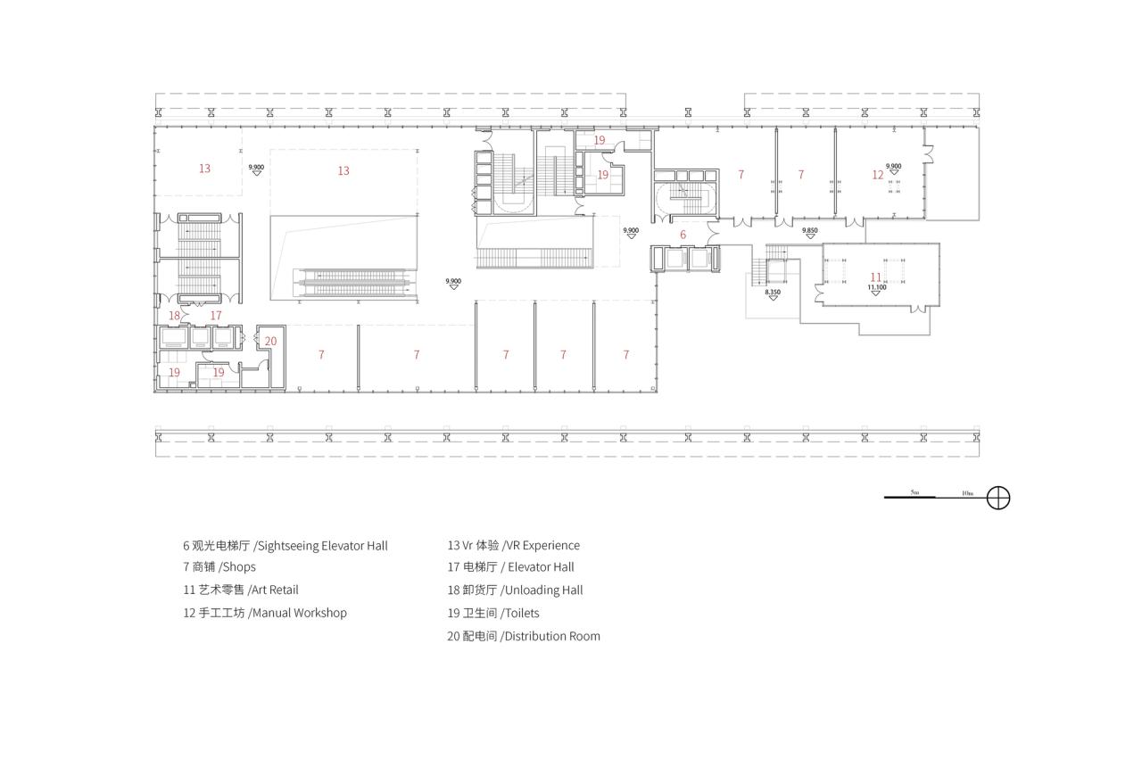
△二层平面图

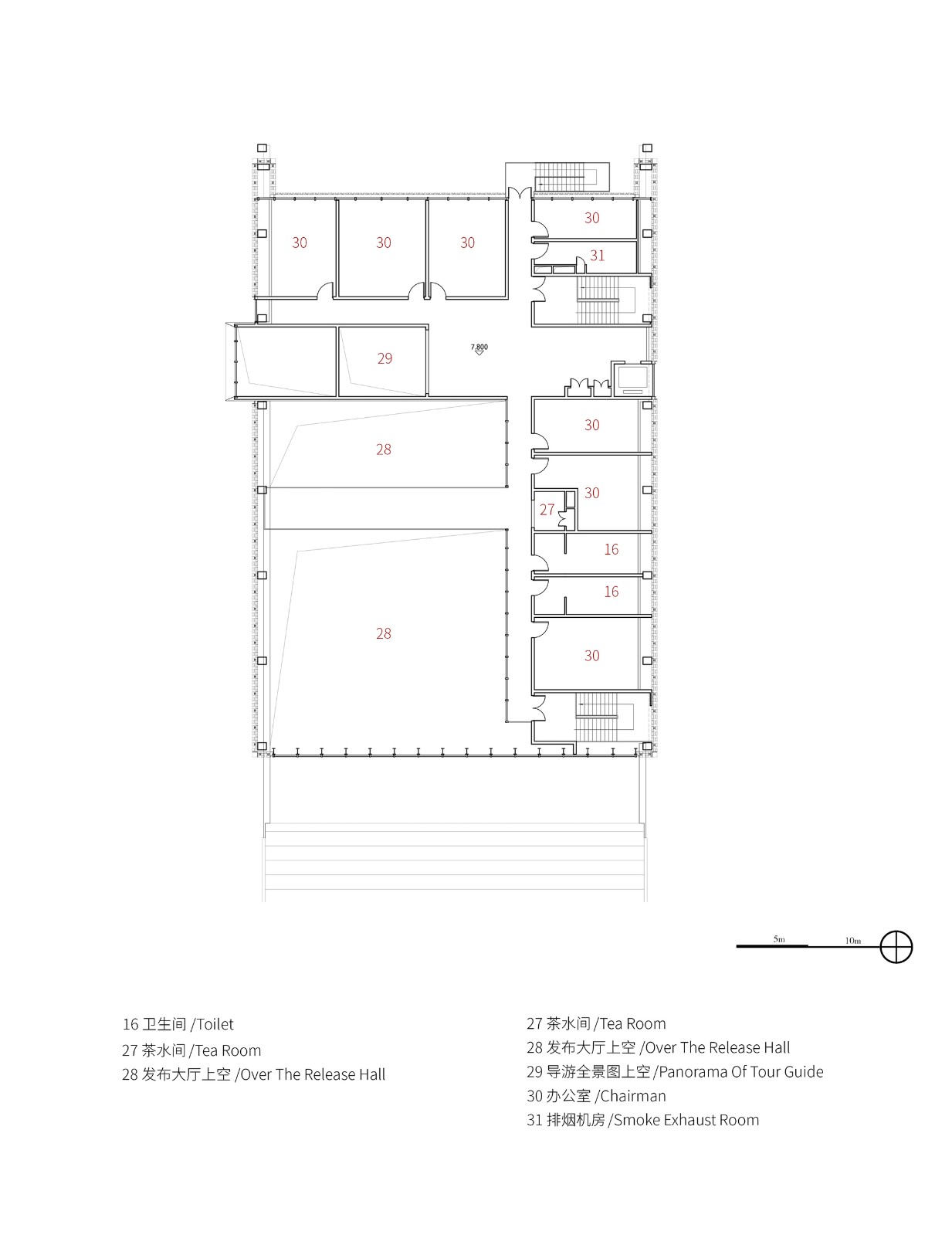
△三层平面图

△四层平面图

△一层平面图

△二层平面图

△三层平面图

△剖面图

△剖面图

△分析图

△分析图

△分析图

△分析图

△结构示意图

△结构示意图图

△细部大样图
项目信息
建筑师:深圳华汇设计
面积:60505m²
项目年份:2023
摄影师:建筑译者,张超
厂家: 宜兴市鼎诚建筑陶瓷有限公司,杭州耐候钢铁贸易有限公司,江苏新立方板业有限公司
主创建筑师:肖诚
项目建筑师:廖国威
建筑设计:设计团队:吴怡璇,洪凤莲,王文凯,钟舒鹏,曾惠海,张迈杰,张兴余,龚茂峰,谢超华
结构设计:徐牧,赵婷婷,黎昌发
景观设计:Lab D+H 上海事务所
室内设计:蘑菇云建筑设计咨询(上海)有限公司(一号厂房、三号厂房)
施工图设计:江苏城归设计有限公司
幕墙设计:深圳市朋格幕墙设计咨询有限公司
泛光设计:中国联合工程有限公司
建筑及室内标识设计:良相设计
建设方:无锡兆禾文化旅游发展有限公司
业主方:无锡华侨城实业发展有限公司;无锡地铁置业;江苏古运河投资集团有限公司
地点:无锡

BIM建筑网





评论前必须登录!
注册