
2009年9月南京大学仙林校区建成投入使用,过去14年中,校园的建设持续完善,咏曼阁的设计建造是在仙林校区建设的尾声。学校功能性的主体建筑已经完成,为数不多的新建建筑的机会如何塑造一处校园建筑让同学们能够更好地记住这段校园生活。

选型院落空间与实体形体虚实选择,是设计之初建筑设计选型的首要考量。仙林校区建筑原型大量采用围合院落式建筑原型是否继续沿用成为着手咏曼阁设计思考的首要问题。地处江南园林式的空间漫游体验是重要的设计参照,但其墙体围合的手法产生的封闭性并不适合本案地块,希腊圣岛的白色建筑错动的体量所形成的空间提示了一种建筑实体在保持开放性的同时,植入丰富的穿行路径,由此一种以实体错动组合为手法融入江南园林游览体验的想法自此产生。


组团咏曼阁的用地是在文科组团与生命科学组团之间,东西哑铃状地形交汇的必经之路。南北两个小山丘的山坳处,组团与地形关系决定了这一建筑需要在东西方向联通,在南北向对地形地貌的衔接,绿化的延续。咏曼阁打破东西已建两组团采用的院落围合式,对维持原规划的统一性存在风险。游走在实体与院落空间之间,一种虚实关系的模糊,是对东西两组团衔接融合的明确努力。


流线校园生活的闭环,往返于生活与教学组团之间,是同学们每天校园生活难得的途中的风景。缺少上学、放学对城市空间的丰富体验,校园流线的体验与丰富对同学们尤为重要。作为必经之路,咏曼阁先天存在堵与疏的选择。一种立体穿插,流线交织的人流组织想法由此产生,地面架空层,斜面屋顶,临山甬道三种不同高度的流线叠加。


空间没有正立面主形象的建筑,空间代替立面成为建筑印象的主体。流线对形体的切割自然形成蜿蜒流动的空间,与印象中错动的聚落空间暗合,两者均是有意识的实体操作无意间形成的空间形态与体验。希腊圣岛的旅行与穿行在苏州园林假山之间的两种回忆,在这一刻同时出现。


场所有回忆的校园需要有识别性的场所,记忆中的校园生活往往是一片草地,或是一棵树下发生的故事。计算容积率的空间均用于实际的功能需求,屋顶,侧院,架空层等虚空的部分则是场景的安置之地,躺在草地上的闲暇时光,可能在思考人生,也可能是解决一个学术难题的契机。学习生活不仅在教室里,更在校园中。

材质水泥纤维板是表达两山之石的设计概念,同时满足建筑环保要求的兼顾之选,水泥纤维板板长4.6米,大尺寸减少拼缝,突出材质本身的肌理。幕墙设计关注了构造拼缝,经历冬夏四季的温差变化与干湿影响,拼缝宽度变化细微。

咏曼阁的设计既是一次建筑学基本概念的温习,也是对校园建筑的再理解,与中小学上学、放学从家庭到学校不同,大学城式的校园独立于城市空间形成学习生活的闭环。咏曼阁的设计试图在较短的校内流线中提供一段不经意但有意营造的体验,默默成为南大人青春的回忆。一座建筑,一种路过的风景。’


项目图纸

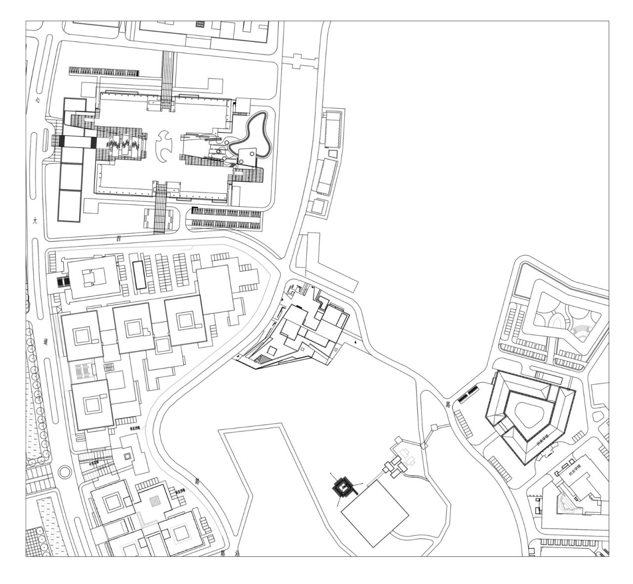
△总平面图

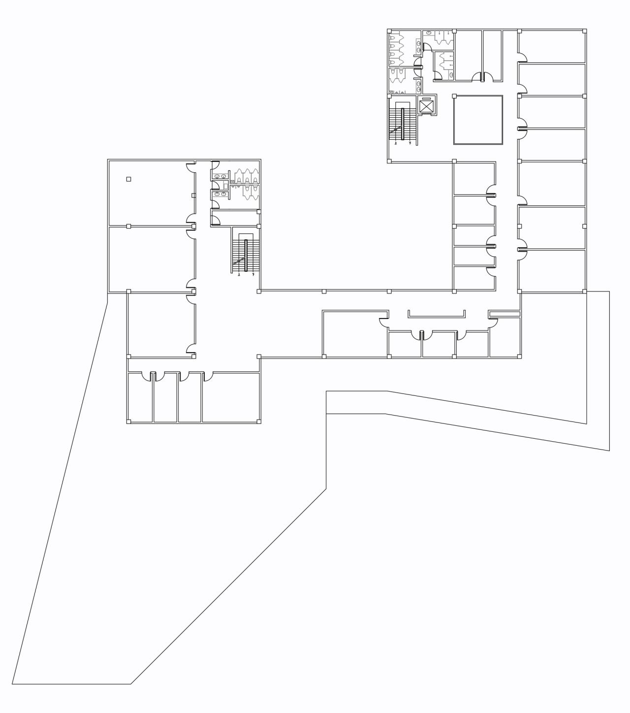
△一层平面图

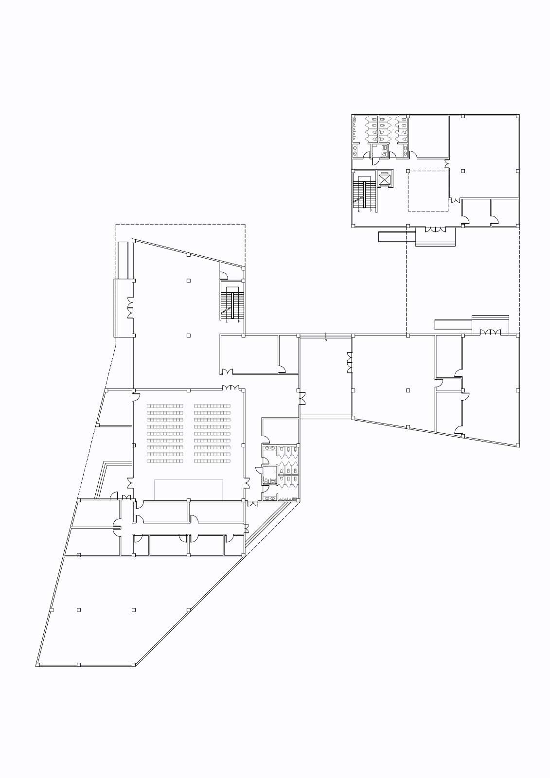
△二层平面图

△三层平面图

△立面图

△立面图

△剖面图

△剖面图
项目信息
建筑师:南大建筑钟华颖工作室
面积:3847m²
项目年份:2023
摄影师:侯博文
厂家: Aifuxi Company,Owens Corning,Rong Placement industry
主创设计师:钟华颖
方案团队:钟华颖,徐梦薇,戴庆来
施工图团队:陈军仕,刘飞
给排水:陈冬
暖通设计:王倩
智能化:巫程
室内设计:范海君、杜猛、厉瑨
景观设计:冯佳、于滔
幕墙设计:刘范春、杨宇环
结构设计:谢洪恩
电气:缪霜
委托方:南京大学
地点:南京

BIM建筑网





评论前必须登录!
注册