"多米诺体系保障了结构空间的合理性与经济性;前、中、后三个庭院创造了被动式的建筑生态系统;诗意的几何形态和浓烈的色彩激发了孩子对空间的感知。博翔路幼儿园是独一无二的儿童世界,承载了艺术萌芽记忆的独特场所。"——许异

▲建筑采用方正布局

▲尺度不一的游戏“插件”

▲纯粹的几何形态和浓烈的色彩
城市关系
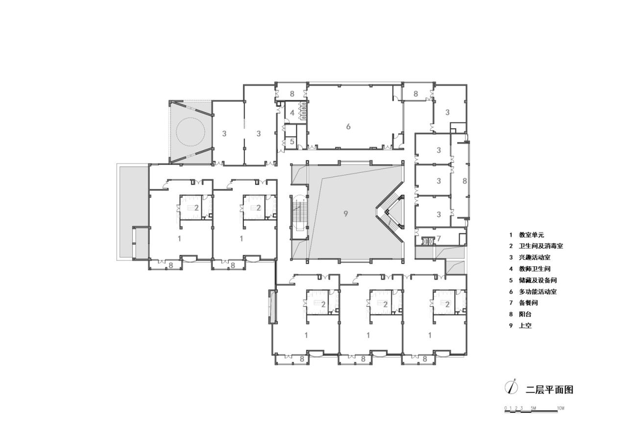
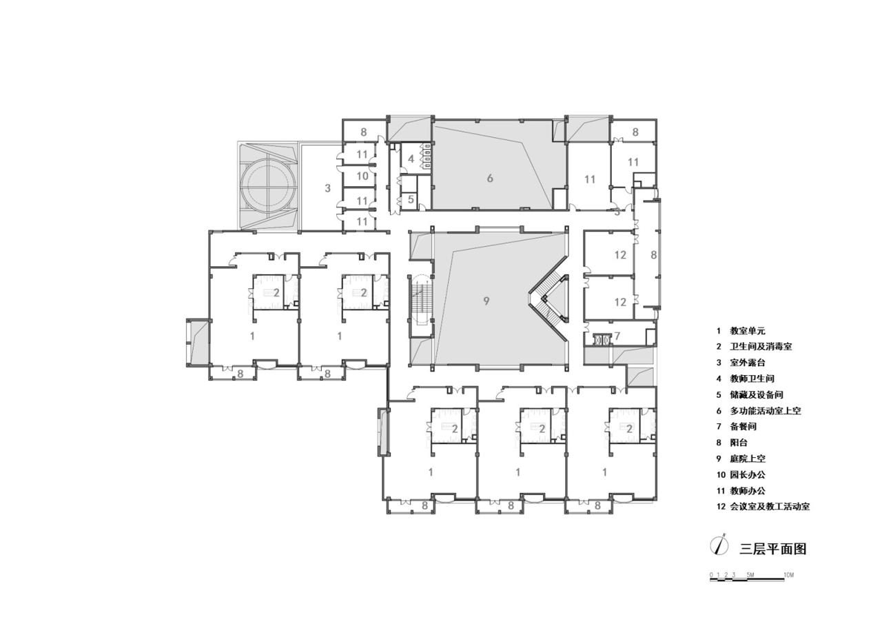
场地位于嘉定区南翔镇东部社区,西临博翔路,北临嘉绣东路,南临芳林路和菁英湖风情公园。场地周边为高品质住宅,且有社区运动场。项目用地面积约6796平方米,总建筑面积约5983平方米,需满足15个幼儿班级的使用,包括1个早教指导室(20人/班),5个托儿班(20人/班),合计在园学生数390人,用地十分紧凑。

▲项目区位




▲建筑外观总览
秩序模块
“无论问题是什么我都从方形开始。”——路易斯·I·康
I always start with squares no matter what the problem is. —Louis Kahn
面对紧张的用地条件和投资限制,设计回归现代主义建筑原型——多米诺体系,通过研究建筑地块划分和建筑单元体组合的关系,将标准化程度高的单元统一在网格化的空间与结构体系中。均质格网的结构布置和方形“结构单元”的阵列之势,有效地化解了低成本营造的“痛点”,同时也尽可能保持了简洁和纯粹的空间形式。

▲秩序模块

▲体块关系


▲秩序模块

▲中心庭院的置入
庭院的置入优化了阵列组织关系,以其“中心”的位置统摄了周边的集中秩序,并将人们的视线直接引到这里,形成室内与室外的直接对话。幼儿用房、办公用房和后勤用房等标准单元围绕中心庭院形成“回”字型布局,将阳光和空气带入每一个室内空间。庭院作为灵活的户外公共活动空间,为小朋友提供了丰富多彩的户外游玩场所。同时,在孩子们自主活动的时候,教师的视线也能够保证他们的安全。
彩色游戏“插件”
孩子对外部世界的感知充满了奇思妙想,因此,我们认为幼儿园应是一个激发他们想象与探索的空间。建筑师将一系列彩色游戏“插件”置入“网格化”的结构单元,打破稳定而均质的空间节奏。这些“插件”以方形、圆形、三角形这三种最基础的几何形态与主体建筑互相咬合、嵌套,形成了一系列形态各异、尺度不一的“无定义”空间,极大地丰富了孩童的感知和体验。高出的屋面彰显了其建构上的自成一体,而黄色的热烈和蓝色的沉静更进一步地将这种区分变得明确。

▲游戏“插件”


▲游戏“插件”


▲与主体建筑互相咬合
光像一只画笔,将空间勾勒成一幅抽象的几何体素描。当调入明黄和天青之后,它又是一幅简洁明快的水彩画。建筑师设想,当孩童们穿行在这些性格迥异的空间中,自然而然便感知到色彩、明暗、时间的变化。
游园式动线
“可行可望,不如可居可游之为得。”——北宋·郭熙
As for natural landscapes, those that can be walked on and viewed are not as excellent as those can be lived in and played with. —Guo Xi, Northern Song Dynasty
中国古代文人造园犹如画山水,期望在有限的尺幅空间里,展示一种无限延展的世界。在本项目中,我们引入游园式动线亦想创造无限的空间体验,让孩子们感知时间和空间的流动。

▲游园式动线

▲游园式动线:屋顶游廊
设计以东方园林的思维方式来构建现代的空间序列。由入口的灰空间转折进入门厅,穿越方庭连廊,沿着三角折跑楼梯拾级而上,身体在空间中游移,视线也在不断变化。方形、圆形、三角形“插件”作为秩序空间中的异质锚点,如同蒙太奇的手法,串联起一系列开放式的非连续空间。在内与外,上与下的空间转换,看与被看的对象转化中,孩子们在步移景异中体会空间的变化。




▲性格迥异的“无定义空间”




▲光和色彩的流动
完整的教学空间
为了让小朋友更亲近自然,幼儿活动用房均为南向布置,面向较大尺度的外部庭院,形成双重室外活动区。在冬季,大型窗户成为被动式太阳能系统中的一环,将南侧教室转化成被动阳光房,起到积蓄热量并将热量传递至建筑内部的作用。而在温暖的季节,风通过侧庭院和中央庭院穿越形成空气对流,以避免室内过热,营造出舒适宜人的体验环境。设计还对环廊做了加宽处理,使教学空间更加灵活多样。学校可根据教学需要自行定义和重组活动教室。

▲较大尺度的户外活动空间

▲阳光充沛的教学空间

▲环廊加宽处理创造灵活空间

▲可供全体师生参与的多功能厅

▲中庭光影空间
结语
项目自设计以来历时五年,中间经历了许多不可控的变化,而成本的限制又增加了其复杂性。尽管最终的呈现效果在细节控制上有些缺憾,但与我们最初的设计概念已无限接近,且实现了建筑、室内、景观的一体化打造。每次到施工现场,看着建筑的“骨骼”一点点成型,我们都被建构的纯粹和理性之美所打动。它让我们对建筑师这一职业的意义有了更加坚实的稳定感。带着这份感觉,我们也会更接近理想的模样。







项目信息
项目名称:嘉定区博翔幼儿园
业主单位:上海市嘉定区教育局
项目地点:上海市嘉定区博翔路
建筑面积:5983平方米
项目周期:2017.03-2023.05
设计单位:予舍予筑
设计总负责:许异、陈潇、李志强
建筑设计组:高飞、赵璐、曹真、杨环利、乔会荣
室内设计组:庞禹、屠夏青
景观设计组:郁浩艳、刘雅哲、朱敏成
照明顾问:叠隐照明
机电合作:马祥胜
施工图合作:建盟设计集团有限公司
图片摄影:James Young、徐皓宇

BIM建筑网





评论前必须登录!
注册