
别墅 LDT 建造在巴厘岛乌布地区外的一个农村地区,该地区仍然被稻田和种植园所包围,别墅是两个设计相同的别墅单元,每个别墅的土地面积为 200 平方米,建筑面积为 150 平方米的空间安排,有两个卧室、客厅、厨房、餐厅和一个私人游泳池。这是一座单层建筑,其主要概念是响应场地的背景和周围的条件。设计关注的是创造一个谦虚的比例,可以在稻田区域的中间和谐,当客人从主要道路进入别墅时,不会阻挡他们的视线,也不会破坏基地周围稻田和种植园的天际线。


规划这个设计的挑战是建筑师如何在一个相对较小的场地上设计一个单层建筑,并在一个纵向的形状上设计一个相当复杂的空间程序。设计建筑的形状是下一个挑战,这样建筑的体量就不会显得比例过长,在稻田中间变得很显眼,还有就是如何在其中保持用户的隐私。


建筑体的设计遵循了现有场地的形状,但屋顶形状的设计和建筑体的比例是减少这种设计的枯燥印象的重要要点。由于该地区的降雨量相对较高,使用平面屋顶是为了设计雨水落入规划的集水区的方向。建筑师决定创造一个屋顶的形状,它被设计成复合屋顶体的形式,或者它看起来在一边和另一边之间堆叠,为了减少被拉长的印象,卧室和客厅之间的墙被继续向上,这样它看起来就像在分割屋顶。这种设计的结果是成功的,足以给人一种谦逊的印象,并与环境的天际线相协调。


建筑物的正面趋向于封闭,墙面用当地的天然石材装饰,并在建筑的后面放置一个宽阔的开口。整个建筑外墙使用棕灰色的天然石材(paras tuling agung)是使建筑与周围环境更加和谐的因素之一,在进入别墅的主门处用砖块作为点缀。



房间的朝向是基于朝向后面的潜在景观,它有一个以稻田为背景的私人游泳池。所有的房间都面向后面,并且背对前面区域,以保持隐私。该项目按照场地的细长形状排列在一侧,,其概念是每个房间都必须有一个景观,前面有一个服务室,以阻挡来自道路(前面)的噪音和视觉效果。简单、整齐、醒目是定义这个项目的三个总结性词语。






项目图纸

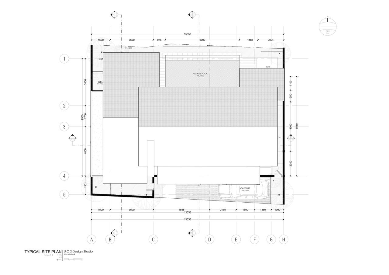
△总平面图

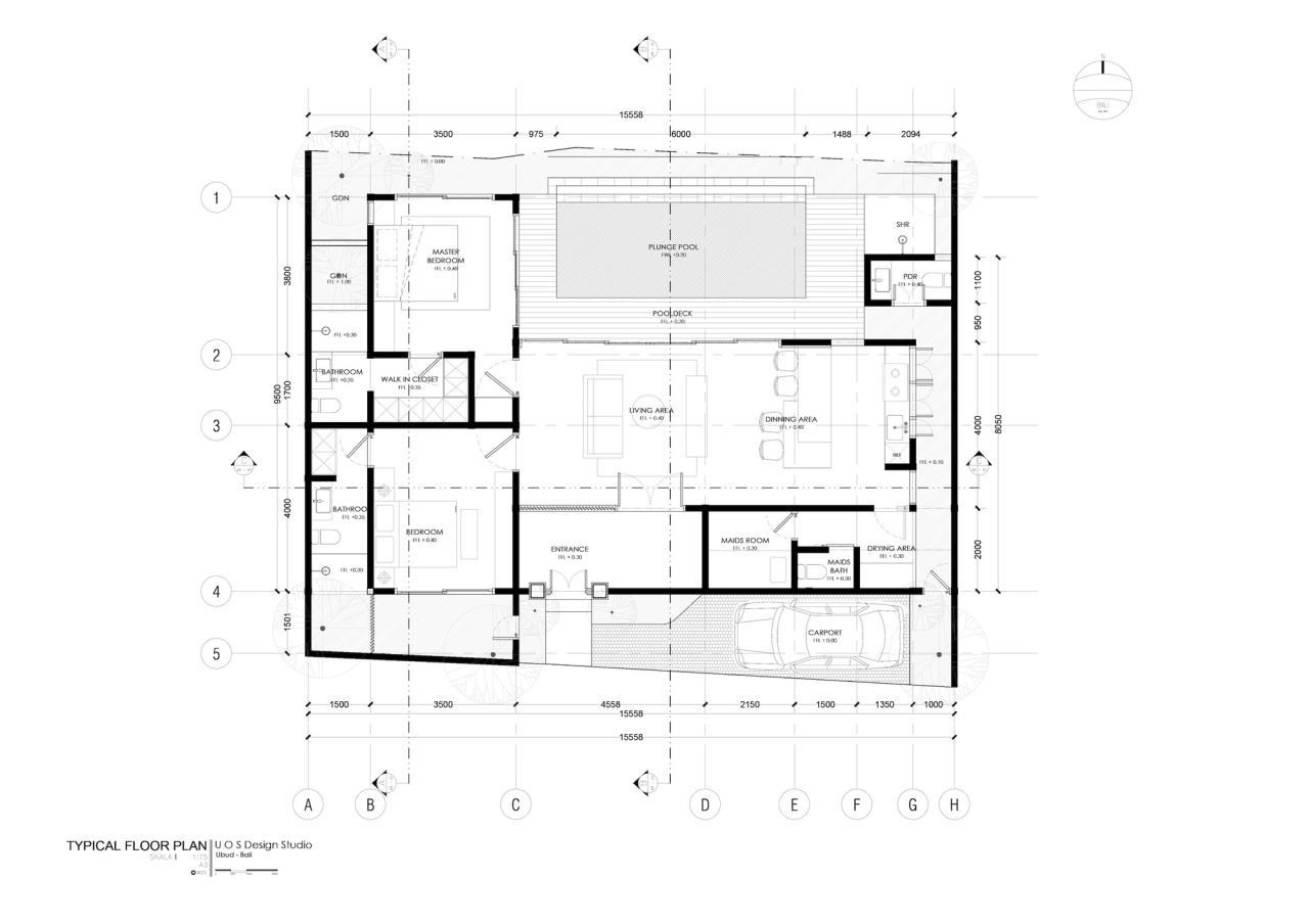
△一层平面图

△立面图

△立面图

△剖面图

△剖面图

△剖面图
项目信息
建筑师:UOS Architecture Studio
面积:150m²
项目年份:2022
摄影师:Indra Wiras
厂家: Dekkson Lock,Infinity Granite Tiles,Toto
主建筑师:Banyu Priautama
建筑师:Tjokorda Gede Dalem, Rahayu Sitha D
承包商:NATS Project
地点:印度尼西亚,Ubud

BIM建筑网





评论前必须登录!
注册