
由南沙原创建筑设计工作室设计改造的南桥书院,是上海奉贤区城市更新重点项目,改造包括一座总建筑面积8700 平方米的校园综合楼,校内运动场和滨河景观。综合楼已于2021 年落成并交付使用,校内运动场和滨河景观在2022年也已完工。南桥书院所在的奉贤南桥镇于唐末形成集镇,穿城而过的运河开凿于南宋年间,丰富的历史建筑记录了这座古镇近千年的变迁。宋代街道、明代古桥、清代的酱园、建于20世纪初的花园住宅、曾为天主堂神父楼的抗日战争指挥部旧址等不同时代的建筑保留了一部分南桥镇独特的历史记忆。随着近现代老城的扩张和现代化改造,历史遗存逐渐湮没在新增的街道和居民楼中。城市更新既是将历史痕迹和风貌从环境中剥离,进行重组,并重新梳理街道、运河、建筑和公共设施的关系,又为社区注入新的功能和活力。


改造后的南桥书院综合楼将学区与社区功能结合,采用“搭积木”错落叠加的手法,将原址中分布散落于不同地点的图书馆、阶梯教室、剧场、食堂、实验室、美术教室和音乐教室等原型空间拼贴推叠成一座“空间魔方“,衍生出一系列有趣、新颖的场所,独特的空间体验极大激发学生的想象力和探索欲。拼合而成的空间不同时代的影子交织并存,与其所处的南桥镇内外相融,呈现出多元性和当代性的同时,融入南桥镇源远流长的历史文脉。南桥书院创建于 1978 年,经历两次搬迁,一百多年前,这里也曾是教会学校所在地。书院原址上,图书馆、阶梯教室、剧场、食堂、实验室、美术教室和音乐教室、学生宿舍等空间分散在片区中的不同地点,彼此独立。随着运河滨河带景观带贯通,原有的功能需要紧密地集中在一个有限的地块内,在保证学校功能性和周边交通流线高效组织的前提下,释放出更多公共空间,同时将临河景观空间归还给公众。


南桥书院综合楼的空间整合是一个高密度、高难度的“实验”,为避免校园建筑空间集聚在地块内形成大体量与周边环境造成割裂和孤立,南沙原创首先通过化零为整聚合空间,以拼贴空间原型的手法堆叠出综合楼的整体,取原实验楼和图书馆的建筑外轮廓,划出矩形建设用地,生成地上五层,地下一层的建筑体量,在这个基础上又依次叠加了艺术类教学区、公共阶梯教室、小剧场和餐厅进行叠加。之后化整为零,依托开阔的运河景观,通过多样化、非重复性的空间设计来消解高度聚合产生的体量和密度,同时功能空间与运河的视觉关系也得到了重新梳理。

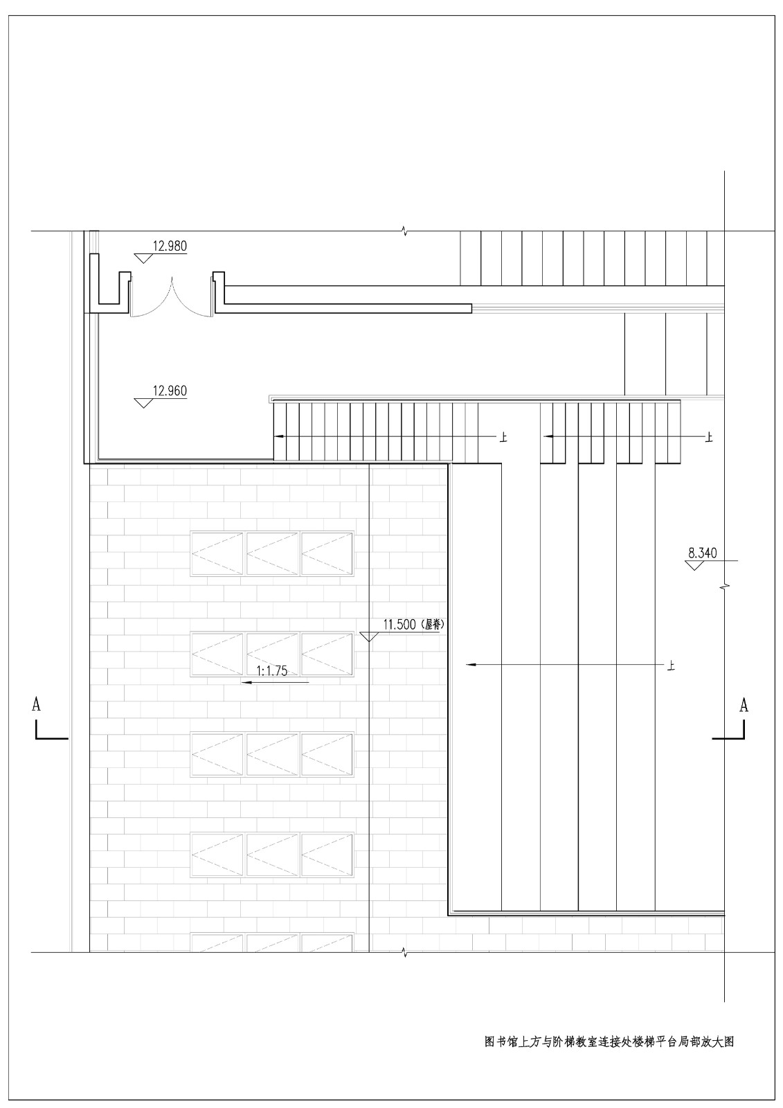
个体与整体和谐共处,既独立又相互依赖,是整座建筑的基本理念,也是其结构体系设计的出发点。大型钢结构的阶梯教室轻盈地落于图书馆的尖顶之上,前方通透的玻璃面正对操场景观。图书馆屋顶与阶梯教室的衔接是整座建筑中最大的技术难点,为了全面打开内部空间,设计运用桥梁建造技术来构筑阶梯教室。借力于图书馆的尖顶,整个阶梯教室空间后段扬起,像一位踮起脚尖前倾的舞者,俯瞰操场活动的学生们。


通常位于首层的室外公共空间被移至艺术教学楼的三层屋面,一个宽敞自然、视野广阔的空中平台为课间休憩的学生带来更丰富、有层次感的体验空间。阶梯教室下方的灰空间成为半室外的风雨操场,面向运河开放,形成良好的观景视野。同时图书馆的屋顶向内顺势形成坡度台阶,提供了更为多样的户外交流活动场地。为了保证屋面场地的平整开放,设计运用架空地面的技术手段,将排水及设备安装在屋面之下。



场地北边是运河滨河带,西边是学校操场,西北两面拥有良好的景观视野,综合楼因景制宜,在两个朝向上最大限度呈现开放姿态,设置窗扇,使室内室外通透相融。


拼贴原型的理念也贯彻到幕墙和室内材质的选择上,在对周边历史建筑风貌进行分析后,建筑师撷取了红砖和混凝土质感的软瓷两种材质元素予以回应,主体的混凝土材质以低调的姿态介入现有场地环境,位于核心位置的图书馆,立面和坡屋面采用红砖风格,回应学校历史风貌,并和谐地融入周边片区的肌理。西立面外墙竖向凹凸变化结合窗户形成韵律。历史感的红砖材料随光线一起从窗外延伸到图书馆室内,达到内外协调融合的整体效果。


综合楼室内设计也由南沙原创执笔完成,根据空间个性的不同,采用花砖、木质饰面和清水混凝土墙面等具有不同“情绪”的材料进行拼贴,使每个空间呈现出各自的“表情”,让不同时段的使用者随时切换情绪,极大化个人对空间的体验。设计师在图书馆中庭挑空空间内设计了一个灯光装置,以灯带构成三角形,三边分离,阵列旋转渐变生成空间中三维立体形态,刻画出空间的高度进深,形成视觉中心。


建筑中庭是综合楼内各功能转换的空间节点,内部空间材料选择上延续外立面的设计,铺地选用了民国时期图案花砖,样式、尺寸和颜色经过优化,在中庭柔和的天窗采光下令人恍若穿越时光。



剧场位于综合楼建筑地下层,两个直通室外的入口消除了地下空间的负面感受,极大提高疏散效率。食堂通过开敞地下通道与剧场东入口相连,拥有了良好的采光。食堂内部明亮开放,装饰清爽简约,一抹黄色为空间增添个性。改造后的南桥书院作为奉贤中学附属南桥中学的综合楼,是一座既重历史又重未来、既厚重又明快、既本土又开放的建筑。在设计手法上化整为零,举重若轻,在与其所在的历史文化社区有机融合的同时,呈现出先锋的当代性。开放、多元的先锋性更加体现在校园建筑在保证安全和独立的基础上与社区共享、服务民生的理念,未来学校的地下停车场、体育馆、体育场都将与社区共享,南桥书院的改造建升级将与整个“南桥源“城市更新密切地联系在一起。


项目图纸

△模型图

△场地现状

△周边保留建筑历史风貌分析

△百年前中学地图

△改造后平面示意图

△总平面图

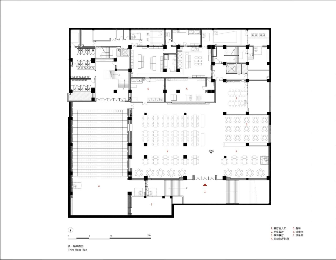
△负一层平面图

△一层平面图

△二层平面图

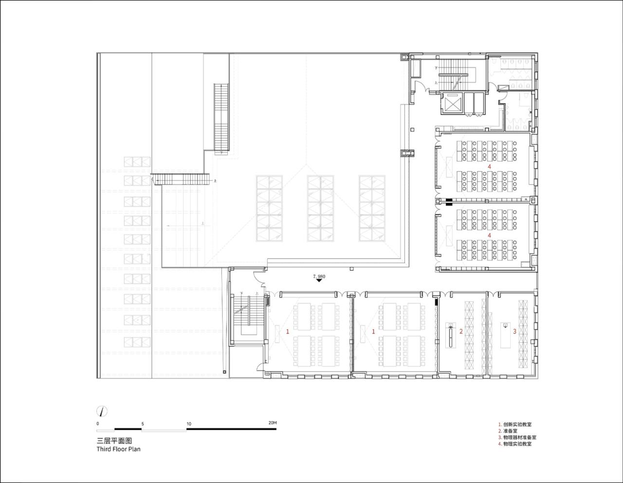
△三层平面图

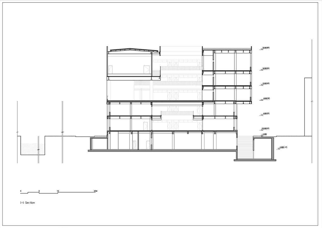
△剖面图

△剖面图

△立面图

△立面图

△大样图

△大样图

△大样图

△大样图

△功能分区图

△流线图

△流线图

△模型图

△体块生成图
项目信息
建筑师:南沙原创建筑设计工作室
面积:8700m²
项目年份:2021
摄影师:田方方,胡康榆
主创建筑师:刘珩
设计阶段:刘珩、黄杰斌、谢岩旭、韩韵、张继源、徐静悦、林小红
施工阶段:刘珩、黄杰斌、阮艺玲
实习:林雨航、陈丽蓉、焦媛媛、周昱成、伍敏安、田皓元
滨河景观:刘珩、黄杰斌、王恒刚
建设方:上海奉贤建设发展(集团)有限公司
施工图:建筑:上海沪闵建筑设计院有限公司;室内:深圳市龙岗区曈曈设计工作室;景观:上海市建工设计研究总院有限公司
结构顾问:上海和作结构建筑研究所
照明顾问:深圳市光程式科技有限公司
地点:上海

BIM建筑网





评论前必须登录!
注册