
开始FIRE之后,80后彭先生决定带着妻儿回到老家,与父母一同生活。因此,对这处位于启东乡下的老宅进行翻修,变成迫在眉睫的事情。改造后的新彭宅,需要同时容纳两代人迥异的生活习惯,使乡村与城市生活方式在此水乳交融,并且泾渭分明。启东的乡建规定较为严格,要求彭宅必须在原轮廓线内完成翻新(基底面积90平米),外观效果也应当与原始“火柴盒”相吻合。待翻新的老宅建设于上世纪80年代,是一栋标准的农村楼房,这种简易标准的农村楼房也由于其经济性,影响了那个年代大江南北的乡村风貌。这是一个颇具挑战的设计,既不是城里人的附庸风雅,也不只是农村人的现代改善,而是需要在一个充满限制的框架内,完成一个让城乡三代人感到舒适的日常空间。


基地位于村庄尽端,背靠高铁与公路,车辆的轰鸣声不绝于耳。因此彭宅面向公路和铁路的东侧与北侧都几乎没有开窗,使它如同一座碉堡,顽强地抵抗着滚滚而来的城镇化浪潮。彭宅可开启的窗户都位于面向村子的西侧与南侧,为避免可能导致无限期停工的村民举报,建筑没有任何超出基底轮廓的出挑。彭宅谨慎小心地与这片熟悉又陌生的田野对话,仿佛一个试图归来的旅人。


尽管一切都符合规定与流程,有丰富乡建经验的建筑师朋友还是提醒我们用“拆一半造一半”的方式翻新,这不仅意味着建造难度与造价的激增,也实际上影响了方案的生成逻辑——从剖面开始。伴随着乡土社会支离破碎的过程,村子的邻里关系逐渐变得微妙,利益与亲缘两条线索同时在支配着逐渐松散的社会网络。在开工之前,业主非常自信的保证施工一定会一切顺利,因为村子里不仅一部分邻居沾亲带故,家人们也挨家挨户地打过招呼。但举报和争吵依然如期而至,最终原本的鸡舍与柴房部分经过多轮努力依然无法保住,照片与遥感影像都无法证明它曾经的存在。令人侥幸的是,主体建筑经过两个剖面的拼合,最终能够翻新建成。


失去附属小平房之后的彭宅在气质上变得清冷,最终我们不得不接受了这座略显孤傲的房子。原先准备作为麻将室的附属平房以葡萄架的形式延续,彭老先生依然可以和邻居们在此打麻将,除了失去屋顶和围护,一切一如从前。这仿佛是对于彭先生一家“归园田居”的隐喻,这一个上下左右都由剖面拼合而成的建筑,是某种变化中的城乡异质混合的结果,尽管它看起来与老屋似曾相识,但又已经完全不同。


需要考虑老人百年后举办后事的地方,这甚至是设计任务书的唯一要求,这使彭宅在类型学上区别于别墅或民宿。翻新前的老宅设一堂屋一厢屋,除堂屋外,一层厢屋居住长辈,二层则是子女卧室,这也是80年代最适应当地风俗习惯的楼房原型。堂屋是传统民居中的礼仪空间,用于尊祖敬神、祭天拜地、婚丧寿庆等。在中国乡村,红白喜事是乡土社会关系的重要连接点,虽然随着城市化进程,年轻人的婚礼逐渐“洋气”,一般已不在家中举办,但老人们的丧礼依然延续着“传统”。一家老人过世,停灵在堂屋,天数由风水先生根据生辰八字计算,全村都会来帮忙张罗,洗菜做饭,接待宾客等等。对于彭老先生来说,自己的后事是否办得合适且体面,儿子媳妇对宾客和乡邻们能否都尽到礼数,是最为要紧的事情。


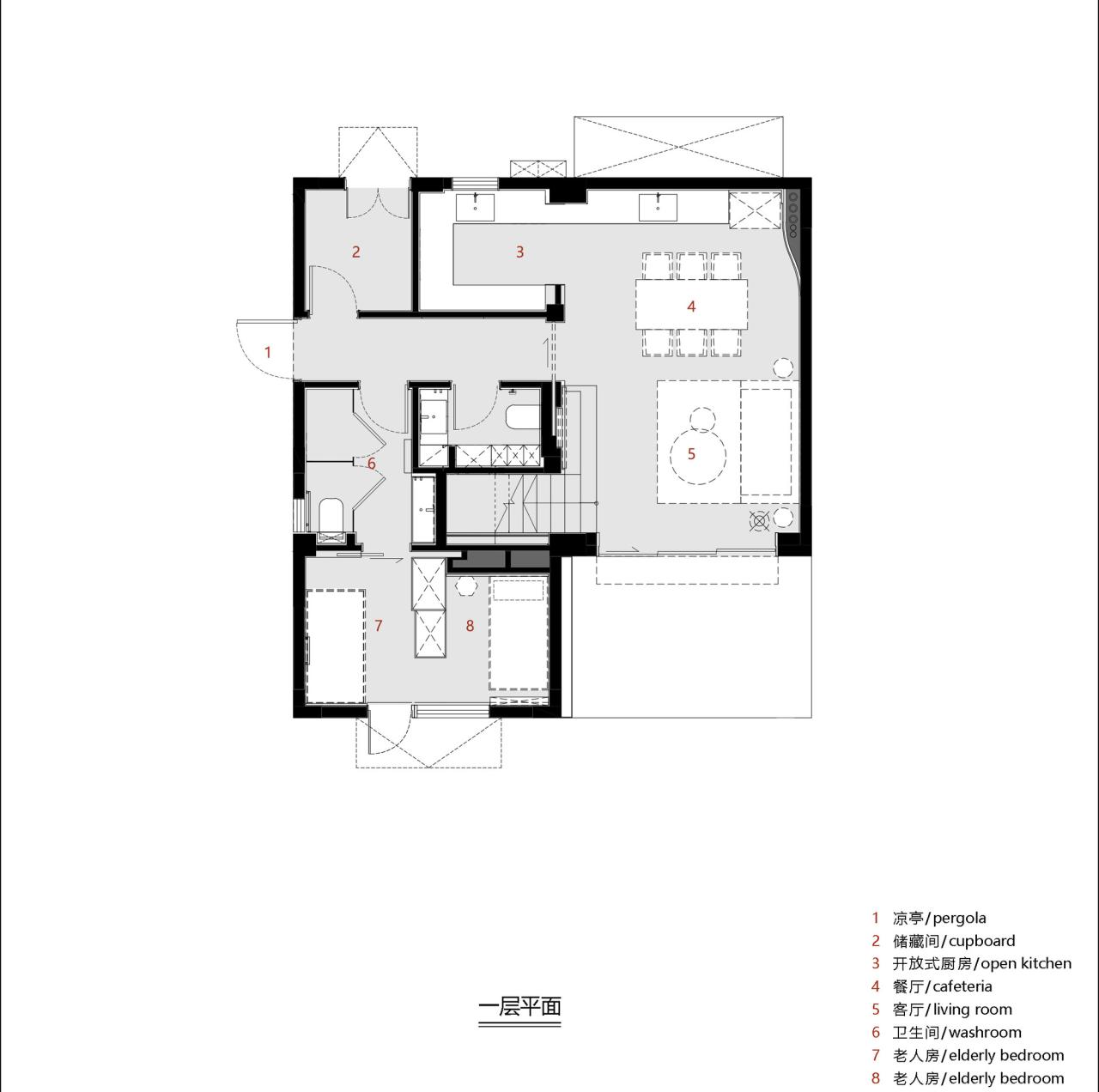
乡村生活没有秘密,乡邻们会随时到访,彭宅因循乡邻的普遍作法,也不设院墙。设计一层延续了传统的堂屋与厢屋的空间组合,堂屋大门常开,厢屋为老人居室,“一堂一厢”适应老一辈的日常生活,户型细节在传统格局的基础上进行了适老优化。过去堂屋正中对景一般为香案,挂中堂画,作为祭拜所用。新彭宅已无此类需求,设计将这一对景转译为西厨与高窗,蓝天白云入画,也为堂屋带来柔和的照明。新彭宅一层使用与老宅一致的水磨石地面,老人和乡邻进出大多经过泥土地,鞋底较脏,水磨石结实耐用、方便打理。老人房的双卧室设有独立对外的门,白天常开,也可以通过西侧门与葡萄架直接相连,乡邻们也时常来小坐。和风穿堂、往来闲谈,这是家中50后老一辈所熟悉的,属于乡村熟人社会的生活方式。


城——公区与私域二层以上是80后子女一家的生活空间,通过换鞋这个简易仪式,提示人们将进入一个更为私密的领域,也谢绝了不速之客的突然造访。二层设有起居室与书房,它是实际意义上的现代住宅客厅,80后子女一家在此起居与会客。起居室联通上下两个中庭,是“城”“乡”连接点,高达10米的通高赋予这个空间强烈的仪式感,也将二层以上的小家庭生活联系在一起。尽管彭宅从外观视觉上仅2层半,但内部通过错层设计,翻新后的彭宅实际有4层。设计将彭先生的书房,孩子卧室与书房,主卧与妻子书房等分设不同层,保证每个家庭成员的私密与独立。我们在每一层都设有书房,使80后小家庭的所有人都有独立的工作、阅读、娱乐空间。随着时代变迁,在城市生活方式的影响下,私人空间在家庭中的重要性日益凸显。相对于全家挤在一起看电视,人们开始更愿意在自己的空间里使用电子设备,去阅读或观看自己更感兴趣的内容。



但我们依然在二层以上的空间里,预留了丰富的看与被看的关系。相对于一层的完全敞开,二层以上的互动则更加暧昧,通过一系列连续的通高彼此联系。“退休”之后的彭先生一家以炒股为主业,通高在空间图形上如同股票连续涨停的曲线,使新彭宅成为朋友们口中的“涨停之家”。“涨停”通高作为住宅风水的另类演绎,也会给这一家人带来更多的吉祥与好运。我们将这个住宅命名为Crossing House,就像它在鸟瞰图中所呈现的,一个位于交叉口的房子。回不去的乡村与无法告别的城市,我们正处在这样的交叉口,而这个房子的内部也是一个交叉口,通向两种全然不同的生活方式。



建筑南侧三层四层以两个相互咬合并错动退让的阳台形成立面上“crossing”的关系,三层儿童房的内阳台和四层主卧的露台呈对角线设置,与同样呈对角设置的三层客卧和四层主卧的方形玻璃窗构成了“X”,这种在垂直方向的纵深变化使得不同房间的风景变得富有层次,是一种“纷至沓来”的诗意,消解了水平、垂直、斜向与内外空间的边界,也消除了过极小基底面积下“火柴盒”轮廓带来的敦实感。建筑它以坚实和脱离的背影与象征速度与陌生的城市告别,而用柔软与开放的面庞朝向日渐衰老与凋零的村庄。南侧二层书房设置转角玻璃窗,延伸到西侧,间之以似窗似门的透明洞口,紧接着便是三层高度上的横向长窗。西侧洞口横竖的几何变化削弱了山墙实面的厚重感,也为三层儿童房的书房提供了内化的风景。北侧唯一的两个洞口正是一层客厅和二层起居室的通高,建筑内部空间关系以最直白的几何语汇反映在立面,也是对室外朴树景观的借景。




新彭宅的设计是乡村与城市生活方式的异质混合,大家庭与小家庭,两代父母与子女的生活网络在此交织,最终调和成简洁理性的建筑整体空间。随着时代的飞速发展,人去人归,50后、80后与10后各自的生活方式也都在发生变化,唯一不变的是变化本身。








项目图纸

△原建筑示意图

△基地示意图

△总平面图





△立面图

△立面图

△立面图

△立面图

△剖面示意图

△分析图

△交通流线分析图

△剖面图

△剖面图
项目信息
建筑师: 立木设计研究室
面积: 250 m²
项目年份: 2023
摄影师:朱清言
厂家: Denison, Duoyi, Lipang, Terrazzo & Marble, Texture coating, Wood Veneer
主创设计师: 刘津瑞、邹明溪
设计团队: 李佳妍、李春瑶、郇雨、程苗、谢舜冰、刘明昊、管浩廷、肖罗琴、陈子茜、邹承幸、许凤洁、王刘阳
室内施工图设计: 一卜川
室内施工图设计团队: 小冲哥、辛林凯,王运发,王德升,万育伊
项目驻场: 李翔、郇雨
设计顾问: 申鹏
结构顾问: 结构顾问:唐熙、刘承亮
暖通顾问: 芮文
项目经理: 郭岚
地点: 南通

BIM建筑网





评论前必须登录!
注册