场地和项目概况
项目场地位于广州市黄埔区长岭街道黄麻村村口,黄麻路与广汕公路交汇处,是人们进入黄麻村的必经之路。场地北高南低(有大约1米的高差);南侧为城市主要道路,西侧是进村的道路和高架桥,东侧为林地和临时停车场。溪流龟咀涌从场地中穿过,将场地分为东西两块用地。


项目是黄麻村乡村振兴和旧改项目的重要组成部分,主要功能包括:展厅、配套办公、接待服务,及新的村委会等。根据使用需要,项目被分为两部分:首先完成的是位于溪流(龟咀涌)东面的乡村会客厅(完成于2021年10月);稍后完成的是位于场地北部的乡村振兴工作站(完成于2022年10月)。除建筑外,周边的环境也需要设计和提升,在服务本村和周边居民休闲娱乐的同时,也成为黄埔区城市景观的一部分。



设计概念和总体布局
在和业主沟通后,建筑师和业主方达成了共识:乡村振兴工作站应该朴素实用,并不追求奢华,但也要有品质感。建筑要尽可能轻盈,并对环境轻扰动;应采用装配式的方式建造,从而缩短工期。此外,如果可能,建筑还应该是可拆除的,场地可以重新还原为土地。


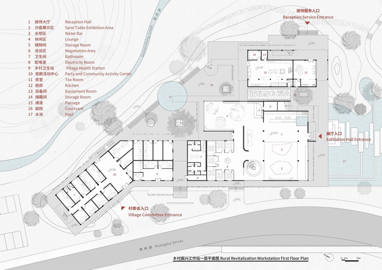
乡村振兴工作站被布置在场地北端,地势较高的区域,它包括:展厅、嘉宾接待,及新的村委会。因为场地西侧有高架桥,这是广汕公路链接广佛肇高速的城市快速路,繁忙的交通会对工作站产生影响,建筑在西侧退线10米。同时,为了尽量不破坏建筑西侧的溪流和林地,工作站主体建筑在东侧沿溪流走势布局,并尽量后退,保持了溪流的距离。


与工作站隔溪流相望是乡村会客厅,它是一个小巧的环形建筑,主要功能是茶室。



乡村振兴工作站
工作站采用类集装箱的模式建造,由预制化的钢框架为支持构建,配以装配式的外立面和地板。建筑分为展厅、嘉宾接待、村委会三个区域,各区域具有独立的出入口,可分可合。根据功能需要,建筑各部分高度不同,其中展厅高度为9米,其他部分的层高为3.6米。因为建筑由模块组成,可以很好的适应地形。建筑南侧和西侧边界平整,东侧则与自然环境相互渗透,形成共生关系。


展厅和嘉宾接待的入口面向南边的绿地,展厅入口前的浅水池形成进入建筑的前导景观,增强了仪式感。水池与微地形和高大乔木一起,使建筑与南侧的景观连为一体,让工作站成为小公园的一部分。村委会位于建筑北区,入口面向西侧的黄麻路,方便本村人抵达。展厅、嘉宾接待区域与村委会之间有通道分割,并在嘉宾接待区的北侧设有一个小庭院,将外来人员和村民的流线分开。庭院东侧与溪流、林地毗邻,院中有水池、树木,并通过螺旋楼梯与二楼的廊道连接,形成怡人且丰富的小景观。


首层大量使用了甬道,既将三个不同的功能区域分割开,又应对了广州地区炎热多雨的气候,形成自然通风的路径。建筑首层基础和部分区域的架空处理进一步加强了对气候的回应。此外,建筑首层地面尽量不硬化,采用点基础和架空防腐木地板。建筑地面整体抬升,雨水可以很好的渗透入地面,形成水的循环。


建筑的三个区域在二层被廊道连接在一起。廊道分为窄长的栈道和较为宽大的平台,在连接各区域同时,也增加了半户外活动的空间。廊道和首层的甬道并不完全重合,错位的处理使建筑体块之间的灰空间在水平和垂直渗透方面更为丰富。设计之初,建筑部分屋顶还设计了屋顶绿化,立面也采用垂直绿化,但由于后期对于成本的控制,很遗憾没有实现。


建筑外立面采用简洁朴素的处理,以白色真石漆搭配木格栅为主。木格栅为建筑包裹了第二层表皮,一方面起到了一定的遮阳作用,另一方面丰富了建筑立面的虚实关系。简约的外立面设计,给人清爽的感觉,很好的平衡了建筑的“临时性”与艺术性。


乡村会客厅
乡村会客厅位于龟咀涌的东侧,主要功能是茶室。它面积很小,宽大的屋顶和透明的外立面使其很好的与环境景观相融合,成为一个新式的亭。
建筑成环形,建筑中央有一个圆形的内庭,屋顶外侧高、内侧低,形成了四水归堂之势。建筑的外立面朝向工作站和公园的部分为落地玻璃。通透的界面将室外的景观拉入室内空间,也让工作站和会客厅之间形成了视线上的交流。部分落地玻璃内侧使用木格栅,遮阳的同时,也呼应了乡村振兴工作站的外立面形式。



为了让建筑更为轻透,会客厅的结构采用钢结构。在设计中建筑师和结构工程师讨论,希望尽可能少的设立柱子。最终,钢柱分为内外两圈,外圈位于外立面内侧,8根;内圈柱子环绕内院布置,比外圈柱子减少一半,为4根。



建筑入口部分采用内凹的处理,内凹的部分在地面设立浅水池和汀步石,客人需要“踏水而行”进入建筑。此处的立面使用了封闭墙面的处理,并配以中式的六角窗和假山。整个处理让人想到中式园林建筑,这给会客厅以文化感和趣味性。



会客厅的室内设计也力求清爽,地面采用平整的水磨石,分割线按照扇形布置,回应了建筑的形态。屋顶呈碗底状,采用木饰面,灯光和空调口被巧妙的和木饰面的缝隙融合,很好的保证了空间的完整性。室内屋顶的弧度向室外延伸,成为建筑出挑的檐。与出檐对应的是建筑外围高于地面的环形台,它既可以为客人提供室外休息的座位,又让建筑从地面“漂浮”起来,增加了建筑的轻盈感。



结语
“轻”是本项目最为突出的设计理念。从建筑与环境的关系,到工作站建造形式的选择,乡村会客厅的形态和质感,再到两组建筑在结构和细节上的处理。建筑师希望建筑以不同层面的“轻”来表达自己。这些“轻”不仅包括形态和构造上的轻盈、轻巧,也包含建筑对土地、环境轻干扰和轻改变的关系和态度。


项目图纸

△总平面图

△一层平面图

△二层、三层平面图

△乡村会客厅平面图
项目信息
名称:黄麻乡村振兴工作站与乡村会客厅
地点:广东省广州市黄埔区长岭街道黄麻村
业主:敏捷集团
建筑及室内设计:三文建筑
主创建筑师:何崴、陈龙
团队成员:唐静、王梓亦、孟祥婷、周俊杰、王东升、刘泳、朱艳明
设计时间:2021年3月-2021年7月
建成时间:2022年10月
用地面积:8000平方米
建筑面积:乡村振兴工作站5200平方米,乡村会客厅210平方米
摄影:金伟琦

BIM建筑网





评论前必须登录!
注册