半仓位于上海浦东新区金桥板块的EKA•天物园区。原址是60年代上海中船航海仪器厂-445栋仓库。受业主方委托对该地区进行整体规划改造设计,作为园区的先驱更新项目,既要有商业接待、展示展览功能,又要体现出未来园区的前瞻性。我们尊重历史发展脉络,把当下可持续发展理念置入其中,新旧叠合相生,让老建筑得以唤醒。

△被树林包裹的半仓全景 ©苏圣亮

△东侧正立面©苏圣亮

△屋面景观露台 ©苏圣亮

△项目在园区规划中的位置 ©本哲建筑

△更新后的半仓 ©苏圣亮

△建筑原貌 ©本哲建筑
半仓保留了原有建筑形态,梳理简化了外在表皮。原有朝南山墙被拆除,置入玻璃金属格栅,让室内空间通透自由开放。朝东一侧为主立面,面向开阔的景观水池,二层左侧主立面悬挑斜插出十六米的长飘窗,打破了建筑的平衡。底层原有窗户被四组整块格栅门代替,可向两侧全部开启,模糊了室内外边界。右侧主立面大块面碳化木覆盖,内藏隐门、暗窗,展现多样形态,便于业主后续功能复合利用。

△建筑与人的关系 ©苏圣亮

△傍晚时东侧面 ©苏圣亮

△半仓的后院 ©苏圣亮

△带阶梯的长飘窗 ©苏圣亮
中段屋面局部被打开,屋顶露台自然呈现,为内部走廊行走的灰色空间提供光线及景观。我们致力于实践建筑、人与自然之间的关系,这也是我们对旧建筑更新的初衷。

△南侧立面 ©zhu_runzi

△东侧立面 ©zhu_runzi
贝壳、沙滩石混合而成的水洗石及黑色碳化木构成外在的主要肌理,既延续了海派城市历史风貌,又体现了半仓的静谧与东方极简美学精髓。

△外立面材质肌理 ©zhu_runzi

△屋面雨水收集系统,资源节约,也是半仓自然环保的生态体系的一部分。 ©zhu_runzi
旧建筑室内楼层之间非常封闭,我们在半仓更新改造过程中保留了原始墙面粗砂水泥肌理,新旧融合。移除部分楼板,让整个空间上下自由贯通,错落有致的楼层设计营造出别样的视角及丰富的尺度空间,让人得以眺望、阅读、思考、窃窃私语……

△东立面主入口处 ©苏圣亮

△一层可开启的格栅,模糊了室内外边界 ©苏圣亮

△楼梯的不同方向的穿插,让室内空间自由流动 ©苏圣亮

△分析图 ©本哲建筑

△剖面图 ©本哲建筑
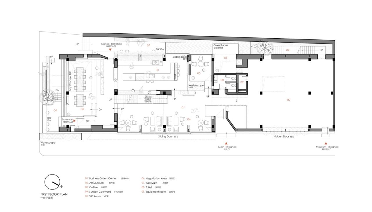
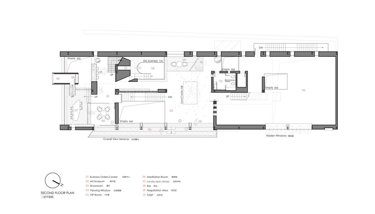
改造后的半仓一层设置了咖啡厅、VIP接待空间、下沉式商务活动区。开放式设计,以动为主,强调交流对话。二层分布小型图书馆,沙盘展示区,冥想区,半围式设计,以静为主,强调阅读与静思。一、二层动静结合,创造出多样性体验空间。

△一层休闲大厅 ©苏圣亮

△一层咖啡区 ©苏圣亮

△冥想区(外) ©苏圣亮

△冥想区(内) ©苏圣亮

△美术馆入口处、沙盘区 ©苏圣亮

△室内阶梯长飘窗望外远眺 ©苏圣亮

△阅读区 ©苏圣亮

△带楼梯的观景台 ©苏圣亮

△错落有致的楼层 ©苏圣亮
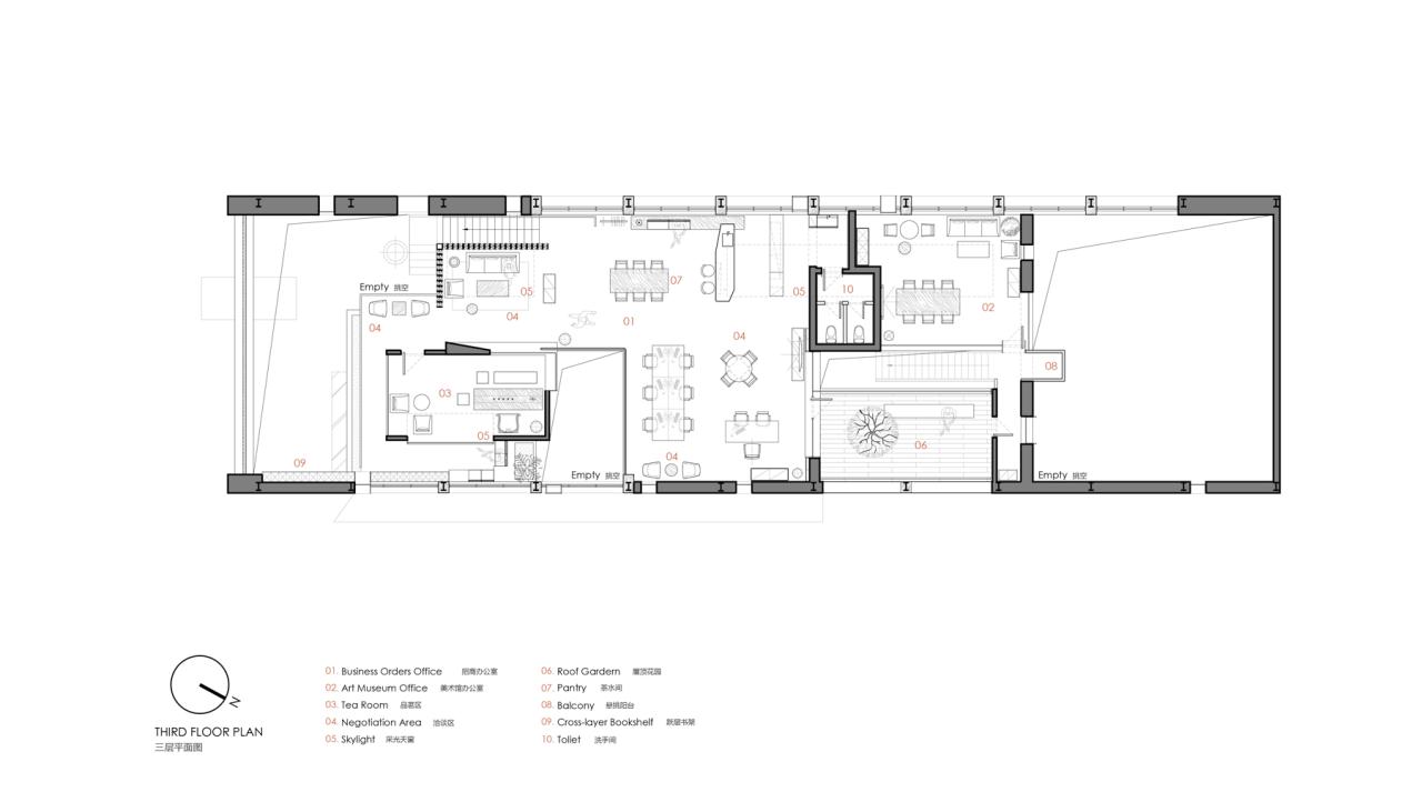
三层室内原有石膏板吊顶被拆除,裸露的原木人字梁结构被保留,并对之梳理剔除后新造金属构件、黑色金属包裹的BOX茶空间体块,置悬于三层中庭,工业风茶水吧、复古开放式办公区分布其中。新与旧在这里激烈地碰撞与交织,呈现出后现代解构主义风格。

△新开启的天窗给室内空间引入更多光线 ©苏圣亮

△三层BOX茶空间 ©苏圣亮

△「泊」给空间带来更多禅意 ©苏圣亮

△绿色画幅映入眼帘 ©苏圣亮
我们在有限的空间里保留了一小块文化属性空间,对该场地没有过多的渲染,只作稍加收拾,用小型美术馆的方式呈现,展示出对旧建筑的尊重。唤醒与利用也是更新设计的一种方式。

△美术馆入口 © zhu_runzi

△美术馆 © zhu_runzi

△挑高美术馆 ©苏圣亮

△美术馆办公区 ©苏圣亮
收敛、静谧,虚怀而若谷,犹如半仓。

△绿茵中的半仓局部 ©zhu_runzi

△一层平面图 ©本哲建筑

△二层平面图 ©本哲建筑

△三层平面图. ©本哲建筑

△南立面图 ©本哲建筑

△东立面图 ©本哲建筑

△西立面图 ©本哲建筑
项目信息
项目名称:半仓
项目地点:中国上海市浦东新区金桥路535号(EKA·天物)
建筑/室内/景观设计:本哲建筑
主创建筑师:蒋华健
设计团队:姚瑞艮 林桐 赵桂军
建筑面积:1260m²
占地面积:445㎡
设计时间:2021年3月-2021年11月
竣工时间:2023年1月
业主方:上海嘉韵投资管理发展有限公司
结构设计:上海同宴土木工程咨询有限公司
摄影:苏圣亮 朱润资

BIM建筑网





评论前必须登录!
注册