
福强小学是深圳规划局发起的“福田新校园行动计划_8+1建筑联展”延伸版块中的一所,尝试探索促发创新教育的校园类型。

学习层台支持创新学习模式,使扩建后的深圳福强小学能满足深圳对创造性人才和创新驱动能力日益增长的需求,适应深圳经济的快速发展。




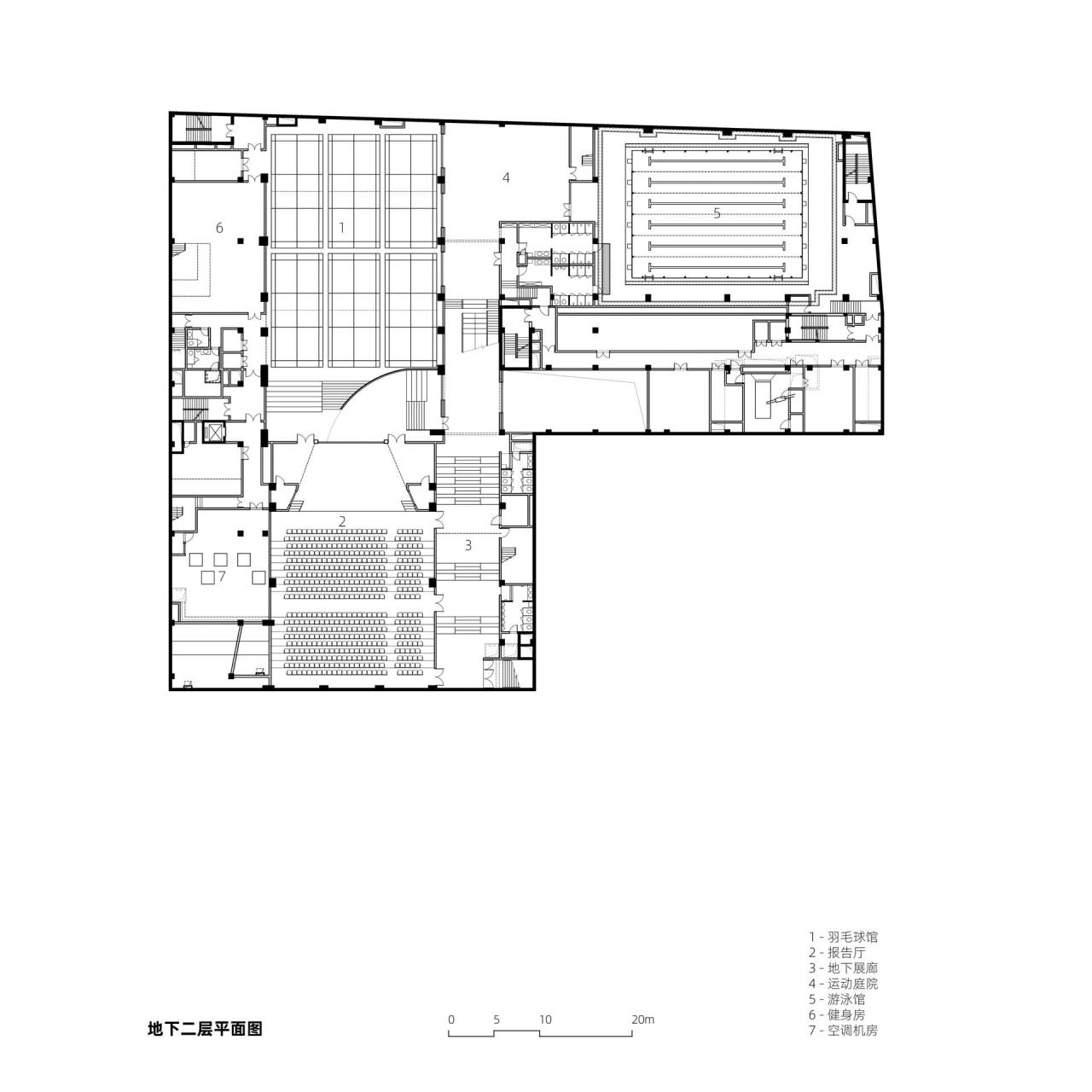
为了激发师生的探索热情和好奇心,学校围绕“混合空间”的理念进行设计。不同的课程与活动在空间层面上并置在一起,提供跨层的新联系,例如:标准教室、特色教室与运动场相邻,支持跨学科的互动;一层图书馆读书的学生可以看到地下一层报告厅的表演和羽毛球场的体育课。空间作为“第三老师”,在学生的教育过程中起到重要的作用。



多样的空间使得师生能够根据不同的年龄和兴趣,灵活的开展教学体验活动。大尺度的屋顶花园、中尺度的内院、和小尺度的天台都是不同的户外学习空间,可以满足不同规模的学习需求。宽敞走廊与可坐大台阶也被用作非正式学习空间,容纳不同的课程与活动。建筑立面窗洞内置座位区域,提供了一个安静私密的角落,当学生在此区域休息时,不同活动类型构建出向城市展示的生动校园形象。



设计提供与真实世界联系的机会,将学习与现实生活体验联系起来,协助学生学习。室内外空间相互连通,可作为一个完整的学习空间,使得学生的学习环境能够与室外保持联系;自然植物也融入校园,以水平或垂直的形式分布在整个校园,使学生能够充分接触自然,并从中学习。



强调动作、体验,和表现力的创新学习在北侧架空的悬挑玻璃教室中发生,音乐表演、艺术创作和舞蹈等活动,在校园其他地方都可以很容易地看到、欣赏。同时这些架空的透明教室面向北侧的城市主要道路,向城市传达出学校的创造性特征。



扩建后的校园是原来的两倍,使更多的孩子能够接受高质量的教育与创新学习。学习层台将旧的学校建筑,原有的STEAM大楼,新的教育建筑与设施融为一体。福强小学的原有校园作为优秀教育遗产被保留下来,且得到了升级,以满足创新一代的要求。

















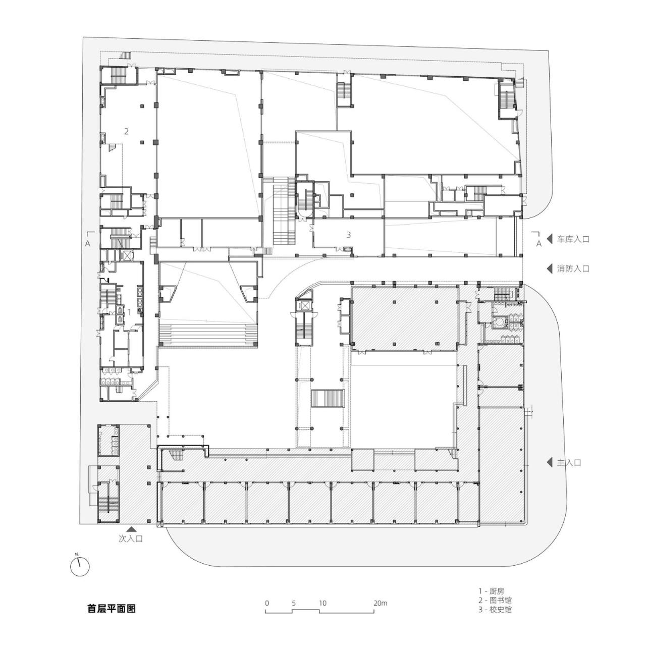
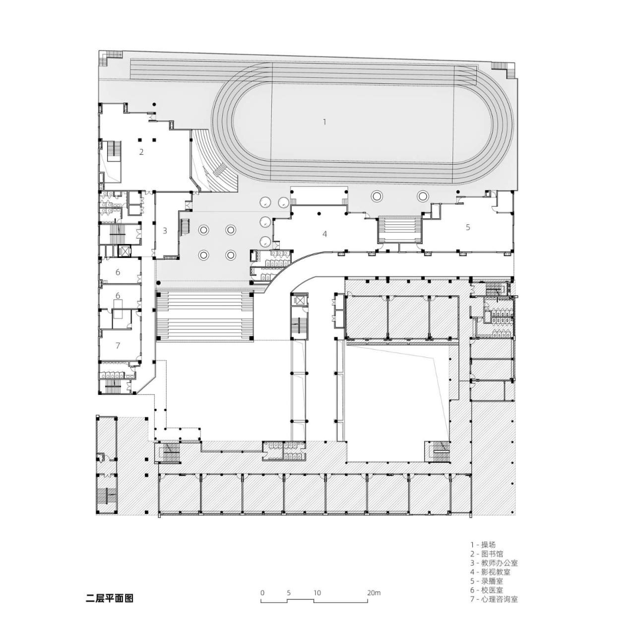
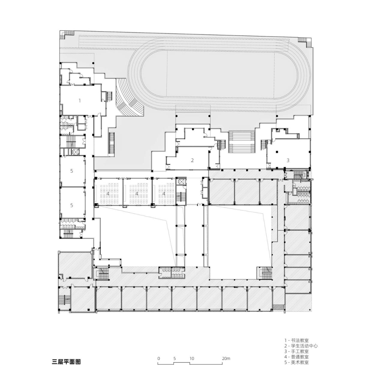
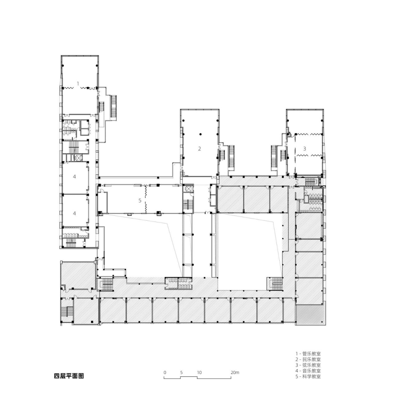
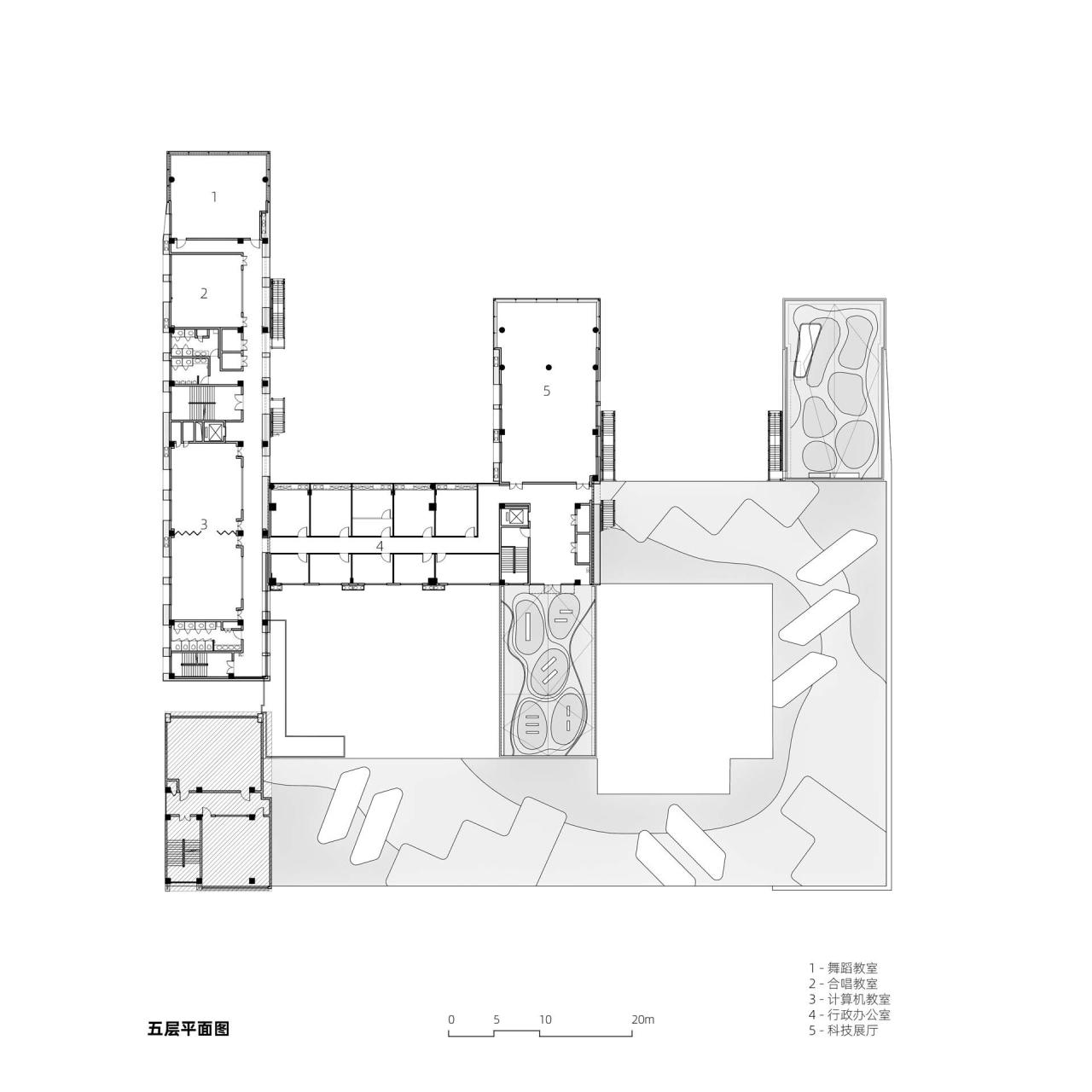
项目图纸





















项目信息
建筑师:众建筑
面积:11190m²
项目年份:2021
摄影师:朱雨蒙,ACF域图视觉
主创建筑师:何哲,沈海恩(James Shen),臧峰
项目负责人:李正华
设计团队:汤艳妮,许嘉玲,孔鸣,高鹏飞,张弦,朱钟晖,蔡钰翰,张弛,杨喻婷,王一博,谭坦,顾乃全,夏鑫,刘若尘,李秋宛
合作方项目负责人:王湘昀
合作方团队:黄进隆(建筑),张大权(结构),郝齐东(给排水),张瑾(强电),魏后文(弱电),林文升(暖通)
合作方:深圳市建筑科学研究院股份有限公司
地点:深圳

BIM建筑网





评论前必须登录!
注册