
广州市第三少年宫项目位于广东省广州市黄埔区镇东路68号,与区域体育中心、图书馆等公共建筑形成城市公共活动场所集群,是区域科普教育片区的核心建筑之一。总用地面积2.8万㎡、总建筑面积2.9万㎡,地上五层地下一层,总高27米;含少年宫教学主楼与450座小型剧院,通过空中连廊连为整体。项目改善了社区城市风貌,已成为黄埔区标志性的城市公共文化地标。

本项目顺应地形,设计师将少年宫布置于西侧地块,剧院布置在东侧场地,通过流线型的连桥联系两组建筑体量,形成连续的市民通行路径与城市界面。在功能上,整合少先队活动、儿童教育展示、科普体验、科普与美学教育以及运动场地等多项功能,为区域儿童提供多元的学习、活动场所。


在规整严谨的平面结构下,建筑外轮廓界面自由活泼。自由云状空间结合彩色水平格栅,表现出富有具有不确定性与灵活性,柔化外轮廓,塑造七彩花瓣,曲线流动的建筑造型,在不同视角下展现出无限种立面,每一眼都充满新意。



对好玩的游戏元素进行转译与再创造,运用到建筑与景观空间中,让建筑变得“好玩”起来,让墙面、地面、天花等每一个角落都能成为孩子们的玩伴。


少年宫中心庭院让孩子们可以在自然中亲密游玩,主庭院以“放飞童年梦想”为主题,设计好玩的超大气球墙,在中庭不同高度嵌套多个“微型”平台,在充满想象力的孩子眼中,这是一个个奇妙的小宇宙。



项目设计师秉承经济、适用、美观的设计初心,在保证高品质前提下降低建造与维护成本,单方造价较国内同类型项目低25%,其中,光棚设计与彩虹栏杆设计获得中国实用新型专利。


项目创作过程体现了对岭南城市公共场所环境的尊重与回应,为社区青少年儿童提供有趣舒适的学习与活动空间场所,并向青少年传播鼓励创造、激发想象的设计理念,体现了对岭南建筑创作求真务实的底蕴和追求。




项目图纸

△基地示意图

△总平面图

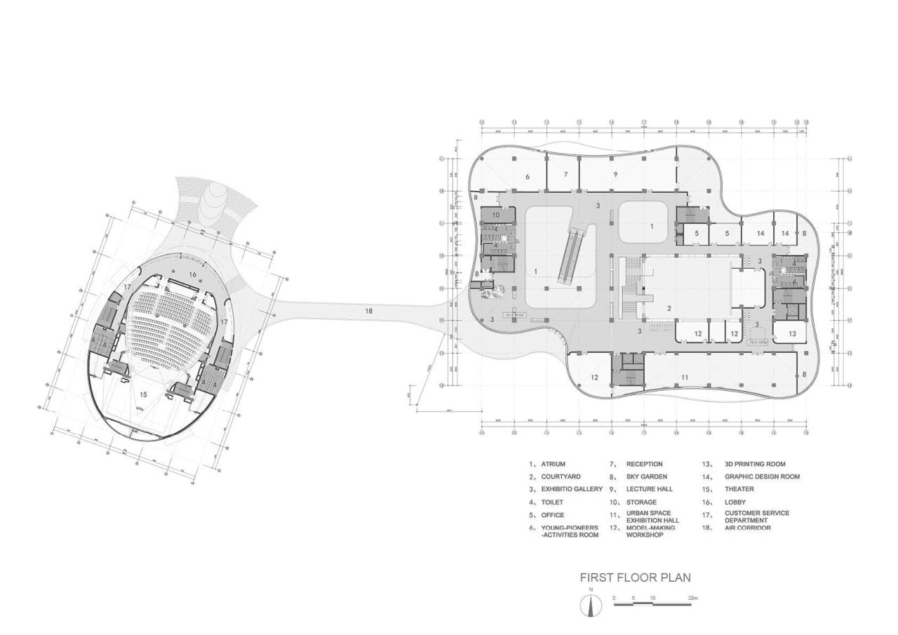
△一层平面图

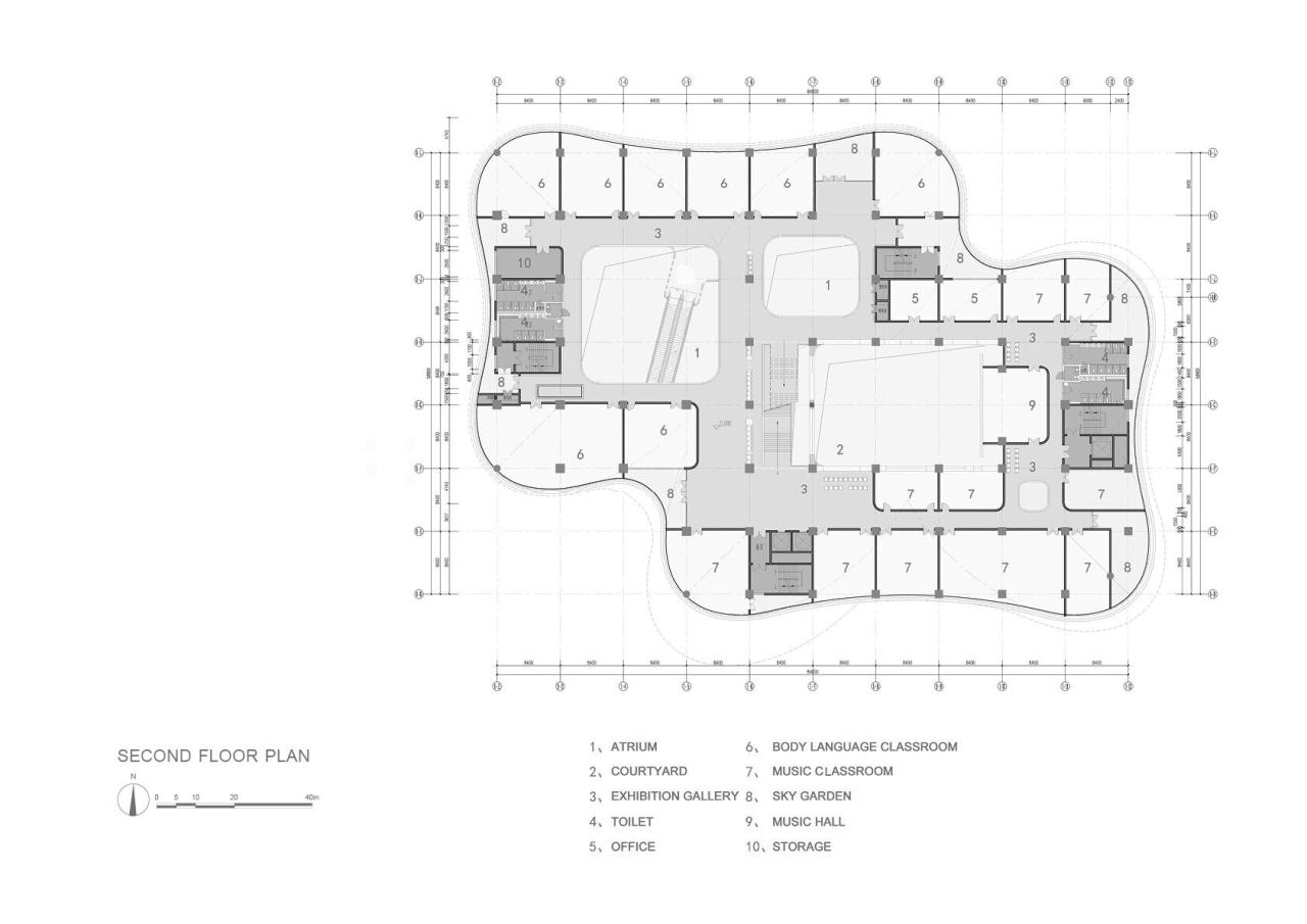
△二层平面图

△三层平面图

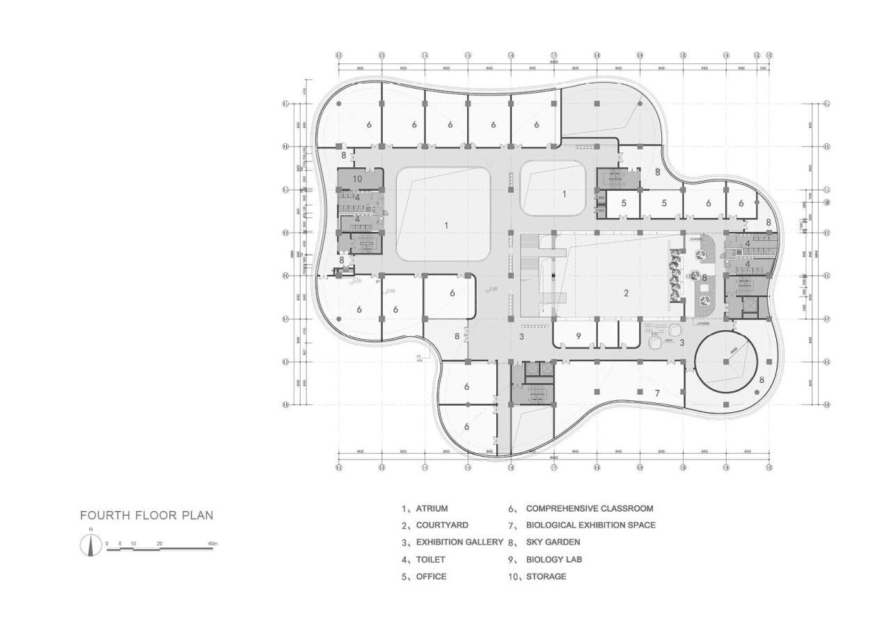
△四层平面图

△五层平面图

△屋顶平面图

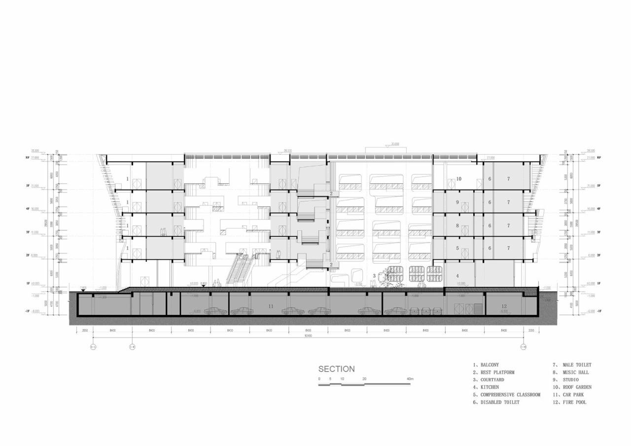
△剖面图

△细部大样图

△剖透视

△剖透视

△分析图

△体块生成图

△分析图

△分析图
项目信息
建筑师:广州市城市规划勘测设计研究院
面积:29000m²
项目年份:2020
项目负责人:胡展鸿,赖奕堆
主创设计师:胡展鸿,赖奕堆
建筑师:胡展鸿,范跃虹,区慧美,赖奕堆,张庆宁,杨涵,张成辉,黎明,曾琦,梁彦,谭中婧,李紫妍,许卓安
结构设计:刘洋,陈伟军,杨志强,韦润忠
景观设计:叶丹
给排水设计:刘东燕,刘碧娟
电气设计:田斌,周志强
暖通设计:张湘辉
委托方:广州市少年宫
室内设计:城市组设计集团有限公司
工程设计:广州市城市规划勘测设计研究院
幕墙顾问:同程建筑
地点:广州

BIM建筑网





评论前必须登录!
注册