
陶厂中的两组建筑
在2021年底景德镇三宝国际陶艺村创始人、景德镇陶瓷大学特聘教授李见深教授作为项目总策划邀请建筑师来痘姆陶厂现场踏勘时,陶厂内正在进行全方位的升级建设。我们领到的设计任务包括其中两座建筑的新建和改造——其一非遗客厅建筑已经开挖地基,因此建筑外轮廓及结构位置已确定;其二覆盖石棉瓦屋顶的龙窑则亟待更新,以满足窑篷建筑的坚固性和美观性要求,并适应其新功能。



痘姆制陶的历史可追溯到6000年前的薛家岗文化并绵延至今,其陶瓷烧制的技艺在当下也已被列入国家级非物质文化遗产代表性项目名录。如何保留传统的记忆并展示非遗的技艺,窑厂内的非遗客厅方案调整以及龙窑窑篷更新的设计任务,分别为建筑师提供了不同的挑战。



在保证原设计主体建筑轮廓不变的前提下,建筑师对非遗客厅的建筑体块关系进行了调整,形成更丰富的底层空间界面及更亲人的尺度。建筑内部则通过流线梳理,形成一条完整的室内外结合的参观路径。龙窑窑篷设计则是在现有龙窑基础上,重新设计一个能遮风挡雨,满足下方烧窑需求的窑篷,同时在不影响烧窑作业的高处增加一条参观路径,形成一组全新的观察龙窑烧窑的视角。



参观路径——在窑背上东张西望现存龙窑建造的历史可追溯至清朝,在漫长的历史岁月中,其经历过多次火灾烧毁及修复的过程。改造前的窑篷采用轻质耐烧的石棉瓦也是出于方便修复及防火的原因。支撑棚架的砖垛间距则是根据窑工添柴、放置陶坯的作业方式,综合考虑避让窑门、烟囱的位置,而最终确定其模数。因此新的设计基本保留原有的砖垛间距和结构形式,以保证传统烧窑方式不被干扰。



龙窑屋架的既有形式是当地最普通的人字形松木木构屋架,每一榀三角形的构架均由下方的两组砖垛支撑。如何维持原有屋架的基本构型,再置入一组参观流线,便是龙窑改造所需解决的关键问题。建筑师在新建屋架的设计中尝试了不同的标准跨构建形式,最终被选定的方案在保留了原有屋架的构型的前提下,增加了一条蜿蜒于龙窑之上的参观路径,同时最大限度地控制了新屋架的高度,使其仅在原有屋架的基础上增加了1.8m。


从厂区其他关键视点向龙窑看去,新建屋架和原有屋架在天际线起伏趋势与窑篷高度上没有过于明显的差异。在陶厂内,龙窑仍然是控制天际线最重要的元素,但被控制过高度的新建屋架并没有让天际线产生过于突兀的感觉。


场景叙事——并置、观察、对话在龙窑窑背及内部工作的窑工与在屋架上穿行的游客,借新的屋架形式形成两组在空间中并行的流线。二者在视线上有多处交叉互看的位置,因安全生产的需要,二者之间未设计有相互连接的平台。
参观者从窑尾的小剧场旁的砖砌小屋内拾级而上,经过两道转折后,东张西望地穿行于窑背上方。或东或西的参观流线位置是综合考虑外部建筑高度以及内部视线关系而确定的。



每一处流线的转折和空间节点处的放大均是以龙窑午门位置作为参照而确定的。在中段的大午门处设置了可以俯瞰广场及远眺天柱山的平台节点,靠近龙头的小午门处则是设置了三段连续的平台以获得更完整的观看视角。龙头流线终点处设置的户外茶室提供了观看园区和天柱山的另一处视角。
目前完工的通道仅展现了参观人群通行、游览及观看烧窑的场景,未来将有更多的内容——诸如陶器展廊、长桌宴、时尚秀场等被置入于此。


记忆再现——材料形式的表达窑厂内随处可见的陶罐的堆砌方式、窑砖的表面肌理、龙窑内部的拱顶和分隔墙的砌筑方式均为设计师提供了丰富的素材与灵感,如何将其转译成为建筑语言并以当代的方式呈现,成为本项目的一项重要工作。
非遗客厅与龙窑建筑功能与空间相互呼应,设计师在其中植入了几组“窑”主题的空间,如位于参观路径上的“窑之路”,国际展过厅的拱形空间,以及穹顶下的卫生间。这些空间与龙窑屋架一起完善了整个陶厂的参观路径。



在本项目中,建筑师尝试用适度的,能与场地较好融合的建筑形式和材料语言,以保护好非物质文化遗产和活着的千年龙窑为前提,为其融入当代的生活环境,承载更多的公共展示功能,接待更多的游客等提供更多的使用场景。






项目图纸

△总平面图

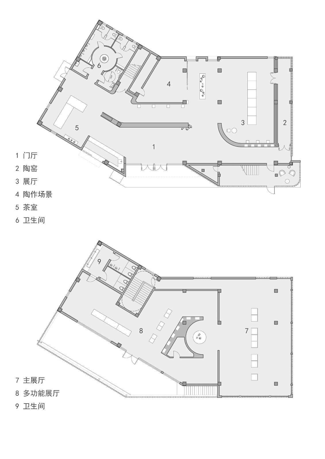
△平面图

△分析图
项目信息
建筑师:灰空间建筑
面积:2150 m²
项目年份:2023
摄影师:柯剑波, 雁森, 李见深
厂家: 苏州云客装配式建筑工程有限公司
总策划:李见深、田伟伟
项目主持建筑师:刘漠烟、苏鹏
项目建筑师:雁森
灯光顾问:扈靖
景观设计: 翟隽
龙窑设计团队:应世蛟、雁森
非遗客厅设计团队:琚安琪、李园园、莫仙、陈凯琪
千年墙及大门: 涂锐、谢斐等
机电设计: 芮文工程设计事务所
非遗客厅布展平面设计:郭玉川、魏文卿、宋贤茂、胡奕胜
项目策划:景德镇朴缘文化传媒有限公司
委托方: 潜山市痘姆乡人民政府、景德镇三宝国际陶艺村李见深工作室
结构顾问:iStructure
施工图设计: 上海开艺建筑设计有限公司
地点:潜山市

BIM建筑网





评论前必须登录!
注册