
OCT当代艺术中心(简称OCAT)成立于2005,是中国著名的先锋艺术机构,长期致力于当代艺术的展览和理论研究。2003年都市实践将深圳华侨城东部工业区的一座家具库房设计改造为OCT当代艺术中心,同时进行工业厂区向创意文化园转型的总体规划设计。首个OCAT展馆于2005年建成,之后华侨城OCAT发展为系列馆群遍及全国。2022年,由创意园北区原生产磁碟的二层厂房B10改造而来的OCT当代艺术中心新馆落成,简称OCAT-B10。



OCAT-B10的改造设计始于2007年,经历了早期的研究策划、2011年国际设计邀请展、项目定位调整、漫长的项目审批、决策主管领导更换等各种变故,十五年后在资金紧缺的情况下艰难实施。其间都市实践推出的数版改造方案回应不断变化的外部条件,B10的定位从设计中心改为当代艺术中心,外部形象也从激进前卫转向谦逊内敛。



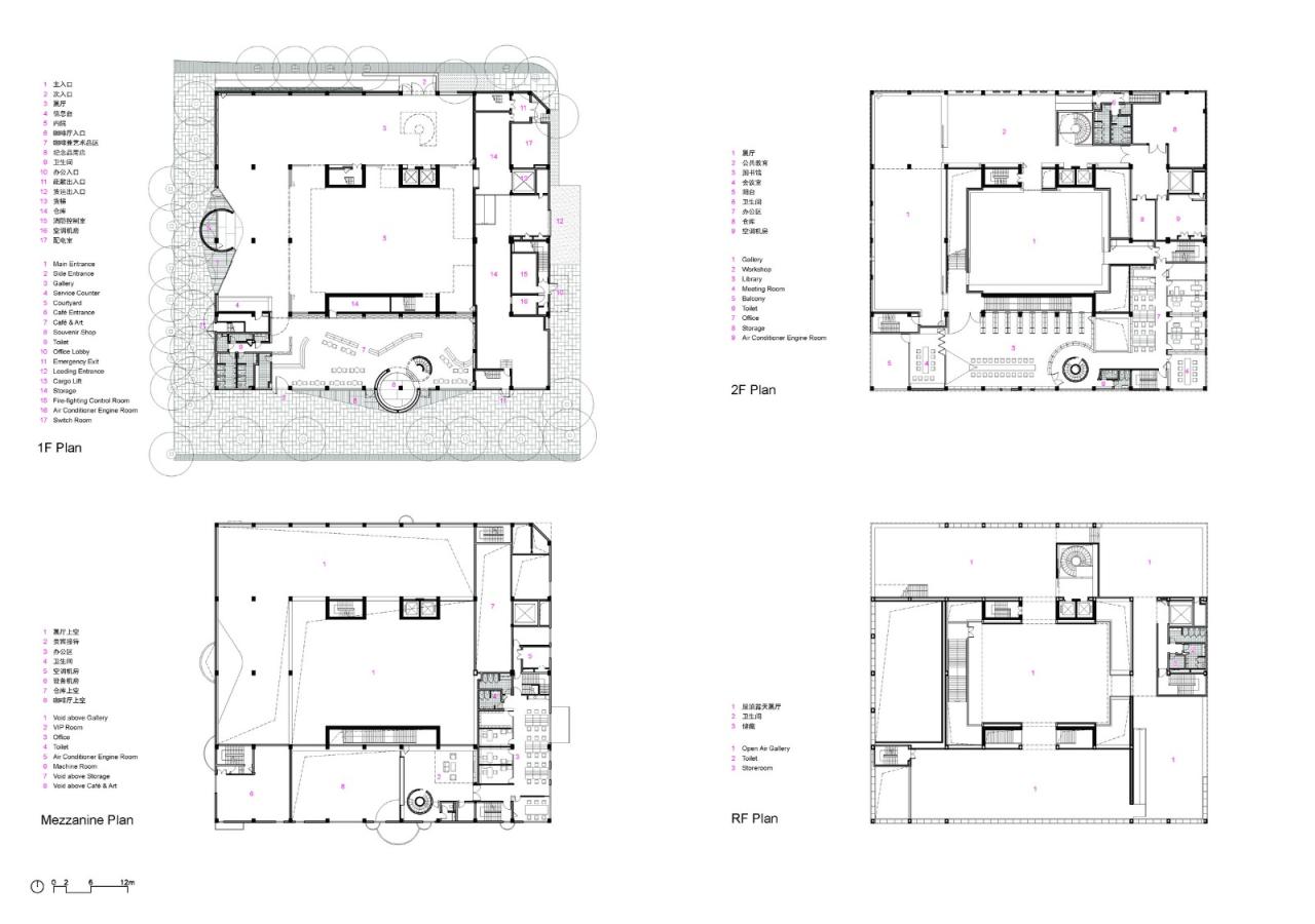
最终实施方案保留了原建筑体量及主体结构,中间部分拆除,上下贯通植入一个新的体量。南北各插入一个旋转楼梯,分别连通一二层和二三层,与中部直通三层的L型大楼梯一起,引导观众的观展动线,把整个展览体验从地面延伸至屋顶平台。三个混凝土核心筒成为新的主体结构。展厅是简洁、标准的厂房空间,通过一系列可移动的门/墙取得最大限度的空间灵活性,也带给人们多样的观展路径与观展中偶遇的乐趣。建筑一层南侧与西侧主入口采用了富于仪式感的圆形和半圆形空间,一实一虚。设计语言采集自原有建筑的语汇,新与旧不同尺度的圆形空间贯穿于方形建筑的内外,且相互呼应。


原建筑的结构柱网保留着工业时代的遗韵。OCAT-B10首层是主展厅,南侧的咖啡厅及艺术品店,可24小时独立开放,也能够举办展览和讲座。二层的核心空间是多功能展厅,西侧全封闭作为恒温恒湿展厅;北侧为儿童艺术教育空间;带露台的南侧留给图书馆和艺术沙龙。
三层设计了高达8.4米的展厅系列,掀掉屋顶使之成为露天展厅。外围墙体用双层拉伸金属网建造,材料的通透性使展厅空间与周边环境互相渗透,既隔绝了四下楼宇的杂乱,又通过景窗裁切、收纳进远山近树。



人们从下面两层的展厅大拾阶而上,来到屋顶的“露天美术馆”,一步步从现实中抽离,直至身心放空。在此人与人相遇,既身处其中,又置身事外;在此人与作品邂逅,直接面向天空的观展体验呈现出最大程度的开放,并以此激发当代艺术在地生产与呈现的全新可能性。



现状工业建筑外观被全然保留,通体刷白,大部分外窗为满足美术馆内部空间需要而填实,转变为凹入的盲窗,成为工业遗存和城市记忆的铸模;外立面保留了原磁碟圆盘,不动声色地暗示了昔日的功能。工业时代的符号和印迹被封存在抽象的白色之下,成为当代艺术的容器。建筑的留白为艺术的介入带来了无限可能。OCAT-B10新馆矗立在创意文化园斑驳的树影中,以一种空白画布的谦和姿态欢迎未来的艺术介入与再创造。
















项目图纸

△区位图

△OCT-LOFT改造总平面图

△北区轴测图

△分解轴测图

△分解轴侧图

△平面图

△剖透视图
项目信息
项目名称:OCT当代艺术中心-B10馆
设计:URBANUS都市实践
业主:深圳华侨城房地产有限公司
地点:深圳南山区华侨城创意文化园
项目时间:2013-2022
用地面积:6,899㎡
建筑面积:6,109㎡
主持建筑师:孟岩
项目建筑师:饶恩辰
技术总监:姚晓微
项目经理:张映园 张佳佳(建筑)魏志姣 张雪娟(景观)
项目组:姜轻舟 陈双原 李耀宗 刘羽 陈卉 刘勘(建筑)| 李冠达 王子昱 尹书宇(景观)| 周煜(实习)
概念方案团队:Travis Bunt, 张天欣, Bernat Riera, 钟浩宏, Matt Eshleman, 胡润泽 梁耀光 黄利钧 袁嘉樑
前期研究团队:张天欣 吴然 徐轶婧
施工图设计:深圳市同济人建筑设计有限公司
室内设计:深圳市共和设计工程有限公司
景观设计:普梵思洛
幕墙设计:朋格幕墙
灯光设计:瑞国际照明设计
标识设计:黄扬设计
摄影师:TAL,直角建筑摄影

BIM建筑网





评论前必须登录!
注册