
群山之下
从北京中心市区向东北进发来到项目地,万庄子村三面环山、阡陌交通、鸡犬相闻。本项目场地位于村东南角村口,东临桃花海。



项目场地中北房主屋以及有着200多岁的柿子树被加以保留,并在翻建时尝试打造与乡村共生的建筑,将村居生活记忆与情节娓娓道来。


融入村落
将院门改至东侧,引导人由桃园进入院内。入口的坐台开放给民宿客人及村民使用,让建筑融入到村落生活的场景之中。在场地布局上,我们让新、老建筑相互插接贯通,从而带来内部新老空间戏剧化的转变。新建筑屋顶向内院倾斜以呼应老建筑及村落风貌,利用倾斜的屋面高度差设置夹层空间,一方面提供了更多元的睡眠空间,同时也吸纳周围的景色进入庭院内、建筑中。




内外之间
院内设置大小两个孪生院子,两个院子不同的尺度、位置和围合方式形成了不同氛围的生活场景。连接新、老建筑的低矮体量作为露台让人感受更加开阔的山景与村落景象。




传统与现代—向村落学习
设计师在勘察本村风貌时,发现村落生长过程中由于物质相对匮乏激发的建筑智慧 ——利用现成的建材如红砖、瓦片、混凝土空心砌块、预制混凝土条板堆叠在一起呈现出一种粗旷、自由生长的建筑趣味。于是,建筑师借鉴了混砌的作法——运用改造时回收的红砖、毛石与现代材料进行搭配混砌。

混凝土的浇筑模板运用了农村家用品—藤席作为模版拓印到其表面,从而给混凝土带来一种乡村生活温情。诠释独属于农村质朴与粗旷的质感。











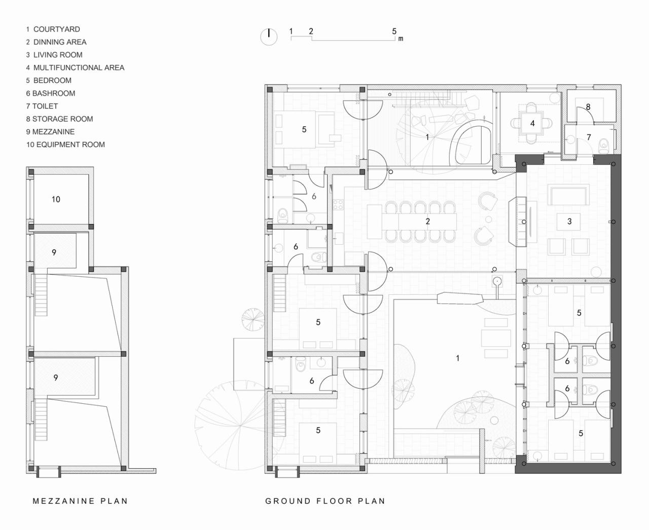
项目图纸

△平面图

△立面图

△剖面图

△剖面图

△墙身大样图

△爆炸图
项目信息
项目名称: 丫吉宿集98#院
项目类型:建筑/室内/改造 村房民宿改造设计
项目地点:北京市平谷区万庄子村
设计单位:北京复合建筑设计咨询有限公司
主创建筑师: 张鹏
设计团队完整名单:张雪莹、张力方
业主:共享际
造价:130万元人民币
建成状态:建成
设计时间(起迄年月):2022年3月-5月
建设时间(起迄年月):2022年5月-8月
用地面积(平方米):320
建筑面积(平方米):280
结构:胡晓劼
机电:赵世恩
摄影师:赵阳橦、张鹏

BIM建筑网





评论前必须登录!
注册