01楔子
为缓解常州市中级人民法院审判业务用房严重不足、不利工作开展的情况,法院拟在临近原址的西南地块新建一座集审判法庭、诉讼服务中心、执行指挥中心、信息化中心、警务保障中心等于一体的综合性公共建筑。

02项目概况
项目基地位于常州的核心城市腹地与行政中心区,火车站片区的新老城交接处,与老法院沿街角对望。地块西侧有沪宁城际铁路阻隔,东侧和南侧靠近城市主干道和轨交站点,为主要人流来向。规划用地面积约19.5亩,总建筑面积43778㎡,限高75米。


△区位分析
面对复杂的的城市环境,设计团队梳理其中信息,提炼规划协调、城市形象和场地关系三大要素。


从片区规划角度,思考如何妥善处理与周边城市、建筑的衔接与协调;从城市界面角度,斟酌如何打造火车站北广场轴线的重要节点和展示面;从场地关系上,研究如何错位统筹新老法院之间的功能互补和通行需求。
03规划布局·内外有别

法院是国家为行使审判权而设立的专用建筑,在作为法院办公之外,更是社会公众寻求司法救济、维护自身权益和接受法制教育的特定公共场所。

在这一意义上,法院不仅属于执法人员,更属于全体公众。因此,设计团队综合基地的现状条件,以及法院建筑的独特要素,将场地划分为“内外有别”的两个空间场所。

“外部”对话老法院,临东侧和南侧的城市干道,与城市外部环境一起,用相对大尺度、外向型的设计手法塑造一个开放、开敞的法治文化广场,为城市打造优质形象展示面,并给群众营造一个亲切透明又充满活力的公共空间。

“内部”临北侧现状公寓与西侧规划行政用地,结合内部办公、羁押使用,营造安全私密、宁静舒适的空间氛围。
以“外”与“内”的有机结合,形成结构清晰、安全舒适、高效便民又激活城市的总体布局模式。
04形态生成·法平如玉

法院建筑勾连了抽象的法治信仰与具象的法律制度,连接着国家秩序与社会民众,可以说是一种“凝固的正义”。因此,我们期望在建筑中融入司法理念,以鲜明的符号意象唤起民众对律法和正义的追求。



设计团队跳出传统法院的“神庙”模式,首先确定了方正中庭式的造型体量,又法徽上的“天平”中获取灵感,结合“白玉方印”的形态,将传承千年“法平如玉”的中国法制精髓融入建筑形态。

使建筑在现代简约、开放亲民的同时,又以端庄对称的形体、鲜明方正的轮廓,体现国家司法机关的庄重威严,打造符合现代“执法为民、公平正义”法治精神的新时代法院。
05空间结构·立体布局

设计团队以空间功能的开放程度和人流量进行立体化垂直布局。大楼的底层设置诉讼、信访等便民功能,同时与场地转角开放的法制广场,以及面向城市展示面的通透“侧厅”一起,最大限度地拉近和群众的关系,消除司法的神秘感和距离感。

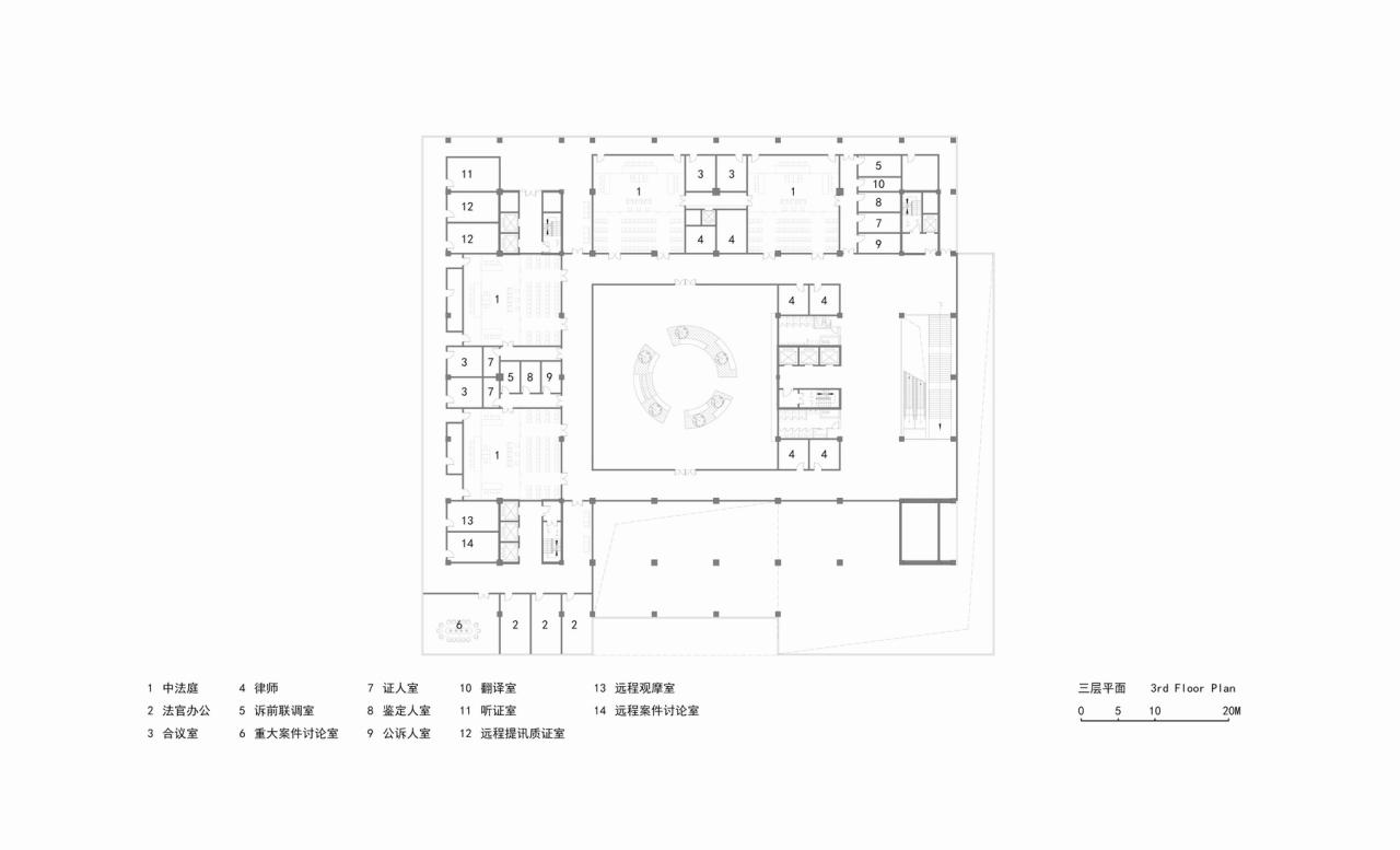
审判法庭作为法院最核心的部分,占据建筑的主体功能空间。大、中法庭被设置在二、三层,小审判庭集中布局在五至十层。

为匹配近年实施的法官员额制度(具有独立审判权的员额法官,及其他辅助人员组成的审判小组模式),设计团队将90个小审判庭与其各自的附属办公用房,采用“前店后厂”一一对应的组团模式布置,使90个员额法官可同时开庭,法院的人力资源得以最大限度地投入到办案第一线。


四层为数字信息中心、沙龙及空中花园,为未来数字法院的建设趋势预留了发展空间,也为内部工作人员提供了优质的日常休闲场所。

外侧无柱的核心筒式剪力墙结构,营造了通透的标准层转角挑空空间,设计团队期望在改善法官工作环境和内部采光的同时,也能使当事人压抑紧张的情绪得以缓解。
06流线组织·安全高效
法院建筑是高度组织化、系统化的建筑,如何将开放的社会法制活动场所与内向组织严密的审判区域统筹考虑,高效、清晰、安全地组织好公众、工作人员、涉案人员三种流线,将司法为民、便民的理念与服务内部员工的意图相统一,是法院流线组织的重点。


在本案中,设计团队遵循“内外有别”的规划布局,在东、南侧的“外部”公共活动界面设置礼仪、立案、信访的公众口入;在西、北侧的“内部”活动界面设置法官与后勤出入口。内外界面交界处,以安检区域分隔。


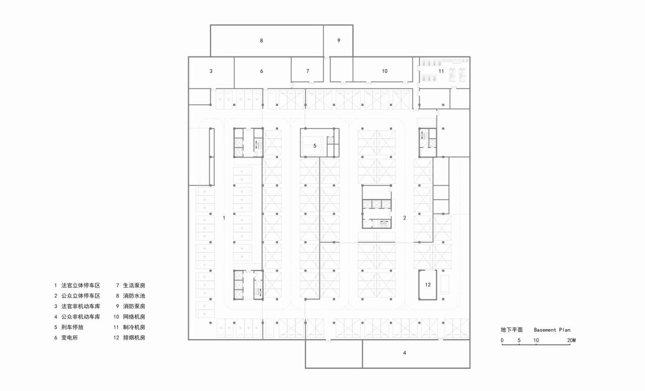
在垂直流线上,就近各不同功能的出入口,分别设置法官电梯、公众电梯、货运电梯与边庭扶梯。羁押单元被隐蔽设置,以独立电梯从负一层直达二、三层法庭。同时,结合未来法院更亲民开放的趋势,团队也设计了一条公众法制教育的参观流线。

△参观流线
07景观设计·动静相合
景观结构结合建筑规划进行分区,南侧形象展示区用灰色调为主的规整铺地、平静的水面,结合现代手法演绎的传统法院高墙台阶,兼备仪式感与设计感。


东侧市民使用区设计法制元素墙,并抬高人行通行道,以绿化隔离形成独立的内外使用空间,既保持设计整体性又互不干扰。


西侧、北侧的内部通行和绿地区,将停车与视线通透的疏林草坪相结合,并在其中设置供内部使用的小型休憩场地,营造静谧优雅的环境氛围。



08室内设计·方正明快
室内秉承着一体化的理念,将建筑、景观的设计延续到法院内部。偏冷色的主饰材基调明快又肃穆沉稳,设计元素的提取追求严谨方正,以强有力的多种线型组合和空间层次变化,体现法院的理性公正。




09结语
简和建筑近些年做了大量的政务类建筑的探索和实践,形成一套基于实用、效率,又体现此类建筑简洁、端庄的设计语言。设计团队在对秩序感、公正性、开放性方面的探索,设计语汇与语义的诠释,体现了设计为公众服务的初心。
技术图纸










项目信息
项目名称:江苏省常州市中级人民法院审判业务用房建设工程
业主公司:江苏省常州市中级人民法院
建筑规模:43778㎡
设计时间:2022年12月
方案设计:陈涛、朱祺翔、陈明、石峰、陈磊、王必成、吴宣仪
景观设计:马宾、孙振越、李娜
室内设计:唐诗捷、虞行阳

BIM建筑网





评论前必须登录!
注册