“有那么一刻,别的什么都不再重要。” ——露西·考德威尔
Wutopia Lab 在广东南海创造性基围水利工程,即桑基鱼塘生产方式的发端——桑园围上创造的西樵山下的“涟漪”——南海区淡水鱼产业技术示范推广中心于2023年4月落成开放。

△场地整体鸟瞰© 吴嗣铭

△场地整体鸟瞰© 吴嗣铭
第一朵涟漪
“涟漪”是西樵镇渔耕粤韵综合展馆群里的4号馆,也是第一个落成的建筑。它是1号馆“曾经沧海,云上桑田”的云上概念延伸。但我又不想重复我习惯的云主题。无法离开上海的我一遍遍看着吴刚发来的现场照片,突然,我注意了到水塘里喷水在水面形成的涟漪,有着白色的花边。那一刻,我为之着迷。我想在水塘边上的软土开出一朵涟漪。

△左手远处水塘可见涟漪© 吴嗣铭

△场地轴测图© Wutopia Lab

△总平面图© Wutopia Lab

△顶视图鸟瞰© 吴嗣铭
造价很紧。我就把4号馆的屋盖设计成涟漪,展厅还是便于展陈安排的规则的方形组合。曲线和直线的冲突,就需要突出屋盖而削弱展厅的立面。涟漪应该是控制立面包括第五立面的要素。同时我更希望她是飘浮起来的涟漪。

△东南侧鸟瞰© 吴嗣铭

△西南侧立面© 吴嗣铭

△曲线屋顶© 吴嗣铭
我既不想去模仿SANNA的极致精细轻巧,我也不想去表现结构。“金属般的云遮蔽在天空,它们的情绪里蕴含着巨大的重量”。2022年6月的我有感而发,想让涟漪看上去厚重,从而让悬浮变得有张力。我把屋盖设计成最高3.5米厚度,立面则2.4米高。这样在视觉上让屋盖压住立面而成为控制性表达。屋盖在立面上看是一层层的,有着不同高度。作为涟漪以中心的玻璃天窗同心分出轮廓线,共5圈,中心高度最厚3.5米递减到檐口为1.9米厚为止。所以从空中看屋盖,可以从涟漪联想到梯田甚至云朵从而点了未建成的1号馆云上桑田的主题。

△东侧立面© 吴嗣铭

△北侧立面© 吴嗣铭

△东侧立面© 吴嗣铭

△西侧立面© 吴嗣铭

△南侧立面© 吴嗣铭

△南侧立面© 吴嗣铭

△立面图© Wutopia Lab
涟漪看上去要厚重,不等于厚重。我否决了原来的笨重的很贵的施工很难的梯田式的混凝土屋盖设计。我把屋面板定在4米标高上,所有防水排水和保温都在这层解决。屋面板和室内天花之间只有结构和电路,保证展厅标高统一为满足展陈需求的3.2米。涟漪就是这层板上的造型。涟漪的表面采用50×50×50H×3氟碳喷涂钢格栅铺设形成一个白色的半透明表皮。和立面的厚重相比,我则试图在鸟瞰的角度在上人屋面创造轻的体验。每一层涟漪用白色铝板收边。到了檐口则用GRC拼接,以抗裂砂浆抹平缝,然后以水泥漆仿混凝土抹灰,来做到完成面无缝的效果,而突出涟漪的纯粹。

△北侧鸟瞰© 吴嗣铭

△轴测分析图© Wutopia Lab

△剖面图© Wutopia Lab

△展厅© 吴嗣铭

△东北侧立面© 吴嗣铭

△西北侧立面© 吴嗣铭

△西南侧立面© 吴嗣铭

△北侧立面© 吴嗣铭

△钢格栅屋面© 吴嗣铭
第一朵涟漪就是看上厚重但居然是悬浮的可以上人的涟漪,但你真的站在上面则有些紧张因为它又变成很轻的涟漪。这是建筑学的老把戏了,当年叫巴洛克。

△悬浮的“涟漪”© 吴嗣铭

△远处的影视城和大地艺术节装置© 吴嗣铭
小题大做
业主要求施工快捷简单还要造价低廉。结构工程师就用珠三角软土地区常用的成熟基础形式——预应力管桩来解决场地软土问题,这样可避免场地表土地基承载力不足带来的基础沉降过大而导致上部钢结构下沉和侧倾。建筑师希望最大出挑7.8m的涟漪要看上去厚重而轻盈。工程师把展馆地坪设计成钢筋双层双向拉通并成片浇筑的250m厚钢筋砼筏板,并通过埋入式柱脚来加强主体钢结构框架的结构整体性。这样涟漪就可以被优雅地举在空中。
涟漪要纯粹,就把雨水管藏在钢柱里。涟漪要纯粹,就在檐口利用0.7mm厚铝板压顶做闪接器,与屋顶构架连接成接闪网,既避雷也不需要难看的避雷带。涟漪要纯粹,屋盖底版就是天花板,这样就做地送风,底板下预留局部管沟,在地面筏板浇筑时预留出风口,保证了天花的完整。散热的风口则从机房穿过屋面。通过格栅的遮挡而消失不见。涟漪要纯粹,立面也要纯粹,那就就把天窗作为自然排烟窗,这样立面的玻璃得以连续展开。

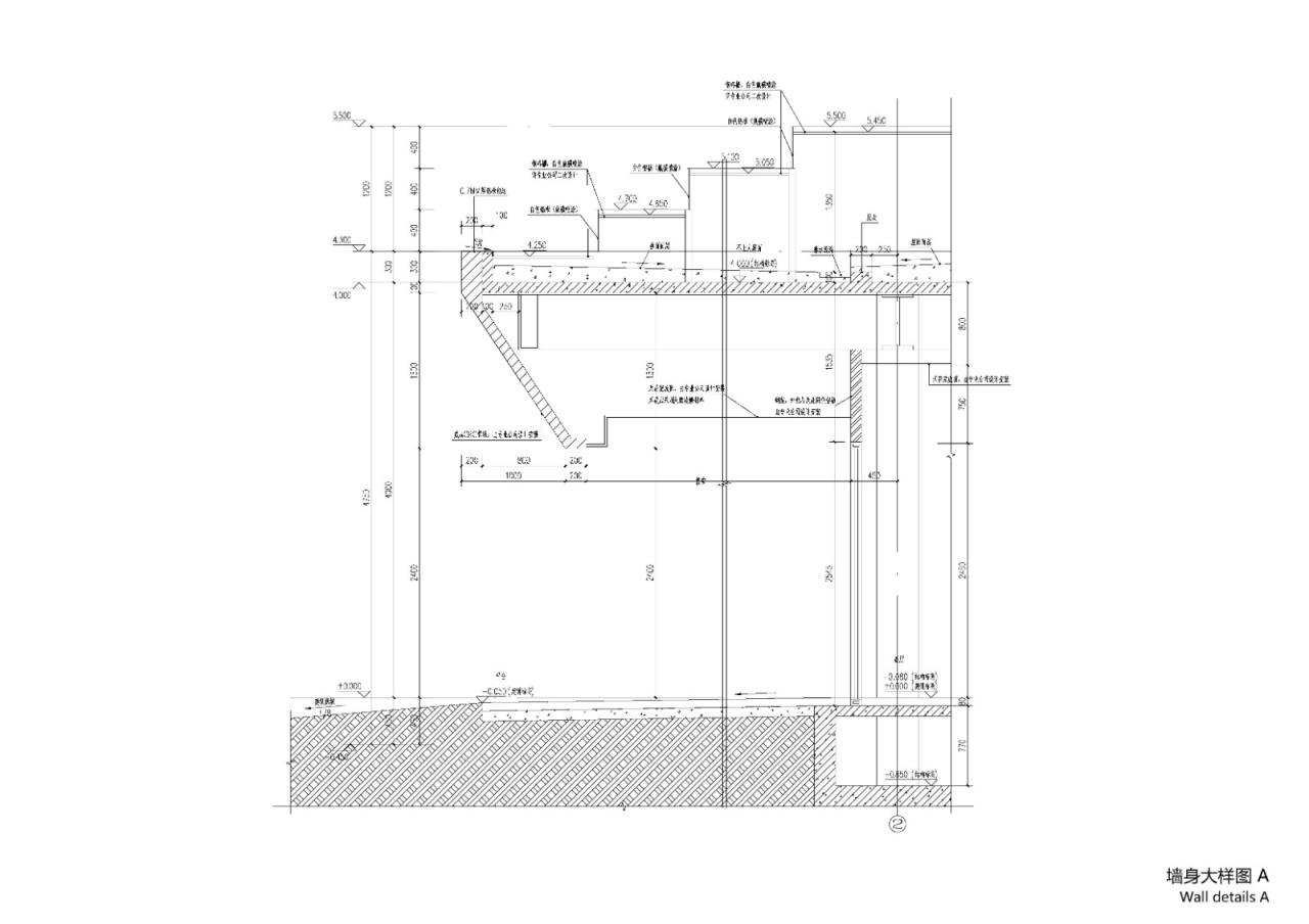
△墙身大样A© Wutopia Lab

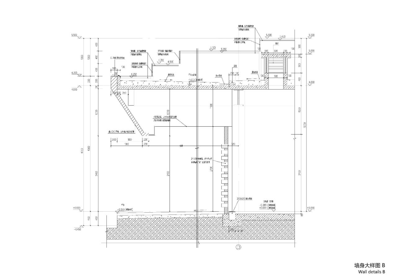
△墙身大样B© Wutopia Lab
666 m²的展厅就这样小题大做,造就西樵山下悬浮的涟漪。

△南侧鸟瞰© 吴嗣铭

△西侧鸟瞰© 吴嗣铭

△西北侧立面© 吴嗣铭

△曲线屋顶© 吴嗣铭

△曲线屋顶© 吴嗣铭

△曲线屋顶© 吴嗣铭

△花砖墙细节© 吴嗣铭
要轻松
大学同学吴刚来找我的时候,上海刚刚解除静态管理。有些不适应的我没有豪言壮语,也不想为赋新词强说愁。我的决定很快而且简简单单。建筑学流行的话语术都不重要。我以建筑为手段去创作一个大地艺术。白色、半透明、象征、隐喻、对偶、巴洛克,最后综合成一个戏剧性形象,里面有我的一些情绪,就够了。“所有艰难的训练和思考,最后都要表现出不可思议的轻松。”
“你无法想象那个地方有多美,阳光落在地上的方式都和这里不一样。”——科林·巴雷特

△天窗© 吴嗣铭

△悬浮的屋顶© 吴嗣铭

△东南侧立面© 吴嗣铭

△东北侧立面© 吴嗣铭

△东北侧立面夜景© 吴嗣铭

△夜景鸟瞰© 吴嗣铭

△一层平面图© Wutopia Lab
项目信息
设计公司: Wutopia Lab
主持建筑师:俞挺
项目建筑师:黄河
设计团队:谢佳林、林建明(实习)
业主单位:佛山市南海区西樵镇渔耕粤韵文化旅游发展有限公司
策划单位:佛山市南海区西樵山书院
施工图设计:广东卓智设计工程有限公司
施工单位:广东鑫桂建设工程有限公司
结构顾问:缪滨海
地点:佛山市南海区渔耕粤韵文化旅游园
总建筑面积:666 m²
屋顶投影面积:1263 m²
设计时间:2022年6月-2022年9月
建成时间:2023年4月
摄影:吴嗣铭
视频:吴嗣铭

BIM建筑网





评论前必须登录!
注册