距离杭州亚运会开幕已不足百日,富阳银湖体育中心已做好准备,以迎接亚运会的到来、赛后的可持续运营以及社会各界的评价。浙江大学建筑设计研究院的设计团队秉承“经济手段实现绿色亚运、低技手段建构文化亚运”的设计理念,在尊重专业的体育工艺要求的基础上,结合具有富阳特征的山水意向,通过简洁的形态、紧凑的空间布局、环保的建筑材料、低技的构造手段、可持续利用的场馆设施等方式,完成亚运射击、射箭、现代五项比赛场馆(场地)的设计,成功落实亚运会“绿色、智能、简洁、文明”的办会主旨。

△场地周边环境 ©赵强
本项目用地面积275182㎡,建筑面积82360.35㎡,是2023第19届亚运会12个新建场馆之一。届时将举行亚运会射击、射箭、现代五项三个大项的比赛。
感知山水
场地西、北环山,南侧临水,东侧连接城市,站在场地中央,又被群山怀抱,让人不禁想起富春江畔的远山近水,苏轼“远山长,云山乱,晓山青”的自然感悟,黄公望“兴之所至,不觉亹亹布置如许”的富春山居。黄公望把对哲学、文学的思考变成山石、汀沙跟云之间的互动,人生最重要的并不是仕途、财富,而是修身养性,是寄情山水、融于自然的那份悠闲与平静。

△富阳射击射箭现代五项馆与周边自然山水融合 ©赵强

△主体建筑综合馆鸟瞰图 ©赵强

△富春山居图尾段 ©黄公望(元)
因此,方案思考如何运用当代建构技术,打造一座多元、复合的运动竞技场馆,如何在满足赛事功能的前提下,回归场所本源,与山水融洽相处,进而感知它、诠释它,如何将杭州韵味、富阳特色传递给参赛的各国运动员、教练员。
现代演绎
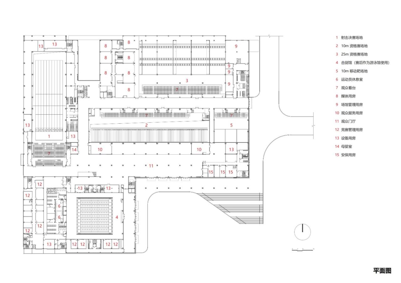
于场地,通过设置5个标高的台地来呼应山地的高差变化,充分考虑对山体自然环境的保护,减少山体开挖,内部平衡土方。通过二层平台高效连接三个比赛项目,合理组织人流;将射击比赛的10米资格赛、25米资格赛、50米资格赛、决赛馆垂直分布,将三个项目共用功能集中布置在新闻安保中心,集约、高效利用场地。

△功能分区图
于山水,射击综合馆平面方正、体量庞大,建筑造型采用多段坡屋面的衔接,顺应周边山体,消解建筑体量,使建筑与自然融为一体;立面设计,采用了参数化的手段、像素化的手法将富春山居图进行现代演绎,完成了一个从抽象到具象,由具象表达抽象的过程。

△综合馆通过多段坡屋面的衔接,消解掉综合馆巨大的体量 ©赵强

△富春山水幕墙 ©赵强

△参数化手段、像素化手法演绎富春山居图 ©赵强
于表皮,建筑放弃机械化、智能化、信息化等参数化的高技手法,采用模数化、低成本的标准构件,低技的将其实现。设计以300mm*520mm的百叶作为单元模块,通过37000多块单元模块不同角度的旋转,用低技、质朴的转轴方式,“以百叶为笔,以阳光为墨”,再次勾绘出富春江畔的自然之景。

△通过对37000多块单元格栅不同旋转角度的设计出富春江畔的自然之景 ©赵强

△百叶幕墙与远山相呼应
于建构,单元百叶的旋转角度通过百叶底部的齿轮进行控制,每个齿轮以5°为最小模数开模生产,将百叶的旋转角度限定在15°至85°之间,分15°、20°、25°、30°、35°、40°、45°、50°、55°、60°、65°、70°、75°、80°、85°,共15个角度,角度模数越小,单元数量越多,像素就会越高,山水的意向就会更加清晰。施工时只需按照图所示百叶角度,精确控制转轴角度即可安装到位。通过这15种简单的百叶旋转角度,在阳光的帮助下,达到表达复杂的图案效果。

△单元百叶构造
光法自然
所谓光法自然,源于“师法自然”一词,意为不只是效法自然,还要以自然光为师,效法光影变化,再运用光影变化,质朴而自然的重新诠释自然。

△百叶的光影变化讲述光的故事 ©赵强
随着光线变化而变幻的表皮讲述了一个光的故事,日出,烟雾散去之时,建筑立面逐渐展现,阴影逐渐减少;午时,阳光直射山顶,幕墙百叶对比强烈,远山近水清晰呈现;日落,远山、行舟、古树,富春山水的每一个神态,慢慢消失在建筑表皮之中;夜晚,在泛光的作用下,一幅亮丽的富春山水秀又将徐徐展开。时间永远是最宝贵的,日转影动,生机勃发,百叶的阴影一直在无声地记录这些时光流逝的痕迹。
建筑巧妙的利用自然光线,用日月光明,借四季交替,再现富春山水。

△随着光线变化而变换的表皮 ©吴清山
持续运营
绝大部分的竞技体育场馆往往投入大,使用频率并不高,尤其是类似银湖体育中心这样专业性强、受众面小、赛事等级高的体育场馆。本项目秉持绿色低碳、快速拆建、构件再利用的设计策略,在使用空间上、结构选型上、建筑设施上充分考虑场馆赛后多种场景的使用可能:新闻安保中心、辅助用房、马厩等大量采用了可循环利用的钢结构作为主体结构;观众看台采用钢结构临时看台,便于赛后拆除;比赛场地转化为市民参与度更高的游泳、篮球、羽毛球、乒乓球等大众体育项目,还馆于民,保持可持续运营。

△射箭、飞碟、现代五项比赛采用可拆卸临时座椅 ©赵强

△赛时现代五项击剑场地,赛后可作为25米游泳馆使用 ©赵强

△室外飞碟场地 ©赵强

△室外场地与自然环境 ©赵强
项目以山水意向为蓝本,以百叶为笔,以阳光为墨,重新在自然山水中阐述自然,取法自然、效法自然、表达自然、诠释自然。透过笔法、技法和构造手法,重绘“富春山居”的江南山水意象,更是一种文化的传递,将杭州文化韵味、富阳山水特色传递给世界。














项目图纸





项目信息
项目名称:富阳银湖体育中心—亚运射击射箭现代五项馆
项目类型:体育建筑
建筑设计:浙江大学建筑设计研究院ACRC
公司所在地:浙江,杭州
项目地址:浙江省杭州市富阳银湖新区九龙大道与龙溪南路交叉口西
建成状态:建成
设计时间:2018.7-2019.3
建设时间:2019.3-2021.6
用地面积:275182㎡
建筑面积:82360.35㎡
图片摄影: 赵强
视频摄影:吴清山
设计总负责:胡慧峰
工程负责人:章晨帆 黎冰
建筑:章晨帆 方华 吕宁 黄迪奇 朱金运 张子权
结构:张正雨 江帆
给排水:欧阳辉 王铁风
暖通:曹志刚 朱晟炜 李心童
电气:袁松林 冯世震 邹帆 郑凯
智能化:林华 叶敏捷 袁骁男
照明:王小冬 王俊杰 刘一晗 冯百乐 吴旭辉
装饰:叶坚 黄江慧 林云辉
装饰电气:肖舒峥 俞子铖
幕墙:杭飞 钭莉莎 骆闻馨 袁增嵘
园林:冯斌 乌姬娜 沈海涛 张倍倍 徐晖 王崛 朱群建
市政:陈浩 吴玲玲 凌嘉媛 周华 朱敏 王雪燕 孙哲
岩土:陈赟 杨勤锋 辛蕾 顾家诚
委托方:杭州富阳银湖新区建设有限公司
施工方:上海宝冶集团有限公司
屋面:铝镁锰金属屋面
立面:铝合金单元百叶幕墙
室内立面:木丝吸音板

BIM建筑网





评论前必须登录!
注册