
中华福音神学研究学院位为一所培养学员研究并实践圣经的神学教育学院,依使用需求规划文教大楼、礼堂大楼、师生宿舍等四栋建筑物;半开放式的风雨走廊互相串联轴线上各栋建物,与校园环场步道连通,建构完整便捷之研究及生活环境。


紧邻校园入口广场之礼堂大楼之教堂为校园核心,也是最具代表性之建筑物。教堂外观设计隐涵「三一真神」意象,随日照产生光影变化的十字架钟塔,静谧漫出宁静及庄严感。



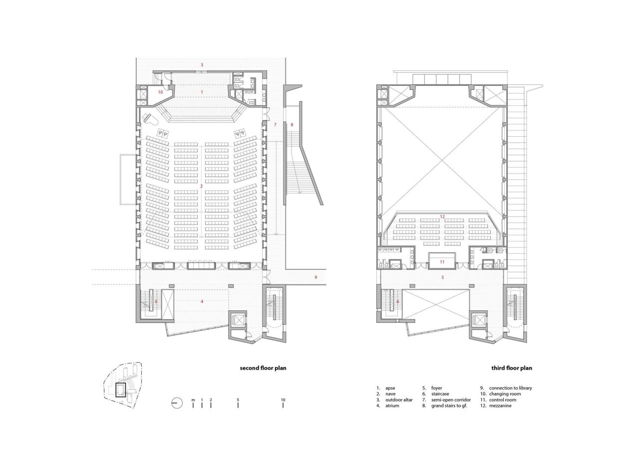
教堂内部系由前厅、大堂、讲台三个序列空间组合而成。首先步入教堂前厅,为礼拜前后之主要缓冲空间;其后是挑空9.6米大堂,上下两层可容纳 600个席并可弹性再增200席,是被赋予稳定且宁静的礼拜场所;讲台区则强化了整个教堂的灵性和象征意义。



大堂为一24m x 20m 钢构之无柱空间,受哥德式教堂启发,两侧钢柱以拱状形成一个连续延伸向上之拱顶来定义空间,拱顶斜向交错之钢梁,形成一个大跨度的网状梁系统,重新诠释哥德式建筑中的肋状拱顶,塑造学院特有之礼拜空间。两侧以云杉木条镶崁而成之扩散墙面,满足礼拜堂声学所需,亦兼具空调系统功能。



与大堂空间相比,讲台呈现相对简朴,却满满传达圣洁之地及神圣居所之意涵。讲台主墙覆盖暖色天然岗石,晨光自墙面中央镂空的十字架穿透坚硬的岩石映入眼帘,真实体现圣经中「神是坚固盘石、是我的避难所、是世界的光…」。



上部天窗设计,全天候漫射光线照亮讲台,与大堂间形成明暗对比,主墙明亮的十字架投射于空间深处,教堂内氛围更显宁静安祥,尽领与神同在的真实平安。












项目图纸

△总平面图

△二层、三层平面图

△天花板平面图

△剖面图

△剖透视

△分析图

△细部结构大样图

△结构分析图
项目信息
建筑师: JJP Architects & Planners
面积: 2983 m²
项目年份: 2019
摄影师:Shawn Liu, W.S. Hsieh
主持建筑师: 潘冀
设计团队: 叶胜钿、马法耶、欧阳钧、吴姿桦、郑泑如、林育廷、黄诗芳、杨家琳
业主: 财团法人基督教华神学校
结构顾问: 祥谷工程顾问股份有限公司
机电顾问: 吴建兴电机空调技师事务所
音响顾问: 台湾科技大学建筑系
地点:中国 香港

BIM建筑网





评论前必须登录!
注册