在城市里,许多建筑被忽略了它们的所在或美感。这些建筑大部分是基础设施和功能性主导的设计,从天桥到公交车站,它们塑造了一个城市的印象与记忆,也丰富了我们的日常生活。

由于大部分建设经费有限,我们难以看见这些日常建筑有创新的想法。当接下这个项目时,我们脑海中浮现:能做出一个如何的加油站?业主希望我们创造一个新时代的作品,同时能响应当地文化与历史。工作室的挑战在兼顾功能的同时,能否尝试新的建筑类型?如何营造加油站的空间体验?


项目基地位于中国福建省的平潭岛,为中国第四大自然海岛。平潭四周环海,气候潮湿与常受台风影响。项目位于金井湾大道与鸡公山路交界位置,基地面积为3017平方米,建筑总面积713平方米。加油站在空间组织上有非常严苛的规范:例如车的出入路径,油罐储存或建筑高度等。



在设计开始前,我们研究了许多加油站的案例,当今大部分设计都是巨大的平屋顶加上配套功能的盒子建筑。在现代主义时期里,许多加油站运用了混凝土设计,做成薄膜或伞型结构,这些前卫的设计反映了当时野心的设计思想。为何现在都是千遍一律,每个设计看起来都类似而不响应当地文化?


基于加油站的需求,可以理解设计任务为一个大屋顶加一个附属建筑(超市,员工办公室和卫生间等)。我们提案中的连续曲线屋顶设计灵感来自福建传统村落建筑的启发,营造不同高度的空间层次,同时能一体化加油站的功能,不再是分离式的建筑布局。屋顶为带天窗的长跨度钢结构,如美术馆的空间,随着一天的变化有不同的光影效果。超市的外墙运用了当地红砖,灵感也是来自于福建的村落。加油站的屋顶装备了雨水回收系统与太阳能板,曲线形状整合了这些复杂的系统。



我们相信功能性的建筑不一定保守或标准化的设计,期待这个加油站给每一位路上的客人,享受不一样的空间体验。




项目图纸

△总平面图



△立面图

△剖面图

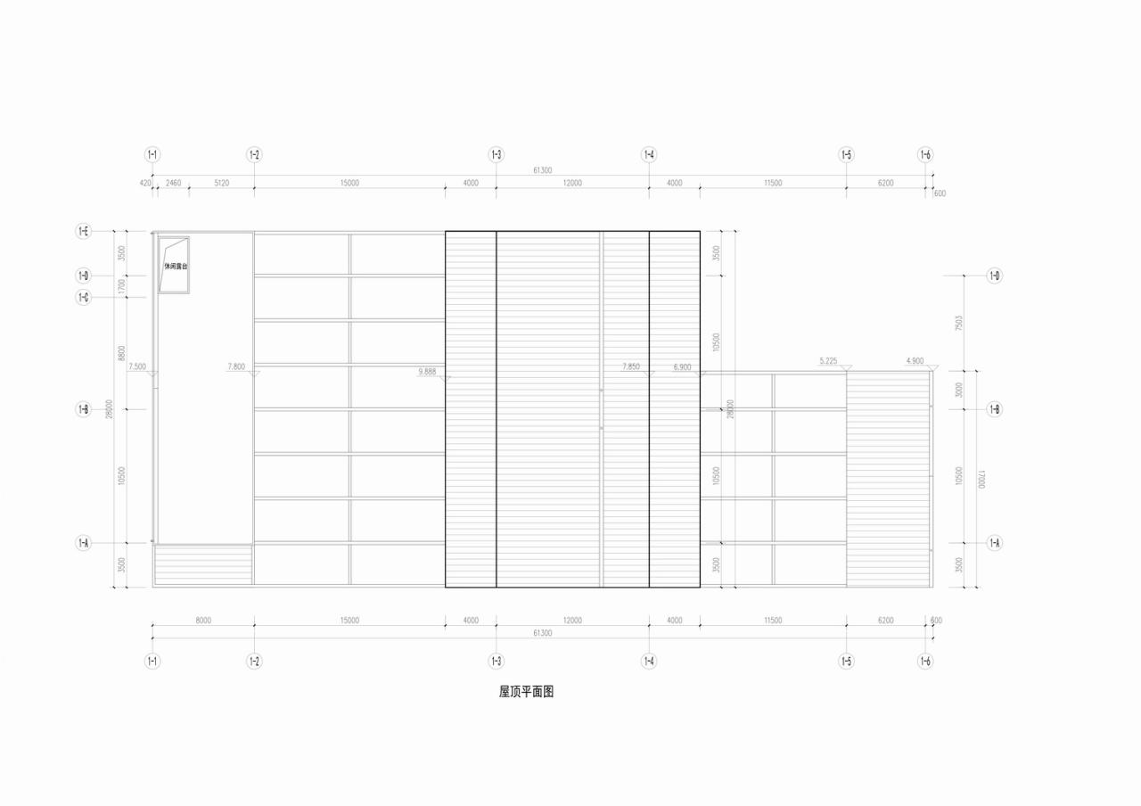
△钢结构平面图



△流线分析图
项目信息
项目名称:平潭利群友联加油站
项目业主:平潭利群友联加油站有限公司
项目地点:中国福建省平潭岛
基地面积:3017平方米
建筑面积:713平方米
建筑层数:加油站1层,副楼2层
设计单位:间外建筑工作室
主持建筑师:冯国安,王素玉
合作设计院:湖南化工设计院有限公司
设计时间:2019年9月-2020年8月
施工时间:2020年8月-2022年9月
项目摄影:白羽

BIM建筑网





评论前必须登录!
注册