
背景百年大计,教育为本。深圳对标先行示范要求,全力推动基础教育高质量发展,在“办人民满意的教育”中,努力实现“幼有善育、学有优教”,打造民生幸福标杆。为此,深圳对多所中小学开展新改扩建工程,深圳中学初中部就是其中的一所。深圳中学作为深圳教育一张闪亮的名片,肩负着对标世界一流中学的重任。深圳中学初中部拆除扩建工程旨在扩大办学规模,优化教学环境,为师生提供一所特色鲜明、开放创新、生态友好的活力校园!

挑战项目用地紧张,容积率高,场地内有4米高差,地形复杂。原有保留建筑位于场地中心,对校园规划有较大影响,并且仅运动场就需要占据一半场地,致使建筑缺乏公共活动空间。同时,场地西侧贝丽南路道路等级较低,上下学时间段交通量大,家长接送会增加交通压力。


营造针对上述问题,深圳中学初中部采用“多首层串联互动+功能复合叠加+知识阶梯”三大设计理念,创造性地解决用地紧张的问题和丰富空间的诉求。
多首层串联互动项目利用现状高差,重塑校园内地形和空间,最大化拓展多首层公共空间,营造层次丰富的校园微环境。架空空间为师生提供了更多半室外交流互动场所;连廊构建了运动区、新建综合楼、保留综合楼、新建教学楼之间便捷的交通系统。学校负一层设置的家长接送区解决了上下学时间接送对城市交通干扰的问题。


功能复合叠加项目将主要教学功能布置于场地南侧,教学功能与教学辅助功能竖向叠加,解决项目用地紧张的问题;教学楼与综合楼在总图上相对独立,同时通过架空层以及架空平台相互联系;图书馆、景观平台和连廊作为连接体系,串联各功能体块。
知识阶梯图书馆层层退台形成的“知识阶梯”作为共享中庭是整个校园的活力聚集地。“知识阶梯”不仅拓展了各楼层学生课间可达的室外活动区域,丰富了课外活动和非正式学习的场所,同时也解决了高容积率导致的活动区域紧张的问题。点缀在“知识阶梯”周围的“悬浮盒子”进一步提供了交往和休憩空间,在丰富中庭趣味的同时,也和“知识阶梯”形成了巧妙的视线互动,交流在“看”与“被看”之间悄然发生。



传承深圳中学初中部新校园与高中部新校区建筑风格一脉相承,立面延续经典三段式构图,以现代设计手法,融入深圳中学标志性的校徽图案,打造极具特色的建筑形象。


落成2022年9月,深圳中学初中部的学子迎来了“返校日”,历时两年建设,焕然一新的初中部新校园终于投入使用,让我们一起来看看大家的评价吧。







项目图纸

△logo分析图

△基地示意图

△总平面图

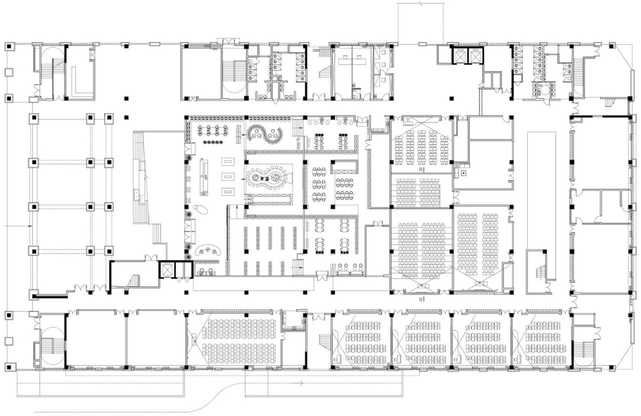
△一层平面图

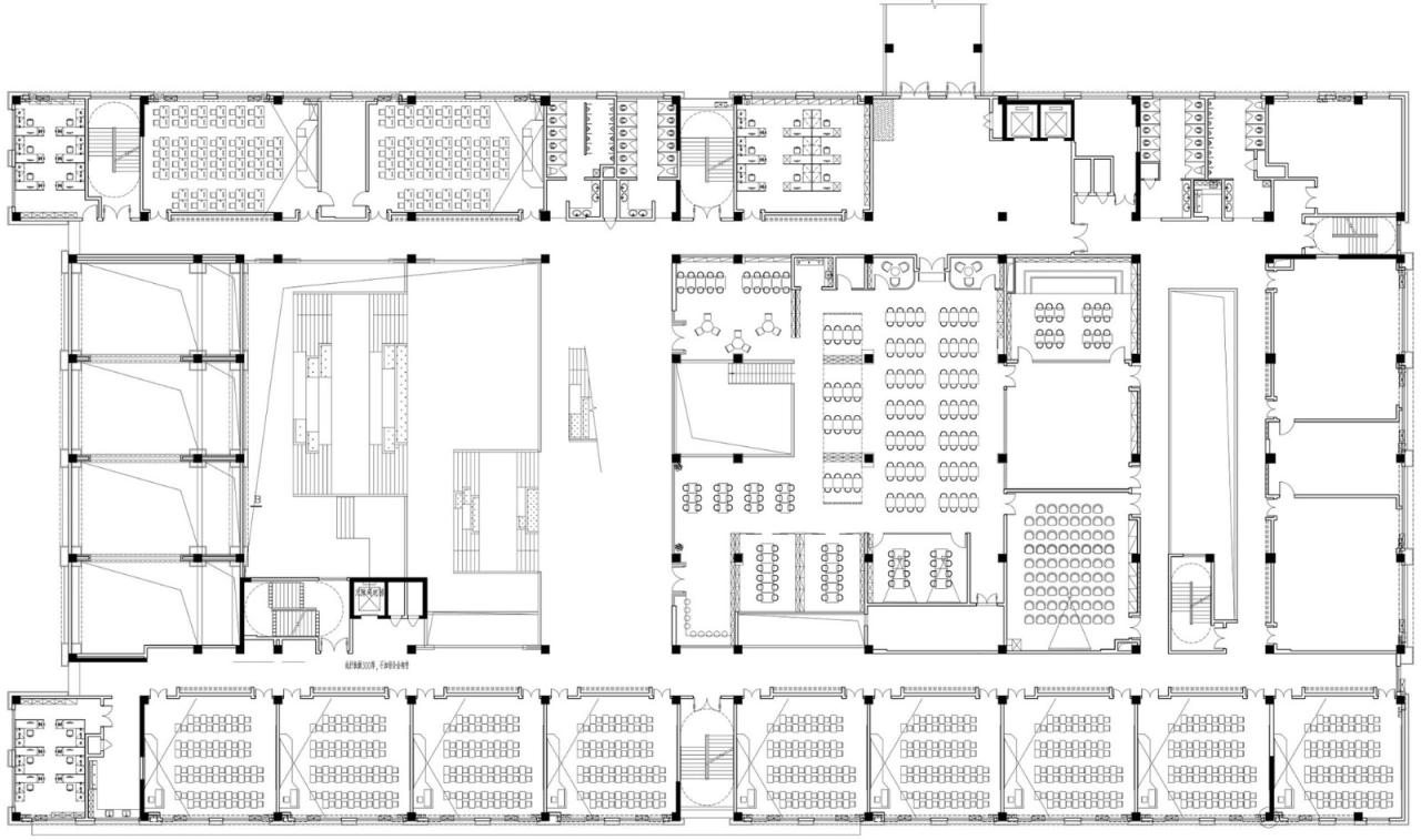
△三层平面图

△剖面图
项目信息
建筑师:华艺设计
面积:63000m²
项目年份:2022
摄影师:战长恒
厂家: Hunan Valin Xiangtan Iron and Steel Co.Ltd,Lopo Art Ceramics Co., Ltd,Xinyi Glass Holdings Limited
设计团队:陆强、 鲁艺、衷悦、宋丽娟、郑潇、毕悦媛、时华磊、雷音、张宝文、陈东源、黄鹤鸣、于丽霞、孙安、魏子恒、姜正聚、解准、曾锐、张燕龙、崔路明、彭旭敏、庄燕珊、陈世奇、汪洋、陈少林、衣欣、薛建明、张自胜、曹焕、周颖、吴长燕、高龙、杜昕芮、黄超宇、黄植有、赵广镇、李良财、石雅群、梁永超
施工方:中国建筑第四工程局有限公司
委托方:深圳市建筑工务署教育工程管理中心
地点:深圳

BIM建筑网





评论前必须登录!
注册