
“拆除是一项简单且短期的决定,”安妮·拉卡顿 (Anne Lacaton) 说。“这是对很多东西的浪费— 能源的浪费、材料的浪费和历史的浪费。”建筑的生命感在于时间上的停留,它与使用场景发生紧密联系。但同样建筑也有自己的生命周期,无论是建筑自身机能的衰退,还是社会对其功能需求的改变,或是地方政策对其提出全新要求,这些都成为旧建筑迎来焕然一新的契机。


△改造前

改造:建筑与空间功能的改变「溧」城市书房 位于溧阳市天目湖度假景区,它作为政府公益型项目,实现城市共享文化空间的便利性,提供给市民及游客 24 小时免费阅读书籍的公共空间。该建筑改造前为办公场所,政府对它提出新的社会功能,以适应公共生活需求的同时,体现对公众的人文关怀。在改造过程中,大犬建筑设计 Greater Dog Architects 深度研究既有建筑,植根于建筑的过去,并对新的功能做出回应。对于场地环境,建造方式以及建筑原有框架结构的尊重,建筑师最大程度遵循可持续的原则,利用现有空间,在有限的创新框架中,营造一个文化与记忆的空间容器,一个共享阅读与公共交流的场所。


复用:建筑框架的保留与再利用该建筑主体为地上三层,地下一层框架结构建筑,内退的的半户外入口与被刻意拉长的环形动线,将建筑与马路的喧嚣进行适当的分离。同时建筑师将外墙拆除,裸露其旧有梁柱框架,对原楼板进行切割,并在建筑主立面上新增内退环形结构梁,以此带来新的建筑结构和室内楼板的变化,也进一步的凸显其旧有框架结构体系的现代性语言。通过新旧结构语言上的对话,为建筑外观呈现出恰到好处的平衡。



可持续:借用自然光线引入建筑大犬建筑 Greater Dog Architects 设计团队也对立面的开窗形式进行了新的梳理,无边框内弧形玻璃幕墙对话厚重的框架结构,凸显清晰的建筑轮廓。围绕弧形幕墙增加了更多看向户外的观看角度,与外界自然实现连接:内弧落地玻璃的通透性与窗外天目湖的景色,形成照映成趣的景象,构建了湖水与建筑的对话。建筑立面上的外翻弧造型延续了内弧梁的形态语言,建立新的外立面组合形式的同时,为室内创造了多样的阅读场景。在此造型基础上,开窗系统由开阔变得更为私密化,外翻弧造型顶端细长的天窗,创造开窗与自然连接的另一种方式:抬头望向天空,感受光与云朵缓慢流动的诗意;



通过对整栋建筑交通动线的重新组织,运用圆柱形空间的螺旋楼梯,串联各楼层的主要空间。 环形天窗引入自然采光的同时,进一步增加楼梯间的内外连接属性。在建筑改造策略上最大程度使用自然采光,使得原本封闭的“盒子”与外部环境产生多重的衔接方式,实现建筑与环境的可持续。圆柱的轮廓清晰的显露在外立面,穿插在原有的梁柱框架体系中。灰色木瓦片是由回收的木头重新染色并压制而成的,它增加了建筑的自然肌理,并带给建筑新的记忆与温度。暴露的梁柱结构由红棕色的外墙漆包裹,红棕色与玻璃反射出来的同种颜色,模糊了内部的轮廓,由此愈加凸显了木瓦片的自然肌理。



更新:新的机能延长建筑使用简洁的室内突出书籍的陈列与排放,通过对坡屋顶的形态语言塑造,建构诗意的沉寂阅读空间。同时,坡屋顶结构的介入用以打破原建筑楼板的封闭性,尽可能的打开上下楼层的空间关系,并融入多重功能:借用坡屋顶形态整合一层咖啡前台功能与一二层书籍陈列需求。同时,在书架设计中延续该造型,将其尺度缩小并悬挑在书架上方,用以陈列照明灯的暗藏。阶梯一角形成聚合式的阅读区域,陶土釉面砖的手工质感,与粗糙质地的红棕色地砖,与建筑外墙构建了和谐的材料语境。




除了建筑外观,交通动线,室内功能重新划分之外,对建筑也进行了机能上的更新,同时再利用过程中,所遇到的技术挑战得到实质性的解决:设计团队对建筑的承重能力上做出最大限度的调整,以实现空间内部新的荷载;并且对这座 90 年代初的建筑进行全面的暖通系统改造, 重新设计了消防逃生,灯光应用系统等;对原建筑不满足抗震能力及构造措施要求的原始结构,进行测算与重新加固处理,使建筑再次进入一个新的生命周期。对于天目湖景区而言,改造的建筑虽是采用异质介入的方式,但是建筑师始终坚持“恰如其分”的分寸感,让旧有框架与新体块之间形成合理的尺度。改建后的「溧」城市书房以全新的肌理融入城市与周围环境,并在公共文化需求上带来更多的活力。



在中国城市发展从增量扩张转向存量提升的背景下,对既存建筑的再利用,实现它的可持续性。以及在克服原建筑缺陷的同时,对它们进行合理的“治疗”,以此延长建筑的使用寿命。这样对待建筑的方式基于现状认知,植根于过去,也同时对当下做出回应。它的重新使用不仅成为景区新的公共建筑地标,也为建筑带来更多的记忆,同时体现了建筑作为长久性存在的重要性。














项目图纸

△模型图

△模型图

△模型图

△模型图

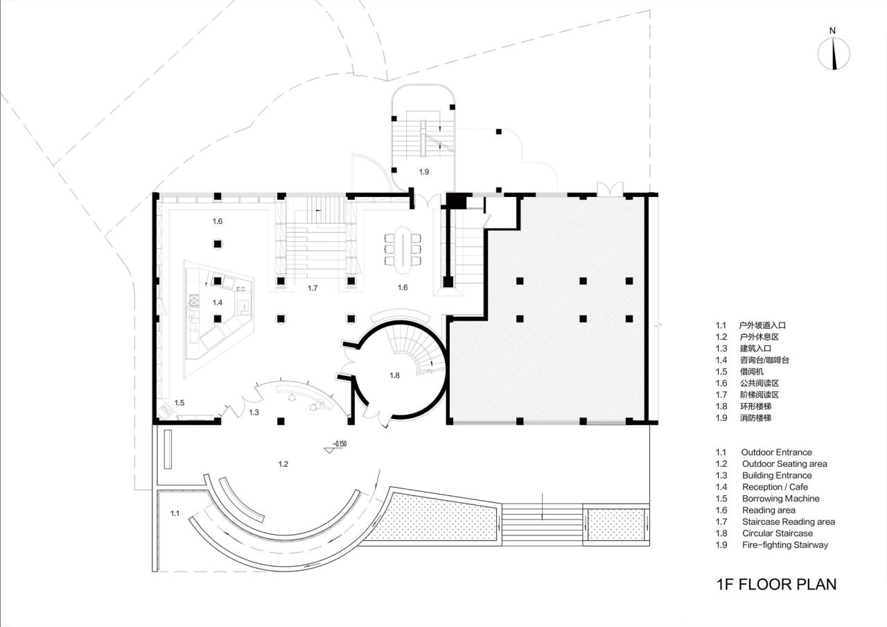
△一层平面图

△二层平面图

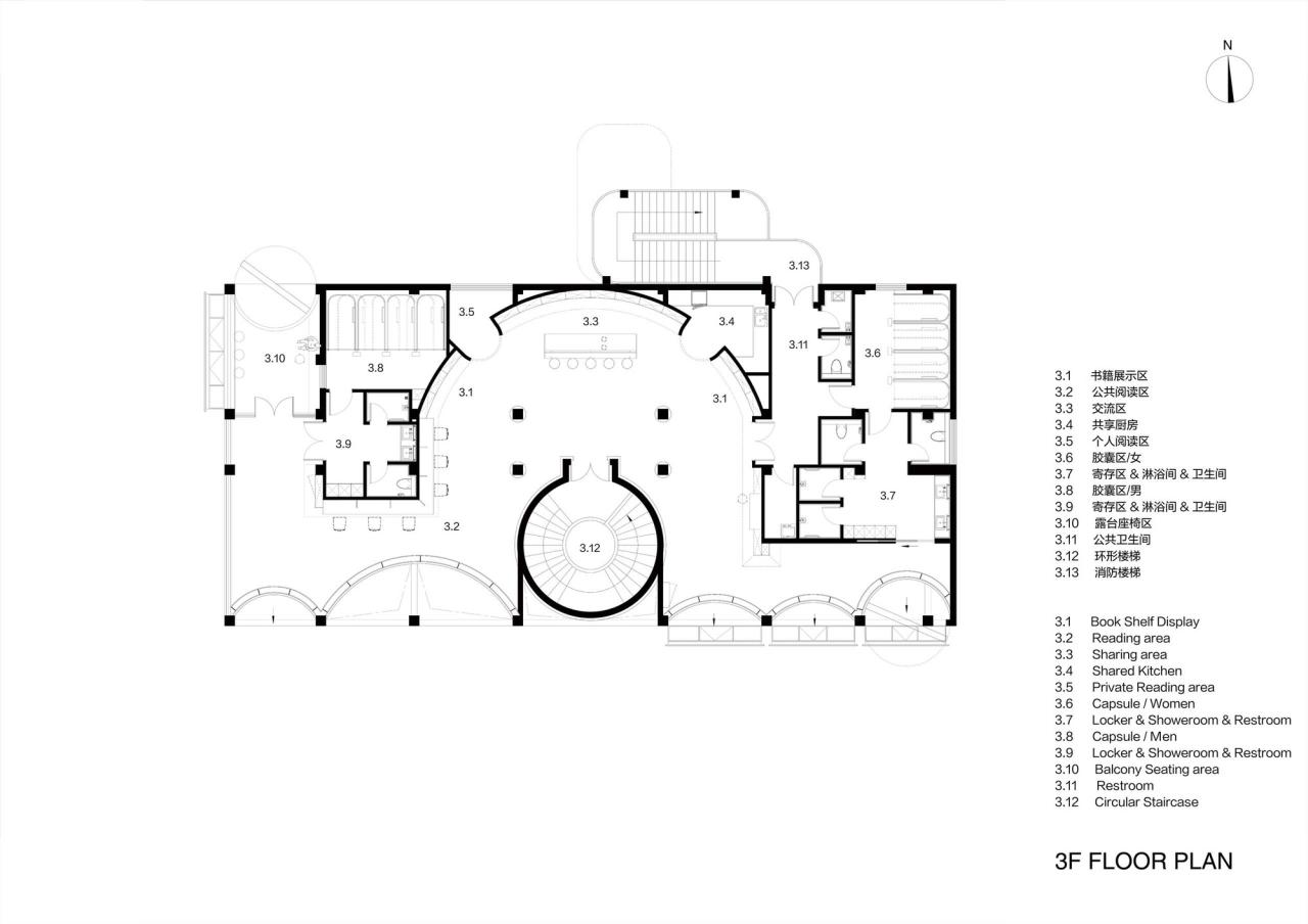
△三层平面图

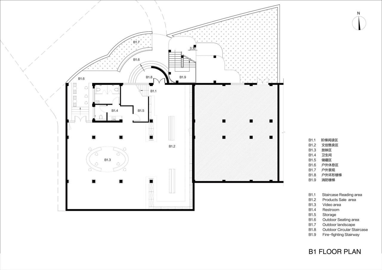
△地下一层平面图

△剖面图

△剖面图

△剖面图
项目信息
建筑师:大犬建筑设计
面积:2387 m²
项目年份:2023
摄影师:Metaviz Studio
厂家: 昇民建筑装饰, 浙江优品智能科技, 缪唯娅陶瓷
主持建筑师:辛晋,胡志红
设计团队:何曼妍,郭林昂,龚龙林,沈修文,吴秋晨,唐瑗荫,王少清
结构设计:上海颐景建筑设计有限公司
合作方:上海都市建筑设计有限公司
委托方:江苏天目湖控股集团有限公司
地点:溧阳市

BIM建筑网





评论前必须登录!
注册