
1. 核心概念
传承了深厚客家传统文化的深圳市坪地社区拥有深厚的制造业历史与传统。它正由纯粹的“工业街区”逐步转变为“工业与居住混合街区”。这既是功能转变,也是空间形态迭代。未来的坪地势必面对更多元化的人口与复合的经济所带来的对城市公共活动的需求。
基地所在的城市街区正经历的这样剧烈变化,不禁令人回忆起过去四十年间中国(尤其是深圳)的造城史。这段叙事之中的城市往往始于基础市政设施的铺设,并伴以一座彰显开发者雄心的公共建筑在空荡荡的场地上拔地而起。这一策略旨在为稚嫩的新城提供必要的物理条件与服务,并能为迁入的居民建立信心。


然而除了作为一座满足功能的容器,或者一个引人注目的“丰碑“,公共建筑还能具备何种意义?对于一座正在成长中的城市社区,公共建筑是否可以成为城市空间肌理的模板和原型?它能否在城市尚未成形之时,就组织起丰富多彩的城市街道生活?作为该片区第一座重要的公共设施,坪地街道综合文体中心将是一次对以上问题的大胆探索。

△概念生成分析
2. 城市设计
重要的城市公共空间,意味着一种“秩序”的建立。它不仅仅是物理性空间(包括聚会地点、抵达聚会地点的途径、等等),也是精神性空间(聚会的形式和内容、以及因而产生的认同感和仪式感)。所有的建筑物和景观都是这种秩序的构建元素——甚至,公共建筑的内部也应该是“秩序”的延展。对于社区来说,“街道空间”是“秩序”的物理实体。通过“街道空间”,社区居民才能汇聚在一起,迸发千变万化的日常火花;并最终凝聚为对社区、乃至对城市的认同、记忆、与情感。而目前基地所在的城市片区有“街道”,却并没有“街道空间”:宽阔的机动车干道与绿化带孤立了街区内的步行活动,并将社区割裂。这座新城,迫切地需要建立起一个“街道生活系统”,而综合文体中心项目正是一个难能可贵的机遇,其本身多元的功能,与可观的规模都允许我们设想一个城市出发的起点:一个属于深圳的城市空间模型、与公共生活场景。一个社区的源点。


△整体建筑策略 能量街区
在紧凑的用地上,项目被切割为三个体量,对应三个功能组团: “体育中心”,“艺术中心”,“文化中心”。它们在平面上围合出尺度各异的街道、广场、和公园;垂直方向上,主体功能悬浮于地面之上,将街道还给城市。这个从负一层延伸至二层的“能量街区”包含多个向社区居民开放的体育训练场馆、演出场馆、社区活动室、与商业店铺等。它是一个自由的、鼓励市民探索的尺度变化丰富的城市空间。高密度的建筑群落与立体城市街区创造出引人入胜的“都市情境”:广场、水体、树阵、剧场、运动… …受华南传统城市空间启发,建筑体量之间形成的狭窄巷道能够避开灼热的阳光,并引入凉爽的微风。错动的平面则提供不惧风雨的“全天候”活动场地,使建筑能在闭馆时继续服务市民。城市开放空间与建筑的边界被模糊,催生一座切合深圳气候、激发想象的“原型街区”。



3. 建筑设计
建筑语言
建筑立面材料呼应项目所在地区两个传统视觉元素:陶土立面挂板和百叶,暗合传统客家围屋的夯土墙体;铝板与钢构件演绎的金属协奏,换起制造业建筑的视觉记忆。丰富多变的城市开放空间由理性简洁的建筑体围合而出——就像活泼的传统岭南城市空间,均由类型简单的房屋与院落编织成一样。尺度各异、静态分明的一系列城市公共场景散布于建筑体量之间,南北走向街道能够捕捉深圳夏日的东南风。并以变化的尺度形成“冷巷”,改善整个场地的微气候
功能的庞杂、以及它们各异的运行与使用模式,使得文体中心不可避免地成为一个复杂的建筑。但这个精巧的系统,却是由最简单的形体与空间组织而成的。我们避免制造“异形”、希望它能够更加平实地介入到市民的日常生活中。我们希望文体中心是一个具备”必要设计“的“必要城市元素”。


△流线分析
建筑单元一:体育中心
供散打竞技的比赛馆体积巨大,与有限的用地存在矛盾。因此,一改场馆水平延展的做法,方案将功能垂直叠放,满足使用同时,将宝贵的街道留给城市。我们希望比赛馆的结构简洁而内敛,避免当代体育设施常见的夸张形式。从而更好的让体育馆与整个综合体内其他的建筑在形式上产生共鸣。西班牙建筑师Alejandro de la Sota的Maravillas体育馆为我们提供了一个学习的范本:设计一个简洁精巧的结构,并用它解决了体育馆一系列复杂的使用问题(包括大跨空间、功能性房间与可上人屋面)。比赛馆是一座充盈着阳光的多用途竞技空间。观众席上部的重型提升窗完全打开后能将新鲜空气引入,下降的冷空气将上升的热空气带离室内,保持场馆的体表舒适度。这是一座日常无需人工照明和空调低能耗体育场馆
我们充分的利用场地的地下一层,来容纳大型的训练场馆、及配套的商业设施。通过一系列的下沉院落,自然光和新鲜空气被带入进来,改善湿度和温度。一些公共功能具备在未来改变使用模式的可能(例如部分篮球场转变为活动空间)。

△体育中心功能分析©也似建筑

△体育中心结构策略©也似建筑


建筑单元二:艺术中心
以五百座剧场为主体的艺术中心位于体育中心与文化中心之间,既可独立运营,也可与其他单元进行整合。剧场是一个不能被完全窥见的戏剧魔盒。它的封闭性为其带来专业的表演艺术所需要的声学及光学条件。它采用可收折的看台系统,可在必要时变为多功能的黑盒子艺术空间。它的前厅俯瞰街区、可进行小型映前活动。艺术中心上部与文化中心联通,共同组成可供市民与艺术家进行艺术创作、研究和展览的公共作坊。



△艺术中心功能分析©也似建筑
建筑单元三:文化中心
五十五米高的文化中心是基地内最高的建筑,垂直叠加了“图书馆”与“文化馆”两大类功能。它简洁形象能够在繁忙的城市中获得极高的辨识度
位于场地最东端的文化中心在街道上制造出两个城市广场成为十字路口最受瞩目的公共活动磁石。建筑的东立面采用陶土遮阳的双层幕墙系统,为阅读与学习提供充分自然采光,西立面则是尺寸节制的带状窗,有效减少西晒。屋顶的“云端画廊”是一个天光艺术空间,将成为街区内标志性的文化沙龙场所。



△文化中心功能分析©也似建筑
后记
在三年的疫情过后,回顾这个疫情刚开始时对城市公共空间的提案,有了一些别样的感受和体验。当初作为城市空间形式的探索,似乎对疫情中种种“是否人们还需要城市公共空间”的争论产生了共鸣。我们的城市已经习惯了各种被完美“空调”的室内公共场所,他们无视气候地为人们提供无止尽的狂欢。但大型卫生事件来到时,这些封闭空间似乎突然变成了最危险的地方,进而被空置与质疑。也许只有在这样的情势下,无边界的城市开放空间的价值也许才能被重新思考与讨论吧。

项目图纸

△总平面图

△负一层平面图

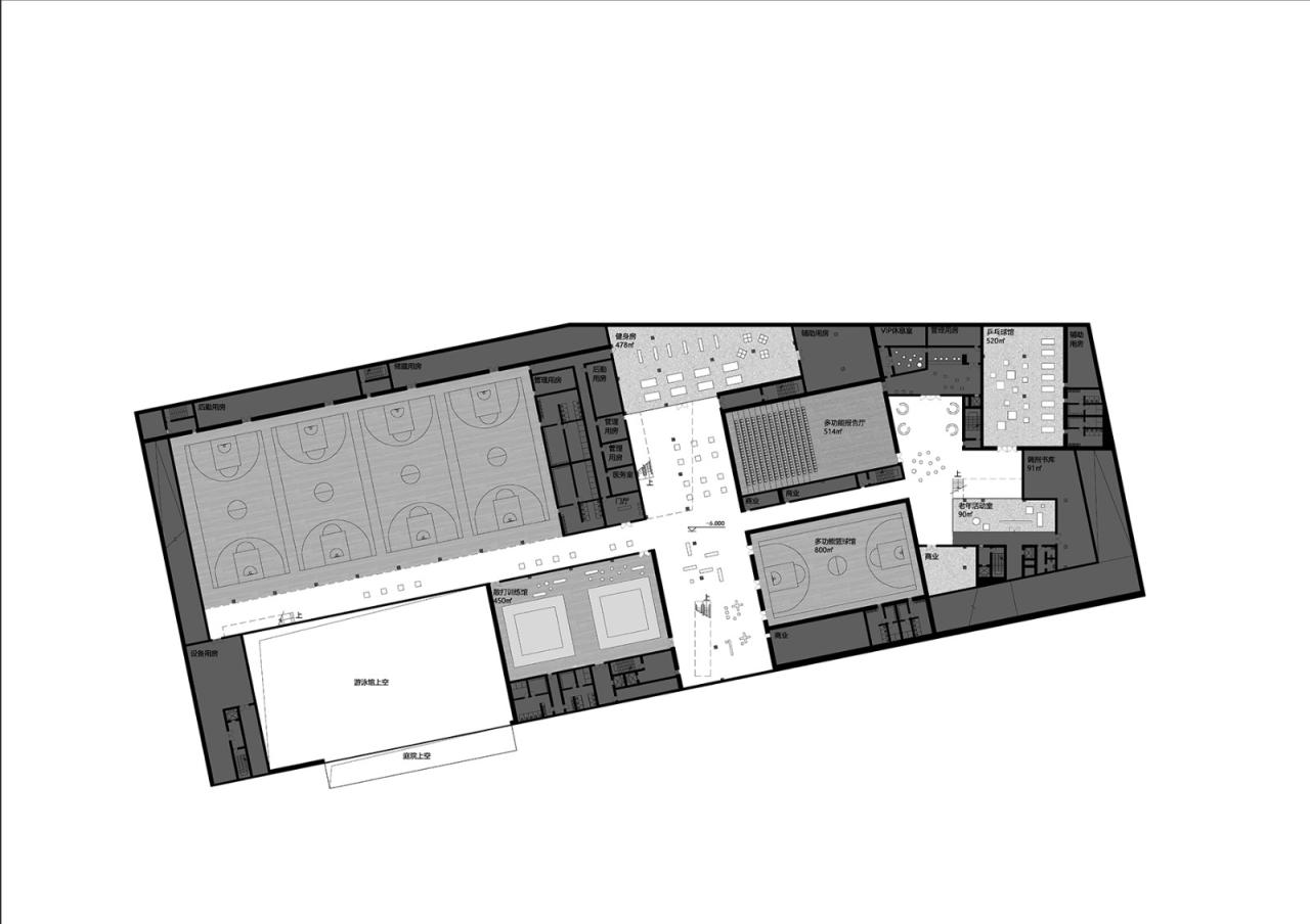
△首层平面图

△2层平面图

△3层平面图

△4层平面图

△5层平面图

△北立面图

△西立面图

△南立面图

△东立面图

△长剖面图

△体育中心剖面图

△艺术中心剖面图

△文化中心剖面图
项目信息
位置:深圳,龙岗区
时间:2021年
状态:入围最终中标候选阶段
类型:文化体育类综合设施
功能:散打体育馆/ 市民运动中心/ 剧场/ 文化馆/ 图书馆/ 商业
总建筑面积:71140㎡
容积率:4.1
建筑高度:58.5 (文化中心)
团队:也似建筑+广州市城市规划勘测设计研究院(GZPI)
也似建筑团队:
主持建筑师: 罗韧 赵耀
设计团队:王盈力,王楠

BIM建筑网





评论前必须登录!
注册