
起源下拉堡村隶属云南省保山市隆阳区瓦马乡,当地政府希望盖一栋集合住宅来改善和解决本村孤寡老年人的住房需求,并将多余空闲的房间以低价出租的方式租赁给上学路途较远的留守儿童家庭进而方便其上下学,其租赁费用于集合住宅的日常维护及开销。当地政府要求必须以低成本建造且满足22个居住房间的功能。下拉堡村于2018年响应国家易地扶贫搬迁政策,把分散的老百姓集中在此规划并建设了新村落,新村落的格局已从随机生长状态变为刻意规划的扇形带状布局,新村落的建筑也从传统土基房变为现代的框架商住楼,“标准”的现代新农村风貌。集合住宅的选址位于新村落东侧角落,面对新农村清一色白墙黛瓦的包围,我们打算就地取材并延续当地传统建筑风貌设计一栋“土”房子来保留村民们的集体记忆。此外,我们也邀请到一专一村团队作为设计合作机构共同参与该项目。

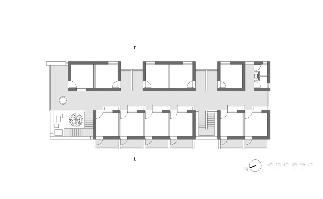
场地建设用地近长方形,可建设范围仅有280平米,面宽10米,进深28米。为了满足22间房,效率最高的方式就是内走廊布局;如果建筑只做一层,单间房的轴线面宽2.3米,功能上使用空间受限;设计成三层的话不但超出投入,而且对土墙承重也有一定挑战;最为恰当的策略为设计两层,每层11间居住用房,建筑的尺度和体量也更为合适。


设计这是我们第一次从城市跨越到乡村做建筑,服务的对象虽然从所谓的富人或者中产阶级转化为低收入贫困群体,但设计本质没有变,住在房子里面的村民就是设计的核心。我们希望在保证22户村民的基本功能需求以外,能让他们在房子里的生活更丰富一些,更贴近他们的日常生活,所以在空间利用上我们做了取舍,放弃了“最小公摊+最大套内”的固有住宅模式,牺牲单间面积,单间里只保留住宿功能,尽可能腾出共享空间,希望能激发村民的多用途使用,充实他们的体验。


入口和小院我记忆中的乡村都会有一个村口,村口种着一颗大树,大树下围坐着男女老少,聊着家长里短,这个独特的场所承载着几代村民的精神生活。以大鉴小,如果集合住宅是一个村庄的缩影,我们的设计初衷是希望找回这个失去的集体记忆空间。先在沿街面向内退让出3米,在中间砌筑不到顶的红砖墙用于分割内与外,红砖墙不仅隔绝了视线,也对内部走廊起到了屏风作用。项目北侧100米处是一所乡村幼儿园,集合住宅的留守儿童们都在那里上学,红砖墙外侧专门设计了一条砖砌靠座,每到下午老人们会约坐在此,一边冲着壳子(西南方言,表示有趣的闲聊),一边期盼着孙子孙女归家;接着我们在西侧建筑再退让出一小院,小院三面围合,连通走廊,挂上楼梯,种一棵树,结合入口区域,这就营造了一个集合住宅的“村口”空间,希望这里能为集合住宅的村民们带去富足的精神食量。



走廊和阳台设计中我们拓宽了20多米的长走廊,将规范最小要求的1.2米宽度增大至2.4米,一个纯交通空间就可以有更高的利用率,比如村民们可以在走廊摆桌用餐,在特殊的节日还可设长桌宴,儿童们可以尽情在走廊中追逐打闹,这条共享走廊会促进邻里之间的交流和关系,对营造和谐的居住氛围起到积极作用。



我们将二层楼板西侧留出一排采光井,既帮助了走廊的采光,也提高了一楼西侧6间房的采光率。每户村民都有独立做饭的基本需求,燃气无法通达乡村,柴火烧饭又受限于空间,电磁炉便成为合适的选择,但油烟还是需要排出,有必要给每户一个独立的半室外区域方便各家炒菜排烟;东侧房间通过调整进入方式可腾挪出各自的阳台,西侧二楼房间可通过出挑来增加各户阳台,唯独西侧一楼房间无法挤出独立空间,索性直接在宽敞的走廊施展,于是我们对走廊上方对应采光井进行垫高处理,让其兼顾排烟井的作用,也留出了擦洗玻璃底面的操作空间。这样每家的炒菜排烟问题就顺利解决,在不做饭的时候这些的半室外空间也是各家独立的休憩场所。


在地的气候性策略 下拉堡村受亚热带季风气候影响,虽然属于温和地区,但是山地立体气候特征明显,该村落年平均温差小,昼夜温差大,年太阳辐射量较高。为营造舒适的室内热环境,设计上应充分考虑山地微气候对建筑室内舒适度的影响:白天避暑,夜晚御寒。20多米的底层长廊通过小院、阳台、楼梯等半架空处理,有效遮阳,适当通风,形成底层阴凉避暑空间。建筑外墙充分利用夯土墙体的蓄热性能,作为室内外热环境的缓冲区,在白天室外气温较高时夯土墙体吸收过多的热量,能有效避免室外气温变化对室内热环境的直接影响。进而有效调节室内热舒适度。



我们在设计上控制了西向窗墙面积比,一楼房间西侧墙面设计成小高窗,二楼西向阳台门采用了实面门与玻璃小窗结合的形式,既满足一定的室内采光要求,又避免了西晒对室内热环境的影响。下拉堡村年降雨量在1100毫米左右,这已经超过了亚热带气候里的平均值。当地传统生土民居多采用两层坡屋顶形式,底层居住,顶层在作为储存空间使用的同时兼做气候缓冲区来减少过多的热量进入室内居住空间。屋顶在提取当地传统坡屋顶的形式下设计为上下双层,上层为钢架琉璃瓦坡屋顶,下层为混凝土平屋顶,双层屋顶不仅有更好的防水效果,而且能形成有效的通风层带走过多的热量。因此,集合住宅屋顶形成了传统屋顶形式的现代化转译。


建造本项目采用本地材料、本地工匠和本地技术的建造策略。为了满足低成本的建设要求,且达到“土”房子的外观效果和居住舒适度,土墙应作为承重墙体而非维护墙体,这需要在吸取传统营造智慧的基础上,对传统夯土技术进行现代化改良与优化。根据本地土壤颗粒级配情況优化土料配比,进而提升墙体的强度,结构上设置钢筋混凝土圈梁及构造柱对夯土墙体进行整体的结构加强,优化夯土墙结构的整体性能与抗震性能;其次,夯土墙施工采用铝合金模板,机械夯实,增强了土墙的平整度和密实度。此外,提出内源性发展理念,对当地工匠进行现代夯土技能培训,提高当地工匠素质技能,赋能当地工匠,进而希望增加其就业机会。



后记几天前我们回到下拉堡村进行了项目回访和拍摄,房子里已经入住6户人家,其余的也准备陆续搬入,听到老人们和孩子们对房子的一致好评,对建筑师而言这已是最大的欣慰。



项目图纸

△项目生成图

△轴测图

△一层平面图

△二层平面图

△屋顶平面图

△剖面图

△分析图
项目信息
建筑师:拾号建筑
面积:440m²
项目年份:2023
摄影师:黄显志,吴雨桐
设计团队:周诗皓,吴雨桐,李金航
夯土技术顾问:一专一村
项目资助:陈张敏聪夫人慈善基金有限公司
施工团队:朱建国施工队
特别鸣谢:董以香,林由刚
地点:保山市

BIM建筑网





评论前必须登录!
注册