
项目位于四川平武县平通羌族乡印象梅林景区,距离最近的羌族聚居地“走马羌寨”4公里。青梅是当地最具代表性的产业,梅宿之言就坐落在万亩梅林的半坡之上,原址是一座垮塌荒废的旧砖窑。青梅烘炕、羌族民居所呈现的共同特征“方形”与“梯形”,以及旧砖窑拱廊的光影以一种强烈而“无意识”的印象印刻在脑海中,成为梅宿之言最重要的三个“象源”,它们都有着极简的几何特征。几何“象源”的获得过程不禁让人想起了阿尔多·罗西的建筑类型学。

梅宿之言的设计尝试仅用“方形”和“梯形”这两个最简单的几何原型达成,“方形”和“梯形”组合成为日常生活中最为常见的几何体“象胚”:长方体和四棱柱。它们不同的尺度对应着生活中各种不同的器物,器皿、家具、建筑亦或是城市。


在3米的立方体参照系之下,长方体和四棱柱这两个象胚以“烘炕”、“羌碉”、“拱廊”的结构逻辑重构,又以羌寨中的院子和巷弄的意象重组,整个空间中有大小串联的院子,有光影丰富的檐廊,最终以极具秩序感的几何形式呈现,构建起了一个小巧的、现代语境下的院落式羌寨。



建筑材料也是从羌民居常用的石片、黄泥土转化而来,出于严苛的造价控制,石片墙以毛石贴片替代,黄泥土墙则以仿夯土涂料替代。走廊和阳台局部的木架装饰也都取自羌族民居中独特的木头构造。


川西的风景是大山大水的壮丽,是天高云淡的辽阔,是风土人情的原生。为了将美景引入室内,传统羌族民居的小窗户被替换为全落地玻璃门窗。我们将更多的空间交给了自然,用不同主题形式的院子和连廊将各个功能区域连接。公区的接待、餐厅、茶室、酒吧通过水院和光院串联起来,两个院子强化了空间层次,同时也营造了更多趣味和闲散的氛围;“烘炕”模块单元的客房被三组半户外的楼梯分隔再通过“拱廊”串联起来,强化几何秩序感的同时,楼梯和“拱廊”亦成为独特的观景通廊。平屋顶延续了羌族人在房顶游戏休歇的传统习惯,成为公共的观景休憩平台,群山环绕的壮美之间,一盏茶、一杯咖啡或是一壶浊酒伴着鸟语清风,还有漫天的星河,十分惬意。


梅宿之言以取自羌族民居“方形”和“梯形”两个最简单的几何原型,搭配羌族民居惯用的石、土、木三种建筑材料,重新塑造了一个融于自然又具有当代性的新式羌族民居聚落,将古老的羌族民居的意象以更加简练的几何语言表现出来。










项目图纸




△意向来源

△分析图

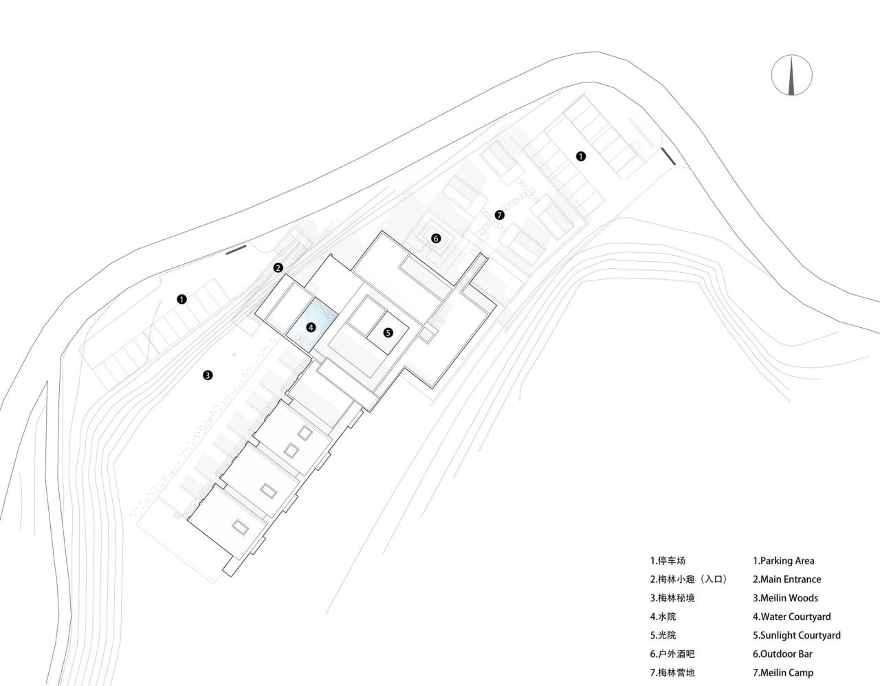
△总平面图

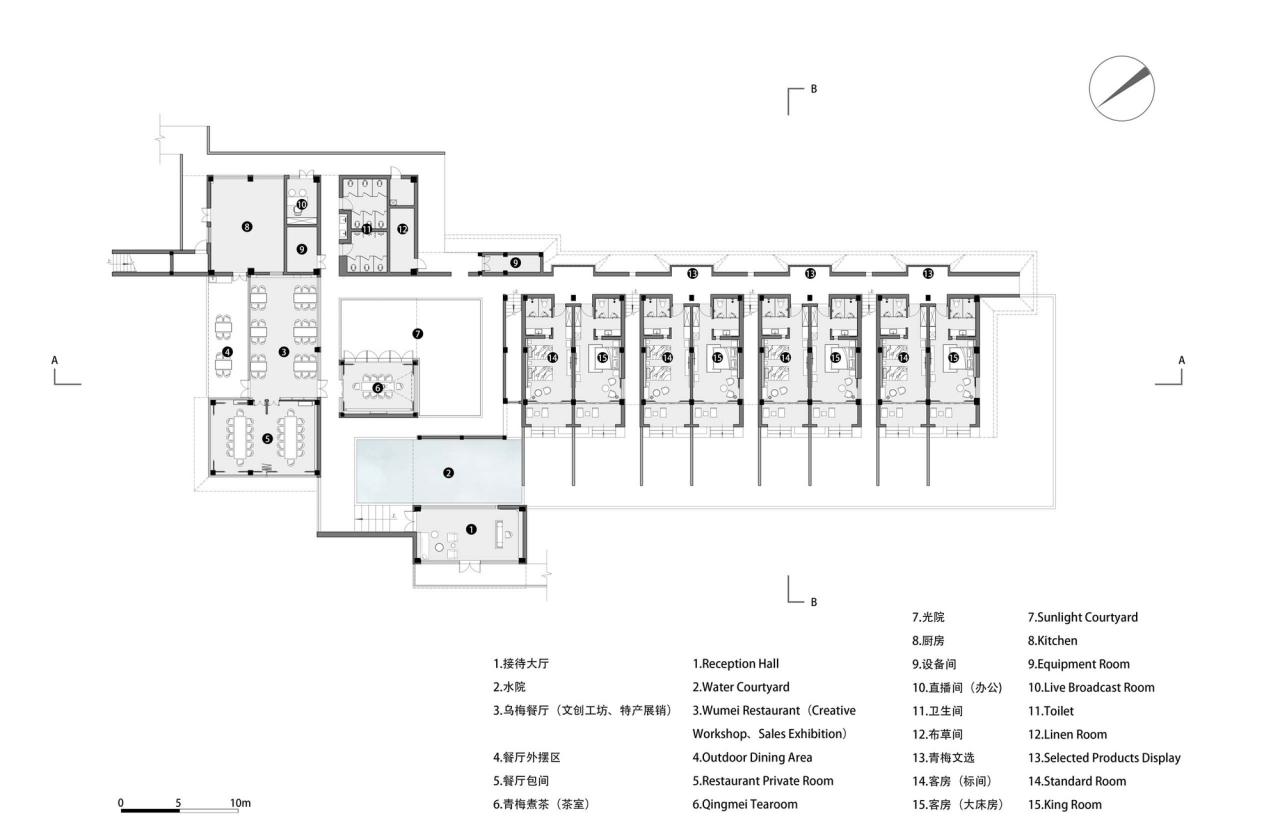
△一层平面图

△二层平面图

△剖面图

△剖面图
项目信息
建筑师:小隐建筑
面积:1360 m²
项目年份:2023
摄影师:Arch-Exist
主持建筑师:潘友才
设计总监:杨喆(合伙人)
技术总监:陈仁振(合伙人)
结构工程师:杜旭
设计团队:赵亚线、杨锐、冯煜桃、苟源君、胡沁梅、刘子轩、宋智颖、何仪
施工图设计:福州盈创筑业工程设计有限公司
施工单位:四川宏瑞鑫建设工程有限公司
业主单位:平武县光大国有投资(集团)有限公司
撰文:潘友才、葛祥鑫、杨叶
地点:绵阳市

BIM建筑网





评论前必须登录!
注册